Maison à construire à Guissény (29880)
Images
Description
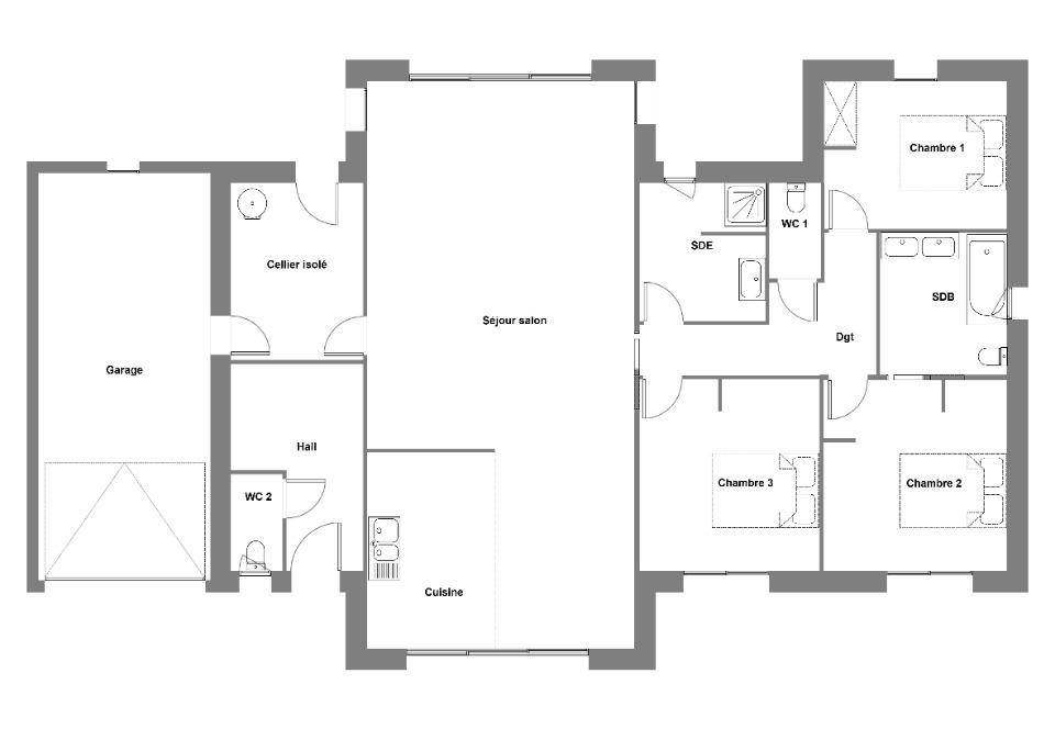
VENTE d'une maison F4 (124 m²) à Guissény
Cette belle maison traditionnelle aux lignes contemporaines offre 124m² habitable .
Elle dispose d'une belle pièce de vie de offrant un maximum de lumière, d'une grande suite parentale avec sa salle d'eau, 2 autres chambres avec une salle de bain, deux wc, d'un très grand cellier, un garage.
L'orientation de cette maison vous permettra de bénéficier d'un maximum de lumière et de chaleur naturelle pour davantage d'économies et de douceur de vivre.
Elle est à vendre pour la somme de 410 200 €.
Prenez contact avec notre agence (Aurélie CAGNARD : (Numéro supprimé)) pour plus d'informations sur cette maison. Maisons de l'Avenir Guipavas vous accompagne à toutes les étapes de l'achat et dans toutes vos démarches.
Logement susceptibles de vous intéresser
Nous vous proposons de découvrir aussi cette sélection de logements situés à moins de 10km de Guissény et qui seraient susceptibles de vous intéresser.
Plouider
TERRAIN ET MAISONDEVENEZ PROPRIÉTAIRE À PLOUIDER – MAISON NEUVE RE2020 SUR-MESURE !Vivez dans un cadre de vie privilégié à Plouider, charmante commune du Nord-Finistère, à seulement quelques minutes de Lesneven et des plages du littoral.Profitez du calme de la campagne, tout en restant proche des commerces, écoles et services – un environnement idéal pour votre famille ! Votre future maison comprend 😮 3 chambres spacieuses et lumineuseso Un grand salon-séjour traversant, ouvert sur le jardino Une cuisine moderne et fonctionnelleo Salle de bain et WC séparéso Le tout sur un terrain de 488 m², bien orienté Les atouts du projet 😮 Maison neuve RE2020, à faible consommation d’énergieo Plan personnalisable selon vos besoinso Cadre de vie paisible, à proximité de Brest et du littoralo Prestations de qualité, finitions soignées Prix indiqué hors frais Photos non contractuelles à titre d’illustration Accession à la propriété possible avec ou sans apportNe manquez pas cette belle opportunité de devenir propriétaire d’une maison neuve, moderne et économique à Plouider ! Contactez-nous dès maintenant pour découvrir les plans et étudier votre projet personnalisé.
Guissény
TERRAIN ET MAISONDEVENEZ PROPRIÉTAIRE À GUISSÉNY – MAISON NEUVE RE2020 SUR-MESURE !Vivez dans un cadre de vie privilégié à Guissény, charmante commune dynamique du Nord-Finistère, à proximité des commerces, écoles et des plages du littoral.Profitez du calme de la campagne, tout en restant proche des services essentiels – un environnement idéal pour votre famille ! Votre future maison comprend 😮 3 chambres spacieuses et lumineuseso Un grand salon-séjour traversant, ouvert sur le jardino Une cuisine moderne et fonctionnelleo Salle de bain et WC séparéso Le tout sur un terrain de 453 m², bien orienté Les atouts du projet 😮 Maison neuve RE2020, à faible consommation d’énergieo Plan personnalisable selon vos besoinso Cadre de vie paisible, proche du littoralo Prestations de qualité, finitions soignées Prix indiqué hors frais Photos non contractuelles à titre d’illustration Accession à la propriété possible avec ou sans apportNe manquez pas cette belle opportunité de devenir propriétaire d’une maison neuve moderne et économique à Guissény ! Contactez-nous dès maintenant pour découvrir les plans et étudier votre projet personnalisé.
Guissény
TERRAINGuissény : terrain de 867 m² en venteTerrain borné et viabiliséHors lotissementExposition sud-ouestEnvironnement calme et agréable, proximité immédiate des commerces, écoles et services.Accès rapide aux plages et aux sentiers côtiers, cadre de vie privilégié entre mer et campagne.Ce terrain est une opportunité rare pour concrétiser votre projet de construction dans un secteur recherché du Finistère Nord.Il est à vendre pour la somme de 110 000€. N’hésitez pas à prendre contact avec notre agence (Aurélie CAGNARD : (Numéro supprimé)) pour toute question sur le terrain, sur les modalités de vente ou sur les démarches à suivre. Maisons de l’Avenir Guipavas est là pour vous accompagner dans tous vos projets immobiliers.
Guissény
TERRAIN ET MAISONGuissény : maison de 3 pièces (72 m²) en venteCette belle maison traditionnelle aux lignes contemporaines offre 72m² habitable . Au rez-de-chaussée, elle dispose d’une belle pièce de vie de 34m² offrant un maximum de lumière, d’un wc et d’un cellier. A l’étage on retrouve 2 chambres, une salle de bains, et un WC. L’orientation de cette maison vous permettra de bénéficier d’un maximum de lumière et de chaleur naturelle pour davantage d’économies et de douceur de vivre.Elle est à vendre pour la somme de 268 400 €.Prenez contact avec Aurélie CAGNARD ((Numéro supprimé)) pour obtenir de plus amples informations sur cette maison ou sur les modalités de vente.
Guissény
TERRAIN ET MAISONMaison de 6 pièces (167 m²) à vendre à GuissényCette belle maison traditionnelle aux lignes contemporaines offre 167m² habitable . Au rez-de-chaussée, elle dispose d’une belle pièce de vie offrant un maximum de lumière, d’une grande suite parentale avec sa salle d’eau, d’un wc, d’un très grand cellier et d’un garage.A l’étage on retrouve 3 chambres, une salle de bains, un WC et une mezzanine. L’orientation de cette maison vous permettra de bénéficier d’un maximum de lumière et de chaleur naturelle pour davantage d’économies et de douceur de vivre.Elle est proposée à l’achat pour 542 500 €.N’hésitez pas à prendre contact avec Aurélie CAGNARD ((Numéro supprimé)) pour toute question sur cette maison, sur les modalités de vente ou sur les démarches à suivre.
Guissény
TERRAIN ET MAISONVENTE d’une maison F4 (124 m²) à GuissényCette belle maison traditionnelle aux lignes contemporaines offre 124m² habitable .Elle dispose d’une belle pièce de vie de offrant un maximum de lumière, d’une grande suite parentale avec sa salle d’eau, 2 autres chambres avec une salle de bain, deux wc, d’un très grand cellier, un garage.L’orientation de cette maison vous permettra de bénéficier d’un maximum de lumière et de chaleur naturelle pour davantage d’économies et de douceur de vivre.Elle est à vendre pour la somme de 410 200 €.Prenez contact avec notre agence (Aurélie CAGNARD : (Numéro supprimé)) pour plus d’informations sur cette maison. Maisons de l’Avenir Guipavas vous accompagne à toutes les étapes de l’achat et dans toutes vos démarches.
Guissény
TERRAIN ET MAISONVENTE : maison de 4 pièces (120 m²) à GuissényNouveau Murs Ossature BoisTrès beau plain-pied aux lignes traditionnelles, agencé astucieusement pour un maximum de luminosité, pièce de vie ouverte et volumineuse, 3 chambres dont une suite parentale, un cellier et son garage.Aux normes RE2020, peu énergivore, elle vous ravira par son confort de vie Elle est proposée à l’achat pour 401 000 €.Contactez notre agence (Aurélie CAGNARD : (Numéro supprimé)) pour obtenir de plus amples informations sur la maison. Faites de vos projets immobiliers une réalité avec Maisons de l’Avenir Guipavas.
Kerlouan
TERRAINSitué à Kerlouan (29890), ce terrain de 588 m² offre un cadre privilégié pour envisager la construction d’un nouveau projet immobilier. Cette charmante commune du Finistère, réputée pour sa proximité avec la mer, séduit par son authenticité bretonne et son atmosphère paisible. Les amoureux de la nature apprécieront les superbes paysages côtiers à quelques pas, idéaux pour les balades et les moments de détente. De plus, Kerlouan bénéficie de toutes les commodités essentielles à proximité, offrant un cadre de vie agréable et fonctionnel.Il offre une toile vierge pour laisser libre court à toutes les idées de construction. Sa vaste surface habitable permet d’envisager différentes configurations et agencements, laissant place à la créativité. Il est à vendre pour la somme de 50 000 €. Contactez Aurélie CAGNARD (tél : (Numéro supprimé)) pour tout renseignement sur le terrain.
Kerlouan
TERRAIN ET MAISONVENTE d’une maison F5 (111 m²) à KerlouanCette belle maison traditionnelle aux lignes contemporaines offre 111m² habitable . Au rez-de-chaussée, elle dispose d’une belle pièce de vie de 41m² offrant un maximum de lumière, d’une suite parentale, d’un wc, d’un cellier et d’un garage.A l’étage on retrouve 3 chambres, une salle de bains, et un WC. L’orientation de cette maison vous permettra de bénéficier d’un maximum de lumière et de chaleur naturelle pour davantage d’économies et de douceur de vivre.Son prix de vente est de 320 300 €.Contactez notre agence (CAGNARD Aurélie : (Numéro supprimé)) pour tout renseignement sur le bien, sur les modalités de vente ou sur les démarches à suivre. Maisons de l’Avenir Guipavas est là pour vous accompagner dans tous vos projets immobiliers.
L’actualité immobilière à Guissény
27/11/2023
02/11/2023
30/10/2023
20/10/2023
16/10/2023
16/10/2023