Maison à construire à Guissény (29880)
Images
Description
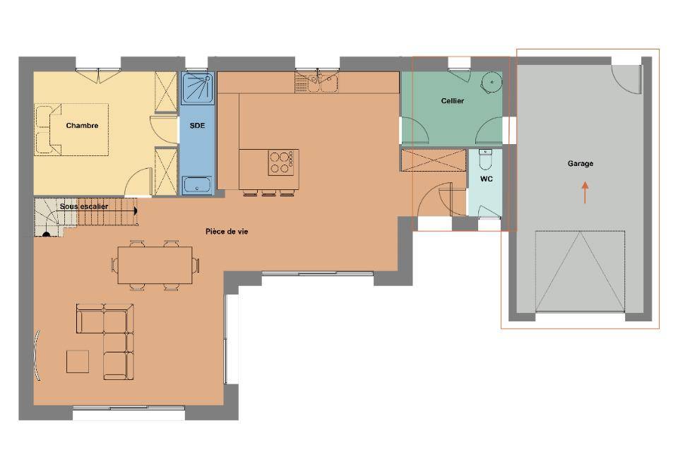
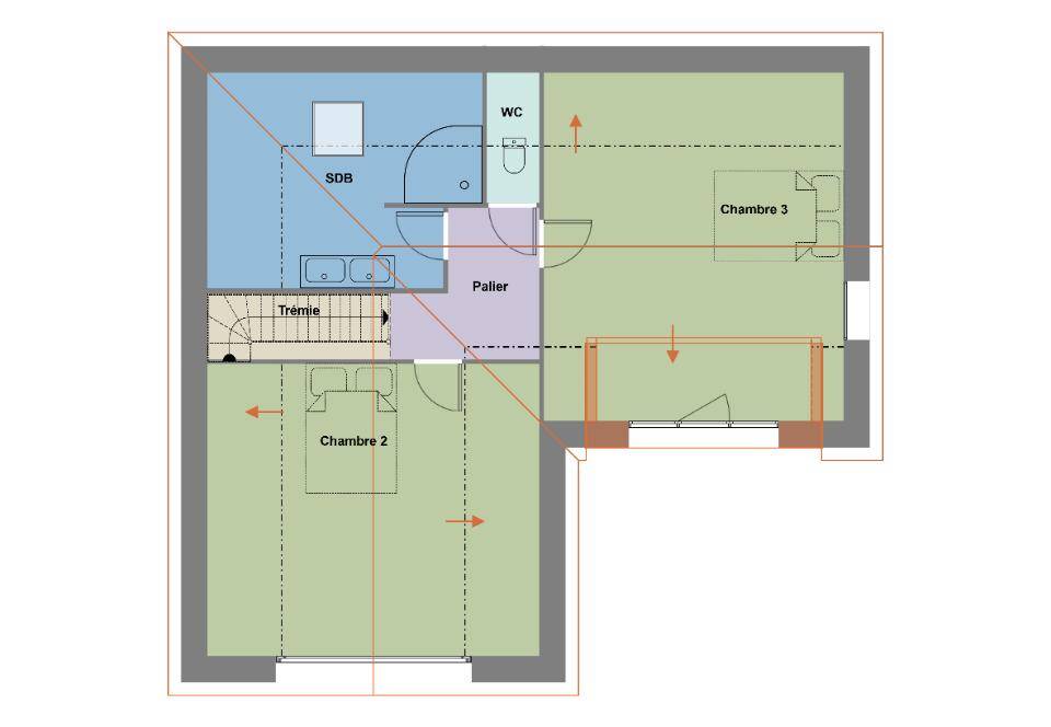
VENTE : maison T4 (152 m²) à Guissény
PROCHE DE BREST - MAISON 4 PIÈCES NEUVE
À vendre : située à quelques kilomètres de la mer et à 24 km de Brest, à Guissény (29880), nous sommes ravis de vous présenter cette maison de 4 pièces de 152 m².
Il s'agit d'une maison de 2 niveaux. Son intérieur dispose de trois chambres, d'une cuisine et de deux salles de bains. Cette maison est neuve.
Le terrain de la propriété s'étend sur 867 m².
Il y a l'Annexe du Collège Privé Diwan Penn Ar Bed Relecq-Kerhuon et l'École Primaire Privée Sainte Jeanne d'Arc dans la commune. Il y a un accès à la nationale N12 à 18 km. On trouve une bibliothèque dans les environs.
Son prix de vente est de 429 000 €.
Prenez contact avec Aurélie CAGNARD pour tout renseignement sur la maison.
Logement susceptibles de vous intéresser
Nous vous proposons de découvrir aussi cette sélection de logements situés à moins de 10km de Guissény et qui seraient susceptibles de vous intéresser.
Le Folgoët
TERRAIN ET MAISONDEVENEZ PROPRIÉTAIRE AU FOLGOËT – MAISON NEUVE conforme à la dernière norme basse consommation RE-2020 !Vivez dans un cadre de vie privilégié au Folgoët, commune recherchée du Finistère, offrant un environnement calme et verdoyant tout en restant proche des commerces, des écoles et de toutes les commodités – un lieu idéal pour votre famille !Votre future maison comprend 😮 2 chambres spacieuses et lumineuseso Un grand salon-séjour traversant, ouvert sur le jardino Une cuisine moderne et fonctionnelleo Salle de bain et WC séparéso Le tout sur un terrain de 338 m², bien orientéLes atouts du projet 😮 Maison neuve RE2020, à faible consommation d’énergieo Plan personnalisable selon vos besoinso Environnement paisible et familialo Prestations de qualité, finitions soignéesAccession à la propriété possible avec ou sans apport, étude de financement gratuite.Photos à titre d’illustration (photos d’une de nos réalisations – non contractuelles).Nous trouvons l’adresse idéale parmi plus de 200 terrains disponibles pour votre future demeure.Ne manquez pas cette belle opportunité de devenir propriétaire d’une maison neuve moderne et économique au Folgoët !Contactez-nous dès maintenant pour découvrir les plans et étudier votre projet personnalisé.Armorique Immos, franchise d’un constructeur national de maisons individuelles depuis plus de 40 ans, propose en collaboration avec ses partenaires fonciers une sélection de terrains constructibles, selon disponibilité, pour la construction de maisons neuves définies par le constructeur, avec un contrat de construction de maison individuelle, dans le cadre de la loi du 19/12/1990.Prix net, hors frais notariés, d’enregistrement et de publicité foncière.Étude financière réalisée par nos partenaires en courtage (IOSB inscrit à l’Orias).
Kerlouan
TERRAIN ET MAISONKerlouan : maison F5 (164 m²) en venteMAISON 5 PIÈCES NEUVE – PROCHE DE BRESTÀ quelques kilomètres de la mer et à deux pas de Brest, notre agence Maisons de l’Avenir Guipavas est heureuse de vous proposer cette maison de 5 pièces de 164 m² à vendre à Kerlouan (29890). Son intérieur inclut quatre chambres, une cuisine et deux salles de bains.Le terrain de la propriété est de 588 m².Cette maison possède 2 niveaux. Elle est neuve.L’École Primaire Privée Sainte Anne est implantée à moins de 10 minutes à pied. On trouve un accès à la nationale N12 à 19 km. Il y a une bibliothèque, une boulangerie, un commerce, un supermarché, une boucheries-charcuteries et un bureau de poste dans les environs.Son prix de vente est de 458 000 €.Contactez Aurélie CAGNARD pour plus de renseignements sur cette maison.
Lesneven
TERRAIN ET MAISON📍 À VENDRE – Terrain constructible de 395 m² à LesnevenSitué à Lesneven, ce terrain constructible de 395 m² représente une opportunité rare pour concrétiser votre projet immobilier dans un environnement calme et résidentiel, à seulement 10 minutes à pied du centre-ville.🔹 Caractéristiques principales :Superficie : 395 m²Forme : RectangulaireBornage : EffectuéViabilisation : Non viabilisé, mais réseaux (eau, électricité, télécommunications, tout-à-l’égout) en bordure de parcelleConstructibilité : Terrain libre de constructeur, non soumis à l’avis des Architectes des Bâtiments de France (ABF)Emprise au sol maximale : 40 %, soit environ 158 m² constructibles🌿 Environnement :Issu d’une division de parcelles, le terrain se situe dans un quartier paisible et bénéficie d’une proximité immédiate avec toutes les commodités : commerces, écoles, services de santé…💰 Prix de vente : 54 900 €💡 Nous vous proposons sur ce terrain un projet de maison de 70 m² en plein pied, au style contemporain comprenant :3 chambres 1 salles de bains avec douche et baignoire 🚿Un vaste espace de vie de plus de 35 m² lumineux ☀️Un grand garage 🚗Une conception intégrée dans notre concept Maisons Bâti Activ, favorisant l’ensoleillement naturel et réduisant vos coûts énergétiques 🌿⚡💰 Prix de l’opération Terrain + Maison : 245 000 €Ce terrain et ce projet de maison n’attendent plus que vous pour devenir réalité 🏡.📞 Pour plus d’informations ou organiser une visite, contactez Erwan TILLY – Maisons de l’Avenir.
Guissény
TERRAINTerrain de 867 m² en vente à GuissényPROCHE DE BRESTSur le littoral et à 24 km de Brest à Guissény (29880), grand terrain. Il est prêt à accueillir votre projet de construction pour toute la famille. L’Annexe du Collège Privé Diwan Penn Ar Bed Relecq-Kerhuon et l’École Primaire Privée Sainte Jeanne d’Arc sont implantés dans la commune. Il y a un accès à la nationale N12 à 18 km. Il y a une bibliothèque à proximité de la propriété.Il est proposé à l’achat pour 110 000 €. Contactez Aurélie CAGNARD pour toute question sur ce terrain ou sur les modalités de vente. Faites de vos projets immobiliers une réalité avec Maisons de l’Avenir Guipavas.
Lesneven
TERRAIN ET MAISON📍 À VENDRE – Terrain constructible de 395 m² à LesnevenSitué à Lesneven, ce terrain constructible de 395 m² représente une opportunité rare pour concrétiser votre projet immobilier dans un environnement calme et résidentiel, à seulement 10 minutes à pied du centre-ville.🔹 Caractéristiques principales :Superficie : 395 m²Forme : RectangulaireBornage : EffectuéViabilisation : Non viabilisé, mais réseaux (eau, électricité, télécommunications, tout-à-l’égout) en bordure de parcelleConstructibilité : Terrain libre de constructeur, non soumis à l’avis des Architectes des Bâtiments de France (ABF)Emprise au sol maximale : 40 %, soit environ 158 m² constructibles🌿 Environnement :Issu d’une division de parcelles, le terrain se situe dans un quartier paisible et bénéficie d’une proximité immédiate avec toutes les commodités : commerces, écoles, services de santé…💰 Prix de vente : 54 900 €💡 Nous vous proposons sur ce terrain un projet de maison de 90 m² en plein pied, au style contemporain avec des touches contemporaines comprenant :3 chambres dont une suite parentale 🛏️2 salles de bains 🚿Un vaste espace de vie de plus de 45 m² lumineux ☀️Un grand garage 🚗Une conception intégrée dans notre concept Maisons Bâti Activ, favorisant l’ensoleillement naturel et réduisant vos coûts énergétiques 🌿⚡💰 Prix de l’opération Terrain + Maison : 278 000 €Ce terrain et ce projet de maison n’attendent plus que vous pour devenir réalité 🏡.📞 Pour plus d’informations ou organiser une visite, contactez Erwan TILLY – Maisons de l’Avenir.
Kerlouan
TERRAINKerlouan : terrain de 588 m² à vendrePROCHE DE BRESTÀ Kerlouan (29890) en vente à quelques kilomètres de la mer et à deux pas de Brest, donnez vie à votre résidence principale ou secondaire sur ce terrain de 588 m². L’École Primaire Privée Sainte Anne est implantée à moins de 10 minutes à pied. La nationale N12 est accessible à 19 km. On trouve une bibliothèque, une boulangerie, un commerce, un supermarché, un bureau de poste et une boucherie-charcuterie dans les environs.Son prix de vente est de 50 000 €. N’hésitez pas à prendre contact avec notre agence (CAGNARD Aurélie) pour tout renseignement sur ce terrain et sur les démarches à suivre. Donnez vie à vos projets immobiliers avec Maisons de l’Avenir Guipavas.
Kerlouan
TERRAIN ET MAISONKerlouan : maison de 4 pièces (90 m²) à vendreMAISON 4 PIÈCES NEUVE – PROCHE DE BRESTÀ vendre : sur le littoral et à 28 km de Brest, Maisons de l’Avenir Guipavas vous propose cette maison de 4 pièces de 90 m² à Kerlouan (29890). Son intérieur comporte trois chambres, une cuisine et deux salles de bains.Le terrain de la propriété est de 588 m².C’est une maison de 2 niveaux. Elle est neuve.Il y a l’École Primaire Privée Sainte Anne à moins de 10 minutes à pied. On trouve un accès à la nationale N12 à 19 km. On trouve une bibliothèque, une boulangerie, un commerce, un supermarché, un bureau de poste et une boucherie-charcuterie à proximité du bien.Son prix de vente est de 305 000 €.N’hésitez pas à prendre contact avec Aurélie CAGNARD pour obtenir de plus amples informations sur cette maison, sur les démarches à suivre ou sur les modalités de vente. Maisons de l’Avenir Guipavas vous accompagne dans tous vos projets immobiliers et à toutes les étapes de l’achat.
Lesneven
TERRAIN📍 À VENDRE – Terrain constructible de 395 m² à LesnevenSitué à Lesneven, ce terrain constructible de 395 m² représente une opportunité rare pour concrétiser votre projet immobilier dans un environnement calme et résidentiel, à seulement 10 minutes à pied du centre-ville.🔹 Caractéristiques principales :Superficie : 395 m²Forme : RectangulaireBornage : EffectuéViabilisation : Non viabilisé, mais réseaux (eau, électricité, télécommunications, tout-à-l’égout) en bordure de parcelleConstructibilité : Terrain libre de constructeur, non soumis à l’avis des Architectes des Bâtiments de France (ABF)Emprise au sol maximale : 40 %, soit environ 158 m² constructibles🌿 Environnement :Issu d’une division de parcelles, le terrain se situe dans un quartier paisible et bénéficie d’une proximité immédiate avec toutes les commodités : commerces, écoles, services de santé…💰 Prix de vente : 54 900 €📞 Pour plus d’informations ou organiser une visite, contactez Erwan TILLY – Maisons de l’Avenir.
Guissény
TERRAIN ET MAISONVENTE : maison de 6 pièces (117 m²) à GuissényPROCHE DE BREST – MAISON 6 PIÈCES NEUVEEn vente : à quelques kilomètres de la mer et à 24 km de Brest, Maisons de l’Avenir Guipavas vous présente à Guissény (29880), cette maison de 6 pièces de 117 m² et de 867 m² de terrain.C’est une maison de 2 niveaux. Elle inclut cinq chambres, une cuisine et deux salles de bains. La maison est neuve.Il y a l’Annexe du Collège Privé Diwan Penn Ar Bed Relecq-Kerhuon et l’École Primaire Privée Sainte Jeanne d’Arc dans la commune. La nationale N12 est accessible à 18 km. On trouve une bibliothèque à proximité de la maison.Elle est proposée à l’achat pour 359 000 €.N’hésitez pas à prendre contact avec Aurélie CAGNARD pour toute information sur cette maison ou sur les démarches à suivre. Concrétisez vos projets immobiliers avec Maisons de l’Avenir Guipavas.
L’actualité immobilière à Guissény
27/11/2023
02/11/2023
30/10/2023
20/10/2023
16/10/2023
16/10/2023