Maison à construire à Hôpital-Camfrout (29460)
Images
Description
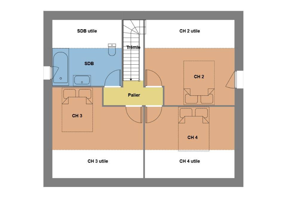
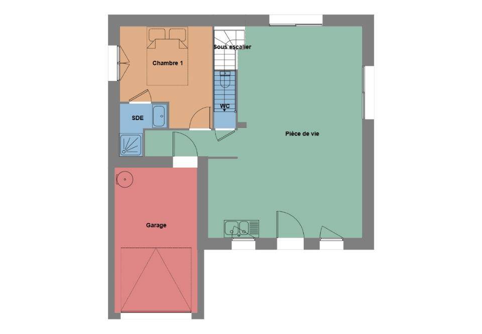
VENTE : maison F5 (102 m²) à Hôpital-Camfrout
PROCHE CENTRE-VILLE - MAISON 5 PIÈCES NEUVE
En vente : à quelques kilomètres de la mer et à quelques kilomètres de Brest, venez découvrir cette maison de 5 pièces de 102 m² proche du centre-ville d'Hôpital-Camfrout (29460).
C'est une maison de 2 niveaux. Elle offre quatre chambres, une cuisine et deux salles de bains. La maison est neuve.
Le terrain de la propriété est de 370 m².
Il y a l'École Élémentaire Publique Renée le Née à moins de 10 minutes à pied. Côté transports en commun, on trouve la gare Dirinon à moins de 10 minutes en voiture. On trouve un accès à la nationale N165 à 4 km. Il y a une boulangerie et une épicerie dans les environs.
Elle est à vendre pour la somme de 247 851 €.
Contactez notre agence (ALKIS Sami) pour tout renseignement sur la maison, sur les démarches à suivre ou sur les modalités de vente. Maisons de l'Avenir Guipavas est là pour vous accompagner dans tous vos projets immobiliers.
Logement susceptibles de vous intéresser
Nous vous proposons de découvrir aussi cette sélection de logements situés à moins de 10km de Hôpital-Camfrout et qui seraient susceptibles de vous intéresser.
Le Faou
TERRAINTerrain de 581 m² en vente au FaouA SAISIR ! RARE Derniers lots disponibles dans un petit lotissement CENTRE-VILLE – Grand terrain à quelques kilomètres de la mer et à deux pas de Brest. De 581 m², ce terrain se situe dans le centre du Faou (29590).Son prix de vente est de 69 000 €. Contactez notre agence (Jean ROPERS : (Numéro supprimé)) pour plus d’informations sur le terrain.
Le Faou
TERRAIN ET MAISONVENTE d’une maison de 4 pièces (80 m²) au FaouCENTRE-VILLE – MAISON 4 PIÈCES NEUVEÀ vendre sur le littoral et à quelques kilomètres de Brest, nous vous présentons cette maison de 4 pièces de plain-pied de 80 m² dans le centre du Faou (29590). Son intérieur dispose de trois chambres, d’une cuisine et d’une salle de bains.Le terrain du bien s’étend sur 581 m².Elle est proposée à l’achat pour 270 000 €.Contactez notre agence (ROPERS Jean : (Numéro supprimé)) pour obtenir de plus amples renseignements sur la maison ou sur les démarches à suivre. Maisons de l’Avenir Guipavas vous accompagne à toutes les étapes de l’achat et dans tous vos projets immobiliers.
Le Faou
TERRAIN ET MAISONVENTE d’une maison T4 (95 m²) au FaouCENTRE-VILLE – MAISON 4 PIÈCES NEUVEEn vente : sur le littoral et à quelques kilomètres de Brest, notre agence Maisons de l’Avenir Guipavas est ravie de vous proposer cette maison de 4 pièces de 95 m² dans le centre du Faou (29590).Cette maison compte 2 niveaux. Elle inclut trois chambres, une cuisine et deux salles de bains. Son prix de vente est de 303 000 €.Contactez Jean ROPERS (tél : (Numéro supprimé)) pour toute information sur la maison.
Le Faou
TERRAIN ET MAISONMaison de 4 pièces (70 m²) à vendre au FaouCENTRE-VILLE – MAISON 4 PIÈCES NEUVEEn vente : localisée sur le littoral et à quelques kilomètres de Brest, notre agence Maisons de l’Avenir Guipavas est ravie de vous proposer cette maison de 4 pièces de 70 m² dans le centre-ville du Faou (29590).Cette maison comporte 2 niveaux. Son intérieur compte trois chambres, une cuisine et une salle de bains.Son prix de vente est de 233 000 €.N’hésitez pas à prendre contact avec Jean ROPERS ((Numéro supprimé)) pour toute question sur la maison. Donnez vie à vos projets immobiliers avec Maisons de l’Avenir Guipavas.
Le Faou
TERRAIN ET MAISONMaison T6 (119 m²) en vente au FaouCENTRE-VILLE – MAISON 6 PIÈCES NEUVEEn vente : située sur le littoral et à 29 km de Brest, nous sommes ravis de vous proposer cette maison de 6 pièces de 119 m² et de 581 m² de terrain au Faou (29590), en centre-ville. Son intérieur dispose de cinq chambres, d’une cuisine et de deux salles de bains.Il s’agit d’une maison de 2 niveaux. Elle est à vendre pour la somme de 336 000 €.Contactez notre agence (ROPERS Jean : (Numéro supprimé)) pour tout renseignement sur la maison, sur les démarches à suivre ou sur les modalités de vente.
Le Faou
TERRAIN ET MAISONMaison F5 (100 m²) en vente au FaouCENTRE-VILLE – MAISON 5 PIÈCES OSSATURE BOIS En vente sur le littoral et à deux pas de Brest, notre agence Maisons de l’Avenir Guipavas est ravie de vous présenter cette maison de 5 pièces de plain-pied de 100 m² et de 581 m² de terrain dans le centre du Faou (29590). Son intérieur comporte quatre chambres, une cuisine et deux salles de bains.Son prix de vente est de 329 700 €.Prenez contact avec Jean ROPERS ((Numéro supprimé)) pour tout renseignement sur la maison.
Le Faou
TERRAINTerrain de 579 m² en vente au FaouCENTRE-VILLE – A SAISIR, rare, derniers lots ! Petit lotissement au centre. Les commerces à piedGrand terrain sur le littoral et à quelques kilomètres de Brest. De 579 m², ce terrain se situe au Faou (29590), en centre-ville. Son prix de vente est de 79 000 €. N’hésitez pas à prendre contact avec Jean ROPERS (tél : (Numéro supprimé)) pour toute information sur le terrain ou sur les modalités de vente.
Le Faou
TERRAIN ET MAISONVENTE d’une maison de 4 pièces (100 m²) au FaouPROCHE DE BREST – MAISON 4 PIÈCES NEUVESur le littoral et à deux pas de Brest, venez découvrir cette maison de 4 pièces de plain-pied de 100 m² et de 579 m² de terrain en vente au Faou (29590).Conçue de plain-pied, elle se divise en trois chambres, une cuisine et deux salles de bains. x boulangeries, un supermarché et deux épiceries à proximité du logement.Elle est proposée à l’achat pour 316 000 €.Contactez notre agence (ROPERS Jean : (Numéro supprimé)) pour toute question sur la maison ou sur les démarches à suivre.
Le Faou
TERRAIN ET MAISONMaison F4 (69 m²) en vente au FaouMAISON 4 PIÈCES NEUVE – PROCHE DE BRESTÀ vendre : localisée sur le littoral et à 29 km de Brest, ayez le coup de coeur pour cette maison de 4 pièces de 69 m² et de 579 m² de terrain au Faou (29590).C’est une maison de 2 niveaux. Son intérieur propose trois chambres, une cuisine et une salle de bains. Elle est proposée à l’achat pour 268 500 €.Contactez Jean ROPERS ((Numéro supprimé)) pour tout renseignement sur cette maison ou sur les modalités de vente. Maisons de l’Avenir Guipavas est là pour vous accompagner dans toutes vos démarches.
L’actualité immobilière à Hôpital-Camfrout
27/11/2023
02/11/2023
30/10/2023
20/10/2023
16/10/2023
16/10/2023