Maison à construire à Hôpital-Camfrout (29460)
Images
Description
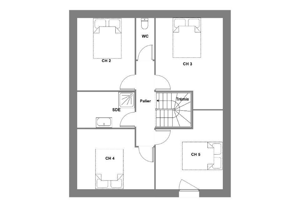
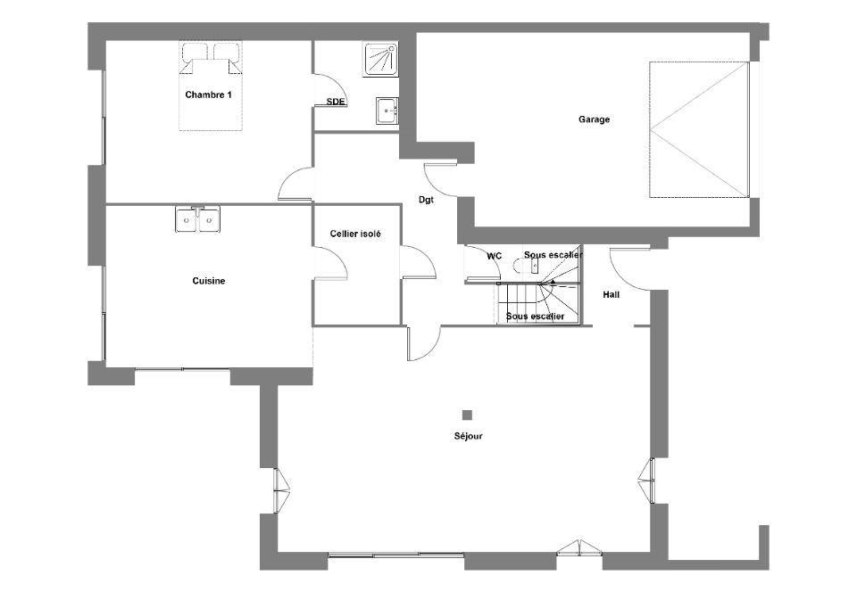
Maison T6 (140 m²) en vente à Hôpital-Camfrout
PROCHE DE BREST - MAISON 6 PIÈCES
À vendre sur le littoral et à deux pas de Brest, à Hôpital-Camfrout (29460), nous vous présentons cette maison de 6 pièces de 140 m² et de 675 m² de terrain.
Cette maison compte 2 niveaux. Elle compte quatre chambres, une cuisine et deux salles de bains.
Elle est proposée à l'achat pour 415 000 €.
Prenez contact avec Jean ROPERS (tél : (Numéro supprimé)) pour plus d'informations sur cette maison. Maisons de l'Avenir Guipavas vous accompagne dans toutes vos démarches et dans tous vos projets immobiliers.
Logement susceptibles de vous intéresser
Nous vous proposons de découvrir aussi cette sélection de logements situés à moins de 10km de Hôpital-Camfrout et qui seraient susceptibles de vous intéresser.
Saint-Urbain
TERRAIN ET MAISONDEVENEZ PROPRIÉTAIRE À SAINT-URBAIN – MAISON NEUVE RE2020 SUR-MESURE !Vivez dans un cadre de vie privilégié à Saint-Urbain, charmante commune du Nord-Finistère, idéalement située à proximité de Landerneau et à quelques minutes de Brest.Profitez du calme de la campagne, tout en restant proche des commerces, écoles et services – un environnement idéal pour votre famille ! Votre future maison comprend 😮 3 chambres spacieuses et lumineuseso Un grand salon-séjour traversant, ouvert sur le jardino Une cuisine moderne et fonctionnelleo Salle de bain et WC séparéso Le tout sur un terrain de 600 m², bien orienté Les atouts du projet 😮 Maison neuve RE2020, à faible consommation d’énergieo Plan personnalisable selon vos besoinso Cadre de vie paisible, à proximité de Brest et du littoralo Prestations de qualité, finitions soignées Prix indiqué hors frais Photos non contractuelles à titre d’illustration Accession à la propriété possible avec ou sans apportNe manquez pas cette belle opportunité de devenir propriétaire d’une maison neuve, moderne et économique à Saint-Urbain ! Contactez-nous dès maintenant pour découvrir les plans et étudier votre projet personnalisé.
Hôpital-Camfrout
TERRAINVENTE : terrain de 675 m² à Hôpital-CamfroutDans un petit lotissement, très bien situé, belle expositionÀ Hôpital-Camfrout (29460) à quelques kilomètres de la mer et à quelques kilomètres de Brest, venez découvrir ce terrain de 675 m². RN 65 à 10 minutesIl est proposé à l’achat pour 82 000 €. Contactez Jean ROPERS (tél : (Numéro supprimé)) pour toute information sur ce terrain ou sur les démarches à suivre. Maisons de l’Avenir Guipavas vous accompagne dans tous vos projets immobiliers et à toutes les étapes de votre projet.
Hôpital-Camfrout
TERRAIN ET MAISONMaison T4 (75 m²) à vendre à Hôpital-CamfroutMAISON 4 PIÈCES NEUVE – PROCHE DE BRESTEn vente : sur le littoral et à deux pas de Brest, notre agence Maisons de l’Avenir Guipavas est ravie de vous proposer cette maison de 4 pièces de 75 m² et de 675 m² de terrain à Hôpital-Camfrout (29460).Cette maison compte 2 niveaux. Elle offre trois chambres, une cuisine et une salle de bains. Elle est proposée à l’achat pour 264 500 €.Contactez notre agence (ROPERS Jean : (Numéro supprimé)) pour plus d’informations sur cette maison ou sur les modalités de vente. Maisons de l’Avenir Guipavas vous accompagne dans toutes vos démarches et dans tous vos projets immobiliers.
Hôpital-Camfrout
TERRAIN ET MAISONHôpital-Camfrout : maison T4 (90 m²) en ventePROCHE DE BREST – MAISON 4 PIÈCES NEUVEEn vente : située sur le littoral et à quelques kilomètres de Brest, votre agence Maisons de l’Avenir Guipavas est ravie de vous présenter cette maison de 4 pièces de 90 m² à Hôpital-Camfrout (29460).Cette maison comporte 2 niveaux. Elle se divise en trois chambres, une cuisine et deux salles de bains. Il est à vendre pour la somme de 305 000 €.N’hésitez pas à prendre contact avec Jean ROPERS ((Numéro supprimé)) pour toute question sur la maison ou sur les démarches à suivre. Maisons de l’Avenir Guipavas est là pour vous accompagner à toutes les étapes de l’achat.
Hôpital-Camfrout
TERRAIN ET MAISONHôpital-Camfrout : maison F4 (100 m²) à vendreMAISON 4 PIÈCES NEUVE – PROCHE DE BRESTEn vente sur le littoral et à deux pas de Brest, nous sommes heureux de vous proposer cette maison de 4 pièces de 100 m² à Hôpital-Camfrout (29460). Son intérieur offre trois chambres, une cuisine et deux salles de bains.Le terrain de cette maison est de 675 m².Cette maison possède 2 niveaux. Elle est proposée à l’achat pour 327 000 €.Contactez notre agence (ROPERS Jean : (Numéro supprimé)) pour toute question sur le bien et sur les modalités de vente.
Hôpital-Camfrout
TERRAIN ET MAISONMaison T6 (140 m²) en vente à Hôpital-CamfroutPROCHE DE BREST – MAISON 6 PIÈCES À vendre sur le littoral et à deux pas de Brest, à Hôpital-Camfrout (29460), nous vous présentons cette maison de 6 pièces de 140 m² et de 675 m² de terrain.Cette maison compte 2 niveaux. Elle compte quatre chambres, une cuisine et deux salles de bains. Elle est proposée à l’achat pour 415 000 €.Prenez contact avec Jean ROPERS (tél : (Numéro supprimé)) pour plus d’informations sur cette maison. Maisons de l’Avenir Guipavas vous accompagne dans toutes vos démarches et dans tous vos projets immobiliers.
Hôpital-Camfrout
TERRAIN ET MAISONHôpital-Camfrout : maison de 7 pièces (105 m²) en venteMAISON 7 PIÈCES NEUVE – POSSATURE BOIS PROCHE DE BRESTÀ quelques kilomètres de la mer et à 22 km de Brest, notre agence Maisons de l’Avenir Guipavas est ravie de vous proposer cette maison de 7 pièces de 105 m² en vente à Hôpital-Camfrout (29460). Elle inclut six chambres, une cuisine et deux salles de bains.Le terrain de cette maison s’étend sur 675 m².Cette maison possède 2 niveaux. Son prix de vente est de 339 150 €.Contactez notre constructeur (Jean ROPERS : (Numéro supprimé)) pour toute information sur cette maison. Maisons de l’Avenir Guipavas est là pour vous accompagner dans tous vos projets immobiliers.
Daoulas
TERRAINDEVENEZ PROPRIÉTAIRE D’UN TERRAIN À DAOULAS !Vivez dans un cadre de vie exceptionnel à Daoulas, charmante commune du Finistère réputée pour son cadre verdoyant et sa vie de bourg dynamique.Idéalement située à seulement quelques minutes de Brest et Landerneau, Daoulas offre un parfait équilibre entre calme, nature et proximité des commodités. Votre terrain comprend 😮 Une surface de 470 m², bien orientéeo Possibilité de construire la maison de vos rêves selon vos envies Les atouts du projet 😮 Terrain viabilisé ou proche des réseauxo Cadre paisible et verdoyant, à deux pas du centre-bourg, des écoles et commerceso Liberté de construction, avec plan personnalisable selon vos besoins Prix indiqué hors frais Photos non contractuelles, à titre d’illustration Accession possible avec ou sans apportNe manquez pas cette opportunité unique de devenir propriétaire d’un terrain à Daoulas et de réaliser votre projet sur mesure dans un environnement de qualité, à proximité de Brest et de la mer ! Contactez-nous dès maintenant pour plus d’informations et pour étudier votre projet.
Le Faou
TERRAINDEVENEZ PROPRIÉTAIRE D’UN TERRAIN AU FAOU !Vivez dans un cadre de vie privilégié au Faou, charmante commune du Finistère, idéalement située entre Brest et Quimper, à l’entrée de la presqu’île de Crozon.Profitez du calme et du charme d’un bourg authentique, tout en restant proche des commerces, écoles et services – un environnement parfait pour concrétiser votre projet de vie ! Votre terrain comprend 😮 Une surface de 581 m², bien orientéeo Possibilité de construire la maison de vos rêves selon vos envies Les atouts du projet 😮 Terrain viabilisé ou proche des réseauxo Cadre de vie paisible, à proximité immédiate des commodités et des axes routierso Liberté de construction, avec plan personnalisable selon vos besoins Prix indiqué hors frais Photos non contractuelles, à titre d’illustration Accession possible avec ou sans apportNe manquez pas cette opportunité unique de devenir propriétaire d’un terrain au Faou et de réaliser votre projet sur mesure dans un environnement privilégié ! Contactez-nous dès maintenant pour plus d’informations et étudier votre projet.
L’actualité immobilière à Hôpital-Camfrout
27/11/2023
02/11/2023
30/10/2023
20/10/2023
16/10/2023
16/10/2023