Maison à construire à Hôpital-Camfrout (29460)
Images
Description
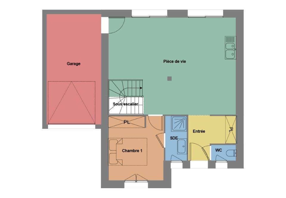
VENTE d'une maison T5 (105 m²) à Hôpital-Camfrout
IDÉALEMENT SITUÉE - MAISON 5 PIÈCES NEUVE
À vendre à quelques kilomètres de la mer et à quelques kilomètres de Brest, nous vous présentons cette maison de 5 pièces de 105 m² idéalement située dans Hôpital-Camfrout (29460). Son intérieur est composé de quatre chambres, d'une cuisine et de deux salles de bains.
Le terrain du bien s'étend sur 570 m².
Il s'agit d'une maison de 2 niveaux. Elle est neuve.
Cette maison est située dans un quartier attractif. L'École Élémentaire Publique Renée le Née se trouve à moins de 10 minutes à pied. Côté transports, il y a la gare Dirinon à moins de 10 minutes en voiture. La nationale N165 est accessible à 4 km. On trouve une boulangerie et une épicerie à proximité.
Elle est proposée à l'achat pour 312 000 €.
Prenez contact avec Erwan TILLY pour toute question sur la maison. Maisons de l'Avenir Guipavas est là pour vous accompagner dans tous vos projets immobiliers.
Logement susceptibles de vous intéresser
Nous vous proposons de découvrir aussi cette sélection de logements situés à moins de 10km de Hôpital-Camfrout et qui seraient susceptibles de vous intéresser.
Hôpital-Camfrout
TERRAINDEVENEZ PROPRIÉTAIRE D’UN TERRAIN À L’HÔPITAL-CAMFROUT !Vivez dans un cadre de vie privilégié à L’Hôpital-Camfrout, charmante commune du Finistère, idéalement située entre Brest et la presqu’île de Crozon.Profitez d’un environnement calme et naturel, tout en restant proche des commerces, écoles et services – un cadre idéal pour votre futur projet ! Votre terrain comprend 😮 Une surface de 570 m², bien orientéeo Possibilité de construire la maison de vos rêves selon vos envies Les atouts du projet 😮 Terrain viabilisé ou proche des réseauxo Cadre de vie paisible, à proximité de Brest, de la rade et du littoralo Liberté de construction, avec plan personnalisable selon vos besoins Prix indiqué hors frais Photos non contractuelles à titre d’illustration Accession possible avec ou sans apportNe manquez pas cette opportunité unique de devenir propriétaire d’un terrain à L’Hôpital-Camfrout et de réaliser votre projet sur-mesure ! Contactez-nous dès maintenant pour plus d’informations et étudier votre projet.
Saint-Urbain
TERRAIN ET MAISONMaison F4 (85 m²) en vente à Saint-UrbainPROCHE DE BREST – MAISON 4 PIÈCES NEUVEÀ vendre : à quelques kilomètres de la mer et à deux pas de Brest, Maisons de l’Avenir Guipavas vous propose cette maison de 4 pièces de plain-pied de 85 m² à Saint-Urbain (29800). Son intérieur dispose de trois chambres, d’une cuisine et d’une salle de bains.Le terrain du bien s’étend sur 589 m².Elle est proposée à l’achat pour 270 900 €.Prenez contact avec notre agence (ROPERS Jean : (Numéro supprimé)) pour tout renseignement sur cette maison, sur les démarches à suivre ou sur les modalités de vente. Maisons de l’Avenir Guipavas est là pour vous accompagner à toutes les étapes de l’achat.
Hôpital-Camfrout
TERRAIN ET MAISONDEVENEZ PROPRIÉTAIRE À HÔPITAL-CAMFROUT – MAISON NEUVE conforme à la dernière norme basse consommation RE-2020 !Vivez dans un cadre de vie privilégié à Hôpital-Camfrout, commune recherchée du Finistère, offrant un environnement calme et verdoyant tout en restant proche des commerces, des écoles et de toutes les commodités – un lieu idéal pour votre famille !Votre future maison comprend 😮 2 chambres spacieuses et lumineuseso Un grand salon-séjour traversant, ouvert sur le jardino Une cuisine moderne et fonctionnelleo Salle de bain et WC séparéso Le tout sur un terrain de 570 m², bien orientéLes atouts du projet 😮 Maison neuve RE2020, à faible consommation d’énergieo Plan personnalisable selon vos besoinso Environnement paisible et familialo Prestations de qualité, finitions soignéesAccession à la propriété possible avec ou sans apport, étude de financement gratuite.Photos à titre d’illustration (photos d’une de nos réalisations – non contractuelles).Nous trouvons l’adresse idéale parmi plus de 200 terrains disponibles pour votre future demeure.Ne manquez pas cette belle opportunité de devenir propriétaire d’une maison neuve moderne et économique à Hôpital-Camfrout !Contactez-nous dès maintenant pour découvrir les plans et étudier votre projet personnalisé.Armorique Immos, franchise d’un constructeur national de maisons individuelles depuis plus de 40 ans, propose en collaboration avec ses partenaires fonciers une sélection de terrains constructibles, selon disponibilité, pour la construction de maisons neuves définies par le constructeur, avec un contrat de construction de maison individuelle, dans le cadre de la loi du 19/12/1990.Prix net, hors frais notariés, d’enregistrement et de publicité foncière.Étude financière réalisée par nos partenaires en courtage (IOSB inscrit à l’Orias).
Saint-Urbain
TERRAINTerrain de 589 m² à vendre à Saint-UrbainA 20 Minutes de Brest et à 10 minutes de la RN 165. Petit lotissement, terrain bien exposé en vente de 589 m² à Saint-Urbain (29800). Il est proposé à l’achat pour 66 900 €. N’hésitez pas à prendre contact avec notre agence (ROPERS Jean : (Numéro supprimé)) pour plus d’informations sur ce terrain ou sur les modalités de vente.
Le Faou
TERRAIN ET MAISONLe Faou : maison de 5 pièces (127 m²) à vendrePROCHE CENTRE-VILLE – MAISON 5 PIÈCES NEUVEÀ vendre : à quelques kilomètres de la mer et à quelques kilomètres de Brest, nous vous proposons cette maison de 5 pièces de 127 m² proche du centre-ville du Faou (29590).C’est une maison de 2 niveaux. Elle offre quatre chambres, une cuisine et deux salles de bains. Cette maison est neuve.Le terrain de la propriété est de 407 m².Il y a l’École Élémentaire Publique du Faou à moins de 10 minutes à pied. Côté transports en commun, on trouve la gare Pont-de-Buis à moins de 10 minutes en voiture. La nationale N165 est accessible à 1 km. Il y a un tennis, des commerces, deux boulangeries, un supermarché et deux épiceries dans les environs.Elle est proposée à l’achat pour 341 364 €.Contactez Sami ALKIS pour toute information sur la maison, sur les démarches à suivre ou sur les modalités de vente.
Saint-Urbain
TERRAIN ET MAISONVENTE d’une maison F4 (75 m²) à Saint-UrbainPROCHE DE BREST – MAISON 4 PIÈCES NEUVEÀ vendre : à quelques kilomètres de la mer et à deux pas de Brest, votre agence Maisons de l’Avenir Guipavas est heureuse de vous présenter à Saint-Urbain (29800), cette maison de 4 pièces de 75 m². Son intérieur dispose de trois chambres, d’une cuisine et d’une salle de bains.Le terrain du bien s’étend sur 589 m².C’est une maison de 2 niveaux. Elle est à vendre pour la somme de 248 900 €.Contactez Jean ROPERS (tél : (Numéro supprimé)) pour toute question sur la maison. Maisons de l’Avenir Guipavas est là pour vous accompagner dans toutes vos démarches.
Saint-Urbain
TERRAIN ET MAISONMaison de 4 pièces (90 m²) en vente à Saint-UrbainMAISON 4 PIÈCES NEUVE – PROCHE DE BRESTSur le littoral et à 21 km de Brest, nous sommes heureux de vous présenter en vente à Saint-Urbain (29800), cette maison de 4 pièces de 90 m². Elle se divise en trois chambres, une cuisine et deux salles de bains.Le terrain de la propriété est de 589 m².Il s’agit d’une maison de 2 niveaux. Elle est proposée à l’achat pour 281 900 €.Contactez notre agence (Jean ROPERS : (Numéro supprimé)) pour tout renseignement sur cette maison. Maisons de l’Avenir Guipavas vous accompagne dans tous vos projets immobiliers et dans toutes vos démarches.
Le Faou
TERRAINVENTE d’un terrain de 407 m² au FaouPROCHE CENTRE-VILLE – PROCHE DE BRESTTerrain de 407 m² sur le littoral et à 29 km de Brest. Ce terrain se situe proche du centre-ville du Faou (29590). Il est exposé au sud-ouest. L’École Élémentaire Publique du Faou est implantée à moins de 10 minutes à pied. Côté transports en commun, il y a la gare Pont-de-Buis à moins de 10 minutes en voiture. On trouve un accès à la nationale N165 à 1 km. On trouve un tennis, des commerces, deux boulangeries, un supermarché et deux épiceries à quelques minutes du bien.Il est proposé à l’achat pour 49 000 €. Prenez contact avec notre agence (ALKIS Sami) pour tout renseignement sur ce terrain, sur les modalités de vente ou sur les démarches à suivre. Maisons de l’Avenir Guipavas est là pour vous accompagner à toutes les étapes de l’achat.
Saint-Urbain
TERRAIN ET MAISONMaison T5 (110 m²) en vente à Saint-UrbainMAISON 5 PIÈCES NEUVE – PROCHE DE BRESTÀ vendre : située sur le littoral et à quelques kilomètres de Brest, Maisons de l’Avenir Guipavas vous propose cette maison de 5 pièces de 110 m² à Saint-Urbain (29800). Elle compte quatre chambres, une cuisine et deux salles de bains.Le terrain de la maison est de 589 m².C’est une maison de 2 niveaux. Elle est proposée à l’achat pour 340 900 €.Prenez contact avec Jean ROPERS (tél : (Numéro supprimé)) pour plus de renseignements sur cette maison, sur les modalités de vente ou sur les démarches à suivre.
L’actualité immobilière à Hôpital-Camfrout
27/11/2023
02/11/2023
30/10/2023
20/10/2023
16/10/2023
16/10/2023