Maison à construire à Kersaint-Plabennec (29860)
Images
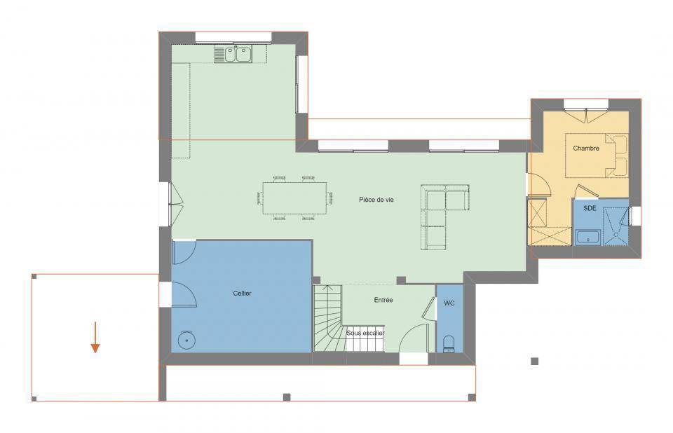
Description
📍 Terrain + Maison à vendre - Kersaint-Plabennec
Découvrez ce beau terrain viabilisé, idéalement situé dans un lotissement calme et arboré, sur la commune de Kersaint-Plabennec.
✅ Retour à la vente suite à un désistement - une belle opportunité à saisir rapidement !
✅ Proximité immédiate des voies express, alliant accessibilité et tranquillité
✅ Environnement agréable et verdoyant
💡 Nous vous proposons sur ce terrain un projet de maison de 140 m², au style traditionnel avec des touches contemporaines comprenant :
4 chambres dont une suite parentale 🛏️
2 salles de bains 🚿
Un vaste espace de vie de plus de 55 m² lumineux ☀️
Un grand garage 🚗
Une conception intégrée dans notre concept Maisons Bâti Activ, favorisant l'ensoleillement naturel et réduisant vos coûts énergétiques 🌿⚡
💰 Prix de l'opération Terrain + Maison : 413 000 €
Ce terrain et ce projet de maison n'attendent plus que vous pour devenir réalité 🏡.
📞 Contactez dès aujourd'hui Erwan TILLY - Conseiller Maisons de l'Avenir, afin d'organiser une visite et commencer à concevoir votre projet sur-mesure.
Logement susceptibles de vous intéresser
Nous vous proposons de découvrir aussi cette sélection de logements situés à moins de 10km de Kersaint-Plabennec et qui seraient susceptibles de vous intéresser.
Guipavas
TERRAIN ET MAISONVENTE d’une maison de 4 pièces (70 m²) à GuipavasCENTRE-VILLE – MAISON 4 PIÈCES NEUVEÀ quelques kilomètres de la mer et à quelques kilomètres de Brest, Maisons de l’Avenir Guipavas vous présente cette maison de 4 pièces de 70 m² et de 385 m² de terrain en centre-ville de Guipavas (29490).Il s’agit d’une maison de 2 niveaux. Son intérieur propose trois chambres, une cuisine et une salle de bains.Son prix de vente est de 269 000 €.Contactez notre agence (Jean ROPERS : (Numéro supprimé)) pour toute question sur la maison, sur les modalités de vente ou sur les démarches à suivre. Faites de vos projets immobiliers une réalité avec Maisons de l’Avenir Guipavas.
Plouédern
TERRAIN ET MAISONMaison de 5 pièces (105 m²) en vente à PlouédernMAISON 5 PIÈCES NEUVE – PROCHE DE BRESTEn vente à quelques kilomètres de la mer et à quelques kilomètres de Brest, nous vous proposons cette maison de 5 pièces de 105 m² à Plouédern (29800).Cette maison compte 2 niveaux. Son intérieur compte quatre chambres, une cuisine et deux salles de bains.Elle est proposée à l’achat pour 356 000 €.N’hésitez pas à prendre contact avec notre agence (ROPERS Jean : (Numéro supprimé)) pour tout renseignement sur cette maison ou sur les démarches à suivre. Concrétisez vos projets immobiliers avec Maisons de l’Avenir Guipavas.
Le Folgoët
TERRAIN ET MAISONDEVENEZ PROPRIÉTAIRE AU FOLGOËT – MAISON NEUVE conforme à la dernière norme basse consommation RE-2020 !Vivez dans un cadre de vie privilégié au Folgoët, commune recherchée du Finistère, offrant un environnement calme et verdoyant tout en restant proche des commerces, des écoles et de toutes les commodités – un lieu idéal pour votre famille !Votre future maison comprend 😮 2 chambres spacieuses et lumineuseso Un grand salon-séjour traversant, ouvert sur le jardino Une cuisine moderne et fonctionnelleo Salle de bain et WC séparéso Le tout sur un terrain de 338 m², bien orientéLes atouts du projet 😮 Maison neuve RE2020, à faible consommation d’énergieo Plan personnalisable selon vos besoinso Environnement paisible et familialo Prestations de qualité, finitions soignéesAccession à la propriété possible avec ou sans apport, étude de financement gratuite.Photos à titre d’illustration (photos d’une de nos réalisations – non contractuelles).Nous trouvons l’adresse idéale parmi plus de 200 terrains disponibles pour votre future demeure.Ne manquez pas cette belle opportunité de devenir propriétaire d’une maison neuve moderne et économique au Folgoët !Contactez-nous dès maintenant pour découvrir les plans et étudier votre projet personnalisé.Armorique Immos, franchise d’un constructeur national de maisons individuelles depuis plus de 40 ans, propose en collaboration avec ses partenaires fonciers une sélection de terrains constructibles, selon disponibilité, pour la construction de maisons neuves définies par le constructeur, avec un contrat de construction de maison individuelle, dans le cadre de la loi du 19/12/1990.Prix net, hors frais notariés, d’enregistrement et de publicité foncière.Étude financière réalisée par nos partenaires en courtage (IOSB inscrit à l’Orias).
Kersaint-Plabennec
TERRAIN ET MAISON📍 Terrain + Maison à vendre – Kersaint-PlabennecDécouvrez ce beau terrain viabilisé, idéalement situé dans un lotissement calme et arboré, sur la commune de Kersaint-Plabennec.✅ Retour à la vente suite à un désistement – une belle opportunité à saisir rapidement !✅ Proximité immédiate des voies express, alliant accessibilité et tranquillité✅ Environnement agréable et verdoyant💡 Nous vous proposons sur ce terrain un projet de maison de plein pied 115 m², au style contemporain. comprenant :3 chambres dont une suite parentale 🛏️2 salles de bains 🚿Un vaste espace de vie de plus de 45 m² lumineux ☀️Un grand garage 🚗Une conception intégrée dans notre concept Maisons Bâti Activ, favorisant l’ensoleillement naturel et réduisant vos coûts énergétiques 🌿⚡💰 Prix de l’opération Terrain + Maison : 325 000 €Ce terrain et ce projet de maison n’attendent plus que vous pour devenir réalité 🏡.📞 Contactez dès aujourd’hui Erwan TILLY – Conseiller Maisons de l’Avenir, afin d’organiser une visite et commencer à concevoir votre projet sur-mesure.
Guipavas
TERRAIN ET MAISON📍 À vendre – Terrain constructible 758 m² – Secteur très prisé de Coataudon (Guipavas)Prix : 180 000 €Situé au coeur du recherché quartier de Coataudon à Guipavas, ce superbe terrain de 758 m², issu d’une division parcellaire, offre une belle exposition dans un cadre verdoyant. Un bien rare sur le marché, idéal pour concrétiser un projet de construction dans un environnement calme et prisé.👉 Nous vous proposons également un exemple de projet style architectural :Une maison de 143 m², pensée dans le cadre de notre concept Bâti Activ, optimisée pour favoriser l’apport solaire naturel et réduire les coûts énergétiques.Elle comprend :4 chambres, dont une suite au rez-de-chaussée,Un grand espace de vie lumineux de plus de 50 m²,2 salles de bains,Un grand garage,Une conception pensée pour le bien-être, la performance énergétique et le confort au quotidien.OPERATION T + M : 540000€📞 Intéressé ?Contactez Erwan TILLY – Maisons de l’Avenir, pour découvrir ce projet et commencer à concevoir vos propres plans personnalisés.
Plouédern
TERRAIN ET MAISONVENTE : maison de 4 pièces (90 m²) à PlouédernPROCHE DE BREST – MAISON 4 PIÈCES NEUVEEn vente sur le littoral et à 20 km de Brest, nous sommes ravis de vous présenter cette maison de 4 pièces de plain-pied de 90 m² à Plouédern (29800).Son intérieur compte trois chambres, une cuisine et une salle de bains. La maison est neuve.Le terrain de la propriété s’étend sur 577 m².Son prix de vente est de 323 000 €.Contactez Jean ROPERS ((Numéro supprimé)) pour obtenir de plus amples renseignements sur cette maison ou sur les modalités de vente.
Guipavas
TERRAIN📍 À vendre – Terrain constructible 758 m² – Secteur très prisé de Coataudon (Guipavas)Prix : 180 000 €Situé au coeur du recherché quartier de Coataudon à Guipavas, venez découvrir ce superbe terrain de 758 m², issu d’une division parcellaire. Très rare sur le marché, il bénéficie d’une exposition idéale et s’inscrit dans un environnement verdoyant, offrant calme et qualité de vie.Ce terrain constitue une opportunité unique pour concrétiser votre projet de construction sur mesure dans un secteur recherché et dynamique.📞 Intéressé ?Contactez Erwan TILLY – Maisons de l’Avenir, pour être accompagné dès aujourd’hui dans l’étude et la conception de vos plans de maison.
Guipavas
TERRAIN ET MAISON📍 Terrain à vendre – GuipvasDécouvrez ce beau terrain, idéalement situé, issu d’une division, sur la commune de Guipavas.- une belle opportunité à saisir rapidement !✅ Proximité immédiate des voies express, alliant accessibilité et coté urbain.✅ Environnement agréable et verdoyant💰 Prix : 86 900 €Ce terrain n’attend plus que votre projet de construction 🏡.💡 Nous vous proposons sur ce terrain un projet de maison de 121 m², au style contemporain et traditionnel comprenant :4 chambres dont une suite parentale 🛏️2 salles de bains 🚿Un vaste espace de vie de plus de 45 m² lumineux ☀️Un grand garage 🚗Une conception intégrée dans notre concept Maisons Bâti Activ, favorisant l’ensoleillement naturel et réduisant vos coûts énergétiques 🌿⚡💰 Prix de l’opération Terrain + Maison : 375 000 €Ce terrain et ce projet de maison n’attendent plus que vous pour devenir réalité 🏡.Si ce bien vous intéresse, contactez dès aujourd’hui Erwan TILLY – Conseiller Maisons de l’Avenir, pour organiser une visite et commencer à concevoir vos futurs plans de maison.
Guipavas
TERRAIN ET MAISON📍 À vendre – Terrain constructible 758 m² – Secteur très prisé de Coataudon (Guipavas)Prix : 180 000 €Situé au coeur du recherché quartier de Coataudon à Guipavas, ce superbe terrain de 758 m², issu d’une division parcellaire, offre une belle exposition dans un cadre verdoyant. Un bien rare sur le marché, idéal pour concrétiser un projet de construction dans un environnement calme et prisé.👉 Nous vous proposons également un exemple de projet :Une maison de 150 m², pensée dans le cadre de notre concept Bâti Activ, optimisée pour favoriser l’apport solaire naturel et réduire les coûts énergétiques.Elle comprend :5 chambres, dont une suite au rez-de-chaussée,Un grand espace de vie lumineux de plus de 55 m²,3 salles de bains,Un grand garage,Une conception pensée pour le bien-être, la performance énergétique et le confort au quotidien.OPERATION T + M : 550000€📞 Intéressé ?Contactez Erwan TILLY – Maisons de l’Avenir, pour découvrir ce projet et commencer à concevoir vos propres plans personnalisés.
L’actualité immobilière à Kersaint-Plabennec
27/11/2023
02/11/2023
30/10/2023
20/10/2023
16/10/2023
16/10/2023