Maison à construire à Lampaul-Ploudalmézeau (29830)
Images
Description
📍 À VENDRE - Terrain constructible 622 m² à Lampaul-Ploudalmézeau (99800€)
À saisir rapidement !
Dans un petit lotissement intimiste de seulement 4 lots, découvrez ce beau terrain constructible de 622 m², situé à 1 km de la plage des Trois Moutons.
🌊 Atouts du terrain :
Exposition idéale avec vue mer dégagée
Environnement calme et préservé 🌿
Dernier lot disponible - libre de constructeur
Cadre parfait pour une résidence principale ou secondaire
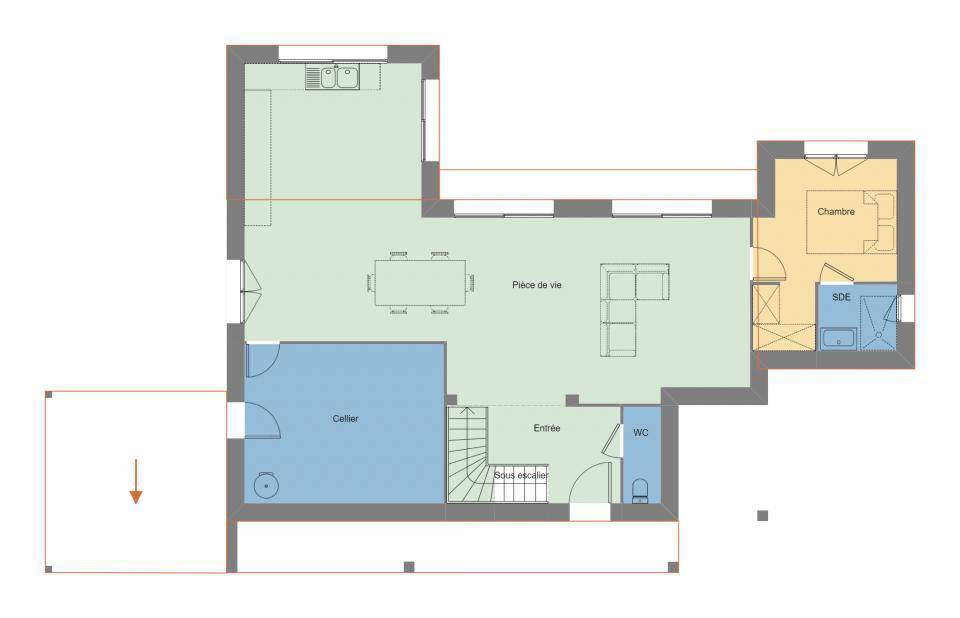
💡 Nous vous proposons sur ce terrain un projet de maison de 140 m², au style traditionnel avec des touches contemporaines comprenant :
4 chambres dont une suite parentale 🛏️
2 salles de bains 🚿
Un vaste espace de vie de plus de 55 m² lumineux ☀️
Un grand garage 🚗
Une conception intégrée dans notre concept Maisons Bâti Activ, favorisant l'ensoleillement naturel et réduisant vos coûts énergétiques 🌿⚡
💰 Prix de l'opération Terrain + Maison : 450 000 €
Ne tardez pas, cette opportunité rare ne restera pas longtemps sur le marché !
📞 Contactez Erwan TILLY dès maintenant pour plus d'informations ou organiser une visite sur place.
Maisons de l'avenir
Logement susceptibles de vous intéresser
Nous vous proposons de découvrir aussi cette sélection de logements situés à moins de 10km de Lampaul-Ploudalmézeau et qui seraient susceptibles de vous intéresser.
Lampaul-Ploudalmézeau
TERRAIN ET MAISON📍 À VENDRE – Terrain constructible 622 m² à Lampaul-Ploudalmézeau (99800€)À saisir rapidement !Dans un petit lotissement intimiste de seulement 4 lots, découvrez ce beau terrain constructible de 622 m², situé à 1 km de la plage des Trois Moutons.🌊 Atouts du terrain :Exposition idéale avec vue mer dégagéeEnvironnement calme et préservé 🌿Dernier lot disponible – libre de constructeurCadre parfait pour une résidence principale ou secondaire💡 Nous vous proposons sur ce terrain un projet de maison de 93 m², au style contemporain comprenant :4 chambres dont une suite parentale 🛏️1 salles de bains avec douche et baignoire 🚿Un vaste espace de vie de plus de 35 m² lumineux ☀️Un grand garage 🚗Une conception intégrée dans notre concept Maisons Bâti Activ, favorisant l’ensoleillement naturel et réduisant vos coûts énergétiques 🌿⚡💰 Prix de l’opération Terrain + Maison : 330 000 €Ne tardez pas, cette opportunité rare ne restera pas longtemps sur le marché !📞 Contactez Erwan TILLY dès maintenant pour plus d’informations ou organiser une visite sur place.Maisons de l’avenir
Lampaul-Ploudalmézeau
TERRAIN ET MAISON📍 À VENDRE – Terrain constructible 622 m² à Lampaul-Ploudalmézeau (99800€)À saisir rapidement !Dans un petit lotissement intimiste de seulement 4 lots, découvrez ce beau terrain constructible de 622 m², situé à 1 km de la plage des Trois Moutons.🌊 Atouts du terrain :Exposition idéale avec vue mer dégagéeEnvironnement calme et préservé 🌿Dernier lot disponible – libre de constructeurCadre parfait pour une résidence principale ou secondaire💡 Nous vous proposons sur ce terrain un projet de maison de 140 m², au style traditionnel avec des touches contemporaines comprenant :4 chambres dont une suite parentale 🛏️2 salles de bains 🚿Un vaste espace de vie de plus de 55 m² lumineux ☀️Un grand garage 🚗Une conception intégrée dans notre concept Maisons Bâti Activ, favorisant l’ensoleillement naturel et réduisant vos coûts énergétiques 🌿⚡💰 Prix de l’opération Terrain + Maison : 450 000 €Ne tardez pas, cette opportunité rare ne restera pas longtemps sur le marché !📞 Contactez Erwan TILLY dès maintenant pour plus d’informations ou organiser une visite sur place.Maisons de l’avenir
Lampaul-Ploudalmézeau
TERRAIN ET MAISON📍 À VENDRE – Terrain constructible 622 m² à Lampaul-Ploudalmézeau (99800€)À saisir rapidement !Dans un petit lotissement intimiste de seulement 4 lots, découvrez ce beau terrain constructible de 622 m², situé à 1 km de la plage des Trois Moutons.🌊 Atouts du terrain :Exposition idéale avec vue mer dégagéeEnvironnement calme et préservé 🌿Dernier lot disponible – libre de constructeurCadre parfait pour une résidence principale ou secondaire💡 Nous vous proposons sur ce terrain un projet de maison de 100 m² de plein pied, au style contemporain comprenant :3 chambres dont une suite parentale 🛏️1 salles de bains avec douche et baignoire 🚿Un vaste espace de vie de plus de 45 m² lumineux ☀️Un grand garage 🚗Une conception intégrée dans notre concept Maisons Bâti Activ, favorisant l’ensoleillement naturel et réduisant vos coûts énergétiques 🌿⚡💰 Prix de l’opération Terrain + Maison : 340 000 €Ne tardez pas, cette opportunité rare ne restera pas longtemps sur le marché !📞 Contactez Erwan TILLY dès maintenant pour plus d’informations ou organiser une visite sur place.Maisons de l’avenir
Lampaul-Ploudalmézeau
TERRAIN📍 À VENDRE – Terrain constructible 622 m² à Lampaul-Ploudalmézeau (99800€)À saisir rapidement !Dans un petit lotissement intimiste de seulement 4 lots, découvrez ce beau terrain constructible de 622 m², situé à 1 km de la plage des Trois Moutons.🌊 Atouts du terrain :Exposition idéale avec vue mer dégagéeEnvironnement calme et préservé 🌿Dernier lot disponible – libre de constructeurCadre parfait pour une résidence principale ou secondaireNe tardez pas, cette opportunité rare ne restera pas longtemps sur le marché !📞 Contactez Erwan TILLY dès maintenant pour plus d’informations ou organiser une visite sur place.Maisons de l’avenir
Lampaul-Ploudalmézeau
TERRAIN ET MAISON📍 À VENDRE – Terrain constructible 622 m² à Lampaul-Ploudalmézeau (99800€)À saisir rapidement !Dans un petit lotissement intimiste de seulement 4 lots, découvrez ce beau terrain constructible de 622 m², situé à 1 km de la plage des Trois Moutons.🌊 Atouts du terrain :Exposition idéale avec vue mer dégagéeEnvironnement calme et préservé 🌿Dernier lot disponible – libre de constructeurCadre parfait pour une résidence principale ou secondaire💡 Nous vous proposons sur ce terrain un projet de maison de 150 m², au style contemporain comprenant :4 chambres dont une suite parentale 🛏️2 salles de bains 🚿Un vaste espace de vie de plus de 55 m² lumineux ☀️Un grand garage 🚗Une conception intégrée dans notre concept Maisons Bâti Activ, favorisant l’ensoleillement naturel et réduisant vos coûts énergétiques 🌿⚡💰 Prix de l’opération Terrain + Maison : 470 000 €Ne tardez pas, cette opportunité rare ne restera pas longtemps sur le marché !📞 Contactez Erwan TILLY dès maintenant pour plus d’informations ou organiser une visite sur place.Maisons de l’avenir
Landunvez
TERRAINDEVENEZ PROPRIÉTAIRE D’UN TERRAIN À LANDUNVEZ !Vivez dans un cadre de vie privilégié à Landunvez, charmante commune du Finistère nord, appréciée pour son littoral, son environnement naturel exceptionnel et sa qualité de vie.Profitez du calme de la campagne côtière, tout en restant proche des commerces, écoles et services – un environnement idéal pour votre futur projet ! Votre terrain comprend 😮 Une surface de 438 m², bien orientéeo Possibilité de construire la maison de vos rêves selon vos envies Les atouts du projet 😮 Terrain viabilisé ou proche des réseauxo Cadre de vie paisible, à deux pas du littoral nordo Liberté de construction, avec plan personnalisable selon vos besoins Prix indiqué hors frais Photos non contractuelles à titre d’illustration Accession possible avec ou sans apportNe manquez pas cette opportunité unique de devenir propriétaire d’un terrain à Landunvez et de réaliser votre projet sur-mesure ! Contactez-nous dès maintenant pour plus d’informations et étudier votre projet.
Plouguin
TERRAINDEVENEZ PROPRIÉTAIRE D’UN TERRAIN À PLOUGUIN !Vivez dans un cadre de vie privilégié à Plouguin, charmante commune dynamique du Nord-Finistère, idéalement située entre Ploudalmézeau et Brest.Profitez du calme de la campagne tout en restant proche des commerces, écoles et services – un environnement idéal pour votre futur projet ! Votre terrain comprend 😮 Une surface de 330 m², bien orientéeo Possibilité de construire la maison de vos rêves selon vos envies Les atouts du projet 😮 Terrain viabilisé ou proche des réseauxo Cadre de vie paisible, à proximité de Ploudalmézeau, Brest et du littoral nordo Liberté de construction, avec plan personnalisable selon vos besoins Prix indiqué hors frais Photos non contractuelles à titre d’illustration Accession possible avec ou sans apportNe manquez pas cette opportunité unique de devenir propriétaire d’un terrain à Plouguin et de réaliser votre projet sur-mesure ! Contactez-nous dès maintenant pour plus d’informations et étudier votre projet.
Lannilis
TERRAINDEVENEZ PROPRIÉTAIRE D’UN TERRAIN À LANNILIS !Vivez dans un cadre de vie privilégié à Lannilis, commune dynamique du Nord-Finistère, idéalement située entre Lesneven et les magnifiques plages du littoral.Profitez d’un environnement paisible, proche des commerces, écoles et services – parfait pour concrétiser votre futur projet ! Votre terrain comprend 😮 Une surface de 350 m², bien orientéeo Possibilité de construire la maison qui vous ressemble, selon vos envies Les atouts du projet 😮 Terrain viabilisé ou proche des réseauxo Cadre de vie calme, à proximité du littoral nord et des commoditéso Liberté de construction, avec plan personnalisable selon vos besoins Prix indiqué hors frais Photos non contractuelles à titre d’illustration Accession possible avec ou sans apportNe manquez pas cette opportunité unique de devenir propriétaire d’un terrain à Lannilis et de réaliser votre projet sur-mesure ! Contactez-nous dès maintenant pour plus d’informations et étudier votre projet.
Plouguin
TERRAINSitué au coeur du bourg de Plouguin, découvrez ce terrain de 337 m2, idéal pour un projet de maison individuelle .Le terrain bénéficie d’un accès privatif via une zone commune en indivision de 167 m2, offrant une arrivée confortable et sécurisée sur la parcelle.Le lot est borné et à viabilité.Les points forts : – centre bourg, commerces et services à pied – parcelle bien exposéeN’hésitez pas à revenir vers moi rapidement Les honoraires d’agence sont à la charge de l’acquéreur, soit 17,24% TTC du prix hors honoraires.Les informations sur les risques auxquels ce bien est exposé sont disponibles sur le site Géorisques : www. georisques. gouv. fr.Réseau Immobilier CAPIFRANCE – Votre agent commercial (RSAC N(Numéro supprimé) – Greffe de BREST) Patricia BÉNARDEAU Entrepreneur Individuel à Responsabilité Limitée (Numéro supprimé) – Réf.932808
L’actualité immobilière à Lampaul-Ploudalmézeau
27/11/2023
02/11/2023
30/10/2023
20/10/2023
16/10/2023
16/10/2023