Maison à construire à Landerneau (29800)
Images
Description
Landerneau : maison de 5 pièces (102 m²) en vente
PROCHE CENTRE-VILLE - MAISON 5 PIÈCES NEUVE
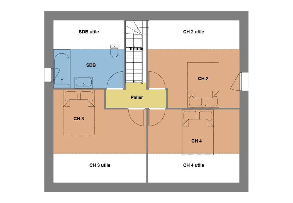
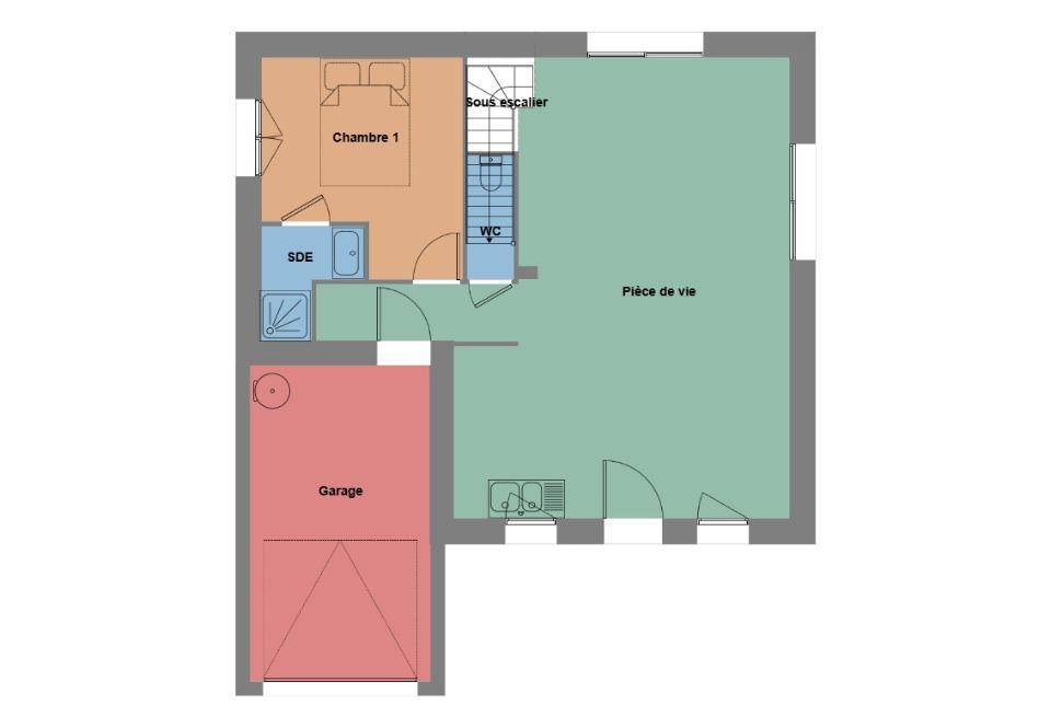
À vendre : sur le littoral et à quelques kilomètres de Brest, Maisons de l'Avenir Guipavas vous présente cette maison de 5 pièces de 102 m² et de 335 m² de terrain proche du centre-ville de Landerneau (29800). Son intérieur dispose de quatre chambres, d'une cuisine et de deux salles de bains.
Cette maison comporte 2 niveaux. Elle est neuve.
Tous les types d'établissements scolaires (maternelle, élémentaire et secondaire) sont implantés à moins de 10 minutes à pied, tout comme une structure d'accueil pour la petite enfance. Côté transports en commun, il y a la gare Landerneau à quelques pas du bien. Les nationales N12 et N165 sont accessibles à moins de 9 km. On trouve un tennis, des commerces, des boulangeries, un supermarché, un bureau de poste et une poissonnerie à quelques minutes. Enfin, le marché Place de Gaulle anime le quartier.
Elle est proposée à l'achat pour 287 823 €.
Contactez Sami ALKIS pour toute question sur la maison. Maisons de l'Avenir Guipavas est là pour vous accompagner dans tous vos projets immobiliers.
Logement susceptibles de vous intéresser
Nous vous proposons de découvrir aussi cette sélection de logements situés à moins de 10km de Landerneau et qui seraient susceptibles de vous intéresser.
Plouédern
TERRAIN ET MAISONMaison de 5 pièces (105 m²) en vente à PlouédernMAISON 5 PIÈCES NEUVE – PROCHE DE BRESTEn vente à quelques kilomètres de la mer et à quelques kilomètres de Brest, nous vous proposons cette maison de 5 pièces de 105 m² à Plouédern (29800).Cette maison compte 2 niveaux. Son intérieur compte quatre chambres, une cuisine et deux salles de bains.Elle est proposée à l’achat pour 356 000 €.N’hésitez pas à prendre contact avec notre agence (ROPERS Jean : (Numéro supprimé)) pour tout renseignement sur cette maison ou sur les démarches à suivre. Concrétisez vos projets immobiliers avec Maisons de l’Avenir Guipavas.
Kersaint-Plabennec
TERRAIN ET MAISON📍 Terrain + Maison à vendre – Kersaint-PlabennecDécouvrez ce beau terrain viabilisé, idéalement situé dans un lotissement calme et arboré, sur la commune de Kersaint-Plabennec.✅ Retour à la vente suite à un désistement – une belle opportunité à saisir rapidement !✅ Proximité immédiate des voies express, alliant accessibilité et tranquillité✅ Environnement agréable et verdoyant💡 Nous vous proposons sur ce terrain un projet de maison de plein pied 115 m², au style contemporain. comprenant :3 chambres dont une suite parentale 🛏️2 salles de bains 🚿Un vaste espace de vie de plus de 45 m² lumineux ☀️Un grand garage 🚗Une conception intégrée dans notre concept Maisons Bâti Activ, favorisant l’ensoleillement naturel et réduisant vos coûts énergétiques 🌿⚡💰 Prix de l’opération Terrain + Maison : 325 000 €Ce terrain et ce projet de maison n’attendent plus que vous pour devenir réalité 🏡.📞 Contactez dès aujourd’hui Erwan TILLY – Conseiller Maisons de l’Avenir, afin d’organiser une visite et commencer à concevoir votre projet sur-mesure.
Saint-Urbain
TERRAIN ET MAISONMaison F4 (85 m²) en vente à Saint-UrbainPROCHE DE BREST – MAISON 4 PIÈCES NEUVEÀ vendre : à quelques kilomètres de la mer et à deux pas de Brest, Maisons de l’Avenir Guipavas vous propose cette maison de 4 pièces de plain-pied de 85 m² à Saint-Urbain (29800). Son intérieur dispose de trois chambres, d’une cuisine et d’une salle de bains.Le terrain du bien s’étend sur 589 m².Elle est proposée à l’achat pour 270 900 €.Prenez contact avec notre agence (ROPERS Jean : (Numéro supprimé)) pour tout renseignement sur cette maison, sur les démarches à suivre ou sur les modalités de vente. Maisons de l’Avenir Guipavas est là pour vous accompagner à toutes les étapes de l’achat.
Saint-Urbain
TERRAINTerrain de 589 m² à vendre à Saint-UrbainA 20 Minutes de Brest et à 10 minutes de la RN 165. Petit lotissement, terrain bien exposé en vente de 589 m² à Saint-Urbain (29800). Il est proposé à l’achat pour 66 900 €. N’hésitez pas à prendre contact avec notre agence (ROPERS Jean : (Numéro supprimé)) pour plus d’informations sur ce terrain ou sur les modalités de vente.
Plouédern
TERRAIN ET MAISONVENTE : maison de 4 pièces (90 m²) à PlouédernPROCHE DE BREST – MAISON 4 PIÈCES NEUVEEn vente sur le littoral et à 20 km de Brest, nous sommes ravis de vous présenter cette maison de 4 pièces de plain-pied de 90 m² à Plouédern (29800).Son intérieur compte trois chambres, une cuisine et une salle de bains. La maison est neuve.Le terrain de la propriété s’étend sur 577 m².Son prix de vente est de 323 000 €.Contactez Jean ROPERS ((Numéro supprimé)) pour obtenir de plus amples renseignements sur cette maison ou sur les modalités de vente.
Saint-Urbain
TERRAIN ET MAISONVENTE d’une maison F4 (75 m²) à Saint-UrbainPROCHE DE BREST – MAISON 4 PIÈCES NEUVEÀ vendre : à quelques kilomètres de la mer et à deux pas de Brest, votre agence Maisons de l’Avenir Guipavas est heureuse de vous présenter à Saint-Urbain (29800), cette maison de 4 pièces de 75 m². Son intérieur dispose de trois chambres, d’une cuisine et d’une salle de bains.Le terrain du bien s’étend sur 589 m².C’est une maison de 2 niveaux. Elle est à vendre pour la somme de 248 900 €.Contactez Jean ROPERS (tél : (Numéro supprimé)) pour toute question sur la maison. Maisons de l’Avenir Guipavas est là pour vous accompagner dans toutes vos démarches.
Saint-Urbain
TERRAIN ET MAISONMaison de 4 pièces (90 m²) en vente à Saint-UrbainMAISON 4 PIÈCES NEUVE – PROCHE DE BRESTSur le littoral et à 21 km de Brest, nous sommes heureux de vous présenter en vente à Saint-Urbain (29800), cette maison de 4 pièces de 90 m². Elle se divise en trois chambres, une cuisine et deux salles de bains.Le terrain de la propriété est de 589 m².Il s’agit d’une maison de 2 niveaux. Elle est proposée à l’achat pour 281 900 €.Contactez notre agence (Jean ROPERS : (Numéro supprimé)) pour tout renseignement sur cette maison. Maisons de l’Avenir Guipavas vous accompagne dans tous vos projets immobiliers et dans toutes vos démarches.
Kersaint-Plabennec
TERRAIN ET MAISON📍 Terrain + Maison à vendre – Kersaint-PlabennecDécouvrez ce beau terrain viabilisé, idéalement situé dans un lotissement calme et arboré, sur la commune de Kersaint-Plabennec.✅ Retour à la vente suite à un désistement – une belle opportunité à saisir rapidement !✅ Proximité immédiate des voies express, alliant accessibilité et tranquillité✅ Environnement agréable et verdoyant💡 Nous vous proposons sur ce terrain un projet de maison de plein pied 80 m², au style traditionnel. comprenant :3 chambres dont une suite parentale 🛏️2 salles de bains 🚿Un vaste espace de vie de plus de 35 m² lumineux ☀️Un grand garage 🚗Une conception intégrée dans notre concept Maisons Bâti Activ, favorisant l’ensoleillement naturel et réduisant vos coûts énergétiques 🌿⚡💰 Prix de l’opération Terrain + Maison : 285 000 €Ce terrain et ce projet de maison n’attendent plus que vous pour devenir réalité 🏡.📞 Contactez dès aujourd’hui Erwan TILLY – Conseiller Maisons de l’Avenir, afin d’organiser une visite et commencer à concevoir votre projet sur-mesure.
Kersaint-Plabennec
TERRAIN📍 Terrain à vendre – Kersaint-PlabennecDécouvrez ce beau terrain viabilisé, idéalement situé dans un lotissement calme et arboré, sur la commune de Kersaint-Plabennec.✅ Retour à la vente suite à un désistement – une belle opportunité à saisir rapidement !✅ Proximité immédiate des voies express, alliant accessibilité et tranquillité✅ Environnement agréable et verdoyant💰 Prix : 90 000 €Ce terrain n’attend plus que votre projet de construction 🏡.Si ce bien vous intéresse, contactez dès aujourd’hui Erwan TILLY – Conseiller Maisons de l’Avenir, pour organiser une visite et commencer à concevoir vos futurs plans de maison.
L’actualité immobilière à Landerneau
27/11/2023
02/11/2023
30/10/2023
20/10/2023
16/10/2023
16/10/2023