Maison à construire à Landivisiau (29400)
Images
Description
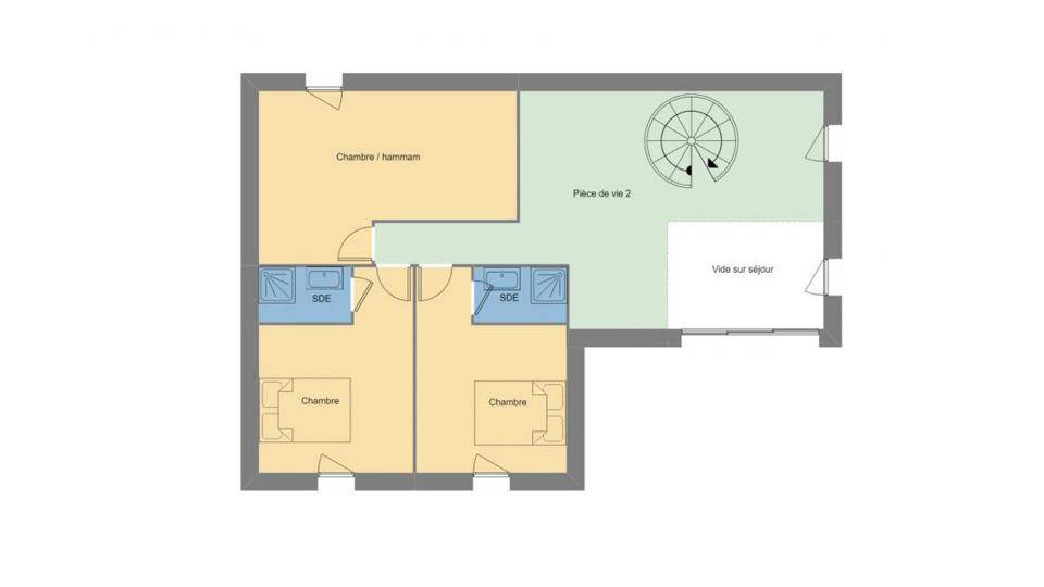
Maison T6 (163 m²) à vendre à Landivisiau
MAISON 6 PIÈCES NEUVE
En vente : localisée sur le littoral, à Landivisiau (29400), Maisons de l'Avenir Guipavas vous propose cette maison de 6 pièces de 163 m² et de 1 444 m² de terrain. Elle comporte cinq chambres, une cuisine et deux salles de bains.
Il s'agit d'une maison de 2 niveaux. Elle est neuve.
Elle est à vendre pour la somme de 565 100 €.
Prenez contact avec notre agence (CAGNARD Aurélie : (Numéro supprimé)) pour toute information sur cette maison.
Logement susceptibles de vous intéresser
Nous vous proposons de découvrir aussi cette sélection de logements situés à moins de 10km de Landivisiau et qui seraient susceptibles de vous intéresser.
Plouzévédé
TERRAIN ET MAISONVous rêvez d’une maison neuve, moderne et adaptée à vos besoins ? Nous vous proposons un projet de construction comprenant :- Une maison individuelle comprenant : 3 chambres spacieuses, un grand salon lumineux, une cuisine fonctionnelle, WC , salle(s) de bain/d’eau sur un terrain de 400m², idéalement situé à PLOUZEVEDE.Profitez d’une maison sur-mesure, conçue pour votre confort et votre bien-être ! Maison RE2020 à faible consommation d’énergies. Prix hors frais. Photos non contractuelles et illustratives. Possibilité d’accession à la propriété avec un CDI (hors CAF, RSA et Pôle Emploi). Pour tout renseignement supplémentaire, contactez nous au (Numéro supprimé).
Landivisiau
TERRAINJoli terrain sur LANDIVISIAU, plat et idéalement situé, parfait pour réaliser votre projet de construction avec notre entreprise.- Superficie : 628m²- Terrain : Plat et facile à aménager- Emplacement : Idéalement situé dans un cadre agréable- Prix Hors fraisNe manquez pas cette opportunité !Pour plus d’informations, contactez nous au (Numéro supprimé).
Plouvorn
TERRAINJoli terrain sur PLOUVORN, plat et idéalement situé, parfait pour réaliser votre projet de construction avec notre entreprise.- Superficie : 367m²- Terrain : Plat et facile à aménager- Emplacement : Idéalement situé dans un cadre agréable- Prix Hors fraisNe manquez pas cette opportunité !Pour plus d’informations, contactez nous au (Numéro supprimé).
Saint-Sauveur
TERRAIN ET MAISONVous rêvez d’une maison neuve, moderne et adaptée à vos besoins ? Nous vous proposons un projet de construction comprenant :- Une maison individuelle comprenant : 3 chambres spacieuses, un grand salon lumineux, une cuisine fonctionnelle, WC , salle(s) de bain/d’eau sur un terrain de 414 m², idéalement situé à SAINT SAUVEUR.Profitez d’une maison sur-mesure, conçue pour votre confort et votre bien-être ! Maison RE2020 à faible consommation d’énergies. Prix hors frais. Photos non contractuelles et illustratives. Possibilité d’accession à la propriété avec un CDI (hors CAF, RSA et Pôle Emploi). Pour tout renseignement supplémentaire, contactez nous au (Numéro supprimé).
Guiclan
TERRAIN ET MAISONVous rêvez d’une maison neuve, moderne et adaptée à vos besoins ? Nous vous proposons un projet de construction comprenant :- Une maison individuelle comprenant : 3 chambres spacieuses, un grand salon lumineux, une cuisine fonctionnelle, WC , salle(s) de bain/d’eau sur un terrain de 551 m², idéalement situé à GUICLAN.Profitez d’une maison sur-mesure, conçue pour votre confort et votre bien-être ! Maison RE2020 à faible consommation d’énergies. Prix hors frais. Photos non contractuelles et illustratives. Possibilité d’accession à la propriété avec un CDI (hors CAF, RSA et Pôle Emploi). Pour tout renseignement supplémentaire, contactez nous au (Numéro supprimé).
Guiclan
TERRAINJoli terrain sur GUICLAN, plat et idéalement situé, parfait pour réaliser votre projet de construction avec notre entreprise.- Superficie : 520 m²- Terrain : Plat et facile à aménager- Emplacement : Idéalement situé dans un cadre agréable- Prix Hors fraisNe manquez pas cette opportunité !Pour plus d’informations, contactez nous au (Numéro supprimé).
Lampaul-Guimiliau
TERRAINJoli terrain sur LAMPAUL GUIMILIAU, plat et idéalement situé, parfait pour réaliser votre projet de construction avec notre entreprise.- Superficie : 417 m²- Terrain : Plat et facile à aménager- Emplacement : Idéalement situé dans un cadre agréable- Prix Hors fraisNe manquez pas cette opportunité !Pour plus d’informations, contactez nous au (Numéro supprimé).
Plouzévédé
TERRAINJoli terrain sur PLOUZEVEDE, plat et idéalement situé, parfait pour réaliser votre projet de construction avec notre entreprise.- Superficie : 544 m²- Terrain : Plat et facile à aménager- Emplacement : Idéalement situé dans un cadre agréable- Prix Hors fraisNe manquez pas cette opportunité !Pour plus d’informations, contactez nous au (Numéro supprimé).
Plougourvest
TERRAINVENTE : terrain de 2 443 m² à PlougourvestÀ quelques kilomètres de Landivisiau, à Plougourvest (29400), grand terrain. Réalisez votre résidence principale ou secondaire.Il est à vendre pour la somme de 96 000 €. Contactez Aurélie CAGNARD (tél : (Numéro supprimé)) pour plus d’informations sur ce terrain ou sur les démarches à suivre. Maisons de l’Avenir Guipavas vous accompagne à toutes les étapes de l’achat et dans tous vos projets immobiliers.
L’actualité immobilière à Landivisiau
27/11/2023
02/11/2023
30/10/2023
20/10/2023
16/10/2023
16/10/2023