Maison à construire à Lanhouarneau (29430)
Images
Description
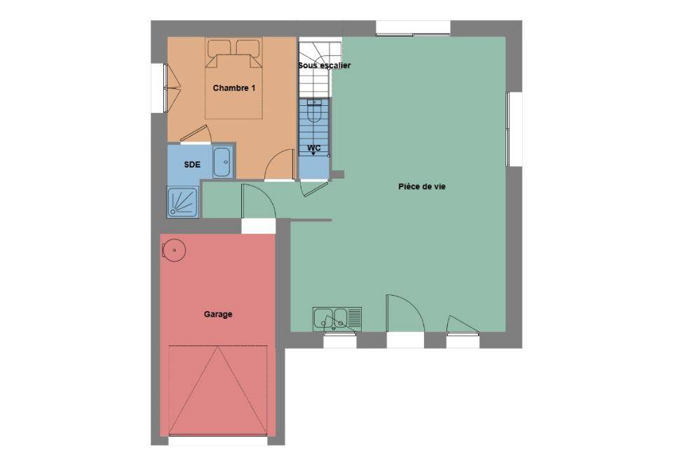
Maison T5 (102 m²) en vente à Lanhouarneau
PROCHE CENTRE-VILLE - MAISON 5 PIÈCES NEUVE
À vendre : localisée à quelques kilomètres de la mer et à 29 km de Brest, proche du centre-ville de Lanhouarneau (29430), nous vous présentons cette maison de 5 pièces de 102 m² et de 638 m² de terrain. Son intérieur dispose de quatre chambres, d'une cuisine et de deux salles de bains.
Il s'agit d'une maison de 2 niveaux. Elle est neuve.
Il y a l'École Primaire Privée Sainte Thérèse à moins de 10 minutes à pied. La nationale N12 est accessible à 10 km. On trouve une bibliothèque, une boulangerie et une épicerie dans les environs.
Elle est proposée à l'achat pour 228 954 €.
Contactez notre agence (Sami ALKIS) pour toute question sur la maison ou sur les démarches à suivre. Maisons de l'Avenir Guipavas est là pour vous accompagner dans tous vos projets immobiliers.
Logement susceptibles de vous intéresser
Nous vous proposons de découvrir aussi cette sélection de logements situés à moins de 10km de Lanhouarneau et qui seraient susceptibles de vous intéresser.
Lanhouarneau
TERRAINVENTE d’un terrain de 638 m² à LanhouarneauPROCHE CENTRE-VILLE – PROCHE DE BRESTÀ vendre sur le littoral et à deux pas de Brest à Lanhouarneau (29430), grand terrain. Réalisez-y la maison de vos rêves. Il bénéficie d’une exposition sud-ouest. Ce terrain est situé non loin du centre-ville. Il y a l’École Primaire Privée Sainte Thérèse à moins de 10 minutes à pied. La nationale N12 est accessible à 10 km. On trouve une bibliothèque, une boulangerie et une épicerie à quelques minutes.Il est à vendre pour la somme de 35 000 €. Contactez Sami ALKIS pour plus d’informations sur ce terrain, sur les modalités de vente et sur les démarches à suivre. Maisons de l’Avenir Guipavas est là pour vous accompagner à toutes les étapes de votre projet.
Lanhouarneau
TERRAIN ET MAISONMaison T5 (102 m²) en vente à LanhouarneauPROCHE CENTRE-VILLE – MAISON 5 PIÈCES NEUVEÀ vendre : localisée à quelques kilomètres de la mer et à 29 km de Brest, proche du centre-ville de Lanhouarneau (29430), nous vous présentons cette maison de 5 pièces de 102 m² et de 638 m² de terrain. Son intérieur dispose de quatre chambres, d’une cuisine et de deux salles de bains.Il s’agit d’une maison de 2 niveaux. Elle est neuve.Il y a l’École Primaire Privée Sainte Thérèse à moins de 10 minutes à pied. La nationale N12 est accessible à 10 km. On trouve une bibliothèque, une boulangerie et une épicerie dans les environs.Elle est proposée à l’achat pour 228 954 €.Contactez notre agence (Sami ALKIS) pour toute question sur la maison ou sur les démarches à suivre. Maisons de l’Avenir Guipavas est là pour vous accompagner dans tous vos projets immobiliers.
Lanhouarneau
TERRAIN ET MAISONVENTE : maison T3 (86 m²) à LanhouarneauPROCHE CENTRE-VILLE – MAISON 3 PIÈCES NEUVEEn vente : à quelques kilomètres de la mer et à 29 km de Brest, proche du centre-ville de Lanhouarneau (29430), nous vous présentons cette maison de 3 pièces de plain-pied de 86 m².Conçue de plain-pied, elle dispose de trois chambres, d’une cuisine et d’une salle de bains. Cette maison est neuve.Le terrain du bien s’étend sur 638 m².On trouve l’École Primaire Privée Sainte Thérèse à moins de 10 minutes à pied. Il y a un accès à la nationale N12 à 10 km. Il y a une bibliothèque, une boulangerie et une épicerie à proximité.Elle est à vendre pour la somme de 237 931 €.Contactez Sami ALKIS pour tout renseignement sur la propriété ou sur les modalités de vente. Donnez vie à vos projets immobiliers avec Maisons de l’Avenir Guipavas.
Lanhouarneau
TERRAIN ET MAISONVENTE : maison T5 (125 m²) à LanhouarneauPROCHE CENTRE-VILLE – MAISON 5 PIÈCES NEUVEÀ vendre : localisée sur le littoral et à deux pas de Brest, proche du centre-ville de Lanhouarneau (29430), découvrez cette maison de 5 pièces de 125 m² et de 638 m² de terrain.C’est une maison de 2 niveaux. Elle compte quatre chambres, une cuisine et deux salles de bains. Cette maison est neuve.Il y a l’École Primaire Privée Sainte Thérèse à moins de 10 minutes à pied. La nationale N12 est accessible à 10 km. On trouve une bibliothèque, une boulangerie et une épicerie à quelques minutes.Il est proposé à l’achat pour 321 377 €.Prenez contact avec Sami ALKIS pour tout renseignement sur la maison, sur les modalités de vente ou sur les démarches à suivre. Maisons de l’Avenir Guipavas est là pour vous accompagner dans tous vos projets immobiliers.
Lanhouarneau
TERRAINLanhouarneau : terrain de 468 m² à vendrePROCHE CENTRE-VILLE – PROCHE DE BRESTEn vente à quelques kilomètres de la mer et à deux pas de Brest à Lanhouarneau (29430), terrain de 468 m². Il bénéficie d’une exposition sud-ouest. Il est situé non loin du centre-ville. L’École Primaire Privée Sainte Thérèse se trouve à moins de 10 minutes à pied. La nationale N12 est accessible à 10 km. Il y a une bibliothèque, une boulangerie et une épicerie à proximité du bien.Ce terrain est à vendre pour la somme de 26 000 €. N’hésitez pas à prendre contact avec notre agence (ALKIS Sami) pour plus d’informations sur le terrain, sur les modalités de vente ou sur les démarches à suivre. Maisons de l’Avenir Guipavas est là pour vous accompagner à toutes les étapes de votre projet.
Lanhouarneau
TERRAIN ET MAISONVENTE d’une maison de 5 pièces (95 m²) à LanhouarneauPROCHE CENTRE-VILLE – MAISON 5 PIÈCES NEUVEEn vente : à quelques kilomètres de la mer et à 29 km de Brest, notre agence Maisons de l’Avenir Guipavas est heureuse de vous proposer cette maison de 5 pièces de 95 m² proche du centre-ville de Lanhouarneau (29430).C’est une maison de 2 niveaux. Elle offre quatre chambres, une cuisine et deux salles de bains. Cette maison est neuve.Le terrain de la propriété s’étend sur 468 m².Il y a l’École Primaire Privée Sainte Thérèse à moins de 10 minutes à pied. Il y a un accès à la nationale N12 à 10 km. On trouve une bibliothèque, une boulangerie et une épicerie à proximité.Elle est proposée à l’achat pour 253 892 €.Contactez Sami ALKIS pour toute information sur la maison. Maisons de l’Avenir Guipavas est là pour vous accompagner à toutes les étapes de l’achat.
Lanhouarneau
TERRAIN ET MAISONVENTE : maison de 4 pièces (92 m²) à LanhouarneauPROCHE CENTRE-VILLE – MAISON 4 PIÈCES NEUVEEn vente : sur le littoral et à quelques kilomètres de Brest, découvrez, proche du centre-ville de Lanhouarneau (29430), cette maison de 4 pièces de 92 m².C’est une maison de 2 niveaux. Son intérieur offre trois chambres, une cuisine et une salle de bains. La maison est neuve.Le terrain de la propriété s’étend sur 468 m².Il y a l’École Primaire Privée Sainte Thérèse à moins de 10 minutes à pied. On trouve un accès à la nationale N12 à 10 km. On trouve une bibliothèque, une boulangerie et une épicerie à quelques minutes.Son prix de vente est de 224 919 €.Contactez Sami ALKIS pour toute information sur la maison, sur les démarches à suivre ou sur les modalités de vente.
Lanhouarneau
TERRAIN ET MAISONLanhouarneau : maison de 5 pièces (104 m²) en ventePROCHE CENTRE-VILLE – MAISON 5 PIÈCES NEUVEEn vente sur le littoral et à deux pas de Brest, nous sommes ravis de vous proposer cette maison de 5 pièces de plain-pied de 104 m², proche du centre-ville de Lanhouarneau (29430). Elle dispose de quatre chambres, d’une cuisine et de deux salles de bains.Le terrain du bien s’étend sur 468 m².La maison est neuve.Il y a l’École Primaire Privée Sainte Thérèse à moins de 10 minutes à pied. La nationale N12 est accessible à 10 km. On trouve une bibliothèque, une boulangerie et une épicerie à quelques minutes de la maison.Il est proposé à l’achat pour 273 954 €.Contactez notre agence (Sami ALKIS) pour plus d’informations sur la maison. Concrétisez vos projets immobiliers avec Maisons de l’Avenir Guipavas.
Lanhouarneau
TERRAIN ET MAISONMaison de 5 pièces (145 m²) à vendre à LanhouarneauPROCHE CENTRE-VILLE – MAISON 5 PIÈCES NEUVEÀ vendre à quelques kilomètres de la mer et à quelques kilomètres de Brest, Maisons de l’Avenir Guipavas vous propose, proche du centre-ville de Lanhouarneau (29430), cette maison de 5 pièces de 145 m² et de 468 m² de terrain. Son intérieur propose quatre chambres, une cuisine et deux salles de bains.C’est une maison de 2 niveaux. Elle est neuve.Il y a l’École Primaire Privée Sainte Thérèse à moins de 10 minutes à pied. On trouve un accès à la nationale N12 à 10 km. On trouve une bibliothèque, une boulangerie et une épicerie à quelques minutes.Son prix de vente est de 353 557 €.Prenez contact avec notre agence (Sami ALKIS) pour plus d’informations sur la maison, sur les démarches à suivre ou sur les modalités de vente. Concrétisez vos projets immobiliers avec Maisons de l’Avenir Guipavas.
L’actualité immobilière à Lanhouarneau
27/11/2023
02/11/2023
30/10/2023
20/10/2023
16/10/2023
16/10/2023