Maison à construire à Lannilis (29870)
Images
Description
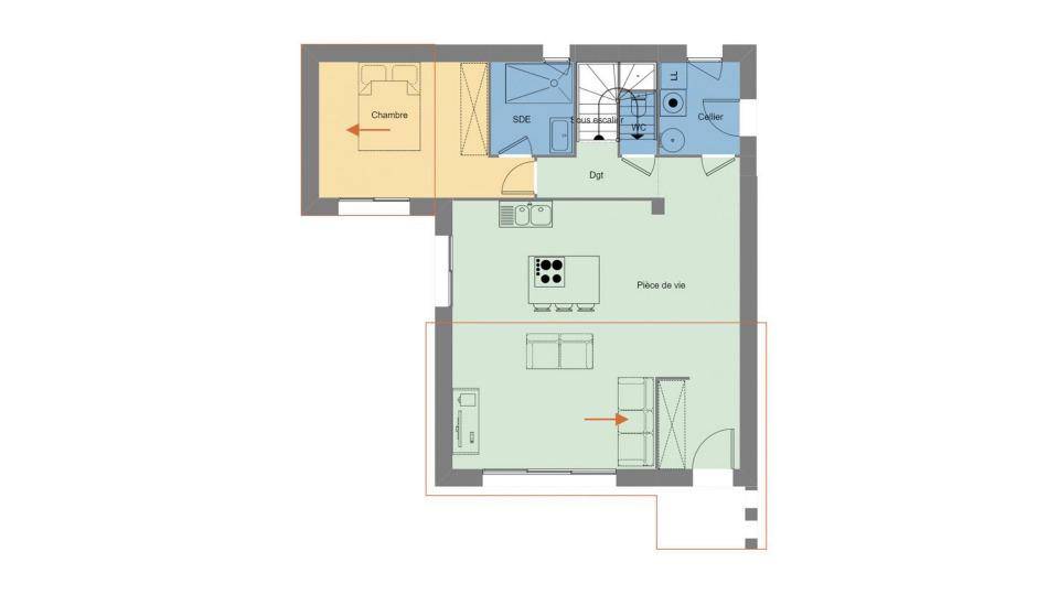
VENTE d'une maison T4 (95 m²) à Lannilis
PROCHE DE BREST - MAISON 4 PIÈCES NEUVE
En vente : située sur le littoral et à 18 km de Brest, venez découvrir cette maison de 4 pièces de 95 m² et de 496 m² de terrain à Lannilis (29870). Son intérieur offre trois chambres, une cuisine et deux salles de bains.
C'est une maison de 2 niveaux.
Elle est à vendre pour la somme de 259 000 €.
Prenez contact avec Jean ROPERS (tél : (Numéro supprimé)) pour obtenir de plus amples informations sur la maison, sur les démarches à suivre ou sur les modalités de vente. Maisons de l'Avenir Guipavas vous accompagne dans tous vos projets immobiliers et à toutes les étapes de votre projet.
Logement susceptibles de vous intéresser
Nous vous proposons de découvrir aussi cette sélection de logements situés à moins de 10km de Lannilis et qui seraient susceptibles de vous intéresser.
Guissény
TERRAINÀ découvrir, beau terrain constructible situé sur la commune de Guissény, à deux pas des commodités et des plages.Terrain borné et viabiliséLibre constructeurHors lotissementExposition sud-ouestEnvironnement calme et agréableProximité immédiate des commerces, écoles et servicesAccès rapide aux plages et aux sentiers côtiersCadre de vie privilégié entre mer et campagneCe terrain est une opportunité rare pour concrétiser votre projet de construction dans un secteur recherché du Finistère Nord. N’hésitez pas à me contacter pour plus d’informations ou organiser une visite.Les informations sur les risques auxquels ce bien est exposé sont disponibles sur le site Géorisques : www.georisques.gouv.frPrix de vente honoraires d’agence inclus : 110 000 €Prix de vente hors honoraires d’agence : 105 000 €Honoraires : 4,76 % TTC de la valeur du bien hors honorairesContactez votre consultant megAgence : Marie POLYNICE, Tél. : (Numéro supprimé), E-mail : (Email supprimé) – EI – Agent commercial immatriculé au RSAC de BREST sous le numéro 438 212 292
Lannilis
TERRAINLannilis : terrain de 496 m² en ventePROCHE CENTRE ET PLAGES à 10 minutes Terrain de 496 m² à quelques kilomètres de la mer et à 18 km de Brest. Ce terrain se situe dans Lannilis (29870). Commerces, établissements scolaires dans la communeIl est à vendre pour la somme de 40 000 €. Contactez Jean ROPERS (tél : (Numéro supprimé)) pour plus de renseignements sur ce terrain, sur les démarches à suivre et sur les modalités de vente. Maisons de l’Avenir Guipavas vous accompagne dans tous vos projets immobiliers et à toutes les étapes de l’achat.
Lannilis
TERRAIN ET MAISONVENTE d’une maison F3 (55 m²) à LannilisMAISON 3 PIÈCES NEUVE – PROCHE DE BRESTEn vente : sur le littoral et à quelques kilomètres de Brest, nous vous proposons cette maison de 3 pièces de plain-pied de 55 m² à Lannilis (29870).Elle dispose de deux chambres, d’une cuisine et d’une salle de bains. Le terrain de la propriété s’étend sur 496 m².Son prix de vente est de 180 500 €.Contactez Jean ROPERS (tél : (Numéro supprimé)) pour toute information sur cette maison et sur les démarches à suivre. Maisons de l’Avenir Guipavas est là pour vous accompagner à toutes les étapes de l’achat.
Lannilis
TERRAIN ET MAISONLannilis : maison F5 (150 m²) en venteMAISON 5 PIÈCES NEUVE – PROCHE DE BRESTÀ vendre : localisée sur le littoral et à quelques kilomètres de Brest, nous vous présentons à Lannilis (29870), cette maison de 5 pièces de 150 m². Son intérieur dispose de quatre chambres, d’une cuisine et de deux salles de bains.Le terrain du bien est de 496 m².Cette maison compte 2 niveaux. Elle est proposée à l’achat pour 410 000 €.N’hésitez pas à prendre contact avec notre agence (Jean ROPERS : (Numéro supprimé)) pour toute information sur la maison et sur les modalités de vente. Maisons de l’Avenir Guipavas est là pour vous accompagner dans toutes vos démarches.
Lannilis
TERRAIN ET MAISONLannilis : maison de 5 pièces (115 m²) à vendreMAISON 5 PIÈCES NEUVE – PROCHE DE BRESTSur le littoral et à deux pas de Brest, notre agence Maisons de l’Avenir Guipavas est ravie de vous proposer cette maison de 5 pièces de 115 m² à Lannilis (29870). Son intérieur comporte quatre chambres, une cuisine et une salle de bains.Le terrain du bien s’étend sur 496 m².Cette maison compte 2 niveaux. Elle est proposée à l’achat pour 318 000 €.Contactez notre agence (Jean ROPERS : (Numéro supprimé)) pour toute question sur cette maison.
Lannilis
TERRAIN ET MAISONVENTE d’une maison T4 (95 m²) à LannilisPROCHE DE BREST – MAISON 4 PIÈCES NEUVEEn vente : située sur le littoral et à 18 km de Brest, venez découvrir cette maison de 4 pièces de 95 m² et de 496 m² de terrain à Lannilis (29870). Son intérieur offre trois chambres, une cuisine et deux salles de bains.C’est une maison de 2 niveaux. Elle est à vendre pour la somme de 259 000 €.Prenez contact avec Jean ROPERS (tél : (Numéro supprimé)) pour obtenir de plus amples informations sur la maison, sur les démarches à suivre ou sur les modalités de vente. Maisons de l’Avenir Guipavas vous accompagne dans tous vos projets immobiliers et à toutes les étapes de votre projet.
Lannilis
TERRAIN ET MAISONVENTE : maison OSSATURE BOIS de 4 pièces (85 m²) à LannilisMAISON 4 PIÈCES NEUVE – PROCHE DE BRESTEn vente : à quelques kilomètres de la mer et à quelques kilomètres de Brest, découvrez cette maison de 4 pièces de plain-pied de 85 m² et de 496 m² de terrain à Lannilis (29870).Son intérieur dispose de trois chambres, d’une cuisine et d’une salle de bains. Son prix de vente est de 264 600 €.N’hésitez pas à prendre contact avec Jean ROPERS (tél : (Numéro supprimé)) pour toute question sur la maison. Maisons de l’Avenir Guipavas vous accompagne dans toutes vos démarches et à toutes les étapes de votre projet.
Landéda
TERRAINTerrain de 512 m² à vendre à LandédaA 5 Minutes de l’Aber Wrach et des dunes Sainte MargueriteSon prix de vente est de 72 300 €. Prenez contact avec notre agence (ROPERS Jean : (Numéro supprimé)) pour obtenir de plus amples renseignements sur ce terrain. Maisons de l’Avenir Guipavas vous accompagne dans toutes vos démarches et à toutes les étapes de l’achat.
Landéda
TERRAIN ET MAISONVENTE d’une maison de 4 pièces (90 m²) à LandédaPROCHE DE BREST – MAISON 4 PIÈCES NEUVESur le littoral et à quelques kilomètres de Brest, nous vous proposons cette maison de 4 pièces de 90 m² à vendre à Landéda (29870). Elle offre trois chambres, une cuisine et une salle de bains.Le terrain de la propriété s’étend sur 512 m².Cette maison possède 2 niveaux. Elle est proposée à l’achat pour 286 300 €.Contactez Jean ROPERS (tél : (Numéro supprimé)) pour obtenir de plus amples renseignements sur la maison, sur les démarches à suivre et sur les modalités de vente.
L’actualité immobilière à Lannilis
27/11/2023
02/11/2023
30/10/2023
20/10/2023
16/10/2023
16/10/2023