Maison à construire à Lannilis (29870)
Images
Description
🏡 À Vendre : Terrain de 421m² a Lannilis - 56 835€ 🌊
Découvrez ce terrain rare de 421m², idéalement situé dans un lotissement prisé de Lannilis, à proximité de la mer. 🌅
Ce terrain bénéficie d'un emplacement privilégié, avec peu de vis à vis 🛤️, tout en restant proche de Brest.
Lannilis est une commune dynamique et recherchée, ce qui fait de ce bien une opportunité à ne pas manquer !
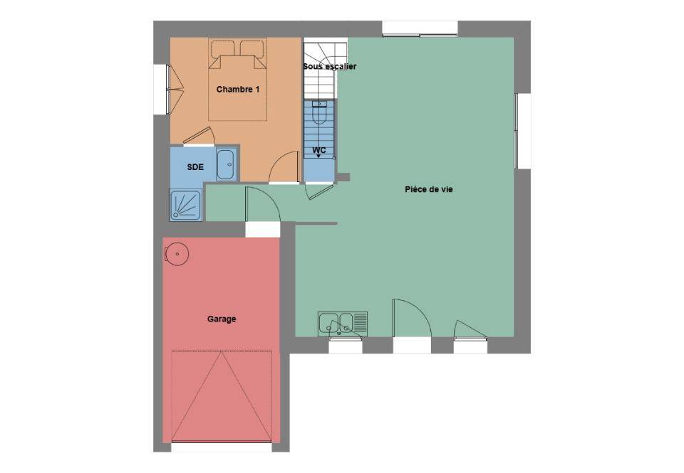
Nous vous proposons également les plans d'une maison de 110m², comprenant 4 chambres dont une suite parentale, ainsi que deux salles de bains. Profitez d'un vaste espace de vie de plus de 41m², pensé avec un maximum d'ouvertures pour favoriser la luminosité et les gains énergétiques, selon notre label Bâti Activ Maisons Passives. 🌞🏡
Les plans sont entièrement modifiables pour répondre à tous vos besoins et envies. Le projet global terrain + maison est proposé à 325 100€. ✨
Si ce terrain vous intéresse, ne tardez pas, contactez Erwan TILLY des Maisons de l'Avenir pour plus d'informations et organiser une visite. 📞
Faites vite, une telle opportunité partira rapidement ! 🚀
Logement susceptibles de vous intéresser
Nous vous proposons de découvrir aussi cette sélection de logements situés à moins de 10km de Lannilis et qui seraient susceptibles de vous intéresser.
Kernilis
TERRAIN ET MAISONDEVENEZ PROPRIÉTAIRE À KERNILIS – MAISON NEUVE RE2020 SUR-MESURE !Vivez dans un cadre de vie privilégié à Kernilis, charmante commune du Finistère, tout en restant proche des commerces, écoles et services – idéal pour votre famille ! Votre future maison comprend :4 chambres spacieuses et lumineusesUn grand salon-séjour traversant, ouvert sur le jardinUne cuisine moderne et fonctionnelleSalle de bain et WC séparésTerrain de 600 m², bien orienté Les atouts du projet :Maison neuve RE2020, à faible consommation d’énergiePlan personnalisable selon vos besoinsCadre de vie paisible, proche des commodités et du littoralPrestations de qualité, finitions soignées Prix indiqué hors frais Photos non contractuelles, à titre d’illustration Accession à la propriété possible avec ou sans apportNe manquez pas cette opportunité de devenir propriétaire d’une maison neuve moderne et économique à Kernilis ! Contactez-nous dès maintenant pour découvrir les plans et étudier votre projet personnalisé.
Plouguin
TERRAIN ET MAISONDEVENEZ PROPRIÉTAIRE À PLOUGUIN – MAISON NEUVE RE2020 SUR-MESURE !Vivez dans un cadre de vie privilégié à Plouguin, charmante commune du Finistère, tout en restant proche des commerces, écoles et services – idéal pour votre famille ! Votre future maison comprend :2 chambres spacieuses et lumineusesUn grand salon-séjour traversant, ouvert sur le jardinUne cuisine moderne et fonctionnelleSalle de bain et WC séparésTerrain de 330 m², bien orienté Les atouts du projet :Maison neuve RE2020, à faible consommation d’énergiePlan personnalisable selon vos besoinsCadre de vie paisible, proche des commodités et du littoralPrestations de qualité, finitions soignées Prix indiqué hors frais Photos non contractuelles, à titre d’illustration Accession à la propriété possible avec ou sans apportNe manquez pas cette opportunité de devenir propriétaire d’une maison neuve moderne et économique à Plouguin ! Contactez-nous dès maintenant pour découvrir les plans et étudier votre projet personnalisé.
Lannilis
TERRAIN ET MAISONDEVENEZ PROPRIÉTAIRE À LANNILIS – MAISON NEUVE RE2020 SUR-MESURE !Vivez dans un cadre de vie privilégié à Lannilis, charmante commune du Finistère, tout en restant proche des commerces, écoles et services – idéal pour votre famille ! Votre future maison comprend 😮 2 chambres spacieuses et lumineuseso Un grand salon-séjour traversant, ouvert sur le jardino Une cuisine moderne et fonctionnelleo Salle de bain et WC séparéso Le tout sur un terrain de 341 m², bien orienté Les atouts du projet 😮 Maison neuve RE2020, à faible consommation d’énergieo Plan personnalisable selon vos besoinso Cadre de vie paisible, proche des commodités et du littoralo Prestations de qualité, finitions soignées Prix indiqué hors frais Photos non contractuelles à titre d’illustration Accession à la propriété possible avec ou sans apportNe manquez pas cette belle opportunité de devenir propriétaire d’une maison neuve moderne et économique à Lannilis ! Contactez-nous dès maintenant pour découvrir les plans et étudier votre projet personnalisé.
Kernilis
TERRAINDEVENEZ PROPRIÉTAIRE D’UN TERRAIN À KERNILIS !Installez-vous dans un cadre de vie calme et verdoyant à Kernilis, charmante commune du Nord-Finistère, située à proximité de Saint-Pol-de-Léon et de la mer.Profitez d’un environnement paisible et agréable, tout en restant proche des commerces, écoles et services – le lieu idéal pour concrétiser votre projet de construction ! Votre terrain comprend 😮 Une surface de 600 m², bien orientéeo Libre de constructeur, pour bâtir la maison de vos rêves Les atouts du projet 😮 Terrain viabilisé ou à proximité des réseauxo Cadre de vie recherché, proche de la mer et des commodités localeso Plan de maison personnalisable selon vos besoins et votre style de vie Prix indiqué hors frais Photos non contractuelles, fournies à titre d’illustration Accession possible avec ou sans apportNe laissez pas passer cette opportunité rare de devenir propriétaire d’un terrain à Kernilis, et de réaliser votre maison sur mesure dans un environnement calme et verdoyant ! Contactez-nous dès maintenant pour plus d’informations et pour étudier votre projet.
Lampaul-Ploudalmézeau
TERRAIN📍 À VENDRE – Terrain constructible 622 m² à Lampaul-Ploudalmézeau (99800€)À saisir rapidement !Dans un petit lotissement intimiste de seulement 4 lots, découvrez ce beau terrain constructible de 622 m², situé à 1 km de la plage des Trois Moutons.🌊 Atouts du terrain :Exposition idéale avec vue mer dégagéeEnvironnement calme et préservé 🌿Dernier lot disponible – libre de constructeurCadre parfait pour une résidence principale ou secondaireNe tardez pas, cette opportunité rare ne restera pas longtemps sur le marché !📞 Contactez Erwan TILLY dès maintenant pour plus d’informations ou organiser une visite sur place.Maisons de l’avenir
Lampaul-Ploudalmézeau
TERRAIN ET MAISON📍 À VENDRE – Terrain constructible 622 m² à Lampaul-Ploudalmézeau (99800€)À saisir rapidement !Dans un petit lotissement intimiste de seulement 4 lots, découvrez ce beau terrain constructible de 622 m², situé à 1 km de la plage des Trois Moutons.🌊 Atouts du terrain :Exposition idéale avec vue mer dégagéeEnvironnement calme et préservé 🌿Dernier lot disponible – libre de constructeurCadre parfait pour une résidence principale ou secondaire💡 Nous vous proposons sur ce terrain un projet de maison de 140 m², au style traditionnel avec des touches contemporaines comprenant :4 chambres dont une suite parentale 🛏️2 salles de bains 🚿Un vaste espace de vie de plus de 55 m² lumineux ☀️Un grand garage 🚗Une conception intégrée dans notre concept Maisons Bâti Activ, favorisant l’ensoleillement naturel et réduisant vos coûts énergétiques 🌿⚡💰 Prix de l’opération Terrain + Maison : 450 000 €Ne tardez pas, cette opportunité rare ne restera pas longtemps sur le marché !📞 Contactez Erwan TILLY dès maintenant pour plus d’informations ou organiser une visite sur place.Maisons de l’avenir
Lampaul-Ploudalmézeau
TERRAIN ET MAISON📍 À VENDRE – Terrain constructible 622 m² à Lampaul-Ploudalmézeau (99800€)À saisir rapidement !Dans un petit lotissement intimiste de seulement 4 lots, découvrez ce beau terrain constructible de 622 m², situé à 1 km de la plage des Trois Moutons.🌊 Atouts du terrain :Exposition idéale avec vue mer dégagéeEnvironnement calme et préservé 🌿Dernier lot disponible – libre de constructeurCadre parfait pour une résidence principale ou secondaire💡 Nous vous proposons sur ce terrain un projet de maison de 150 m², au style contemporain comprenant :4 chambres dont une suite parentale 🛏️2 salles de bains 🚿Un vaste espace de vie de plus de 55 m² lumineux ☀️Un grand garage 🚗Une conception intégrée dans notre concept Maisons Bâti Activ, favorisant l’ensoleillement naturel et réduisant vos coûts énergétiques 🌿⚡💰 Prix de l’opération Terrain + Maison : 470 000 €Ne tardez pas, cette opportunité rare ne restera pas longtemps sur le marché !📞 Contactez Erwan TILLY dès maintenant pour plus d’informations ou organiser une visite sur place.Maisons de l’avenir
Lampaul-Ploudalmézeau
TERRAIN ET MAISON📍 À VENDRE – Terrain constructible 622 m² à Lampaul-Ploudalmézeau (99800€)À saisir rapidement !Dans un petit lotissement intimiste de seulement 4 lots, découvrez ce beau terrain constructible de 622 m², situé à 1 km de la plage des Trois Moutons.🌊 Atouts du terrain :Exposition idéale avec vue mer dégagéeEnvironnement calme et préservé 🌿Dernier lot disponible – libre de constructeurCadre parfait pour une résidence principale ou secondaire💡 Nous vous proposons sur ce terrain un projet de maison de 93 m², au style contemporain comprenant :4 chambres dont une suite parentale 🛏️1 salles de bains avec douche et baignoire 🚿Un vaste espace de vie de plus de 35 m² lumineux ☀️Un grand garage 🚗Une conception intégrée dans notre concept Maisons Bâti Activ, favorisant l’ensoleillement naturel et réduisant vos coûts énergétiques 🌿⚡💰 Prix de l’opération Terrain + Maison : 330 000 €Ne tardez pas, cette opportunité rare ne restera pas longtemps sur le marché !📞 Contactez Erwan TILLY dès maintenant pour plus d’informations ou organiser une visite sur place.Maisons de l’avenir
Lampaul-Ploudalmézeau
TERRAIN ET MAISON📍 À VENDRE – Terrain constructible 622 m² à Lampaul-Ploudalmézeau (99800€)À saisir rapidement !Dans un petit lotissement intimiste de seulement 4 lots, découvrez ce beau terrain constructible de 622 m², situé à 1 km de la plage des Trois Moutons.🌊 Atouts du terrain :Exposition idéale avec vue mer dégagéeEnvironnement calme et préservé 🌿Dernier lot disponible – libre de constructeurCadre parfait pour une résidence principale ou secondaire💡 Nous vous proposons sur ce terrain un projet de maison de 100 m² de plein pied, au style contemporain comprenant :3 chambres dont une suite parentale 🛏️1 salles de bains avec douche et baignoire 🚿Un vaste espace de vie de plus de 45 m² lumineux ☀️Un grand garage 🚗Une conception intégrée dans notre concept Maisons Bâti Activ, favorisant l’ensoleillement naturel et réduisant vos coûts énergétiques 🌿⚡💰 Prix de l’opération Terrain + Maison : 340 000 €Ne tardez pas, cette opportunité rare ne restera pas longtemps sur le marché !📞 Contactez Erwan TILLY dès maintenant pour plus d’informations ou organiser une visite sur place.Maisons de l’avenir
L’actualité immobilière à Lannilis
27/11/2023
02/11/2023
30/10/2023
20/10/2023
16/10/2023
16/10/2023