Maison à construire à Le Cloître-Pleyben (29190)
Images
Description
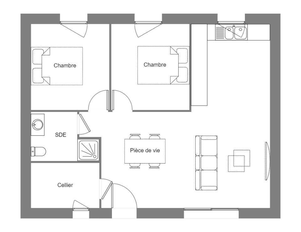
VENTE d'une maison T3 (57 m²) au Cloître-Pleyben
PROCHE CENTRE-VILLE - MAISON 3 PIÈCES NEUVE
À vendre sur le littoral, proche du centre-ville du Cloître-Pleyben (29190), Maisons de l'Avenir Guipavas vous présente cette maison de 3 pièces de plain-pied de 57 m² et de 461 m² de terrain. Conçue de plain-pied, elle comporte deux chambres, une cuisine et une salle de bains.
La maison est neuve.
On trouve l'École Primaire Publique des Lutins à moins de 10 minutes à pied. La nationale N164 est accessible à 6 km. Il y a une épicerie à quelques minutes du bien.
Elle est à vendre pour la somme de 141 964 €.
N'hésitez pas à prendre contact avec notre agence (ALKIS Sami) pour tout renseignement sur la maison ou sur les modalités de vente. Maisons de l'Avenir Guipavas vous accompagne dans tous vos projets immobiliers et à toutes les étapes de l'achat.
Logement susceptibles de vous intéresser
Nous vous proposons de découvrir aussi cette sélection de logements situés à moins de 10km de Le Cloître-Pleyben et qui seraient susceptibles de vous intéresser.
Le Cloître-Pleyben
TERRAIN ET MAISONVENTE : maison de 4 pièces (73 m²) au Cloître-PleybenPROCHE CENTRE-VILLE – MAISON 4 PIÈCES NEUVEÀ vendre : localisée sur le littoral, proche du centre-ville du Cloître-Pleyben (29190), votre agence Maisons de l’Avenir Guipavas est ravie de vous présenter cette maison de 4 pièces de 73 m² et de 461 m² de terrain.Il s’agit d’une maison de 2 niveaux. Son intérieur offre trois chambres, une cuisine et une salle de bains. Cette maison est neuve.On trouve l’École Primaire Publique des Lutins à moins de 10 minutes à pied. On trouve un accès à la nationale N164 à 6 km. Il y a une épicerie à proximité.Son prix de vente est de 158 833 €.Contactez notre constructeur (Sami ALKIS) pour plus d’informations sur la propriété ou sur les démarches à suivre. Maisons de l’Avenir Guipavas est là pour vous accompagner dans tous vos projets immobiliers.
Le Cloître-Pleyben
TERRAIN ET MAISONLe Cloître-Pleyben : maison de 4 pièces (62 m²) en ventePROCHE CENTRE-VILLE – MAISON 4 PIÈCES NEUVEEn vente : sur le littoral, nous vous proposons cette maison de 4 pièces de 62 m² et de 461 m² de terrain proche du centre-ville du Cloître-Pleyben (29190). Elle comporte trois chambres, une cuisine et une salle de bains.Il s’agit d’une maison de 2 niveaux. Elle est neuve.L’École Primaire Publique des Lutins est implantée à moins de 10 minutes à pied. La nationale N164 est accessible à 6 km. Il y a une épicerie à proximité du logement.Son prix de vente est de 158 943 €.Prenez contact avec Sami ALKIS pour tout renseignement sur la maison. Faites de vos projets immobiliers une réalité avec Maisons de l’Avenir Guipavas.
Le Cloître-Pleyben
TERRAIN ET MAISONVENTE d’une maison T3 (57 m²) au Cloître-PleybenPROCHE CENTRE-VILLE – MAISON 3 PIÈCES NEUVEÀ vendre sur le littoral, proche du centre-ville du Cloître-Pleyben (29190), Maisons de l’Avenir Guipavas vous présente cette maison de 3 pièces de plain-pied de 57 m² et de 461 m² de terrain. Conçue de plain-pied, elle comporte deux chambres, une cuisine et une salle de bains.La maison est neuve.On trouve l’École Primaire Publique des Lutins à moins de 10 minutes à pied. La nationale N164 est accessible à 6 km. Il y a une épicerie à quelques minutes du bien.Elle est à vendre pour la somme de 141 964 €.N’hésitez pas à prendre contact avec notre agence (ALKIS Sami) pour tout renseignement sur la maison ou sur les modalités de vente. Maisons de l’Avenir Guipavas vous accompagne dans tous vos projets immobiliers et à toutes les étapes de l’achat.
Le Cloître-Pleyben
TERRAINTerrain de 461 m² en vente au Cloître-PleybenPROCHE CENTRE-VILLEAu Cloître-Pleyben (29190) en vente à quelques kilomètres de la mer, donnez vie à la maison de vos rêves sur ce terrain de 461 m². Il bénéficie d’une exposition sud-ouest. Il se trouve non loin du centre-ville. Il y a l’École Primaire Publique des Lutins à moins de 10 minutes à pied. On trouve un accès à la nationale N164 à 6 km. On trouve une épicerie à quelques minutes de la propriété.Ce terrain est à vendre pour la somme de 14 720 €. Contactez Sami ALKIS pour tout renseignement sur ce terrain. Maisons de l’Avenir Guipavas est là pour vous accompagner à toutes les étapes de l’achat.
Châteauneuf-du-Faou
TERRAINTerrain plat constructible à l’entrée du bourg de 2889 m².Tout à l’égout proche, eau et électricité proche.Accès facileBudget : 49 000 euros honoraires à la charge du vendeur.Pour visiter et vous accompagner dans votre projet, contactez Philippe BALAC, au (Numéro supprimé) ou par courriel à (Email supprimé)Cette présente annonce a été rédigée sous la responsabilité éditoriale de Philippe BALAC agissant sous le statut d’agent commercial immatriculé au RSAC QUIMPER 753373794 auprès de la SAS PROPRIETES PRIVEES, Réseau national immobilier, au capital de 40000 euros, 44 ALLÉE DES CINQ CONTINENTS – ZAC LE CHÊNE FERRÉ, 44120 VERTOU, RCS Nantes n° 487 624 777 00040, Carte professionnelle T et G n° CPI 4401 2016 000 010 388 CCI Nantes-Saint Nazaire. Garantie GALIAN – 89 rue de la Boétie, 75008 ParisMandat réf : 427858 – Le professionnel garantit et sécurise votre projet immobilier.Honoraires de 4.99 % forfait minimum de 4990 euros à la charge du vendeur
Loqueffret
TERRAINVous recherchez un terrain idéal pour concrétiser votre projet immobilier dans un cadre enchanteur ? Nous avons exactement ce qu’il vous faut. Situé à LOQUEFFRET, un terrain plat constructible de 5810 mètres carrés s’offre à vous, offrant un potentiel infini pour la réalisation de vos rêves architecturaux.Il est important de noter que le terrain n’est actuellement ni viabilisé, ni borné, ni clos. Cependant, cela représente une opportunité unique de concevoir un espace qui répondra précisément à vos exigences. Vous pourrez décider comment amener l’eau, l’électricité et l’assainissement sur le terrain, en veillant à ce que ces services correspondent parfaitement à vos besoins.La non-délimitation du terrain vous donne également la liberté de définir ses limites selon vos préférences, tout en respectant les réglementations en vigueur. Vous pourrez ainsi définir les contours de votre propriété de manière à maximiser son potentiel.Un autre avantage non négligeable est la possibilité de diviser ce terrain en plusieurs parcelles. Cette caractéristique en fait un excellent investissement, car vous pourrez choisir de revendre une partie du terrain ou de la développer pour d’autres projets. Cela vous permettra de diversifier vos actifs immobiliers ou de créer une source de revenus supplémentaire.De plus, la proximité des commodités est un atout majeur de cette propriété. Vous serez à proximité de toutes les infrastructures essentielles, notamment les écoles, les commerces, les services de santé et les transports en commun. Vous pourrez ainsi profiter du charme de la campagne tout en ayant un accès facile à tout ce dont vous avez besoin au quotidien.Ne laissez pas passer cette opportunité, contactez-nous dès aujourd’hui pour en savoir plus et pour planifier une visite sur place.
L’actualité immobilière à Le Cloître-Pleyben
27/11/2023
02/11/2023
30/10/2023
20/10/2023
16/10/2023
16/10/2023