Maison à construire à Le Conquet (29217)
Images
Description
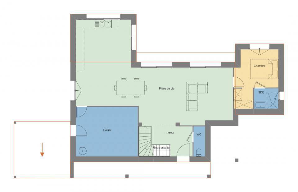
🏡 À Vendre : Terrain de 749m² au Conquet - 99 900€ 🌊
Découvrez ce magnifique terrain de 749m², idéalement situé dans un petit lotissement paisible sur la commune du Conquet, à deux pas de la mer. 🌅 Ce terrain offre un cadre exceptionnel pour construire la maison de vos rêves, alliant tranquillité et proximité avec les plages. 🏖️
Maisons de l'Avenir vous propose un modèle sur plan de 150m², comprenant 4 chambres dont une suite parentale, un vaste espace de vie de 63m², deux salles de bains, et un grand garage. 🛏️🍽️🚿
Les plans sont entièrement modifiables, permettant ainsi une maison sur mesure dans tous les aspects, conçue dans le cadre de notre gamme de maisons passives Bâti Activ. 🏠🌿 Cette maison a été pensée pour maximiser les apports de lumière naturelle, favorisant ainsi les gains énergétiques. 🌞⚡
L'opération globale terrain + maison est de 482 800€. 💰
Ce bien rare et recherché est une opportunité à ne pas manquer. ⭐
Pour plus d'informations ou pour organiser une visite, contactez Erwan TILLY 📞. Ne tardez pas, ce terrain risque de partir rapidement ! ⏳
Logement susceptibles de vous intéresser
Nous vous proposons de découvrir aussi cette sélection de logements situés à moins de 10km de Le Conquet et qui seraient susceptibles de vous intéresser.
Plougonvelin
TERRAINPlougonvelin : terrain de 343 m² en ventePROCHE CENTRE-VILLE – PROCHE DE BRESTTerrain de 343 m² en vente à quelques kilomètres de la mer et à deux pas de Brest. Ce terrain se situe proche du centre-ville de Plougonvelin (29217). Il bénéficie d’une exposition sud-ouest. L’École Élémentaire Publique Roz Avel et l’École Primaire Privée Sacré-Coeur se trouvent à moins de 10 minutes à pied, tout comme deux structures d’accueil pour la petite enfance. Il y a deux boulangeries, deux commerces et un supermarché à proximité.Son prix de vente est de 100 000 €. Contactez notre agence (Sami ALKIS) pour toute information sur ce terrain, sur les démarches à suivre et sur les modalités de vente.
Plougonvelin
TERRAIN ET MAISONVENTE d’une maison F4 (94 m²) à PlougonvelinPROCHE CENTRE-VILLE – MAISON 4 PIÈCES NEUVESur le littoral et à 17 km de Brest, votre agence Maisons de l’Avenir Guipavas est ravie de vous présenter cette maison de 4 pièces de 94 m² et de 343 m² de terrain proche du centre-ville de Plougonvelin (29217).Il s’agit d’une maison de 2 niveaux. Son intérieur dispose de trois chambres, d’une cuisine et de deux salles de bains. La maison est neuve.On trouve l’École Élémentaire Publique Roz Avel et l’École Primaire Privée Sacré-Coeur à moins de 10 minutes à pied et deux structures d’accueil pour la petite enfance. Il y a deux boulangeries, deux commerces et un supermarché à quelques minutes à peine.Elle est à vendre pour la somme de 337 922 €.Prenez contact avec notre constructeur (ALKIS Sami) pour obtenir de plus amples informations sur la maison ou sur les modalités de vente. Concrétisez vos projets immobiliers avec Maisons de l’Avenir Guipavas.
Plougonvelin
TERRAIN ET MAISONVENTE d’une maison F4 (82 m²) à PlougonvelinPROCHE CENTRE-VILLE – MAISON 4 PIÈCES NEUVEEn vente à quelques kilomètres de la mer et à deux pas de Brest, proche du centre-ville de Plougonvelin (29217), Maisons de l’Avenir Guipavas vous propose cette maison de 4 pièces de plain-pied de 82 m² et de 343 m² de terrain.Son intérieur compte trois chambres, une cuisine et une salle de bains. La maison est neuve.On trouve l’École Élémentaire Publique Roz Avel et l’École Primaire Privée Sacré-Coeur à moins de 10 minutes à pied et deux crèches. Il y a deux boulangeries, deux commerces et un supermarché dans les environs.Son prix de vente est de 291 837 €.Contactez Sami ALKIS pour toute information sur la propriété, sur les modalités de vente ou sur les démarches à suivre. Maisons de l’Avenir Guipavas vous accompagne à toutes les étapes de l’achat et dans tous vos projets immobiliers.
Plougonvelin
TERRAINTerrain de 420 m² à vendre à PlougonvelinPROCHE CENTRE-VILLE – PROCHE DE BRESTÀ quelques kilomètres de la mer et à 17 km de Brest à Plougonvelin (29217), terrain de 420 m². Réalisez-y votre projet de construction. Il est exposé au sud-ouest. Ce terrain se trouve non loin du centre-ville. L’École Élémentaire Publique Roz Avel et l’École Primaire Privée Sacré-Coeur sont implantées à moins de 10 minutes à pied, tout comme deux structures d’accueil pour les tout-petits. On trouve deux boulangeries, deux commerces et un supermarché à proximité du terrain.Son prix de vente est de 122 000 €. Prenez contact avec Sami ALKIS pour plus d’informations sur le terrain et sur les modalités de vente. Concrétisez vos projets immobiliers avec Maisons de l’Avenir Guipavas.
Plougonvelin
TERRAIN ET MAISONMaison F5 (135 m²) en vente à PlougonvelinPROCHE CENTRE-VILLE – MAISON 5 PIÈCES NEUVEÀ vendre : localisée sur le littoral et à 17 km de Brest, nous sommes heureux de vous présenter, proche du centre-ville de Plougonvelin (29217), cette maison de 5 pièces de 135 m² et de 420 m² de terrain.Cette maison compte 2 niveaux. Elle propose quatre chambres, une cuisine et deux salles de bains. Cette maison est neuve.Il y a l’École Élémentaire Publique Roz Avel et l’École Primaire Privée Sacré-Coeur à moins de 10 minutes à pied et deux crèches. On trouve deux boulangeries, deux commerces et un supermarché à quelques minutes à peine.Elle est proposée à l’achat pour 441 888 €.Contactez Sami ALKIS pour plus de renseignements sur la maison.
Plougonvelin
TERRAIN ET MAISONVENTE : maison F5 (132 m²) à PlougonvelinPROCHE CENTRE-VILLE – MAISON 5 PIÈCES NEUVEÀ vendre : sur le littoral et à quelques kilomètres de Brest, Maisons de l’Avenir Guipavas vous présente cette maison de 5 pièces de plain-pied de 132 m² et de 420 m² de terrain, proche du centre-ville de Plougonvelin (29217). Conçue de plain-pied, elle se divise en quatre chambres, une cuisine et deux salles de bains.La maison est neuve.L’École Élémentaire Publique Roz Avel et l’École Primaire Privée Sacré-Coeur sont implantées à moins de 10 minutes à pied, tout comme deux structures d’accueil pour la petite enfance. On trouve deux boulangeries, deux commerces et un supermarché à quelques minutes à peine.Son prix de vente est de 436 890 €.N’hésitez pas à prendre contact avec notre agence (ALKIS Sami) pour toute information sur la maison. Concrétisez vos projets immobiliers avec Maisons de l’Avenir Guipavas.
Plougonvelin
TERRAIN ET MAISON🏡 À Vendre : Terrain de 480m² a Plougonvelin – 122 000€ 🌊Découvrez ce magnifique terrain de 480m², idéalement situé dans un petit lotissement paisible sur la commune de Plougonvelin, à deux pas de la mer. 🌅 Ce terrain offre un cadre exceptionnel pour construire la maison de vos rêves, alliant tranquillité et proximité avec les plages. 🏖️Maisons de l’Avenir vous propose un modèle sur plan de 130m², comprenant 4 chambres dont une suite parentale, un vaste espace de vie de 48m², deux salles de bains, et un grand garage. 🛏️🍽️🚿Les plans sont entièrement modifiables, permettant ainsi une maison sur mesure dans tous les aspects, conçue dans le cadre de notre gamme de maisons passives Bâti Activ. 🏠🌿 Cette maison a été pensée pour maximiser les apports de lumière naturelle, favorisant ainsi les gains énergétiques. 🌞⚡L’opération globale terrain + maison est de 469 000€. 💰Ce bien rare et recherché est une opportunité à ne pas manquer. ⭐Pour plus d’informations ou pour organiser une visite, contactez Erwan TILLY 📞. Ne tardez pas, ce terrain risque de partir rapidement ! ⏳
Plougonvelin
TERRAIN ET MAISON🏡 À Vendre : Terrain de 480m² a Plougonvelin- 122 000€ 🌊Découvrez ce magnifique terrain de 480m², idéalement situé dans un petit lotissement paisible sur la commune de Plougonvelin, à deux pas de la mer. 🌅 Ce terrain offre un cadre exceptionnel pour construire la maison de vos rêves, alliant tranquillité et proximité avec les plages. 🏖️Maisons de l’Avenir vous propose un modèle sur plan plein pied de 120m², comprenant 3 chambres dont une suite parentale, un vaste espace de vie de 52m², deux salles de bains, et un grand garage. 🛏️🍽️🚿Les plans sont entièrement modifiables, permettant ainsi une maison sur mesure dans tous les aspects, conçue dans le cadre de notre gamme de maisons passives Bâti Activ. 🏠🌿 Cette maison a été pensée pour maximiser les apports de lumière naturelle, favorisant ainsi les gains énergétiques. 🌞⚡L’opération globale terrain + maison est de 428 000€. 💰Ce bien rare et recherché est une opportunité à ne pas manquer. ⭐Pour plus d’informations ou pour organiser une visite, contactez Erwan TILLY 📞. Ne tardez pas, ce terrain risque de partir rapidement ! ⏳
Plougonvelin
TERRAIN ET MAISON🏡 À Vendre : Terrain de 480m² a Plougonvelin- 122 000€ 🌊Découvrez ce magnifique terrain de 480m², idéalement situé dans un petit lotissement paisible sur la commune de Plougonvelin, à deux pas de la mer. 🌅 Ce terrain offre un cadre exceptionnel pour construire la maison de vos rêves, alliant tranquillité et proximité avec les plages. 🏖️Maisons de l’Avenir vous propose un modèle sur plan de 110m², comprenant 4 chambres dont une suite parentale, un vaste espace de vie de 42m², deux salles de bains, et un grand garage. 🛏️🍽️🚿Les plans sont entièrement modifiables, permettant ainsi une maison sur mesure dans tous les aspects, conçue dans le cadre de notre gamme de maisons passives Bâti Activ. 🏠🌿 Cette maison a été pensée pour maximiser les apports de lumière naturelle, favorisant ainsi les gains énergétiques. 🌞⚡L’opération globale terrain + maison est de 399 000€. 💰Ce bien rare et recherché est une opportunité à ne pas manquer. ⭐Pour plus d’informations ou pour organiser une visite, contactez Erwan TILLY 📞. Ne tardez pas, ce terrain risque de partir rapidement ! ⏳
L’actualité immobilière à Le Conquet
27/11/2023
02/11/2023
30/10/2023
20/10/2023
16/10/2023
16/10/2023