Maison à construire à Le Conquet (29217)
Images
Description
🏡 À Vendre : Terrain de 696m² au coeur du Conquet - 111 360€ 🌳
Découvrez ce terrain idéalement situé sur la commune du Conquet, issu d'un petit lotissement. Ce terrain de 696m² offre une proximité exceptionnelle avec les commerces locaux, et Brest parfait pour une vie pratique et agréable. 🛒🏫
Nous vous proposons des plans sur mesure pour construire votre futur nid dans cette commune très recherchée. 🏠✨
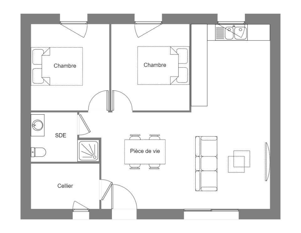
Maisons de l'Avenir vous propose un modèle sur plan de 70m², comprenant 3 chambres, un vaste espace de vie de 38m², une salles de bains, et un grand garage. 🛏️🍽️🚿
Les plans sont entièrement modifiables, permettant ainsi une maison sur mesure dans tous les aspects, conçue dans le cadre de notre gamme de maisons passives Bâti Activ. 🏠🌿 Cette maison a été pensée pour maximiser les apports de lumière naturelle, favorisant ainsi les gains énergétiques. 🌞⚡
L'opération globale terrain + maison est de 280 000€. 💰
Si ce terrain vous intéresse, n'hésitez pas à contacter Erwan TILLY des Maisons de l'Avenir pour plus d'informations et organiser une visite. 📞
Logement susceptibles de vous intéresser
Nous vous proposons de découvrir aussi cette sélection de logements situés à moins de 10km de Le Conquet et qui seraient susceptibles de vous intéresser.
Ploumoguer
TERRAINVENTE : terrain de 400 m² à PloumoguerNouveauté, à saisir ! hors lotissement, clos, plat et orienté plein sud. Ce terrain en plein centre n’attend que vous pour votre projet avec Maisons de l’Avenir.Son prix de vente est de 56 000 €. N’hésitez pas à prendre contact avec Jean ROPERS (tél : (Numéro supprimé)) pour toute question sur ce terrain ou sur les modalités de vente. Maisons de l’Avenir Guipavas vous accompagne dans tous vos projets immobiliers et dans toutes vos démarches.
Ploumoguer
TERRAIN ET MAISONMaison de 3 pièces (60 m²) en vente à PloumoguerCENTRE-VILLE – MAISON 3 PIÈCES NEUVESur le littoral et à quelques kilomètres de Brest, nous sommes heureux de vous proposer cette maison de 3 pièces de plain-pied de 60 m² au coeur de Ploumoguer (29810).Elle inclut deux chambres, une cuisine et une salle de bains. Son prix de vente est de 197 000 €.Prenez contact avec notre agence (Jean ROPERS : (Numéro supprimé)) pour toute information sur le bien ou sur les modalités de vente. Maisons de l’Avenir Guipavas est là pour vous accompagner dans toutes vos démarches.
Ploumoguer
TERRAIN ET MAISONVENTE d’une maison de 5 pièces (100 m²) à PloumoguerCENTRE-VILLE – MAISON 5 PIÈCES NEUVEÀ vendre : localisée sur le littoral et à 15 km de Brest, Maisons de l’Avenir Guipavas vous propose cette maison de 5 pièces de plain-pied de 100 m² et de 400 m² de terrain, dans le centre de Ploumoguer (29810). Conçue de plain-pied, elle propose quatre chambres, une cuisine et deux salles de bains.Son prix de vente est de 328 000 €.Contactez Jean ROPERS ((Numéro supprimé)) pour toute question sur la maison, sur les modalités de vente ou sur les démarches à suivre. Maisons de l’Avenir Guipavas vous accompagne dans tous vos projets immobiliers et à toutes les étapes de l’achat.
Ploumoguer
TERRAIN ET MAISONMaison de 4 pièces (85 m²) à vendre à PloumoguerCENTRE-VILLE – MAISON 4 PIÈCES NEUVEÀ vendre : à quelques kilomètres de la mer et à quelques kilomètres de Brest, venez découvrir cette maison de 4 pièces de plain-pied de 85 m² à Ploumoguer (29810), en centre-ville.Son intérieur compte trois chambres, une cuisine et une salle de bains. Son prix de vente est de 249 500 €.Contactez notre agence (ROPERS Jean : (Numéro supprimé)) pour plus de renseignements sur la propriété, sur les modalités de vente et sur les démarches à suivre. Maisons de l’Avenir Guipavas est là pour vous accompagner dans tous vos projets immobiliers.
Ploumoguer
TERRAIN ET MAISONMaison F3 (70 m²) en vente à PloumoguerCENTRE-VILLE – MAISON 3 PIÈCES idéal investisseursSur le littoral et à quelques kilomètres de Brest, Maisons de l’Avenir Guipavas vous présente cette maison de 3 pièces de plain-pied de 70 m² en vente, en centre-ville de Ploumoguer (29810). Elle propose deux chambres, une cuisine et une salle de bains.Son prix de vente est de 233 000 €.N’hésitez pas à prendre contact avec notre agence (Jean ROPERS : (Numéro supprimé)) pour obtenir de plus amples renseignements sur la maison, sur les modalités de vente ou sur les démarches à suivre.
Ploumoguer
TERRAIN ET MAISONPloumoguer : maison de 4 pièces (95 m²) à vendreCENTRE-VILLE – MAISON 4 PIÈCES OSSATURE BOISÀ quelques kilomètres de la mer et à quelques kilomètres de Brest, nous sommes heureux de vous proposer cette maison de 4 pièces de plain-pied de 95 m² à vendre, dans le centre-ville de Ploumoguer (29810).Elle propose trois chambres, une cuisine et deux salles de bains. Elle est à vendre pour la somme de 299 700 €.Contactez Jean ROPERS ((Numéro supprimé)) pour toute question sur la maison, sur les modalités de vente et sur les démarches à suivre. Faites de vos projets immobiliers une réalité avec Maisons de l’Avenir Guipavas.
Plougonvelin
TERRAINTerrain de 283 m² en vente à PlougonvelinPROCHE CENTRE-VILLE – PROCHE DE BRESTTerrain de 283 m² à quelques kilomètres de la mer et à 17 km de Brest. Ce terrain se situe proche du centre-ville de Plougonvelin (29217). Il est exposé au sud-ouest. L’École Élémentaire Publique Roz Avel et l’École Primaire Privée Sacré-Coeur se trouvent à moins de 10 minutes à pied, tout comme deux crèches. Il y a deux boulangeries, deux commerces et un supermarché dans les environs.Son prix de vente est de 85 926 €. N’hésitez pas à prendre contact avec Sami ALKIS pour toute information sur le terrain, sur les modalités de vente et sur les démarches à suivre. Maisons de l’Avenir Guipavas vous accompagne dans tous vos projets immobiliers et dans toutes vos démarches.
Plougonvelin
TERRAIN ET MAISONVENTE : maison F4 (94 m²) à PlougonvelinPROCHE CENTRE-VILLE – MAISON 4 PIÈCES NEUVEEn vente : localisée sur le littoral et à quelques kilomètres de Brest, nous sommes ravis de vous proposer cette maison de 4 pièces de 94 m² proche du centre-ville de Plougonvelin (29217).Il s’agit d’une maison de 2 niveaux. Elle comporte trois chambres, une cuisine et deux salles de bains. Cette maison est neuve.Le terrain de la propriété s’étend sur 283 m².On trouve l’École Élémentaire Publique Roz Avel et l’École Primaire Privée Sacré-Coeur à moins de 10 minutes à pied et deux crèches. Il y a deux boulangeries, deux commerces et un supermarché à proximité du bien.Elle est proposée à l’achat pour 323 934 €.Contactez notre agence (Sami ALKIS) pour obtenir de plus amples renseignements sur la maison ou sur les démarches à suivre. Maisons de l’Avenir Guipavas vous accompagne à toutes les étapes de l’achat et dans tous vos projets immobiliers.
Plougonvelin
TERRAIN ET MAISONPlougonvelin : maison F4 (120 m²) en ventePROCHE CENTRE-VILLE – MAISON 4 PIÈCES NEUVEEn vente : localisée sur le littoral et à quelques kilomètres de Brest, proche du centre-ville de Plougonvelin (29217), nous vous proposons cette maison de 4 pièces de plain-pied de 120 m² et de 283 m² de terrain.Conçue de plain-pied, elle compte trois chambres, une cuisine et deux salles de bains. Cette maison est neuve.Il y a l’École Élémentaire Publique Roz Avel et l’École Primaire Privée Sacré-Coeur à moins de 10 minutes à pied et deux crèches. On trouve deux boulangeries, deux commerces et un supermarché dans les environs.Il est proposé à l’achat pour 382 412 €.Contactez notre agence (Sami ALKIS) pour obtenir de plus amples renseignements sur la maison, sur les démarches à suivre ou sur les modalités de vente.
L’actualité immobilière à Le Conquet
27/11/2023
02/11/2023
30/10/2023
20/10/2023
16/10/2023
16/10/2023