Maison à construire à Le Drennec (29860)
Images
Description
🏡 À Vendre : Terrain de 718m² au coeur du Drennec - 69 500€ 🌳
Découvrez ce terrain idéalement situé en plein centre du Drennec, issu d'un petit lotissement. Ce terrain de 718m² offre une proximité des commerces locaux, parfait pour une vie pratique et agréable. 🛒🏫
Nous vous proposons des plans sur mesure pour construire votre futur nid dans cette commune très recherchée. 🏠✨
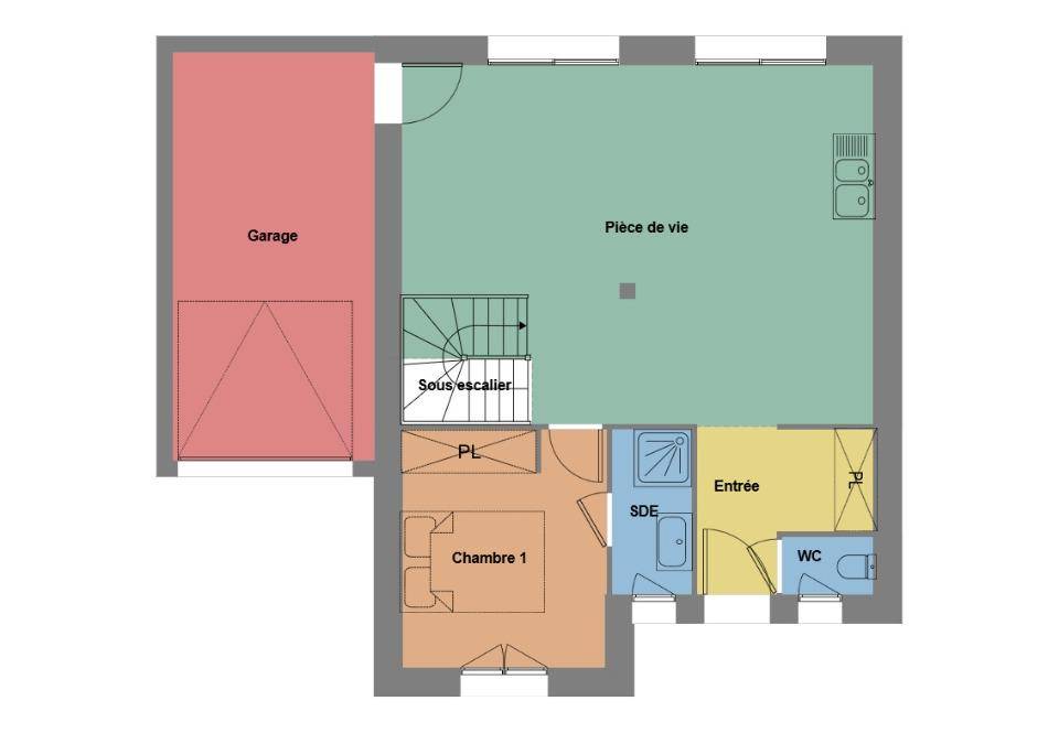
Maisons de l'Avenir vous propose un modèle sur plan de 115m², comprenant 4 chambres dont une suite parentale, un vaste espace de vie de 40m², deux salles de bains, et un grand garage. 🛏️🍽️🚿
Les plans sont entièrement modifiables, permettant ainsi une maison sur mesure dans tous les aspects, conçue dans le cadre de notre gamme de maisons passives Bâti Activ. 🏠🌿 Cette maison a été pensée pour maximiser les apports de lumière naturelle, favorisant ainsi les gains énergétiques. 🌞⚡
L'opération globale terrain + maison est de 348 700€. 💰
Si ce terrain vous intéresse, n'hésitez pas à contacter Erwan TILLY des Maisons de l'Avenir pour plus d'informations et organiser une visite. 📞
Une opportunité rare à saisir ! 🌟
Logement susceptibles de vous intéresser
Nous vous proposons de découvrir aussi cette sélection de logements situés à moins de 10km de Le Drennec et qui seraient susceptibles de vous intéresser.
Trémaouézan
TERRAIN ET MAISONDEVENEZ PROPRIÉTAIRE À TRÉMAOUÉZAN – MAISON NEUVE RE2020 SUR-MESUREVivez dans un cadre de vie paisible à Trémaouézan, charmante commune du Nord-Finistère, située à proximité de Lesneven, Landerneau et à quelques minutes du littoral.Profitez du calme de la campagne, tout en restant proche des commerces, écoles et grands axes – un environnement idéal pour votre famille ! Votre future maison comprendo 2 chambres spacieuses et lumineuseso Un grand salon-séjour traversant, ouvert sur le jardino Une cuisine moderne et fonctionnelleo Salle de bain et WC séparéso Le tout sur un terrain de 620 m², bien orienté et offrant un bel espace extérieur à aménager Les atouts du projeto Maison neuve RE2020, à faible consommation d’énergieo Plan personnalisable selon vos besoins et vos envieso Environnement verdoyant, à deux pas de Lesneven et Landerneauo Prestations de qualité et finitions soignéeso Cadre de vie calme, idéal pour un premier achat ou une famille Prix indiqué hors frais Photos non contractuelles à titre d’illustration Accession à la propriété possible avec ou sans apportNe manquez pas cette belle opportunité de devenir propriétaire d’une maison neuve, moderne et économique à Trémaouézan ! Contactez-nous dès maintenant pour découvrir les plans et étudier votre projet personnalisé.
Le Folgoët
TERRAIN ET MAISONDEVENEZ PROPRIÉTAIRE AU FOLGOËT – MAISON NEUVE RE2020 SUR-MESURE !Vivez dans un cadre de vie privilégié à Le Folgoët, charmante commune dynamique du Nord-Finistère, à seulement quelques minutes de Lesneven et des plages du littoral.Profitez du calme de la campagne, tout en restant proche des commerces, écoles et services – un environnement idéal pour votre famille ! Votre future maison comprend :o2 chambres spacieuses et lumineusesoUn grand salon-séjour traversant, ouvert sur le jardinoUne cuisine moderne et fonctionnelleoSalle de bain et WC séparésoLe tout sur un terrain de 338 m², bien orienté Les atouts du projet :oMaison neuve RE2020, à faible consommation d’énergieoPlan personnalisable selon vos besoinsoCadre de vie paisible, à proximité de Brest et du littoraloPrestations de qualité, finitions soignées Prix indiqué hors frais Photos non contractuelles à titre d’illustration Accession à la propriété possible avec ou sans apportNe manquez pas cette belle opportunité de devenir propriétaire d’une maison neuve moderne et économique au Folgoët ! Contactez-nous dès maintenant pour découvrir les plans et étudier votre projet personnalisé.
Lesneven
TERRAINLesneven : terrain de 428 m² en ventePROCHE CENTRE-VILLE – PROCHE DE BRESTÀ vendre à quelques kilomètres de la mer et à 24 km de Brest à Lesneven (29260), terrain de 428 m². Il est prêt à accueillir votre résidence principale ou secondaire pour toute la famille. Il est orienté au sud-ouest. Ce terrain est situé non loin du centre-ville. Tous les types d’écoles (maternelle, élémentaire et secondaire) se trouvent à moins de 10 minutes à pied, tout comme une crèche. Il y a un accès à la nationale N12 à 10 km. Il y a des commerces, quatre boulangeries, un supermarché, une poissonnerie et une épicerie dans les environs. Ne manquez pas le marché Centre-Ville chaque lundi.Il est proposé à l’achat pour 55 640 €. Contactez notre agence (Sami ALKIS) pour plus d’informations sur le terrain ou sur les démarches à suivre. Donnez vie à vos projets immobiliers avec Maisons de l’Avenir Guipavas.
Lesneven
TERRAIN ET MAISONMaison de 5 pièces (102 m²) en vente à LesnevenPROCHE CENTRE-VILLE – MAISON 5 PIÈCES NEUVEÀ vendre : sur le littoral et à quelques kilomètres de Brest, Maisons de l’Avenir Guipavas vous propose cette maison de 5 pièces de 102 m² proche du centre-ville de Lesneven (29260).Cette maison compte 2 niveaux. Elle offre quatre chambres, une cuisine et deux salles de bains. La maison est neuve.Le terrain du bien est de 428 m².Il y a tous les types d’établissements scolaires à moins de 10 minutes à pied, tout comme une crèche. La nationale N12 est accessible à 10 km. On trouve des commerces, quatre boulangeries, un supermarché, un bureau de poste et une épicerie à proximité. Le marché Centre-Ville a lieu chaque lundi.Elle est à vendre pour la somme de 253 939 €.Contactez notre agence (ALKIS Sami) pour toute question sur le bien. Maisons de l’Avenir Guipavas est là pour vous accompagner dans tous vos projets immobiliers.
Lesneven
TERRAIN ET MAISONMaison de 4 pièces (82 m²) en vente à LesnevenPROCHE CENTRE-VILLE – MAISON 4 PIÈCES NEUVEÀ vendre : située sur le littoral et à 24 km de Brest, nous sommes ravis de vous proposer cette maison de 4 pièces de plain-pied de 82 m² proche du centre-ville de Lesneven (29260).Elle compte trois chambres, une cuisine et une salle de bains. La maison est neuve.Le terrain du bien est de 428 m².Il y a des écoles de tous types à moins de 10 minutes à pied, tout comme une structure d’accueil pour les enfants en bas âge. La nationale N12 est accessible à 10 km. On trouve des commerces, quatre boulangeries, un supermarché, une épicerie et un bureau de poste dans les environs. Enfin, le marché Centre-Ville anime les environs chaque lundi.Elle est proposée à l’achat pour 245 834 €.Prenez contact avec notre agence (ALKIS Sami) pour plus d’informations sur la maison.
Lesneven
TERRAIN ET MAISONVENTE d’une maison T4 (94 m²) à LesnevenPROCHE CENTRE-VILLE – MAISON 4 PIÈCES NEUVEEn vente : sur le littoral et à 24 km de Brest, notre agence Maisons de l’Avenir Guipavas est ravie de vous présenter cette maison de 4 pièces de 94 m² et de 428 m² de terrain proche du centre-ville de Lesneven (29260).Cette maison compte 2 niveaux. Son intérieur comporte trois chambres, une cuisine et deux salles de bains. La maison est neuve.Il y a tous les types d’écoles à moins de 10 minutes à pied, tout comme une crèche. La nationale N12 est accessible à 10 km. On trouve des commerces, quatre boulangeries, un supermarché, trois boucheries-charcuteries et une poissonnerie dans les environs. Enfin, le marché Centre-Ville a lieu chaque lundi.Elle est à vendre pour la somme de 293 989 €.Contactez Sami ALKIS pour tout renseignement sur la maison ou sur les démarches à suivre. Concrétisez vos projets immobiliers avec Maisons de l’Avenir Guipavas.
Le Folgoët
TERRAINDans la charmante commune du Folgoët, un terrain de 680m² est désormais sur le marché. Ce terrain, idéalement situé, offre une opportunité rare d’investissement et de construction dans une zone recherchée.Ce terrain se distingue par son emplacement de choix.L’atout majeur de ce terrain est sans aucun doute sa superficie généreuse de 680m². Cet espace offre une grande liberté pour la construction de votre future maison. Que vous envisagiez une maison familiale spacieuse, une habitation à l’architecture moderne ou une demeure au charme traditionnel, ce terrain est idéal pour réaliser vos projets.De plus, il bénéficie d’une excellente exposition. Il promet une luminosité optimale tout au long de la journée, un atout de taille pour profiter au maximum de votre future maison.N’attendez plus pour découvrir ce terrain, une opportunité à ne pas manquer pour concrétiser vos projets immobiliers.Son prix de vente est de 50 000 €. Contactez Aurélie CAGNARD (tél : (Numéro supprimé)) pour plus de renseignements sur ce terrain, sur les démarches à suivre et sur les modalités de vente.
Le Folgoët
TERRAIN ET MAISONVENTE d’une maison de 5 pièces (114 m²) au FolgoëtNouveau Murs Ossature BoisCette belle maison traditionnelle aux lignes contemporaines offre 114m² habitable . Au rez-de-chaussée, elle dispose d’une très belle pièce de vie offrant un maximum de lumière, d’un wc, d’un bureau, d’un cellier et d’un garage. A l’étage on retrouve 3 chambres, une salle de bains et un wc. L’orientation de cette maison vous permettra de bénéficier d’un maximum de lumière et de chaleur naturelle pour davantage d’économies et de douceur de vivre.Son prix de vente est de 338 600 €.Contactez Aurélie CAGNARD (tél : (Numéro supprimé)) pour tout renseignement sur cette maison. Concrétisez vos projets immobiliers avec Maisons de l’Avenir Guipavas.
Le Folgoët
TERRAIN ET MAISONVENTE d’une maison de 5 pièces (113 m²) au FolgoëtNouveau Maison Murs Ossature Bois Nous sommes ravis de vous présenter à Plougar (29440)Ce très beau plain-pied aux lignes contemporaine, de 113 m² agencé astucieusement pour un maximum de luminosité, pièce de vie ouverte et volumineuse, 4 chambres dont 1 suite parentale, son grand cellier et son garage. Aux normes RE2020, peu énergivore, elle vous ravira par son confort de vie Son prix de vente est de 336 200 €.Contactez notre agence (Aurélie CAGNARD : (Numéro supprimé)) pour tout renseignement sur cette propriété, sur les démarches à suivre ou sur les modalités de vente.
L’actualité immobilière à Le Drennec
27/11/2023
02/11/2023
30/10/2023
20/10/2023
16/10/2023
16/10/2023