Maison à construire à Le Drennec (29860)
Images
Description
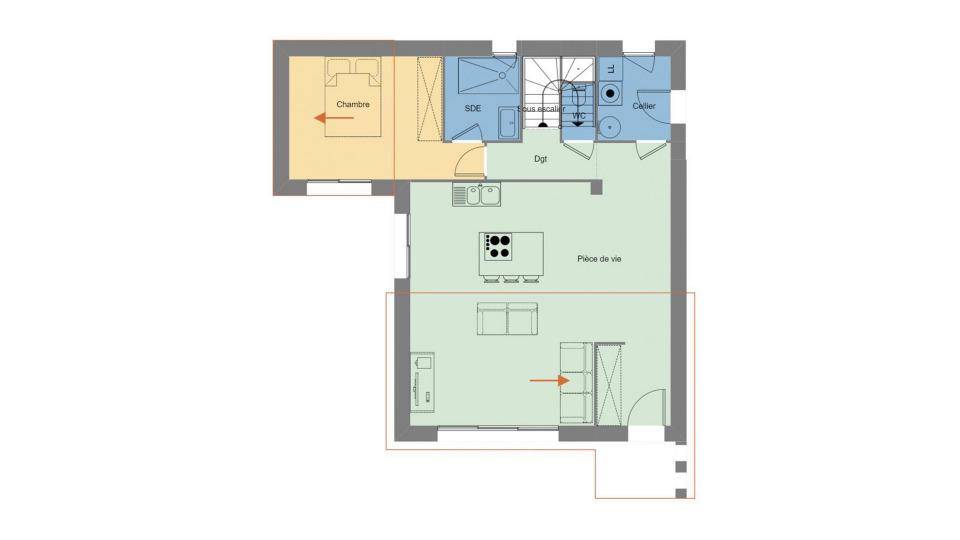
VENTE d'une maison de 4 pièces (94 m²) au Drennec
PROCHE CENTRE-VILLE - MAISON 4 PIÈCES NEUVE
À vendre : localisée à quelques kilomètres de la mer et à deux pas de Brest, proche du centre-ville du Drennec (29860), nous sommes heureux de vous présenter cette maison de 4 pièces de 94 m². Elle dispose de trois chambres, d'une cuisine et de deux salles de bains.
Le terrain de la maison s'étend sur 416 m².
C'est une maison de 2 niveaux. Elle est neuve.
On trouve l'École Primaire Publique des Sources et l'École Primaire Privée Saint Adrien à moins de 10 minutes à pied. La nationale N12 est accessible à 8 km. Il y a une bibliothèque et une boulangerie à proximité.
Elle est proposée à l'achat pour 286 834 €.
Contactez notre agence (Sami ALKIS) pour toute information sur la maison. Maisons de l'Avenir Guipavas est là pour vous accompagner dans tous vos projets immobiliers.
Logement susceptibles de vous intéresser
Nous vous proposons de découvrir aussi cette sélection de logements situés à moins de 10km de Le Drennec et qui seraient susceptibles de vous intéresser.
Plabennec
TERRAINVENTE d’un terrain de 436 m² à PlabennecPROCHE CENTRE-VILLE – PROCHE DE BRESTÀ Plabennec (29860) sur le littoral et à 12 km de Brest, imaginez la maison de vos rêves sur ce terrain de 436 m². Il est orienté au sud-ouest. Il se situe non loin du centre-ville. L’École Primaire Privée Sainte Anne se trouve à moins de 10 minutes à pied. Les nationales N12 et N265 sont accessibles à moins de 10 km. Il y a une bibliothèque, des commerces, quatre boulangeries, un supermarché, une boucherie-charcuterie et un bureau de poste à proximité du terrain.Ce terrain est à vendre pour la somme de 108 500 €. Contactez Sami ALKIS pour toute question sur ce terrain et sur les démarches à suivre.
Plabennec
TERRAIN ET MAISONMaison T4 (89 m²) à vendre à PlabennecPROCHE CENTRE-VILLE – MAISON 4 PIÈCES NEUVEÀ vendre : à quelques kilomètres de la mer et à deux pas de Brest, nous sommes ravis de vous présenter cette maison de 4 pièces de 89 m² et de 436 m² de terrain proche du centre-ville de Plabennec (29860). Son intérieur est composé de trois chambres, d’une cuisine et de deux salles de bains.Cette maison compte 2 niveaux. Elle est neuve.L’École Primaire Privée Sainte Anne est implantée à moins de 10 minutes à pied. Les nationales N12 et N265 sont accessibles à moins de 10 km. On trouve une bibliothèque, des commerces, quatre boulangeries, un supermarché, un bureau de poste et une boucherie-charcuterie à quelques minutes.Elle est à vendre pour la somme de 341 827 €.Contactez notre agence (Sami ALKIS) pour toute information sur la maison. Faites de vos projets immobiliers une réalité avec Maisons de l’Avenir Guipavas.
Le Folgoët
TERRAINTerrain de 495 m² à vendre au FolgoëtPROCHE CENTRE-VILLE – PROCHE DE BRESTEn vente sur le littoral et à quelques kilomètres de Brest au Folgoët (29260), terrain de 495 m². Il est prêt à accueillir la maison de vos rêves pour toute la famille. Il est exposé au sud-ouest. Ce terrain se situe non loin du centre-ville. L’École Primaire Privée Sainte Anne-Notre Dame et l’École Primaire Publique Paul Gauguin sont implantées à moins de 10 minutes à pied. La nationale N12 est accessible à 10 km. Il y a trois boulangeries, plusieurs commerces, un supermarché et une boucherie-charcuterie à proximité du bien.Il est à vendre pour la somme de 72 200 €. N’hésitez pas à prendre contact avec notre agence (ALKIS Sami) pour obtenir de plus amples renseignements sur le terrain et sur les démarches à suivre.
Le Folgoët
TERRAIN ET MAISONMaison T5 (92 m²) à vendre au FolgoëtPROCHE CENTRE-VILLE – MAISON 5 PIÈCES NEUVEEn vente : à quelques kilomètres de la mer et à quelques kilomètres de Brest, nous sommes heureux de vous proposer, proche du centre-ville du Folgoët (29260), cette maison de 5 pièces de 92 m² et de 495 m² de terrain. Elle dispose de quatre chambres, d’une cuisine et de deux salles de bains.Il s’agit d’une maison de 2 niveaux. Elle est neuve.Il y a l’École Primaire Privée Sainte Anne-Notre Dame et l’École Primaire Publique Paul Gauguin à moins de 10 minutes à pied. La nationale N12 est accessible à 10 km. On trouve trois boulangeries, plusieurs commerces, un supermarché et une boucherie-charcuterie à quelques minutes.Elle est proposée à l’achat pour 276 830 €.Contactez Sami ALKIS pour tout renseignement sur la maison, sur les démarches à suivre ou sur les modalités de vente. Maisons de l’Avenir Guipavas vous accompagne dans tous vos projets immobiliers et dans toutes vos démarches.
Le Folgoët
TERRAIN ET MAISONVENTE : maison T4 (82 m²) au FolgoëtPROCHE CENTRE-VILLE – MAISON 4 PIÈCES NEUVEÀ quelques kilomètres de la mer et à quelques kilomètres de Brest, venez découvrir cette maison de 4 pièces de plain-pied de 82 m² proche du centre-ville du Folgoët (29260). Son intérieur inclut trois chambres, une cuisine et une salle de bains.Le terrain de la propriété s’étend sur 495 m².Cette maison est neuve.Il y a l’École Primaire Privée Sainte Anne-Notre Dame et l’École Primaire Publique Paul Gauguin à moins de 10 minutes à pied. La nationale N12 est accessible à 10 km. On trouve trois boulangeries, des commerces, un supermarché et une boucherie-charcuterie à proximité.Elle est proposée à l’achat pour 271 807 €.Contactez notre agence (Sami ALKIS) pour tout renseignement sur la maison. Maisons de l’Avenir Guipavas vous accompagne dans toutes vos démarches et dans tous vos projets immobiliers.
Le Drennec
TERRAINTerrain de 416 m² à vendre au DrennecPROCHE CENTRE-VILLE – PROCHE DE BRESTSur le littoral et à 17 km de Brest au Drennec (29860), terrain de 416 m². Il est exposé au sud-ouest. Il se trouve non loin du centre-ville. Il y a l’École Primaire Publique des Sources et l’École Primaire Privée Saint Adrien à moins de 10 minutes à pied. La nationale N12 est accessible à 8 km. On trouve une bibliothèque et une boulangerie à proximité de la propriété.Son prix de vente est de 56 160 €. Contactez Sami ALKIS pour obtenir de plus amples renseignements sur le terrain. Maisons de l’Avenir Guipavas vous accompagne dans toutes vos démarches et à toutes les étapes de votre projet.
Le Drennec
TERRAIN ET MAISONVENTE d’une maison de 4 pièces (94 m²) au DrennecPROCHE CENTRE-VILLE – MAISON 4 PIÈCES NEUVEÀ vendre : localisée à quelques kilomètres de la mer et à deux pas de Brest, proche du centre-ville du Drennec (29860), nous sommes heureux de vous présenter cette maison de 4 pièces de 94 m². Elle dispose de trois chambres, d’une cuisine et de deux salles de bains.Le terrain de la maison s’étend sur 416 m².C’est une maison de 2 niveaux. Elle est neuve.On trouve l’École Primaire Publique des Sources et l’École Primaire Privée Saint Adrien à moins de 10 minutes à pied. La nationale N12 est accessible à 8 km. Il y a une bibliothèque et une boulangerie à proximité.Elle est proposée à l’achat pour 286 834 €.Contactez notre agence (Sami ALKIS) pour toute information sur la maison. Maisons de l’Avenir Guipavas est là pour vous accompagner dans tous vos projets immobiliers.
Le Drennec
TERRAIN ET MAISONMaison de 4 pièces (82 m²) en vente au DrennecPROCHE CENTRE-VILLE – MAISON 4 PIÈCES NEUVEÀ quelques kilomètres de la mer et à deux pas de Brest, en vente proche du centre-ville du Drennec (29860), Maisons de l’Avenir Guipavas vous propose cette maison de 4 pièces de plain-pied de 82 m² et de 416 m² de terrain.Son intérieur inclut trois chambres, une cuisine et une salle de bains. Cette maison est neuve.L’École Primaire Publique des Sources et l’École Primaire Privée Saint Adrien se trouvent à moins de 10 minutes à pied. Il y a un accès à la nationale N12 à 8 km. Il y a une bibliothèque et une boulangerie à proximité.Son prix de vente est de 242 992 €.Contactez Sami ALKIS pour obtenir de plus amples informations sur la maison. Faites de vos projets immobiliers une réalité avec Maisons de l’Avenir Guipavas.
Le Drennec
TERRAINVENTE : terrain de 300 m² au DrennecPROCHE CENTRE-VILLE – PROCHE DE BRESTSur le littoral et à quelques kilomètres de Brest au Drennec (29860), terrain de 300 m². Il est prêt à accueillir votre projet immobilier pour toute la famille. Il est orienté au sud-ouest. Ce terrain se trouve non loin du centre-ville. L’École Primaire Publique des Sources et l’École Primaire Privée Saint Adrien sont implantées à moins de 10 minutes à pied. La nationale N12 est accessible à 8 km. Il y a une bibliothèque et une boulangerie à proximité.Son prix de vente est de 43 500 €. Contactez Sami ALKIS pour obtenir de plus amples renseignements sur ce terrain.
L’actualité immobilière à Le Drennec
27/11/2023
02/11/2023
30/10/2023
20/10/2023
16/10/2023
16/10/2023