Maison à construire à Le Folgoët (29260)
Images
Description
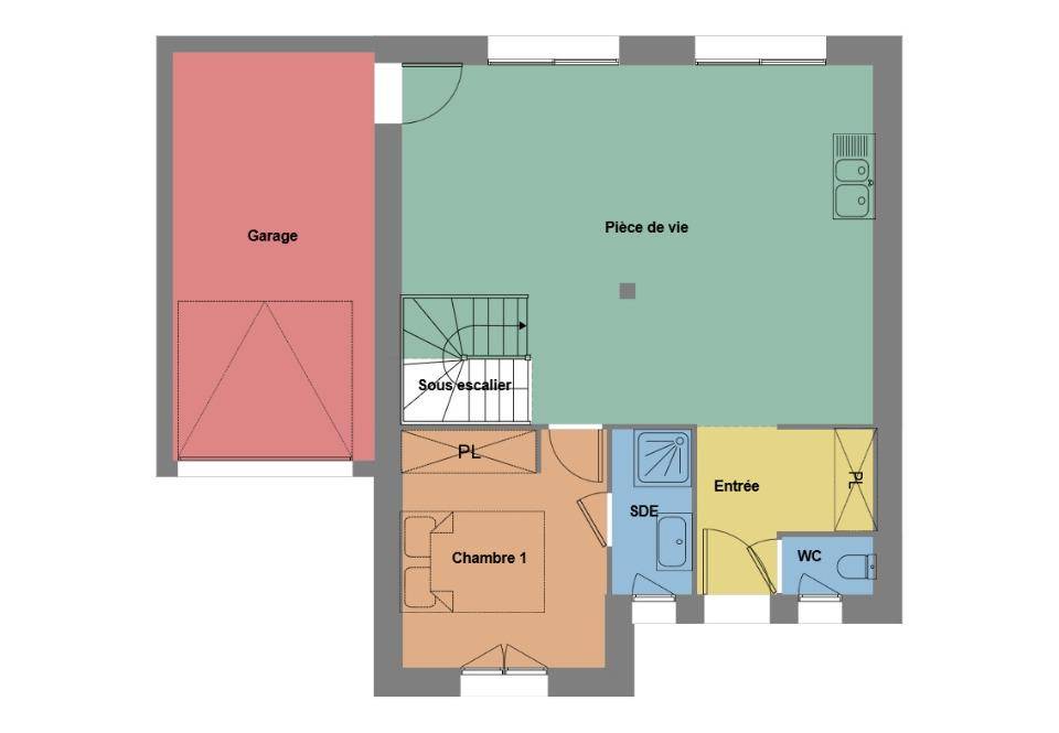
Le Folgoët : maison de 5 pièces (85 m²) à vendre
IDÉALEMENT SITUÉE - MAISON 5 PIÈCES NEUVE
À vendre à quelques kilomètres de la mer et à quelques kilomètres de Brest, idéalement située dans Le Folgoët (29260), ayez le coup de coeur pour cette maison de 5 pièces de 85 m² et de 495 m² de terrain. Elle offre quatre chambres, une cuisine et deux salles de bains.
Il s'agit d'une maison de 2 niveaux. Elle est neuve.
Elle est à vendre pour la somme de 280 100 €.
Contactez notre agence (Erwan TILLY) pour plus d'informations sur le bien ou sur les modalités de vente.
Logement susceptibles de vous intéresser
Nous vous proposons de découvrir aussi cette sélection de logements situés à moins de 10km de Le Folgoët et qui seraient susceptibles de vous intéresser.
Lesneven
TERRAINDEVENEZ PROPRIÉTAIRE D’UN TERRAIN À LESNEVEN !Vivez dans un cadre de vie privilégié à Lesneven, commune dynamique du Nord-Finistère, offrant toutes les commodités et idéalement située à proximité du littoral.Profitez d’un environnement agréable, tout en restant proche des commerces, écoles, services et infrastructures – un cadre idéal pour votre futur projet ! Votre terrain comprend 😮 Une surface de 666 m², bien orientéeo Possibilité de construire la maison de vos rêves selon vos envies Les atouts du projet 😮 Terrain viabilisé ou proche des réseauxo Cadre de vie recherché, à proximité des plages et des axes principauxo Liberté de construction, avec plan personnalisable selon vos besoins Prix indiqué hors frais Photos non contractuelles à titre d’illustration Accession possible avec ou sans apportNe manquez pas cette opportunité unique de devenir propriétaire d’un terrain à Lesneven et de réaliser votre projet sur-mesure ! Contactez-nous dès maintenant pour plus d’informations et étudier votre projet.
Le Folgoët
TERRAIN ET MAISONDEVENEZ PROPRIÉTAIRE AU FOLGOËT – MAISON NEUVE conforme à la dernière norme basse consommation RE-2020 !Vivez dans un cadre de vie privilégié au Folgoët, commune recherchée du Finistère, offrant un environnement calme et verdoyant tout en restant proche des commerces, des écoles et de toutes les commodités – un lieu idéal pour votre famille !Votre future maison comprend 😮 2 chambres spacieuses et lumineuseso Un grand salon-séjour traversant, ouvert sur le jardino Une cuisine moderne et fonctionnelleo Salle de bain et WC séparéso Le tout sur un terrain de 338 m², bien orientéLes atouts du projet 😮 Maison neuve RE2020, à faible consommation d’énergieo Plan personnalisable selon vos besoinso Environnement paisible et familialo Prestations de qualité, finitions soignéesAccession à la propriété possible avec ou sans apport, étude de financement gratuite.Photos à titre d’illustration (photos d’une de nos réalisations – non contractuelles).Nous trouvons l’adresse idéale parmi plus de 200 terrains disponibles pour votre future demeure.Ne manquez pas cette belle opportunité de devenir propriétaire d’une maison neuve moderne et économique au Folgoët !Contactez-nous dès maintenant pour découvrir les plans et étudier votre projet personnalisé.Armorique Immos, franchise d’un constructeur national de maisons individuelles depuis plus de 40 ans, propose en collaboration avec ses partenaires fonciers une sélection de terrains constructibles, selon disponibilité, pour la construction de maisons neuves définies par le constructeur, avec un contrat de construction de maison individuelle, dans le cadre de la loi du 19/12/1990.Prix net, hors frais notariés, d’enregistrement et de publicité foncière.Étude financière réalisée par nos partenaires en courtage (IOSB inscrit à l’Orias).
Kerlouan
TERRAIN ET MAISONKerlouan : maison F5 (164 m²) en venteMAISON 5 PIÈCES NEUVE – PROCHE DE BRESTÀ quelques kilomètres de la mer et à deux pas de Brest, notre agence Maisons de l’Avenir Guipavas est heureuse de vous proposer cette maison de 5 pièces de 164 m² à vendre à Kerlouan (29890). Son intérieur inclut quatre chambres, une cuisine et deux salles de bains.Le terrain de la propriété est de 588 m².Cette maison possède 2 niveaux. Elle est neuve.L’École Primaire Privée Sainte Anne est implantée à moins de 10 minutes à pied. On trouve un accès à la nationale N12 à 19 km. Il y a une bibliothèque, une boulangerie, un commerce, un supermarché, une boucheries-charcuteries et un bureau de poste dans les environs.Son prix de vente est de 458 000 €.Contactez Aurélie CAGNARD pour plus de renseignements sur cette maison.
Lesneven
TERRAIN ET MAISON📍 À VENDRE – Terrain constructible de 395 m² à LesnevenSitué à Lesneven, ce terrain constructible de 395 m² représente une opportunité rare pour concrétiser votre projet immobilier dans un environnement calme et résidentiel, à seulement 10 minutes à pied du centre-ville.🔹 Caractéristiques principales :Superficie : 395 m²Forme : RectangulaireBornage : EffectuéViabilisation : Non viabilisé, mais réseaux (eau, électricité, télécommunications, tout-à-l’égout) en bordure de parcelleConstructibilité : Terrain libre de constructeur, non soumis à l’avis des Architectes des Bâtiments de France (ABF)Emprise au sol maximale : 40 %, soit environ 158 m² constructibles🌿 Environnement :Issu d’une division de parcelles, le terrain se situe dans un quartier paisible et bénéficie d’une proximité immédiate avec toutes les commodités : commerces, écoles, services de santé…💰 Prix de vente : 54 900 €💡 Nous vous proposons sur ce terrain un projet de maison de 70 m² en plein pied, au style contemporain comprenant :3 chambres 1 salles de bains avec douche et baignoire 🚿Un vaste espace de vie de plus de 35 m² lumineux ☀️Un grand garage 🚗Une conception intégrée dans notre concept Maisons Bâti Activ, favorisant l’ensoleillement naturel et réduisant vos coûts énergétiques 🌿⚡💰 Prix de l’opération Terrain + Maison : 245 000 €Ce terrain et ce projet de maison n’attendent plus que vous pour devenir réalité 🏡.📞 Pour plus d’informations ou organiser une visite, contactez Erwan TILLY – Maisons de l’Avenir.
Kersaint-Plabennec
TERRAIN ET MAISON📍 Terrain + Maison à vendre – Kersaint-PlabennecDécouvrez ce beau terrain viabilisé, idéalement situé dans un lotissement calme et arboré, sur la commune de Kersaint-Plabennec.✅ Retour à la vente suite à un désistement – une belle opportunité à saisir rapidement !✅ Proximité immédiate des voies express, alliant accessibilité et tranquillité✅ Environnement agréable et verdoyant💡 Nous vous proposons sur ce terrain un projet de maison de plein pied 115 m², au style contemporain. comprenant :3 chambres dont une suite parentale 🛏️2 salles de bains 🚿Un vaste espace de vie de plus de 45 m² lumineux ☀️Un grand garage 🚗Une conception intégrée dans notre concept Maisons Bâti Activ, favorisant l’ensoleillement naturel et réduisant vos coûts énergétiques 🌿⚡💰 Prix de l’opération Terrain + Maison : 325 000 €Ce terrain et ce projet de maison n’attendent plus que vous pour devenir réalité 🏡.📞 Contactez dès aujourd’hui Erwan TILLY – Conseiller Maisons de l’Avenir, afin d’organiser une visite et commencer à concevoir votre projet sur-mesure.
Guissény
TERRAINTerrain de 867 m² en vente à GuissényPROCHE DE BRESTSur le littoral et à 24 km de Brest à Guissény (29880), grand terrain. Il est prêt à accueillir votre projet de construction pour toute la famille. L’Annexe du Collège Privé Diwan Penn Ar Bed Relecq-Kerhuon et l’École Primaire Privée Sainte Jeanne d’Arc sont implantés dans la commune. Il y a un accès à la nationale N12 à 18 km. Il y a une bibliothèque à proximité de la propriété.Il est proposé à l’achat pour 110 000 €. Contactez Aurélie CAGNARD pour toute question sur ce terrain ou sur les modalités de vente. Faites de vos projets immobiliers une réalité avec Maisons de l’Avenir Guipavas.
Lesneven
TERRAIN ET MAISON📍 À VENDRE – Terrain constructible de 395 m² à LesnevenSitué à Lesneven, ce terrain constructible de 395 m² représente une opportunité rare pour concrétiser votre projet immobilier dans un environnement calme et résidentiel, à seulement 10 minutes à pied du centre-ville.🔹 Caractéristiques principales :Superficie : 395 m²Forme : RectangulaireBornage : EffectuéViabilisation : Non viabilisé, mais réseaux (eau, électricité, télécommunications, tout-à-l’égout) en bordure de parcelleConstructibilité : Terrain libre de constructeur, non soumis à l’avis des Architectes des Bâtiments de France (ABF)Emprise au sol maximale : 40 %, soit environ 158 m² constructibles🌿 Environnement :Issu d’une division de parcelles, le terrain se situe dans un quartier paisible et bénéficie d’une proximité immédiate avec toutes les commodités : commerces, écoles, services de santé…💰 Prix de vente : 54 900 €💡 Nous vous proposons sur ce terrain un projet de maison de 90 m² en plein pied, au style contemporain avec des touches contemporaines comprenant :3 chambres dont une suite parentale 🛏️2 salles de bains 🚿Un vaste espace de vie de plus de 45 m² lumineux ☀️Un grand garage 🚗Une conception intégrée dans notre concept Maisons Bâti Activ, favorisant l’ensoleillement naturel et réduisant vos coûts énergétiques 🌿⚡💰 Prix de l’opération Terrain + Maison : 278 000 €Ce terrain et ce projet de maison n’attendent plus que vous pour devenir réalité 🏡.📞 Pour plus d’informations ou organiser une visite, contactez Erwan TILLY – Maisons de l’Avenir.
Kerlouan
TERRAINKerlouan : terrain de 588 m² à vendrePROCHE DE BRESTÀ Kerlouan (29890) en vente à quelques kilomètres de la mer et à deux pas de Brest, donnez vie à votre résidence principale ou secondaire sur ce terrain de 588 m². L’École Primaire Privée Sainte Anne est implantée à moins de 10 minutes à pied. La nationale N12 est accessible à 19 km. On trouve une bibliothèque, une boulangerie, un commerce, un supermarché, un bureau de poste et une boucherie-charcuterie dans les environs.Son prix de vente est de 50 000 €. N’hésitez pas à prendre contact avec notre agence (CAGNARD Aurélie) pour tout renseignement sur ce terrain et sur les démarches à suivre. Donnez vie à vos projets immobiliers avec Maisons de l’Avenir Guipavas.
Kerlouan
TERRAIN ET MAISONKerlouan : maison de 4 pièces (90 m²) à vendreMAISON 4 PIÈCES NEUVE – PROCHE DE BRESTÀ vendre : sur le littoral et à 28 km de Brest, Maisons de l’Avenir Guipavas vous propose cette maison de 4 pièces de 90 m² à Kerlouan (29890). Son intérieur comporte trois chambres, une cuisine et deux salles de bains.Le terrain de la propriété est de 588 m².C’est une maison de 2 niveaux. Elle est neuve.Il y a l’École Primaire Privée Sainte Anne à moins de 10 minutes à pied. On trouve un accès à la nationale N12 à 19 km. On trouve une bibliothèque, une boulangerie, un commerce, un supermarché, un bureau de poste et une boucherie-charcuterie à proximité du bien.Son prix de vente est de 305 000 €.N’hésitez pas à prendre contact avec Aurélie CAGNARD pour obtenir de plus amples informations sur cette maison, sur les démarches à suivre ou sur les modalités de vente. Maisons de l’Avenir Guipavas vous accompagne dans tous vos projets immobiliers et à toutes les étapes de l’achat.
L’actualité immobilière à Le Folgoët
27/11/2023
02/11/2023
30/10/2023
20/10/2023
16/10/2023
16/10/2023