Maison à construire à Le Relecq-Kerhuon (29480)
Images
Description
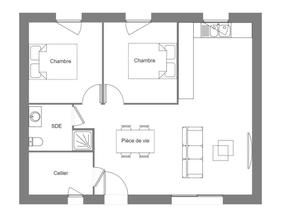
Maison T3 (57 m²) à vendre au Relecq-Kerhuon
PROCHE CENTRE-VILLE - MAISON 3 PIÈCES NEUVE
À vendre sur le littoral et à deux pas de Brest, nous sommes ravis de vous présenter cette maison de 3 pièces de plain-pied de 57 m² et de 301 m² de terrain proche du centre-ville du Relecq-Kerhuon (29480).
Elle est composée de deux chambres, d'une cuisine et d'une salle de bains. Cette maison est neuve.
Il y a le Collège Privé Diwan Penn Ar Bed, le Collège Camille Vallaux et l'École Primaire Publique Jules Ferry à moins de 10 minutes à pied et une crèche. Côté transports, on trouve quatre gares à moins de 10 minutes en voiture. La nationale N165 est accessible à 1 km. Il y a une bibliothèque, un tennis et plusieurs commerces dans les environs.
Son prix de vente est de 217 868 €.
Contactez notre agence (Sami ALKIS) pour toute question sur la maison. Maisons de l'Avenir Guipavas est là pour vous accompagner dans toutes vos démarches.
Logement susceptibles de vous intéresser
Nous vous proposons de découvrir aussi cette sélection de logements situés à moins de 10km de Le Relecq-Kerhuon et qui seraient susceptibles de vous intéresser.
Brest
TERRAINDEVENEZ PROPRIÉTAIRE D’UN TERRAIN À BREST – LAMBÉZELLEC !Offrez-vous un cadre de vie idéal à Brest – Lambézellec, quartier recherché alliant tranquillité et proximité du centre-ville.Profitez d’un environnement agréable, à deux pas des commerces, écoles et transports, tout en bénéficiant du confort d’un quartier résidentiel prisé de Brest. Votre terrain comprend 😮 Une surface de 350 m², bien orientéeo Possibilité de construire la maison de vos rêves selon vos envies Les atouts du projet 😮 Terrain viabilisé ou proche des réseauxo Emplacement privilégié, proche de toutes commodités et des grands axeso Liberté de construction, avec plan personnalisable selon vos besoins Prix indiqué hors frais Photos non contractuelles, à titre d’illustration Accession possible avec ou sans apportNe manquez pas cette opportunité unique de devenir propriétaire d’un terrain à Brest – Lambézellec et de réaliser votre projet sur mesure dans un secteur dynamique et recherché ! Contactez-nous dès maintenant pour plus d’informations et pour étudier votre projet en détail.
Le Relecq-Kerhuon
TERRAINVENTE : terrain de 301 m² au Relecq-KerhuonPROCHE CENTRE-VILLE – PROCHE DE BRESTTerrain de 301 m² à quelques kilomètres de la mer et à 8 km de Brest. Ce terrain se situe proche du centre-ville du Relecq-Kerhuon (29480). Il est orienté au sud-ouest. Il y a le Collège Privé Diwan Penn Ar Bed, le Collège Camille Vallaux et l’École Primaire Publique Jules Ferry à moins de 10 minutes à pied et une structure d’accueil pour les enfants en bas âge. Niveau transports, on trouve quatre gares à moins de 10 minutes en voiture. On trouve un accès à la nationale N165 à 1 km. Il y a une bibliothèque, un tennis et des commerces à proximité du terrain.Il est proposé à l’achat pour 84 000 €. Prenez contact avec Sami ALKIS pour plus d’informations sur ce terrain ou sur les modalités de vente. Donnez vie à vos projets immobiliers avec Maisons de l’Avenir Guipavas.
Le Relecq-Kerhuon
TERRAIN ET MAISONMaison T3 (57 m²) à vendre au Relecq-KerhuonPROCHE CENTRE-VILLE – MAISON 3 PIÈCES NEUVEÀ vendre sur le littoral et à deux pas de Brest, nous sommes ravis de vous présenter cette maison de 3 pièces de plain-pied de 57 m² et de 301 m² de terrain proche du centre-ville du Relecq-Kerhuon (29480).Elle est composée de deux chambres, d’une cuisine et d’une salle de bains. Cette maison est neuve.Il y a le Collège Privé Diwan Penn Ar Bed, le Collège Camille Vallaux et l’École Primaire Publique Jules Ferry à moins de 10 minutes à pied et une crèche. Côté transports, on trouve quatre gares à moins de 10 minutes en voiture. La nationale N165 est accessible à 1 km. Il y a une bibliothèque, un tennis et plusieurs commerces dans les environs.Son prix de vente est de 217 868 €.Contactez notre agence (Sami ALKIS) pour toute question sur la maison. Maisons de l’Avenir Guipavas est là pour vous accompagner dans toutes vos démarches.
Guipavas
TERRAIN ET MAISONVENTE : maison F4 (73 m²) à GuipavasPROCHE CENTRE-VILLE – MAISON 4 PIÈCES NEUVESur le littoral et à deux pas de Brest, nous sommes ravis de vous proposer cette maison de 4 pièces de plain-pied de 73 m² proche du centre-ville de Guipavas (29490).Son intérieur propose trois chambres, une cuisine et une salle de bains. Cette maison est neuve.Le terrain de la propriété s’étend sur 402 m².Il y a cinq établissements scolaires à moins de 10 minutes à pied, tout comme une crèche. Niveau transports en commun, on trouve quatre gares à moins de 10 minutes en voiture. La nationale N12 est accessible à 1 km. Il y a une bibliothèque, deux boulangeries, des commerces, une poissonnerie, une supérette et deux boucheries-charcuteries à proximité du bien.Son prix de vente est de 288 811 €.N’hésitez pas à prendre contact avec Sami ALKIS pour plus de renseignements sur la maison.
Guipavas
TERRAINVENTE : terrain de 402 m² à GuipavasPROCHE CENTRE-VILLE – PROCHE DE BRESTTerrain de 402 m² sur le littoral et à quelques kilomètres de Brest. Ce terrain se situe proche du centre-ville de Guipavas (29490). Il bénéficie d’une exposition sud-ouest. Cinq établissements scolaires se trouvent à moins de 10 minutes à pied, tout comme une structure d’accueil pour les enfants en bas âge. Niveau transports, il y a quatre gares à moins de 10 minutes en voiture. Il y a un accès à la nationale N12 à 1 km. On trouve une bibliothèque, deux boulangeries, des commerces, deux boucheries-charcuteries, un bureau de poste et une poissonnerie à proximité du terrain.Il est à vendre pour la somme de 97 460 €. Contactez Sami ALKIS pour obtenir de plus amples renseignements sur ce terrain.
Guipavas
TERRAIN ET MAISONVENTE : maison de 4 pièces (115 m²) à GuipavasPROCHE CENTRE-VILLE – MAISON 4 PIÈCES NEUVEÀ quelques kilomètres de la mer et à deux pas de Brest, nous sommes ravis de vous proposer à vendre, proche du centre-ville de Guipavas (29490), cette maison de 4 pièces de 115 m².Il s’agit d’une maison de 2 niveaux. Son intérieur comporte quatre chambres, une cuisine et deux salles de bains. La maison est neuve.Le terrain du bien s’étend sur 461 m².Cinq établissements scolaires sont implantés à moins de 10 minutes à pied, tout comme une structure d’accueil pour les enfants en bas âge. Côté transports en commun, on trouve quatre gares à moins de 10 minutes en voiture. La nationale N12 est accessible à 1 km. Il y a une bibliothèque, deux boulangeries, des commerces, un bureau de poste, une supérette et deux boucheries-charcuteries dans les environs.Elle est à vendre pour la somme de 432 853 €.Contactez Sami ALKIS pour plus de renseignements sur la maison et sur les modalités de vente. Maisons de l’Avenir Guipavas est là pour vous accompagner dans toutes vos démarches.
Guipavas
TERRAINGuipavas : terrain de 461 m² à vendrePROCHE CENTRE-VILLE – PROCHE DE BRESTTerrain de 461 m² à vendre sur le littoral et à deux pas de Brest. Ce terrain se situe proche du centre-ville de Guipavas (29490). Il est exposé au sud-ouest. Cinq établissements scolaires sont implantés à moins de 10 minutes à pied, tout comme une crèche. Niveau transports en commun, il y a quatre gares à moins de 10 minutes en voiture. On trouve un accès à la nationale N12 à 1 km. On trouve une bibliothèque, deux boulangeries, des commerces, une poissonnerie, un bureau de poste et une supérette dans les environs.Son prix de vente est de 116 640 €. Contactez notre agence (Sami ALKIS) pour obtenir de plus amples informations sur ce terrain ou sur les démarches à suivre.
Guipavas
TERRAIN ET MAISONMaison de 5 pièces (124 m²) en vente à GuipavasPROCHE CENTRE-VILLE – MAISON 5 PIÈCES NEUVEÀ vendre : localisée à quelques kilomètres de la mer et à deux pas de Brest, nous vous présentons, proche du centre-ville de Guipavas (29490), cette maison de 5 pièces de plain-pied de 124 m² et de 461 m² de terrain. Son intérieur est composé de quatre chambres, d’une cuisine et de deux salles de bains.Cette maison est neuve.On trouve cinq établissements scolaires à moins de 10 minutes à pied, tout comme une crèche. Niveau transports en commun, il y a quatre gares à moins de 10 minutes en voiture. La nationale N12 est accessible à 1 km. On trouve une bibliothèque, deux boulangeries, des commerces, une poissonnerie, un bureau de poste et deux boucheries-charcuteries à proximité.Elle est proposée à l’achat pour 446 982 €.Contactez notre agence (ALKIS Sami) pour plus de renseignements sur la maison ou sur les modalités de vente. Maisons de l’Avenir Guipavas est là pour vous accompagner à toutes les étapes de votre projet.
Guipavas
TERRAINGuipavas : terrain de 266 m² à vendrePROCHE CENTRE-VILLE – PROCHE DE BRESTTerrain de 266 m² à quelques kilomètres de la mer et à deux pas de Brest. Ce terrain se situe proche du centre-ville de Guipavas (29490). Il est exposé au sud-ouest. Cinq établissements scolaires sont implantés à moins de 10 minutes à pied, tout comme une crèche. Côté transports, on trouve quatre gares à moins de 10 minutes en voiture. La nationale N12 est accessible à 1 km. Il y a une bibliothèque, deux boulangeries, des commerces, deux boucheries-charcuteries, une poissonnerie et une supérette à quelques minutes à peine.Il est proposé à l’achat pour 68 840 €. Contactez Sami ALKIS pour plus d’informations sur le terrain et sur les démarches à suivre.
L’actualité immobilière à Le Relecq-Kerhuon
27/11/2023
02/11/2023
30/10/2023
20/10/2023
16/10/2023
16/10/2023