Maison à construire à Lesneven (29260)
Images
Description
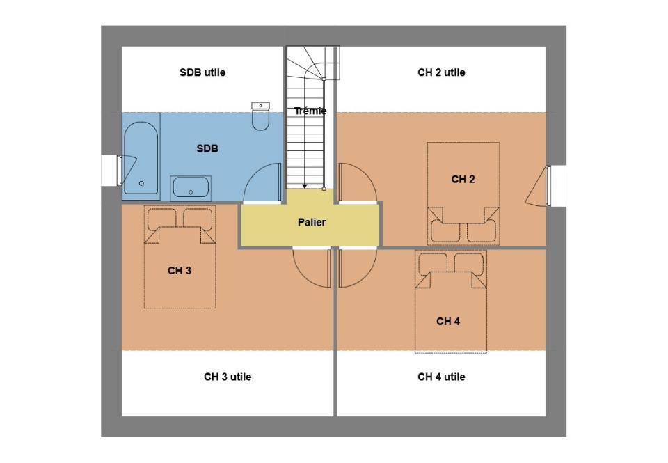
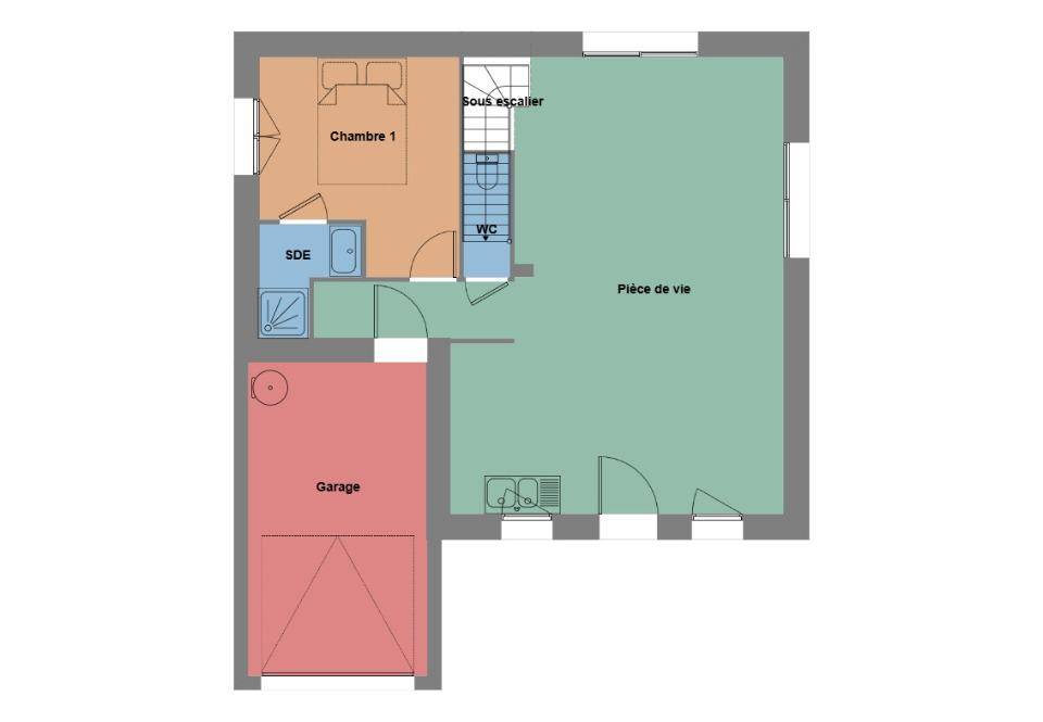
VENTE : maison de 5 pièces (102 m²) à Lesneven
PROCHE CENTRE-VILLE - MAISON 5 PIÈCES NEUVE
Sur le littoral et à 24 km de Brest, Maisons de l'Avenir Guipavas vous présente en vente, proche du centre-ville de Lesneven (29260), cette maison de 5 pièces de 102 m² et de 428 m² de terrain. Elle inclut quatre chambres, une cuisine et deux salles de bains.
Il s'agit d'une maison de 2 niveaux. Elle est neuve.
On trouve tous les types d'écoles (maternelle, élémentaire et secondaire) à moins de 10 minutes à pied, tout comme une crèche. La nationale N12 est accessible à 10 km. Il y a des commerces, quatre boulangeries, un supermarché, une poissonnerie et une épicerie dans les environs. Enfin, le marché Centre-Ville anime les environs chaque lundi.
Son prix de vente est de 253 939 €.
Contactez Sami ALKIS pour toute information sur la maison. Maisons de l'Avenir Guipavas vous accompagne dans toutes vos démarches et dans tous vos projets immobiliers.
Logement susceptibles de vous intéresser
Nous vous proposons de découvrir aussi cette sélection de logements situés à moins de 10km de Lesneven et qui seraient susceptibles de vous intéresser.
Guissény
TERRAINÀ découvrir, beau terrain constructible situé sur la commune de Guissény, à deux pas des commodités et des plages.Terrain borné et viabiliséLibre constructeurHors lotissementExposition sud-ouestEnvironnement calme et agréableProximité immédiate des commerces, écoles et servicesAccès rapide aux plages et aux sentiers côtiersCadre de vie privilégié entre mer et campagneCe terrain est une opportunité rare pour concrétiser votre projet de construction dans un secteur recherché du Finistère Nord. N’hésitez pas à me contacter pour plus d’informations ou organiser une visite.Les informations sur les risques auxquels ce bien est exposé sont disponibles sur le site Géorisques : www.georisques.gouv.frPrix de vente honoraires d’agence inclus : 110 000 €Prix de vente hors honoraires d’agence : 105 000 €Honoraires : 4,76 % TTC de la valeur du bien hors honorairesContactez votre consultant megAgence : Marie POLYNICE, Tél. : (Numéro supprimé), E-mail : (Email supprimé) – EI – Agent commercial immatriculé au RSAC de BREST sous le numéro 438 212 292
Le Drennec
TERRAINTerrain de 466 m² à vendre au DrennecCe terrain, qui se distingue par son emplacement de choix, offre un cadre de vie idyllique. Niché au coeur du Drennec, une ville réputée pour son charme et son atmosphère paisible, ce terrain représente une opportunité rare sur le marché immobilier actuel.L’un des points forts majeurs de ce terrain est sans aucun doute son environnement. Le Drennec, situé aux porte de Brest, offre un panorama exceptionnel, alliant verdure luxuriante. Ce terrain se trouve à proximité des commodités essentielles, garantissant un confort de vie optimal.De plus, ce terrain offre un potentiel d’aménagement considérable. Avec ses 466m², les possibilités sont nombreuses pour réaliser le projet de vos rêves, que ce soit la construction d’une résidence principale spacieuse, d’une maison de vacances confortable ou d’un investissement locatif rentable.Enfin, ce terrain se distingue par son excellent rapport qualité prix. Investir dans ce terrain, c’est faire le choix d’un investissement sûr et rentable, dans une ville en pleine expansion.Ne manquez pas cette occasion unique de devenir propriétaire d’un terrain d’exception au Drennec.Son prix de vente est de 62 910 €. N’hésitez pas à prendre contact avec Aurélie CAGNARD ((Numéro supprimé)) pour toute information sur ce terrain, sur les modalités de vente et sur les démarches à suivre. Maisons de l’Avenir Guipavas est là pour vous accompagner à toutes les étapes de l’achat.
Le Drennec
TERRAIN ET MAISONLe Drennec : maison de 5 pièces (115 m²) en venteCette belle maison traditionnelle aux lignes contemporaines offre 115m² habitable . Au rez-de-chaussée, elle dispose d’une belle pièce de vie offrant un maximum de lumière, d’une grande suite parentale avec sa salle d’eau, d’un wc, d’un très grand cellier et son garage.A l’étage on retrouve 3 chambres et une salle de bain. L’orientation de cette maison vous permettra de bénéficier d’un maximum de lumière et de chaleur naturelle pour davantage d’économies et de douceur de vivre.Aux normes RE2020, peu énergivore, elle vous ravira par son confort de vie.Elle est proposée à l’achat pour 348 160 €.Contactez Aurélie CAGNARD (tél : (Numéro supprimé)) pour plus de renseignements sur la maison, sur les modalités de vente ou sur les démarches à suivre.
Le Drennec
TERRAIN ET MAISONLe Drennec : maison T4 (62 m²) en venteCette belle maison traditionnelle aux lignes contemporaines offre 62m² habitable . Au rez-de-chaussée, elle dispose d’une belle pièce de vie offrant un maximum de lumière, d’un wc et d’un garage.A l’étage on retrouve 3 chambres, une salle de bains, et un WC. L’orientation de cette maison vous permettra de bénéficier d’un maximum de lumière et de chaleur naturelle pour davantage d’économies et de douceur de vivre.Elle est à vendre pour la somme de 201 910 €.Contactez notre agence (CAGNARD Aurélie : (Numéro supprimé)) pour tout renseignement sur la maison ou sur les modalités de vente. Maisons de l’Avenir Guipavas vous accompagne à toutes les étapes de l’achat et dans tous vos projets immobiliers.
Le Drennec
TERRAIN ET MAISONMaison T5 (164 m²) en vente au DrennecCette belle maison traditionnelle aux lignes contemporaines offre 164m² habitable .Au rez-de-chaussée, elle dispose d’une belle pièce de vie offrant un maximum de lumière, d’une grande suite parentale avec sa salle d’eau, d’un wc, d’un grand cellier et un garage.A l’étage on retrouve 3 chambres, une salle de bains, un WC. L’orientation de cette maison vous permettra de bénéficier d’un maximum de lumière et de chaleur naturelle pour davantage d’économies et de douceur de vivre..Elle est proposée à l’achat pour 509 310 €.N’hésitez pas à prendre contact avec notre agence (Aurélie CAGNARD : (Numéro supprimé)) pour plus de renseignements sur cette maison, sur les modalités de vente ou sur les démarches à suivre. Maisons de l’Avenir Guipavas vous accompagne dans tous vos projets immobiliers et à toutes les étapes de votre projet.
Lesneven
TERRAINVENTE : terrain de 428 m² à LesnevenPROCHE CENTRE-VILLE – PROCHE DE BRESTTerrain de 428 m² en vente à quelques kilomètres de la mer et à 24 km de Brest. Ce terrain se situe proche du centre-ville de Lesneven (29260). Il bénéficie d’une exposition sud-ouest. Des établissements scolaires du primaire et du secondaire sont implantés à moins de 10 minutes à pied, tout comme une structure d’accueil pour les tout-petits. Il y a un accès à la nationale N12 à 10 km. Il y a des commerces, quatre boulangeries, un supermarché, une poissonnerie et un bureau de poste dans les environs. Le marché Centre-Ville anime les environs tous les lundis.Son prix de vente est de 55 640 €. Contactez notre agence (Sami ALKIS) pour obtenir de plus amples informations sur ce terrain, sur les modalités de vente ou sur les démarches à suivre. Maisons de l’Avenir Guipavas vous accompagne dans tous vos projets immobiliers et à toutes les étapes de l’achat.
Lesneven
TERRAIN ET MAISONVENTE : maison de 5 pièces (102 m²) à LesnevenPROCHE CENTRE-VILLE – MAISON 5 PIÈCES NEUVESur le littoral et à 24 km de Brest, Maisons de l’Avenir Guipavas vous présente en vente, proche du centre-ville de Lesneven (29260), cette maison de 5 pièces de 102 m² et de 428 m² de terrain. Elle inclut quatre chambres, une cuisine et deux salles de bains.Il s’agit d’une maison de 2 niveaux. Elle est neuve.On trouve tous les types d’écoles (maternelle, élémentaire et secondaire) à moins de 10 minutes à pied, tout comme une crèche. La nationale N12 est accessible à 10 km. Il y a des commerces, quatre boulangeries, un supermarché, une poissonnerie et une épicerie dans les environs. Enfin, le marché Centre-Ville anime les environs chaque lundi.Son prix de vente est de 253 939 €.Contactez Sami ALKIS pour toute information sur la maison. Maisons de l’Avenir Guipavas vous accompagne dans toutes vos démarches et dans tous vos projets immobiliers.
Lesneven
TERRAIN ET MAISONLesneven : maison F4 (82 m²) à vendrePROCHE CENTRE-VILLE – MAISON 4 PIÈCES NEUVEEn vente : située à quelques kilomètres de la mer et à deux pas de Brest, nous vous présentons, proche du centre-ville de Lesneven (29260), cette maison de 4 pièces de plain-pied de 82 m².Elle est composée de trois chambres, d’une cuisine et d’une salle de bains. La maison est neuve.Le terrain du bien s’étend sur 428 m².Il y a des écoles de tous types (de la maternelle au lycée) à moins de 10 minutes à pied, tout comme une structure d’accueil pour la petite enfance. Il y a un accès à la nationale N12 à 10 km. On trouve des commerces, quatre boulangeries, un supermarché, une poissonnerie et trois boucheries-charcuteries dans les environs. Le marché Centre-Ville a lieu tous les lundis.Il est proposé à l’achat pour 245 834 €.N’hésitez pas à prendre contact avec notre agence (ALKIS Sami) pour toute information sur la maison. Faites de vos projets immobiliers une réalité avec Maisons de l’Avenir Guipavas.
Lesneven
TERRAIN ET MAISONMaison T4 (94 m²) à vendre à LesnevenPROCHE CENTRE-VILLE – MAISON 4 PIÈCES NEUVEÀ vendre : à quelques kilomètres de la mer et à quelques kilomètres de Brest, nous vous proposons, proche du centre-ville de Lesneven (29260), cette maison de 4 pièces de 94 m² et de 428 m² de terrain.Cette maison compte 2 niveaux. Son intérieur se divise en trois chambres, une cuisine et deux salles de bains. La maison est neuve.Il y a des établissements scolaires de tous types (de la maternelle au lycée) à moins de 10 minutes à pied, tout comme une structure d’accueil pour les tout-petits. Il y a un accès à la nationale N12 à 10 km. On trouve des commerces, quatre boulangeries, un supermarché, trois boucheries-charcuteries et un bureau de poste à quelques minutes à peine. Le marché Centre-Ville a lieu tous les lundis.Elle est proposée à l’achat pour 293 998 €.Prenez contact avec Sami ALKIS pour plus d’informations sur la propriété. Maisons de l’Avenir Guipavas vous accompagne à toutes les étapes de votre projet et dans toutes vos démarches.
L’actualité immobilière à Lesneven
27/11/2023
02/11/2023
30/10/2023
20/10/2023
16/10/2023
16/10/2023