Maison à construire à Loctudy (29750)
Images
Description
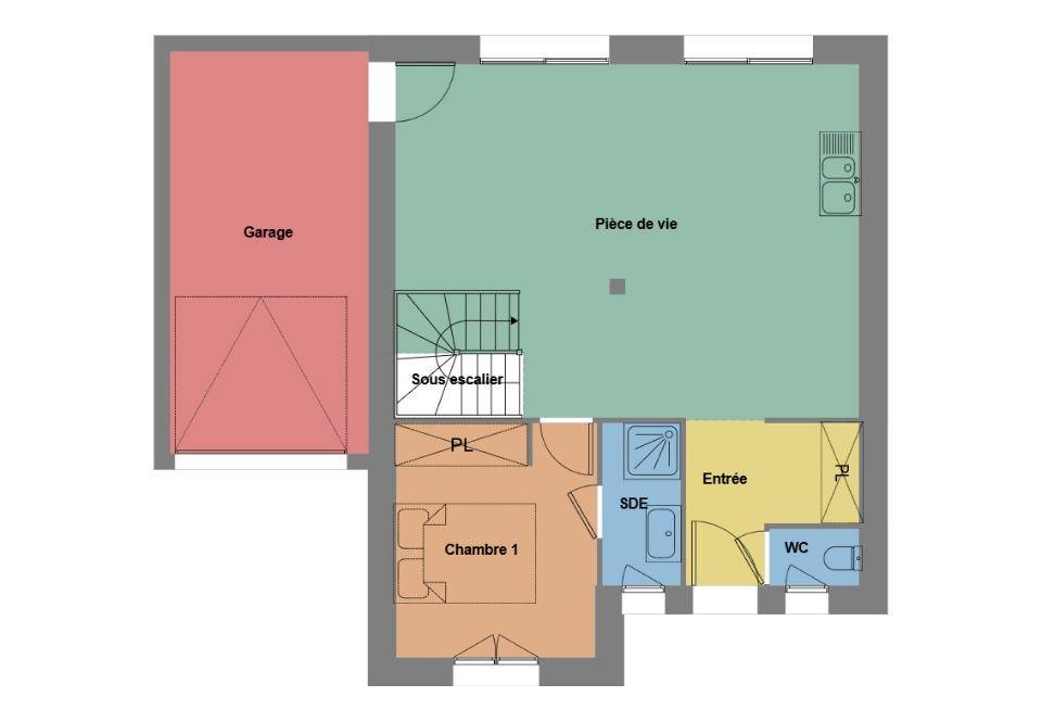
VENTE : maison de 5 pièces (105 m²) à Loctudy
PROCHE CENTRE-VILLE - MAISON 5 PIÈCES NEUVE
En vente : localisée sur la côte atlantique et à quelques kilomètres de Quimper, Maisons de l'Avenir Quimper vous propose cette maison de 5 pièces de 105 m² proche du centre-ville de Loctudy (29750). Son intérieur dispose de quatre chambres, d'une cuisine et de deux salles de bains.
Le terrain du bien s'étend sur 470 m².
Il s'agit d'une maison de 2 niveaux.
Elle est proposée à l'achat pour 336 000 €.
Prenez contact avec notre agence (Mathieu DEROUET : (Numéro supprimé)) pour tout renseignement sur la maison, sur les démarches à suivre ou sur les modalités de vente. Maisons de l'Avenir Quimper vous accompagne dans tous vos projets immobiliers et dans toutes vos démarches.
Logement susceptibles de vous intéresser
Nous vous proposons de découvrir aussi cette sélection de logements situés à moins de 10km de Loctudy et qui seraient susceptibles de vous intéresser.
Guilvinec
TERRAIN29730 – GUILVINEC – CENTRE-VILLE – TERRAIN NON CONSTRUCTIBLE – SURFACE DE 2288 M² – OPPORTUNITÉ À SAISIR POUR CE GRAND TERRAIN IDÉALEMENT SITUÉeffiCity, l’agence qui estime votre bien en ligne, vous propose ce terrain exceptionnel situé au Guilvinec.D’une surface de 2288m², ce terrain offre une belle opportunité .Ne manquez pas cette chance unique d’acquérir un terrain de cette taille dans un emplacement aussi recherché. Contactez-nous dès maintenant pour organiser une visite et laissez-vous séduire par le potentiel de ce bien. Les informations sur les risques auxquels ce bien est exposé sont disponibles sur le site Georisque : georisques. gouv. fr Erwan Stephan – EI – est Agent Commercial mandataire en immobilier, immatriculé au Registre Spécial des Agents Commerciaux du Tribunal de Commerce de Quimper sous le n(Numéro supprimé).Siège social du mandant : effiCity, 48 avenue de Villiers – 75017 PARIS – Société par Actions Simplifiée, société au capital de 132 373,05 euros, immatriculée au RCS Paris 497 617 746 et titulaire de la Carte professionnelle CPI 7501 2015 000 002 025 – CCI Paris IDF – Caisse de Garantie : GALIAN Assurances 89 rue de la Boétie 75008 Paris
Loctudy
TERRAINDEVENEZ PROPRIÉTAIRE D’UN TERRAIN À LOCTUDY !Vivez dans un cadre de vie privilégié à Loctudy, charmante commune du Sud-Finistère, idéalement située entre Quimper et la côte sud, à proximité des plages.Profitez du calme de la campagne et de la proximité du littoral, tout en restant proche des commerces, écoles et services – un environnement idéal pour votre futur projet ! Votre terrain comprend 😮 Une surface de 462 m², bien orientéeo Possibilité de construire la maison de vos rêves selon vos envies Les atouts du projet 😮 Terrain viabilisé ou proche des réseauxo Cadre de vie paisible et proche des plageso Liberté de construction, avec plan personnalisable selon vos besoins Prix indiqué hors frais Photos non contractuelles à titre d’illustration Accession possible avec ou sans apportNe manquez pas cette opportunité unique de devenir propriétaire d’un terrain à Loctudy et de réaliser votre projet sur-mesure ! Contactez-nous dès maintenant pour plus d’informations et étudier votre projet.
Plomeur
TERRAINDEVENEZ PROPRIÉTAIRE D’UN TERRAIN À PLOMEUR !Vivez dans un cadre de vie privilégié à Plomeur, charmante commune du Sud-Finistère, idéalement située entre Quimper et la côte sud, à proximité des plages.Profitez du calme de la campagne et de la proximité du littoral, tout en restant proche des commerces, écoles et services – un environnement idéal pour votre futur projet ! Votre terrain comprend 😮 Une surface de 476 m², bien orientéeo Possibilité de construire la maison de vos rêves selon vos envies Les atouts du projet 😮 Terrain viabiliséo Cadre de vie paisible et proche des plageso Liberté de construction, avec plan personnalisable selon vos besoins Prix indiqué hors frais Photos non contractuelles à titre d’illustration Accession possible avec ou sans apportNe manquez pas cette opportunité unique de devenir propriétaire d’un terrain à Plomeur et de réaliser votre projet sur-mesure ! Contactez-nous dès maintenant pour plus d’informations et étudier votre projet.
Guilvinec
TERRAIN29730 – GUILVINEC – CENTRE-VILLE – TERRAIN CONSTRUCTIBLE – POSSIBILITÉ DE CRÉER DES LOTS – 2340 m² – OPPORTUNITÉ À SAISIR DANS UN ENVIRONNEMENT PRIVILÉGIÉeffiCity, l’agence qui estime votre bien en ligne, vous propose ce terrain exceptionnel situé au cœur du Guilvinec. Avec une surface de 2340 m², ce terrain constructible offre une multitude de possibilités, dont celle de créer des lots pour des projets de construction diversifiés.Idéalement situé, ce terrain bénéficie d’un emplacement stratégique au sein de la commune, offrant ainsi un accès rapide aux commodités et services environnants. Sa situation privilégiée en fait un investissement idéal pour les porteurs de projets ambitieux à la recherche d’un terrain permettant une construction sur mesure.Ce terrain représente une réelle opportunité pour les investisseurs ou les promoteurs immobiliers en quête d’un emplacement de choix pour concrétiser des projets d’envergure. Ne manquez pas cette chance unique d’acquérir un terrain offrant un potentiel de développement exceptionnel dans un cadre privilégié et recherché.Contactez-nous dès maintenant pour planifier une visite et découvrir en personne les multiples possibilités offertes par ce terrain constructible au cœur du Guilvinec. Les informations sur les risques auxquels ce bien est exposé sont disponibles sur le site Georisque : georisques. gouv. fr Erwan Stephan – EI – est Agent Commercial mandataire en immobilier, immatriculé au Registre Spécial des Agents Commerciaux du Tribunal de Commerce de Quimper sous le n(Numéro supprimé).Siège social du mandant : effiCity, 48 avenue de Villiers – 75017 PARIS – Société par Actions Simplifiée, société au capital de 132 373,05 euros, immatriculée au RCS Paris 497 617 746 et titulaire de la Carte professionnelle CPI 7501 2015 000 002 025 – CCI Paris IDF – Caisse de Garantie : GALIAN Assurances 89 rue de la Boétie 75008 Paris
Guilvinec
TERRAIN29730 – GUILVINEC – KERLEGUER – TERRAIN ZONE NATURELLE – SURFACE DE 1830 M² – OPPORTUNITÉ À SAISIR EN BORD DE MER.effiCity, l’agence qui estime votre bien en ligne, vous propose ce terrain de 1830 m² situé dans le quartier recherché de Kerleguer. Les informations sur les risques auxquels ce bien est exposé sont disponibles sur le site Georisque : georisques. gouv. fr Erwan Stephan – EI – est Agent Commercial mandataire en immobilier, immatriculé au Registre Spécial des Agents Commerciaux du Tribunal de Commerce de Quimper sous le n(Numéro supprimé).Siège social du mandant : effiCity, 48 avenue de Villiers – 75017 PARIS – Société par Actions Simplifiée, société au capital de 132 373,05 euros, immatriculée au RCS Paris 497 617 746 et titulaire de la Carte professionnelle CPI 7501 2015 000 002 025 – CCI Paris IDF – Caisse de Garantie : GALIAN Assurances 89 rue de la Boétie 75008 Paris
Loctudy
TERRAINLoctudy : terrain de 605 m² à vendrePROCHE CENTRE DE LOCTUDYGrand terrain à vendre sur le littoral atlantique et à 20 km de Quimper. De 605 m², ce terrain se situe dans Loctudy (29750). Il est proposé à l’achat pour 122 000 €. Prenez contact avec Mathieu DEROUET ((Numéro supprimé)) pour plus d’informations sur ce terrain. Concrétisez vos projets immobiliers avec Maisons de l’Avenir Quimper.
Loctudy
TERRAIN ET MAISONVENTE : maison T3 (80 m²) à LoctudyPROCHE DE QUIMPER – MAISON 3 PIÈCES NEUVEÀ 1 km de la côte atlantique et à quelques kilomètres de Quimper, votre agence Maisons de l’Avenir Quimper est ravie de vous proposer cette maison de 3 pièces de plain-pied de 80 m² à vendre à Loctudy (29750).Conçue de plain-pied, elle propose trois chambres, une cuisine et une salle de bains.Elle est proposée à l’achat pour 333 000 €.Prenez contact avec notre agence (DEROUET Mathieu : (Numéro supprimé)) pour plus de renseignements sur la maison, sur les démarches à suivre ou sur les modalités de vente.
Loctudy
TERRAIN ET MAISONVENTE d’une maison F4 (155 m²) à LoctudyPROCHE DE QUIMPER – MAISON 4 PIÈCES NEUVEÀ vendre : à 1 km de la côte atlantique et à 20 km de Quimper, nous vous proposons à Loctudy (29750), cette maison de 4 pièces de 155 m² et de 605 m² de terrain.C’est une maison de 2 niveaux. Elle se divise en quatre chambres, une cuisine et deux salles de bains. Elle est proposée à l’achat pour 498 000 €.Contactez notre agence (DEROUET Mathieu : (Numéro supprimé)) pour plus de renseignements sur cette maison, sur les modalités de vente ou sur les démarches à suivre.
Loctudy
TERRAIN ET MAISONVENTE : maison T4 (90 m²) à LoctudyPROCHE DE QUIMPER – MAISON 4 PIÈCES NEUVEÀ vendre sur la côte atlantique et à deux pas de Quimper, à Loctudy (29750), notre agence Maisons de l’Avenir Quimper est heureuse de vous proposer cette maison de 4 pièces de 90 m² et de 605 m² de terrain. Son intérieur comporte trois chambres, une cuisine et deux salles de bains.Il s’agit d’une maison de 2 niveaux. Elle est à vendre pour la somme de 355 000 €.N’hésitez pas à prendre contact avec notre constructeur (Mathieu DEROUET : (Numéro supprimé)) pour toute question sur la maison.
L’actualité immobilière à Loctudy
27/11/2023
02/11/2023
30/10/2023
20/10/2023
16/10/2023
16/10/2023