Maison à construire à Loctudy (29750)
Images
Description
VENTE : maison F4 (90 m²) à Loctudy
IDÉALEMENT SITUÉE - MAISON 4 PIÈCES NEUVE
En vente : localisée sur le littoral atlantique et à 20 km de Quimper, nous sommes heureux de vous proposer cette maison de 4 pièces de 90 m² idéalement située dans Loctudy (29750).
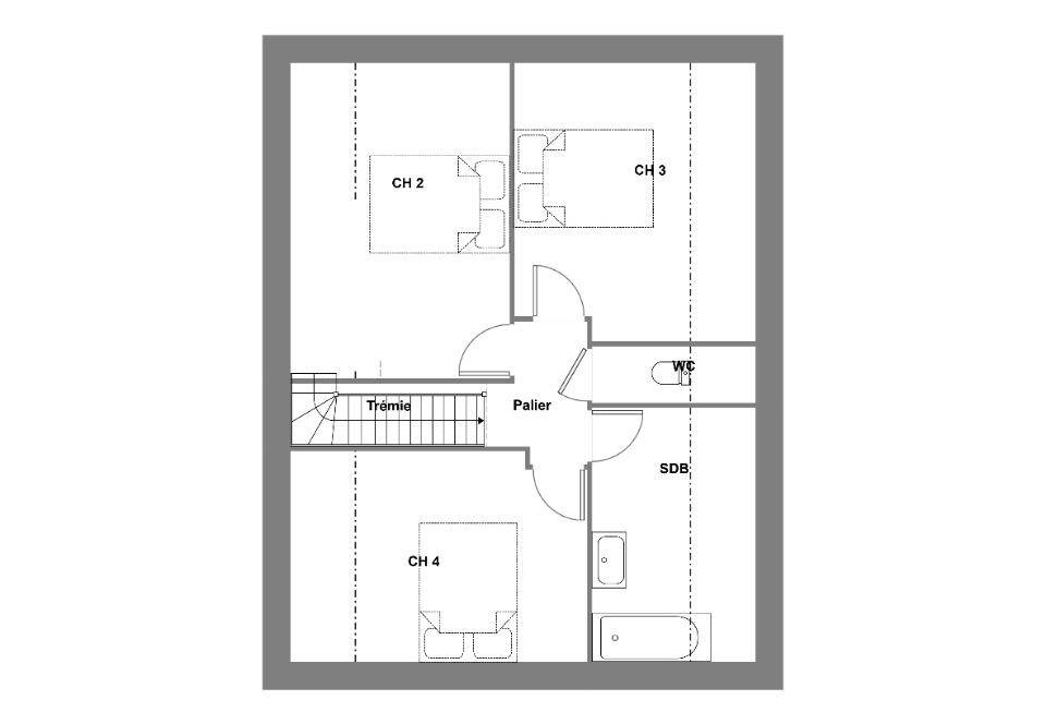
Il s'agit d'une maison de 2 niveaux. Elle se divise en trois chambres, une cuisine et deux salles de bains. La maison est neuve.
Le terrain du bien est de 425 m².
La maison est située dans un secteur prisé. L'École Primaire Publique Jules Ferry et l'École Primaire Privée Saint Tudy se trouvent à moins de 10 minutes à pied. Il y a un tennis, un port de plaisance, deux boulangeries, des commerces, un bureau de poste et une épicerie à proximité du logement. Le marché Place des Anciens comb anime le quartier chaque mardi matin.
Elle est à vendre pour la somme de 284 700 €.
Contactez Sabrina MANCINELLI ((Numéro supprimé)) pour tout renseignement sur le bien. Maisons de l'Avenir Pont-l'Abbé vous accompagne dans tous vos projets immobiliers et à toutes les étapes de votre projet.
Logement susceptibles de vous intéresser
Nous vous proposons de découvrir aussi cette sélection de logements situés à moins de 10km de Loctudy et qui seraient susceptibles de vous intéresser.
Plomeur
TERRAIN29120 – PLOMEUR – CENTRE-VILLE – TERRAIN – 3600m² – OPPORTUNITÉ À SAISIR POUR UN PROJET D’EXTERIEUReffiCity, l’agence qui estime votre bien en ligne, vous présente ce vaste terrain de 3600.0 m² situé en plein cœur du centre-ville de Plomeur.Sa surface généreuse permet d’envisager différentes possibilités d’aménagement.Bénéficiant d’une localisation stratégique, proche de toutes les commodités et des axes de transport, ce terrain constitue une occasion rare sur le marché immobilier.Ne manquez pas cette opportunité unique de donner vie à votre projet dans un environnement dynamique et en plein essor. N’hésitez pas à nous contacter pour plus d’informations et pour organiser une visite. Les informations sur les risques auxquels ce bien est exposé sont disponibles sur le site Georisque : georisques. gouv. fr Erwan Stephan – EI – est Agent Commercial mandataire en immobilier, immatriculé au Registre Spécial des Agents Commerciaux du Tribunal de Commerce de Quimper sous le n(Numéro supprimé).Siège social du mandant : effiCity, 48 avenue de Villiers – 75017 PARIS – Société par Actions Simplifiée, société au capital de 132 373,05 euros, immatriculée au RCS Paris 497 617 746 et titulaire de la Carte professionnelle CPI 7501 2015 000 002 025 – CCI Paris IDF – Caisse de Garantie : GALIAN Assurances 89 rue de la Boétie 75008 Paris
Guilvinec
TERRAIN29730 – GUILVINEC – CENTRE-VILLE – TERRAIN CONSTRUCTIBLE DE 3067.0 M² – OPPORTUNITÉ RARE À SAISIR DANS UN CADRE IDYLLIQUEeffiCity, l’agence qui estime votre bien en ligne, vous propose ce terrain non constructible de 3000 m² situé en plein cœur du charmant centre-ville de Guilvinec.Idéalement placé, ce terrain est à quelques pas des commerces, des restaurants et du port typique de la région.La superficie généreuse du terrain permet de profiter d’un cadre de vie paisible à quelques minutes seulement des plages et des activités nautiques.Ne manquez pas cette opportunité rare de devenir propriétaire d’un terrain au Guilvinec. Les informations sur les risques auxquels ce bien est exposé sont disponibles sur le site Georisque : georisques. gouv. fr Erwan Stephan – EI – est Agent Commercial mandataire en immobilier, immatriculé au Registre Spécial des Agents Commerciaux du Tribunal de Commerce de Quimper sous le n(Numéro supprimé).Siège social du mandant : effiCity, 48 avenue de Villiers – 75017 PARIS – Société par Actions Simplifiée, société au capital de 132 373,05 euros, immatriculée au RCS Paris 497 617 746 et titulaire de la Carte professionnelle CPI 7501 2015 000 002 025 – CCI Paris IDF – Caisse de Garantie : GALIAN Assurances 89 rue de la Boétie 75008 Paris
Guilvinec
TERRAIN29730 – GUILVINEC – CENTRE-VILLE – TERRAIN CONSTRUCTIBLE – 483 m² – OPPORTUNITÉ RARE À SAISIR POUR PROJET DE CONSTRUCTIONeffiCity, l’agence qui estime votre bien en ligne, vous propose ce magnifique terrain de 483 m² situé en plein cœur du centre-ville de Guilvinec.Ce terrain offre une belle surface pour réaliser votre projet de construction sur mesure, dans un environnement calme et résidentiel. Idéalement situé, vous pourrez profiter de tous les avantages de la vie en centre-ville tout en bénéficiant d’un espace extérieur spacieux pour créer un jardin d’exception.L’emplacement de ce terrain est un véritable atout, à proximité immédiate des commerces, des écoles et des transports en commun, vous pourrez profiter de tous les services à pied.Ne manquez pas cette opportunité rare de construire la maison de vos rêves dans un cadre idyllique au cœur de Guilvinec. Contactez-nous dès maintenant pour organiser une visite et concrétiser votre projet immobilier. Les informations sur les risques auxquels ce bien est exposé sont disponibles sur le site Georisque : georisques. gouv. fr Erwan Stephan – EI – est Agent Commercial mandataire en immobilier, immatriculé au Registre Spécial des Agents Commerciaux du Tribunal de Commerce de Quimper sous le n(Numéro supprimé).Siège social du mandant : effiCity, 48 avenue de Villiers – 75017 PARIS – Société par Actions Simplifiée, société au capital de 132 373,05 euros, immatriculée au RCS Paris 497 617 746 et titulaire de la Carte professionnelle CPI 7501 2015 000 002 025 – CCI Paris IDF – Caisse de Garantie : GALIAN Assurances 89 rue de la Boétie 75008 Paris
Guilvinec
TERRAIN29730 – GUILVINEC – CENTRE-VILLE – TERRAIN CONSTRUCTIBLE DE 1949 m² – OPPORTUNITÉ À SAISIR POUR VOTRE PROCHAIN PROJET IMMOBILIEReffiCity, l’agence qui estime votre bien en ligne, vous propose ce terrain non constructible de 1900 m², idéalement situé au cœur du centre-ville de Guilvinec.Sa localisation au centre-ville vous permettra de profiter de toutes les commodités à proximité : commerces, écoles, transports en commun, et bien plus encore. Vous pourrez ainsi bénéficier d’un cadre de vie pratique et agréable, tout en étant proche de la mer pour des balades vivifiantes.Ne manquez pas cette occasion unique de devenir propriétaire d’un terrain d’exception à Guilvinec. Contactez-nous dès maintenant pour organiser une visite . Les informations sur les risques auxquels ce bien est exposé sont disponibles sur le site Georisque : georisques. gouv. fr Erwan Stephan – EI – est Agent Commercial mandataire en immobilier, immatriculé au Registre Spécial des Agents Commerciaux du Tribunal de Commerce de Quimper sous le n(Numéro supprimé).Siège social du mandant : effiCity, 48 avenue de Villiers – 75017 PARIS – Société par Actions Simplifiée, société au capital de 132 373,05 euros, immatriculée au RCS Paris 497 617 746 et titulaire de la Carte professionnelle CPI 7501 2015 000 002 025 – CCI Paris IDF – Caisse de Garantie : GALIAN Assurances 89 rue de la Boétie 75008 Paris
Guilvinec
TERRAIN29730 – GUILVINEC – KERLEGUER – TERRAIN NON CONSTRUCTIBLE – SUPERFICIE EXCEPTIONNELLE DE 6130m² – OPPORTUNITÉ À SAISIReffiCity, l’agence qui estime votre bien en ligne, vous propose ce terrain de 6130m² situé sur la Route de Kerleguer à Guilvinec.Situé dans le quartier paisible de Kerleguer, ce terrain bénéficie d’un environnement calme et verdoyant, idéal pour les amoureux de la nature et de la tranquillité.Proche des commodités et des axes routiers, ce terrain constitue une opportunité rare pour concrétiser votre projet de construction dans un cadre idyllique.Ne ratez pas cette occasion unique de devenir propriétaire d’un terrain d’exception à Guilvinec. Les informations sur les risques auxquels ce bien est exposé sont disponibles sur le site Georisque : georisques. gouv. fr Erwan Stephan – EI – est Agent Commercial mandataire en immobilier, immatriculé au Registre Spécial des Agents Commerciaux du Tribunal de Commerce de Quimper sous le n(Numéro supprimé).Siège social du mandant : effiCity, 48 avenue de Villiers – 75017 PARIS – Société par Actions Simplifiée, société au capital de 132 373,05 euros, immatriculée au RCS Paris 497 617 746 et titulaire de la Carte professionnelle CPI 7501 2015 000 002 025 – CCI Paris IDF – Caisse de Garantie : GALIAN Assurances 89 rue de la Boétie 75008 Paris
Guilvinec
TERRAIN29730 – GUILVINEC – TERRAIN CONSTRUCTIBLE- SURFACE DE 4400 M² – OPPORTUNITÉ EXCEPTIONNELLE POUR CE GRAND TERRAIN AU COEUR DE GUILVINECeffiCity, l’agence qui estime votre bien en ligne, vous propose ce terrain unique situé dans le centre-ville de Guilvinec.D’une surface généreuse de 4400m², ce terrain offre un potentiel incroyable pour réaliser votre projet immobilier. Il offre de multiples possibilités d’aménagement.Profitez de cette opportunité rare d’acquérir un terrain de cette taille dans un emplacement aussi central et recherché. Son prix attractif de 220 000 euros en fait une affaire à ne pas manquer.N’hésitez plus, contactez-nous dès maintenant pour planifier une visite et laissez-vous séduire par les nombreuses possibilités qu’offre ce bien d’exception. Les informations sur les risques auxquels ce bien est exposé sont disponibles sur le site Georisque : georisques. gouv. fr Erwan Stephan – EI – est Agent Commercial mandataire en immobilier, immatriculé au Registre Spécial des Agents Commerciaux du Tribunal de Commerce de Quimper sous le n(Numéro supprimé).Siège social du mandant : effiCity, 48 avenue de Villiers – 75017 PARIS – Société par Actions Simplifiée, société au capital de 132 373,05 euros, immatriculée au RCS Paris 497 617 746 et titulaire de la Carte professionnelle CPI 7501 2015 000 002 025 – CCI Paris IDF – Caisse de Garantie : GALIAN Assurances 89 rue de la Boétie 75008 Paris
Plomeur
TERRAIN ET MAISONVous rêvez d’une maison neuve, moderne et adaptée à vos besoins ? Nous vous proposons un projet de construction comprenant :- Une maison individuelle comprenant : 3 chambres spacieuses, un grand salon lumineux, une cuisine fonctionnelle, WC , salle(s) de bain/d’eau sur un terrain de 476 m², idéalement situé à PLOMEUR.Profitez d’une maison sur-mesure, conçue pour votre confort et votre bien-être ! Maison RE2020 à faible consommation d’énergies. Prix hors frais. Photos non contractuelles et illustratives. Possibilité d’accession à la propriété avec un CDI (hors CAF, RSA et Pôle Emploi). Pour tout renseignement supplémentaire, contactez nous au (Numéro supprimé).
Pont-l'Abbé
TERRAINJoli terrain sur PONT L’ABBE, plat et idéalement situé, parfait pour réaliser votre projet de construction avec notre entreprise.- Superficie : 412 m²- Terrain : Plat et facile à aménager- Emplacement : Idéalement situé dans un cadre agréable- Prix Hors fraisNe manquez pas cette opportunité !Pour plus d’informations, contactez nous au (Numéro supprimé).
Guilvinec
TERRAINTerrain de 644 m² en vente à GuilvinecIDÉALEMENT SITUÉ – PROCHE DE QUIMPERÀ vendre à 2 km de la côte atlantique et à quelques kilomètres de Quimper à Guilvinec (29730), grand terrain. Réalisez-y votre projet immobilier. Il bénéficie d’une exposition sud-ouest. Dans un quartier prisé, ce terrain idéalement situé est proche des écoles et des commerces. Il y a quatre établissements scolaires à moins de 10 minutes à pied et une structure d’accueil pour les enfants en bas âge. On trouve une bibliothèque, un port de plaisance, des commerces, trois boulangeries, deux supermarchés, une supérette et une poissonnerie à proximité du bien. Ne manquez pas le marché Place de l’Eglise chaque mardi matin.Ce terrain est à vendre pour la somme de 77 000 €. N’hésitez pas à prendre contact avec Sabrina MANCINELLI ((Numéro supprimé)) pour obtenir de plus amples informations sur le terrain ou sur les démarches à suivre. Maisons de l’Avenir Pont-l’Abbé est là pour vous accompagner à toutes les étapes de l’achat.
L’actualité immobilière à Loctudy
27/11/2023
02/11/2023
30/10/2023
20/10/2023
16/10/2023
16/10/2023