Maison à construire à Milizac (29290)
Images
Description
📍 À VENDRE - Terrain constructible de 505 m² à Milizac-Guipronvel
Découvrez ce terrain de 505 m² situé dans un quartier résidentiel paisible, au coeur d'un environnement verdoyant et agréable.
🌿 Atouts du terrain :
Cadre calme et résidentiel, idéal pour une maison familiale 🏡
Accès rapide à Brest : seulement 15 minutes en voiture 🚗
🏫 À proximité : écoles, commerces du centre-bourg, vie associative dynamique et transports scolaires.
Profitez du compromis parfait entre tranquillité et accessibilité, pour réaliser votre futur projet de vie.
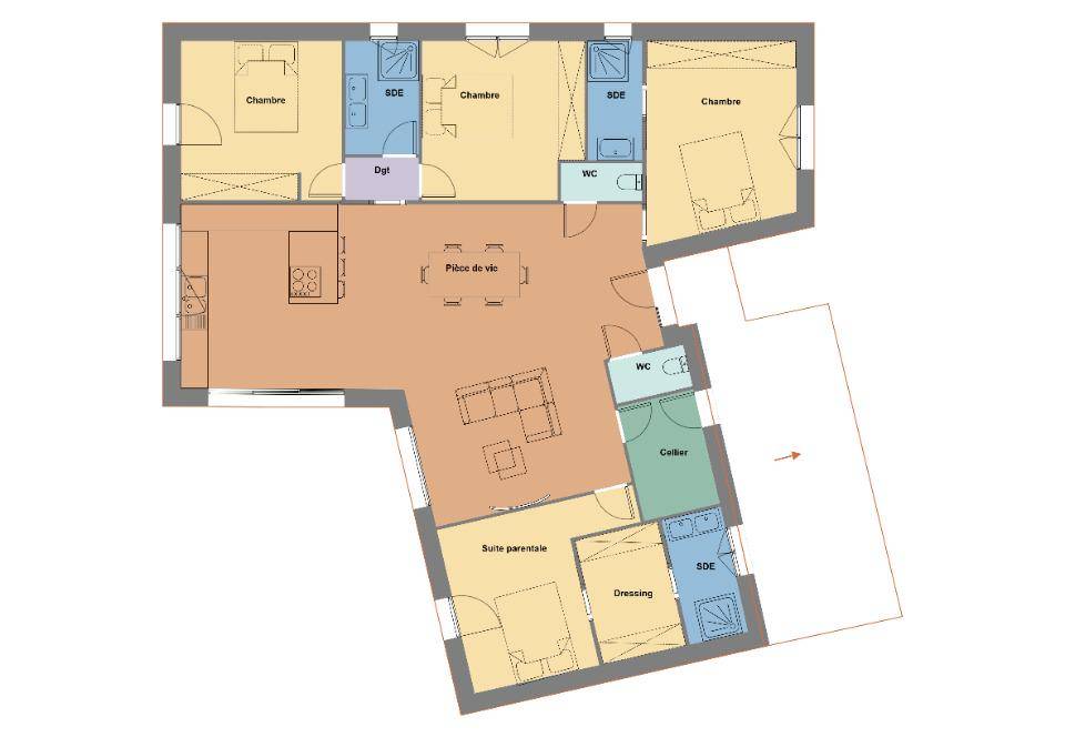
💡 Nous vous proposons sur ce terrain un projet de maison de 80 m², au style contemporain comprenant :
3 chambres dont une suite parentale 🛏️
1 salles de bains avec douche et baignoire🚿
Un vaste espace de vie de plus de 40 m² lumineux ☀️
Un grand garage 🚗
Une conception intégrée dans notre concept Maisons Bâti Activ, favorisant l'ensoleillement naturel et réduisant vos coûts énergétiques 🌿⚡
💰 Prix de l'opération Terrain + Maison : 276 000 €
📞 Contactez Erwan TILLY dès maintenant pour plus d'informations ou organiser une visite.
Logement susceptibles de vous intéresser
Nous vous proposons de découvrir aussi cette sélection de logements situés à moins de 10km de Milizac-Guipronvel et qui seraient susceptibles de vous intéresser.
Milizac-Guipronvel
TERRAIN ET MAISON📍 À VENDRE – Terrain constructible de 505 m² à Milizac-GuipronvelDécouvrez ce terrain de 505 m² situé dans un quartier résidentiel paisible, au coeur d’un environnement verdoyant et agréable.🌿 Atouts du terrain :Cadre calme et résidentiel, idéal pour une maison familiale 🏡Accès rapide à Brest : seulement 15 minutes en voiture 🚗🏫 À proximité : écoles, commerces du centre-bourg, vie associative dynamique et transports scolaires.Profitez du compromis parfait entre tranquillité et accessibilité, pour réaliser votre futur projet de vie.💡 Nous vous proposons sur ce terrain un projet de maison de 70m² de plein pied, au style contemporain comprenant :3 chambres dont une suite parentale et un bureau🛏️1 salles de bains avec douche et baignoire🚿Un vaste espace de vie de plus de 35 m² lumineux ☀️Un grand garage 🚗Une conception intégrée dans notre concept Maisons Bâti Activ, favorisant l’ensoleillement naturel et réduisant vos coûts énergétiques 🌿⚡💰 Prix de l’opération Terrain + Maison : 254 000 €📞 Contactez Erwan TILLY dès maintenant pour plus d’informations ou organiser une visite.
Milizac-Guipronvel
TERRAIN📍 À VENDRE – Terrain constructible de 505 m² à Milizac-GuipronvelDécouvrez ce terrain de 505 m² situé dans un quartier résidentiel paisible, au coeur d’un environnement verdoyant et agréable.🌿 Atouts du terrain :Cadre calme et résidentiel, idéal pour une maison familiale 🏡Accès rapide à Brest : seulement 15 minutes en voiture 🚗🏫 À proximité : écoles, commerces du centre-bourg, vie associative dynamique et transports scolaires.Profitez du compromis parfait entre tranquillité et accessibilité, pour réaliser votre futur projet de vie.📞 Contactez Erwan TILLY dès maintenant pour plus d’informations ou organiser une visite.
Milizac-Guipronvel
TERRAIN ET MAISONCadre calme et résidentiel, idéal pour une maison familiale 🏡Accès rapide à Brest : seulement 15 minutes en voiture 🚗🏫 À proximité : écoles, commerces du centre-bourg, vie associative dynamique et transports scolaires.Profitez du compromis parfait entre tranquillité et accessibilité, pour réaliser votre futur projet de vie.💡 Nous vous proposons sur ce terrain un projet de maison de 150m², au style contemporain comprenant :5 chambres dont une suite parentale et un bureau🛏️2 salles de bains dont une avec douche et baignoire🚿Un vaste espace de vie de plus de 55 m² lumineux ☀️Un grand garage 🚗Une conception intégrée dans notre concept Maisons Bâti Activ, favorisant l’ensoleillement naturel et réduisant vos coûts énergétiques 🌿⚡💰 Prix de l’opération Terrain + Maison : 462 000 €📞 Contactez Erwan TILLY dès maintenant pour plus d’informations ou organiser une visite.
Milizac-Guipronvel
TERRAIN ET MAISON📍 À VENDRE – Terrain constructible de 505 m² à Milizac-GuipronvelDécouvrez ce terrain de 505 m² situé dans un quartier résidentiel paisible, au coeur d’un environnement verdoyant et agréable.🌿 Atouts du terrain :Cadre calme et résidentiel, idéal pour une maison familiale 🏡Accès rapide à Brest : seulement 15 minutes en voiture 🚗🏫 À proximité : écoles, commerces du centre-bourg, vie associative dynamique et transports scolaires.Profitez du compromis parfait entre tranquillité et accessibilité, pour réaliser votre futur projet de vie.💡 Nous vous proposons sur ce terrain un projet de maison de 110m², au style contemporain comprenant :4 chambres dont une suite parentale 🛏️2 salles de bains dont une avec douche et baignoire🚿Un vaste espace de vie de plus de 35 m² lumineux ☀️Un grand garage 🚗Une conception intégrée dans notre concept Maisons Bâti Activ, favorisant l’ensoleillement naturel et réduisant vos coûts énergétiques 🌿⚡💰 Prix de l’opération Terrain + Maison : 340 000 €📞 Contactez Erwan TILLY dès maintenant pour plus d’informations ou organiser une visite.
Milizac-Guipronvel
TERRAIN ET MAISON📍 À VENDRE – Terrain constructible de 505 m² à Milizac-GuipronvelDécouvrez ce terrain de 505 m² situé dans un quartier résidentiel paisible, au coeur d’un environnement verdoyant et agréable.🌿 Atouts du terrain :Cadre calme et résidentiel, idéal pour une maison familiale 🏡Accès rapide à Brest : seulement 15 minutes en voiture 🚗🏫 À proximité : écoles, commerces du centre-bourg, vie associative dynamique et transports scolaires.Profitez du compromis parfait entre tranquillité et accessibilité, pour réaliser votre futur projet de vie.💡 Nous vous proposons sur ce terrain un projet de maison de 80 m², au style contemporain comprenant :3 chambres dont une suite parentale 🛏️1 salles de bains avec douche et baignoire🚿Un vaste espace de vie de plus de 40 m² lumineux ☀️Un grand garage 🚗Une conception intégrée dans notre concept Maisons Bâti Activ, favorisant l’ensoleillement naturel et réduisant vos coûts énergétiques 🌿⚡💰 Prix de l’opération Terrain + Maison : 276 000 €📞 Contactez Erwan TILLY dès maintenant pour plus d’informations ou organiser une visite.
Plouguin
TERRAINDEVENEZ PROPRIÉTAIRE D’UN TERRAIN À PLOUGUIN !Vivez dans un cadre de vie privilégié à Plouguin, charmante commune dynamique du Nord-Finistère, idéalement située entre Ploudalmézeau et Brest.Profitez du calme de la campagne tout en restant proche des commerces, écoles et services – un environnement idéal pour votre futur projet ! Votre terrain comprend 😮 Une surface de 330 m², bien orientéeo Possibilité de construire la maison de vos rêves selon vos envies Les atouts du projet 😮 Terrain viabilisé ou proche des réseauxo Cadre de vie paisible, à proximité de Ploudalmézeau, Brest et du littoral nordo Liberté de construction, avec plan personnalisable selon vos besoins Prix indiqué hors frais Photos non contractuelles à titre d’illustration Accession possible avec ou sans apportNe manquez pas cette opportunité unique de devenir propriétaire d’un terrain à Plouguin et de réaliser votre projet sur-mesure ! Contactez-nous dès maintenant pour plus d’informations et étudier votre projet.
Plouguin
TERRAINSitué au coeur du bourg de Plouguin, découvrez ce terrain de 337 m2, idéal pour un projet de maison individuelle .Le terrain bénéficie d’un accès privatif via une zone commune en indivision de 167 m2, offrant une arrivée confortable et sécurisée sur la parcelle.Le lot est borné et à viabilité.Les points forts : – centre bourg, commerces et services à pied – parcelle bien exposéeN’hésitez pas à revenir vers moi rapidement Les honoraires d’agence sont à la charge de l’acquéreur, soit 17,24% TTC du prix hors honoraires.Les informations sur les risques auxquels ce bien est exposé sont disponibles sur le site Géorisques : www. georisques. gouv. fr.Réseau Immobilier CAPIFRANCE – Votre agent commercial (RSAC N(Numéro supprimé) – Greffe de BREST) Patricia BÉNARDEAU Entrepreneur Individuel à Responsabilité Limitée (Numéro supprimé) – Réf.932808
Plourin
TERRAIN ET MAISONVENTE : maison de 4 pièces (70 m²) à PlourinMAISON 4 PIÈCES NEUVE – PROCHE DE BRESTEn vente sur le littoral et à 17 km de Brest, Maisons de l’Avenir Guipavas vous présente cette maison de 4 pièces de 70 m² et de 775 m² de terrain à Plourin (29830).C’est une maison de 2 niveaux. Elle se divise en trois chambres, une cuisine et une salle de bains. Elle est à vendre pour la somme de 226 000 €.Contactez Jean ROPERS (tél : (Numéro supprimé)) pour plus de renseignements sur le bien. Maisons de l’Avenir Guipavas vous accompagne à toutes les étapes de votre projet et dans toutes vos démarches.
Plourin
TERRAIN ET MAISONVENTE : maison de 3 pièces (75 m²) à PlourinPROCHE DE BREST – MAISON 3 PIÈCES NEUVEÀ vendre : sur le littoral et à quelques kilomètres de Brest, Maisons de l’Avenir Guipavas vous présente cette maison de 3 pièces de 75 m² et de 775 m² de terrain à Plourin (29830).Cette maison compte 2 niveaux. Son intérieur compte deux chambres, une cuisine et une salle de bains.Elle est proposée à l’achat pour 256 200 €.N’hésitez pas à prendre contact avec notre agence (Jean ROPERS : (Numéro supprimé)) pour tout renseignement sur cette maison. Maisons de l’Avenir Guipavas vous accompagne à toutes les étapes de l’achat et dans toutes vos démarches.
L’actualité immobilière à Milizac-Guipronvel
27/11/2023
02/11/2023
30/10/2023
20/10/2023
16/10/2023
16/10/2023