Maison à construire à Pencran (29800)
Images
Description
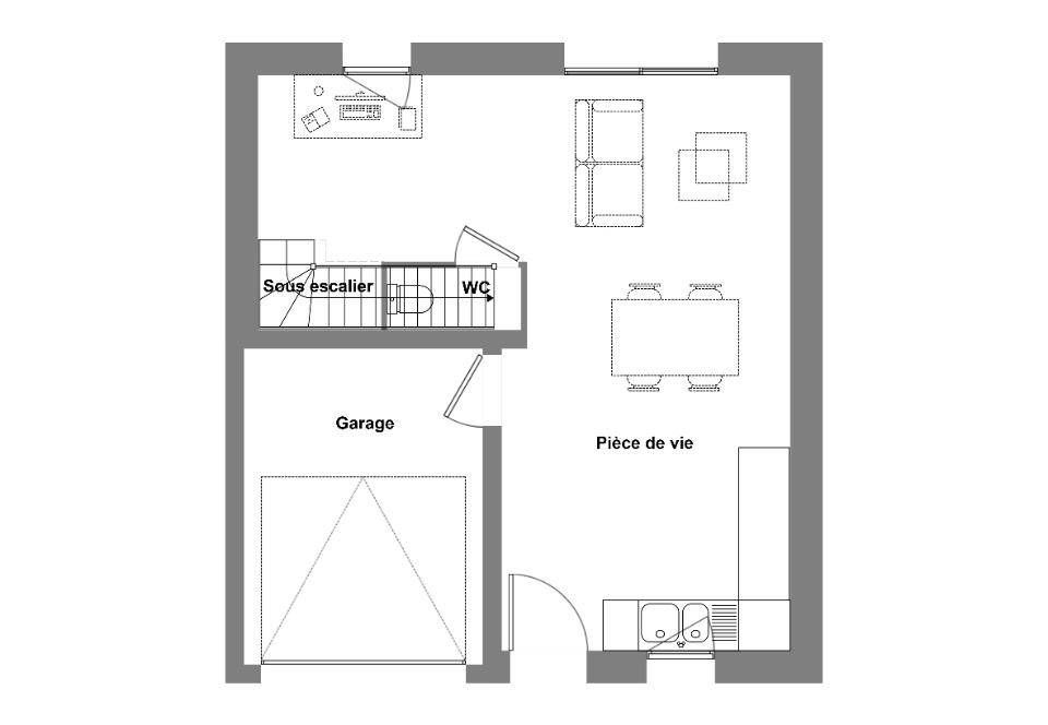
Pencran : maison F4 (85 m²) en vente
PROCHE DE BREST - MAISON 4 PIÈCES NEUVE
Sur le littoral et à quelques kilomètres de Brest, nous sommes heureux de vous proposer à vendre à Pencran (29800), cette maison de 4 pièces de 85 m². Son intérieur se divise en trois chambres, une cuisine et une salle de bains.
Le terrain de la propriété s'étend sur 456 m².
Il s'agit d'une maison de 2 niveaux.
Elle est à vendre pour la somme de 266 720 €.
Contactez notre agence (BULA Valérie : (Numéro supprimé)) pour obtenir de plus amples renseignements sur cette maison. Maisons de l'Avenir Quimper est là pour vous accompagner à toutes les étapes de votre projet.
Logement susceptibles de vous intéresser
Nous vous proposons de découvrir aussi cette sélection de logements situés à moins de 10km de Pencran et qui seraient susceptibles de vous intéresser.
Trémaouézan
TERRAIN ET MAISONDEVENEZ PROPRIÉTAIRE À TRÉMAOUÉZAN – MAISON NEUVE RE2020 SUR-MESUREVivez dans un cadre de vie paisible à Trémaouézan, charmante commune du Nord-Finistère, située à proximité de Lesneven, Landerneau et à quelques minutes du littoral.Profitez du calme de la campagne, tout en restant proche des commerces, écoles et grands axes – un environnement idéal pour votre famille ! Votre future maison comprendo 2 chambres spacieuses et lumineuseso Un grand salon-séjour traversant, ouvert sur le jardino Une cuisine moderne et fonctionnelleo Salle de bain et WC séparéso Le tout sur un terrain de 620 m², bien orienté et offrant un bel espace extérieur à aménager Les atouts du projeto Maison neuve RE2020, à faible consommation d’énergieo Plan personnalisable selon vos besoins et vos envieso Environnement verdoyant, à deux pas de Lesneven et Landerneauo Prestations de qualité et finitions soignéeso Cadre de vie calme, idéal pour un premier achat ou une famille Prix indiqué hors frais Photos non contractuelles à titre d’illustration Accession à la propriété possible avec ou sans apportNe manquez pas cette belle opportunité de devenir propriétaire d’une maison neuve, moderne et économique à Trémaouézan ! Contactez-nous dès maintenant pour découvrir les plans et étudier votre projet personnalisé.
La Forest-Landerneau
TERRAIN ET MAISONDEVENEZ PROPRIÉTAIRE À LA FOREST-LANDERNEAU – MAISON NEUVE RE2020 SUR-MESUREOffrez-vous un cadre de vie privilégié à La Forest-Landerneau, commune recherchée du Finistère, à seulement quelques minutes de Landerneau et de Brest.Profitez du calme de la campagne, dans un environnement verdoyant, tout en restant proche des commerces, écoles et services. Un lieu de vie idéal pour votre famille ! Votre future maison comprendo 2 chambres spacieuses et lumineuseso Un grand salon-séjour traversant, ouvert sur le jardino Une cuisine moderne et fonctionnelleo Salle de bain et WC séparéso Le tout sur un terrain exceptionnel de 413 m², bien orienté et offrant de nombreuses possibilités d’aménagement Les atouts du projeto Maison neuve RE2020, à faible consommation d’énergieo Plan personnalisable selon vos besoins et votre mode de vieo Grand terrain arboré, rare sur le secteuro Environnement paisible, à proximité immédiate de Brest, Landerneau et de la voie expresso Prestations de qualité et finitions soignées Prix indiqué hors frais Photos non contractuelles à titre d’illustration Accession à la propriété possible avec ou sans apportNe manquez pas cette belle opportunité de devenir propriétaire d’une maison neuve, moderne et économique à La Forest-Landerneau ! Contactez-nous dès maintenant pour découvrir les plans et étudier votre projet personnalisé.
Pencran
TERRAINVENTE d’un terrain de 456 m² à PencranDERNIERS LOTS! A saisir idéalement placés près de LanderneauÀ Pencran (29800) sur le littoral et à deux pas de Brest, projetez la maison de vos rêves sur ce terrain de 456 m².Son prix de vente est de 54 720 €. Contactez Valérie BULA (tél : (Numéro supprimé)) pour plus de renseignements sur ce terrain ou sur les modalités de vente. Maisons de l’Avenir Quimper vous accompagne dans tous vos projets immobiliers et à toutes les étapes de l’achat.
Pencran
TERRAIN ET MAISONVENTE d’une maison de 3 pièces (80 m²) à PencranPROCHE DE BREST – MAISON 3 PIÈCES À vendre sur le littoral et à quelques kilomètres de Brest, nous vous proposons à Pencran (29800), cette maison de 3 pièces de plain-pied de 80 m² et de 456 m² de terrain. Son intérieur propose trois chambres, une cuisine et une salle de bains.Son prix de vente est de 255 720 €.Contactez notre agence (Valérie BULA : (Numéro supprimé)) pour obtenir de plus amples informations sur la maison. Maisons de l’Avenir Quimper est là pour vous accompagner dans tous vos projets immobiliers.
Pencran
TERRAIN ET MAISONPencran : maison de 5 pièces (105 m²) à vendreMAISON 5 PIÈCES NEUVE – PROCHE DE BRESTEn vente : sur le littoral et à deux pas de Brest, nous vous présentons cette maison de 5 pièces de 105 m² et de 456 m² de terrain à Pencran (29800).Il s’agit d’une maison de 2 niveaux. Son intérieur propose quatre chambres, une cuisine et deux salles de bains. Elle est proposée à l’achat pour 310 720 €.N’hésitez pas à prendre contact avec Valérie BULA ((Numéro supprimé)) pour tout renseignement sur cette maison, sur les modalités de vente ou sur les démarches à suivre.
Pencran
TERRAIN ET MAISONVENTE : maison de 4 pièces (140 m²) à PencranMAISON 4 PIÈCES NEUVE – PROCHE DE BRESTSur le littoral et à quelques kilomètres de Brest, nous vous présentons cette maison de 4 pièces de 140 m² à Pencran (29800). Son intérieur est composé de quatre chambres, d’une cuisine et de deux salles de bains.Le terrain du bien est de 456 m².Elle est à vendre pour la somme de 387 720 €.Contactez notre agence (BULA Valérie : (Numéro supprimé)) pour toute information sur la maison ou sur les démarches à suivre. Maisons de l’Avenir Quimper vous accompagne dans tous vos projets immobiliers et à toutes les étapes de l’achat.
Pencran
TERRAIN ET MAISONPencran : maison F4 (85 m²) en ventePROCHE DE BREST – MAISON 4 PIÈCES NEUVESur le littoral et à quelques kilomètres de Brest, nous sommes heureux de vous proposer à vendre à Pencran (29800), cette maison de 4 pièces de 85 m². Son intérieur se divise en trois chambres, une cuisine et une salle de bains.Le terrain de la propriété s’étend sur 456 m².Il s’agit d’une maison de 2 niveaux. Elle est à vendre pour la somme de 266 720 €.Contactez notre agence (BULA Valérie : (Numéro supprimé)) pour obtenir de plus amples renseignements sur cette maison. Maisons de l’Avenir Quimper est là pour vous accompagner à toutes les étapes de votre projet.
Pencran
TERRAIN ET MAISONMaison de 5 pièces (130 m²) en vente à PencranMAISON 5 PIÈCES OSSATURE BOIS – PROCHE DE BRESTEn vente : à quelques kilomètres de la mer et à 21 km de Brest, à Pencran (29800), votre agence Maisons de l’Avenir Quimper est ravie de vous présenter cette maison de 5 pièces de 130 m² et de 456 m² de terrain.C’est une maison de 2 niveaux. Son intérieur offre quatre chambres, une cuisine et une salle de bains. Elle est proposée à l’achat pour 384 006 €.Prenez contact avec notre agence (BULA Valérie : (Numéro supprimé)) pour plus de renseignements sur cette maison.
Landerneau
TERRAINTerrain de 440 m² à vendre à LanderneauPROCHE DE BRESTÀ Landerneau (29800) sur le littoral et à 18 km de Brest, découvrez ce terrain de 440 m². Des écoles de tous niveaux sont implantées à moins de 10 minutes. Côté transports en commun, il y a la gare Landerneau dans un rayon de 1 km. Les nationales N12 et N165 sont accessibles à moins de 9 km. On trouve un tennis, des commerces, des boulangeries, un supermarché, un bureau de poste et deux épiceries dans les environs. Il est à vendre pour la somme de 108 000 €. Contactez notre agence (ROPERS Jean : (Numéro supprimé)) pour tout renseignement sur le terrain et sur les démarches à suivre. Maisons de l’Avenir Guipavas est là pour vous accompagner à toutes les étapes de l’achat.
L’actualité immobilière à Pencran
27/11/2023
02/11/2023
30/10/2023
20/10/2023
16/10/2023
16/10/2023