Maison à construire à Plabennec (29860)
Images
Description
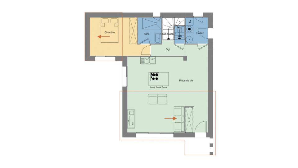
VENTE : maison F4 (94 m²) à Plabennec
PROCHE CENTRE-VILLE - MAISON 4 PIÈCES NEUVE
En vente à quelques kilomètres de la mer et à deux pas de Brest, proche du centre-ville de Plabennec (29860), votre agence Maisons de l'Avenir Guipavas est heureuse de vous proposer cette maison de 4 pièces de 94 m². Elle dispose de trois chambres, d'une cuisine et de deux salles de bains.
Le terrain de la maison est de 452 m².
Il s'agit d'une maison de 2 niveaux. Elle est neuve.
L'École Primaire Privée Sainte Anne est implantée à moins de 10 minutes à pied. Les nationales N12 et N265 sont accessibles à moins de 10 km. Il y a une bibliothèque, des commerces, quatre boulangeries, un supermarché, une boucherie-charcuterie et un bureau de poste à proximité de la maison.
Elle est proposée à l'achat pour 326 653 €.
Prenez contact avec Sami ALKIS pour obtenir de plus amples informations sur la maison. Maisons de l'Avenir Guipavas vous accompagne dans tous vos projets immobiliers et à toutes les étapes de votre projet.
Logement susceptibles de vous intéresser
Nous vous proposons de découvrir aussi cette sélection de logements situés à moins de 10km de Plabennec et qui seraient susceptibles de vous intéresser.
Le Folgoët
TERRAIN ET MAISONDEVENEZ PROPRIÉTAIRE AU FOLGOËT – MAISON NEUVE RE2020 SUR-MESURE !Vivez dans un cadre de vie privilégié à Le Folgoët, charmante commune dynamique du Nord-Finistère, à seulement quelques minutes de Lesneven et des plages du littoral.Profitez du calme de la campagne, tout en restant proche des commerces, écoles et services – un environnement idéal pour votre famille ! Votre future maison comprend :o2 chambres spacieuses et lumineusesoUn grand salon-séjour traversant, ouvert sur le jardinoUne cuisine moderne et fonctionnelleoSalle de bain et WC séparésoLe tout sur un terrain de 338 m², bien orienté Les atouts du projet :oMaison neuve RE2020, à faible consommation d’énergieoPlan personnalisable selon vos besoinsoCadre de vie paisible, à proximité de Brest et du littoraloPrestations de qualité, finitions soignées Prix indiqué hors frais Photos non contractuelles à titre d’illustration Accession à la propriété possible avec ou sans apportNe manquez pas cette belle opportunité de devenir propriétaire d’une maison neuve moderne et économique au Folgoët ! Contactez-nous dès maintenant pour découvrir les plans et étudier votre projet personnalisé.
Le Folgoët
TERRAINDans la charmante commune du Folgoët, un terrain de 680m² est désormais sur le marché. Ce terrain, idéalement situé, offre une opportunité rare d’investissement et de construction dans une zone recherchée.Ce terrain se distingue par son emplacement de choix.L’atout majeur de ce terrain est sans aucun doute sa superficie généreuse de 680m². Cet espace offre une grande liberté pour la construction de votre future maison. Que vous envisagiez une maison familiale spacieuse, une habitation à l’architecture moderne ou une demeure au charme traditionnel, ce terrain est idéal pour réaliser vos projets.De plus, il bénéficie d’une excellente exposition. Il promet une luminosité optimale tout au long de la journée, un atout de taille pour profiter au maximum de votre future maison.N’attendez plus pour découvrir ce terrain, une opportunité à ne pas manquer pour concrétiser vos projets immobiliers.Son prix de vente est de 50 000 €. Contactez Aurélie CAGNARD (tél : (Numéro supprimé)) pour plus de renseignements sur ce terrain, sur les démarches à suivre et sur les modalités de vente.
Le Folgoët
TERRAIN ET MAISONVENTE d’une maison de 5 pièces (114 m²) au FolgoëtNouveau Murs Ossature BoisCette belle maison traditionnelle aux lignes contemporaines offre 114m² habitable . Au rez-de-chaussée, elle dispose d’une très belle pièce de vie offrant un maximum de lumière, d’un wc, d’un bureau, d’un cellier et d’un garage. A l’étage on retrouve 3 chambres, une salle de bains et un wc. L’orientation de cette maison vous permettra de bénéficier d’un maximum de lumière et de chaleur naturelle pour davantage d’économies et de douceur de vivre.Son prix de vente est de 338 600 €.Contactez Aurélie CAGNARD (tél : (Numéro supprimé)) pour tout renseignement sur cette maison. Concrétisez vos projets immobiliers avec Maisons de l’Avenir Guipavas.
Le Folgoët
TERRAIN ET MAISONVENTE d’une maison de 5 pièces (113 m²) au FolgoëtNouveau Maison Murs Ossature Bois Nous sommes ravis de vous présenter à Plougar (29440)Ce très beau plain-pied aux lignes contemporaine, de 113 m² agencé astucieusement pour un maximum de luminosité, pièce de vie ouverte et volumineuse, 4 chambres dont 1 suite parentale, son grand cellier et son garage. Aux normes RE2020, peu énergivore, elle vous ravira par son confort de vie Son prix de vente est de 336 200 €.Contactez notre agence (Aurélie CAGNARD : (Numéro supprimé)) pour tout renseignement sur cette propriété, sur les démarches à suivre ou sur les modalités de vente.
Le Folgoët
TERRAIN ET MAISONVENTE d’une maison de 6 pièces (114 m²) au FolgoëtNouveau Murs Ossature BoisCette belle maison traditionnelle aux lignes contemporaines offre 114m² habitable . Au rez-de-chaussée, elle dispose d’une belle pièce de vie offrant un maximum de lumière, d’une grande suite parentale avec sa salle d’eau, d’un wc, d’un très grand cellier et son garage. A l’étage on retrouve 4 chambres, une salle de bains, et un WC. L’orientation de cette maison vous permettra de bénéficier d’un maximum de lumière et de chaleur naturelle pour davantage d’économies et de douceur de vivre.Aux normes RE2020, peu énergivore, elle vous ravira par son confort de vieElle est proposée à l’achat pour 338 600 €.Prenez contact avec Aurélie CAGNARD (tél : (Numéro supprimé)) pour plus d’informations sur ce bien ou sur les modalités de vente.
Le Folgoët
TERRAIN ET MAISONMaison T4 (120 m²) en vente au FolgoëtNouveau Murs Ossature BoisCette belle maison traditionnelle aux lignes contemporaines offre 120m² habitable . Elle dispose d’une belle pièce de vie offrant un maximum de lumière, 2 chambres, une salle de bains, un WC, une suite parentale ainsi qu’un cellier et son garage. L’orientation de cette maison vous permettra de bénéficier d’un maximum de lumière et de chaleur naturelle pour davantage d’économies et de douceur de vivre.Aux normes RE2020, peu énergivore, elle vous ravira par son confort de vie.Elle est à vendre pour la somme de 353 000 €.Contactez Aurélie CAGNARD (tél : (Numéro supprimé)) pour tout renseignement sur la maison et sur les modalités de vente.
Plabennec
TERRAINVENTE : terrain de 452 m² à PlabennecPROCHE CENTRE-VILLE – PROCHE DE BRESTEn vente à quelques kilomètres de la mer et à 12 km de Brest à Plabennec (29860), terrain de 452 m². Réalisez-y la maison de vos rêves. Il bénéficie d’une exposition sud-ouest. Il est situé non loin du centre-ville. L’École Primaire Privée Sainte Anne est implantée à moins de 10 minutes à pied. Les nationales N12 et N265 sont accessibles à moins de 10 km. On trouve une bibliothèque, des commerces, quatre boulangeries, un supermarché, une boucherie-charcuterie et un bureau de poste à quelques minutes.Ce terrain est à vendre pour la somme de 81 120 €. N’hésitez pas à prendre contact avec notre agence (Sami ALKIS) pour plus d’informations sur ce terrain, sur les modalités de vente ou sur les démarches à suivre.
Plabennec
TERRAIN ET MAISONVENTE : maison F4 (82 m²) à PlabennecPROCHE CENTRE-VILLE – MAISON 4 PIÈCES NEUVEÀ vendre : localisée sur le littoral et à deux pas de Brest, nous vous proposons cette maison de 4 pièces de plain-pied de 82 m² et de 452 m² de terrain proche du centre-ville de Plabennec (29860).Elle comporte trois chambres, une cuisine et une salle de bains. Cette maison est neuve.L’École Primaire Privée Sainte Anne est implantée à moins de 10 minutes à pied. Les nationales N12 et N265 sont accessibles à moins de 10 km. On trouve une bibliothèque, des commerces, quatre boulangeries, un supermarché, une boucherie-charcuterie et un bureau de poste dans les environs.Elle est proposée à l’achat pour 277 421 €.Contactez Sami ALKIS pour toute information sur la maison ou sur les modalités de vente.
Plabennec
TERRAIN ET MAISONVENTE : maison F4 (94 m²) à PlabennecPROCHE CENTRE-VILLE – MAISON 4 PIÈCES NEUVEEn vente à quelques kilomètres de la mer et à deux pas de Brest, proche du centre-ville de Plabennec (29860), votre agence Maisons de l’Avenir Guipavas est heureuse de vous proposer cette maison de 4 pièces de 94 m². Elle dispose de trois chambres, d’une cuisine et de deux salles de bains.Le terrain de la maison est de 452 m².Il s’agit d’une maison de 2 niveaux. Elle est neuve.L’École Primaire Privée Sainte Anne est implantée à moins de 10 minutes à pied. Les nationales N12 et N265 sont accessibles à moins de 10 km. Il y a une bibliothèque, des commerces, quatre boulangeries, un supermarché, une boucherie-charcuterie et un bureau de poste à proximité de la maison.Elle est proposée à l’achat pour 326 653 €.Prenez contact avec Sami ALKIS pour obtenir de plus amples informations sur la maison. Maisons de l’Avenir Guipavas vous accompagne dans tous vos projets immobiliers et à toutes les étapes de votre projet.
L’actualité immobilière à Plabennec
27/11/2023
02/11/2023
30/10/2023
20/10/2023
16/10/2023
16/10/2023