Maison à construire à Pleuven (29170)
Images
Description
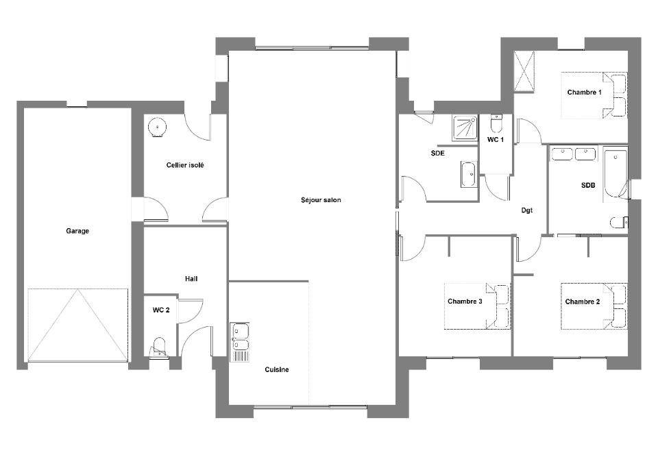
VENTE : maison T4 (140 m²) à Pleuven
MAISON 4 PIÈCES NEUVE - PROCHE DE QUIMPER
À vendre sur le littoral atlantique et à 10 km de Quimper, nous sommes heureux de vous proposer cette maison de 4 pièces de plain-pied de 140 m² à Pleuven (29170).
Conçue de plain-pied, elle inclut trois chambres, une cuisine et deux salles de bains. Cette maison est neuve.
Le terrain de la propriété s'étend sur 330 m².
Il y a l'École Maternelle Publique René Tressard et l'École Élémentaire Publique René Tressard à moins de 10 minutes à pied. On trouve un accès à la nationale N165 à 9 km. On trouve une boucherie-charcuterie dans les environs.
Elle est proposée à l'achat pour 392 000 €.
N'hésitez pas à prendre contact avec notre agence (LAURENT Marie : (Numéro supprimé)) pour plus d'informations sur la propriété ou sur les démarches à suivre.
Logement susceptibles de vous intéresser
Nous vous proposons de découvrir aussi cette sélection de logements situés à moins de 10km de Pleuven et qui seraient susceptibles de vous intéresser.
Plomelin
TERRAINDEVENEZ PROPRIÉTAIRE D’UN TERRAIN À PLOMELIN !Vivez dans un cadre de vie privilégié à Plomelin, charmante commune du sud Finistère, à proximité des commerces, écoles et services, et à quelques minutes de Quimper et des plages de Bénodet.Profitez du calme de la campagne tout en restant proche des commodités – un environnement idéal pour construire la maison de vos rêves ! Votre terrain comprendo Surface de 450 m², bien orientéeo Possibilité de construire la maison de vos rêves selon vos envies Les atouts du projeto Terrain viabilisé ou proche des réseauxo Cadre de vie paisible, à proximité de Quimper et du littoral sudo Liberté de construction, plan personnalisable selon vos besoins Prix indiqué hors frais Photos non contractuelles – à titre d’illustration Accession possible avec ou sans apportNe manquez pas cette opportunité unique de devenir propriétaire d’un terrain à Plomelin et de concrétiser votre projet sur-mesure ! Contactez-nous dès maintenant pour plus d’informations et étudier votre projet personnalisé.
Plomelin
TERRAIN ET MAISONDEVENEZ PROPRIÉTAIRE À PLOMELIN – MAISON NEUVE RE2020 SUR-MESUREVivez dans un cadre privilégié à Plomelin, commune prisée du sud Finistère, située à seulement quelques minutes de Quimper et des plages de Bénodet.Profitez d’un environnement calme et verdoyant, idéal pour une vie de famille, tout en bénéficiant de la proximité des commerces, écoles et services. Votre future maison comprendo 3 chambres spacieuses et lumineuseso Un grand salon-séjour traversant, ouvert sur le jardino Une cuisine moderne et fonctionnelleo Salle de bain et WC séparéso Le tout sur un terrain de 450 m², bien orienté et facile à entretenir Les atouts du projeto Maison neuve RE2020, économe en énergieo Plan personnalisable selon vos envies et votre mode de vieo Environnement paisible, à proximité immédiate de Quimper et du littoral sudo Prestations de qualité et finitions soignéeso Accès rapide à la voie express et à toutes les commodités Prix indiqué hors frais Photos non contractuelles à titre d’illustration Accession à la propriété possible avec ou sans apportNe manquez pas cette belle opportunité de devenir propriétaire d’une maison neuve, moderne et économique à Plomelin ! Contactez-nous dès maintenant pour découvrir les plans et étudier votre projet personnalisé.
Saint-Évarzec
TERRAINDEVENEZ PROPRIÉTAIRE D’UN TERRAIN À SAINT-EVARZEC !Vivez dans un cadre de vie privilégié à Saint-Evarzec, charmante commune du Sud-Finistère, idéalement située entre Quimper et le littoral sud.Profitez du calme de la campagne, tout en restant proche des commerces, écoles et services – un environnement idéal pour votre futur projet ! Votre terrain comprend 😮 Une surface de 390 m², bien orientéeo Possibilité de construire la maison de vos rêves selon vos envies Les atouts du projet 😮 Terrain viabilisé ou proche des réseaux (à préciser selon le lot)o Cadre de vie paisible, proche des commodités et du littoralo Liberté de construction, avec plan personnalisable selon vos besoins Prix indiqué hors frais Photos non contractuelles à titre d’illustration Accession possible avec ou sans apportNe manquez pas cette opportunité unique de devenir propriétaire d’un terrain à Saint-Evarzec et de réaliser votre projet sur-mesure ! Contactez-nous dès maintenant pour plus d’informations et étudier votre projet.
Saint-Yvi
TERRAINSaint-Yvi : terrain de 398 m² à vendrePROCHE CENTRE-VILLE – PROCHE DE QUIMPERÀ Saint-Yvi (29140) à vendre à 10 km de la côte atlantique et à deux pas de Quimper, imaginez la maison de vos rêves sur ce terrain de 398 m². Il se trouve non loin du centre-ville. Il est à vendre pour la somme de 46 000 €. Contactez notre agence (Mathieu DEROUET : (Numéro supprimé)) pour plus d’informations sur ce terrain ou sur les modalités de vente. Maisons de l’Avenir Quimper vous accompagne dans tous vos projets immobiliers et à toutes les étapes de l’achat.
Saint-Yvi
TERRAIN ET MAISONVENTE : maison F4 (105 m²) à Saint-YviPROCHE CENTRE-VILLE – MAISON 4 PIÈCES NEUVEÀ vendre : sur le littoral atlantique et à deux pas de Quimper, nous sommes ravis de vous présenter, proche du centre-ville de Saint-Yvi (29140), cette maison de 4 pièces de 105 m².C’est une maison de 2 niveaux. Son intérieur comporte quatre chambres, une cuisine et deux salles de bains. Elle est à vendre pour la somme de 310 500 €.Contactez Mathieu DEROUET ((Numéro supprimé)) pour obtenir de plus amples renseignements sur le bien ou sur les modalités de vente.
Saint-Yvi
TERRAIN ET MAISONSaint-Yvi : maison de 4 pièces (100 m²) en ventePROCHE CENTRE-VILLE – MAISON 4 PIÈCES NEUVEÀ vendre sur le littoral atlantique et à 13 km de Quimper, nous vous présentons cette maison de 4 pièces de 100 m² proche du centre-ville de Saint-Yvi (29140). Son intérieur inclut trois chambres, une cuisine et deux salles de bains.Le terrain de la propriété s’étend sur 398 m².C’est une maison de 2 niveaux.Elle est proposée à l’achat pour 299 500 €.Contactez notre agence (DEROUET Mathieu : (Numéro supprimé)) pour plus de renseignements sur la maison, sur les démarches à suivre et sur les modalités de vente.
Saint-Yvi
TERRAIN ET MAISONMaison T4 (90 m²) à vendre à Saint-YviPROCHE CENTRE-VILLE – MAISON 4 PIÈCES NEUVEEn vente : à 10 km de la côte atlantique et à deux pas de Quimper, proche du centre-ville de Saint-Yvi (29140), laissez vous charmer par cette maison de 4 pièces de 90 m².C’est une maison de 2 niveaux. Son intérieur dispose de trois chambres, d’une cuisine et de deux salles de bains. Elle est à vendre pour la somme de 277 500 €.N’hésitez pas à prendre contact avec notre agence (Mathieu DEROUET : (Numéro supprimé)) pour toute information sur la propriété, sur les démarches à suivre ou sur les modalités de vente. Maisons de l’Avenir Quimper vous accompagne à toutes les étapes de votre projet et dans tous vos projets immobiliers.
Saint-Yvi
TERRAIN ET MAISONVENTE d’une maison de 4 pièces (80 m²) à Saint-YviPROCHE CENTRE-VILLE – MAISON 4 PIÈCES NEUVEÀ vendre : à 10 km de la côte atlantique et à quelques kilomètres de Quimper, Maisons de l’Avenir Quimper vous propose cette maison de 4 pièces de plain-pied de 80 m² proche du centre-ville de Saint-Yvi (29140). Son intérieur offre trois chambres, une cuisine et une salle de bains.Son prix de vente est de 255 500 €.Contactez Mathieu DEROUET (tél : (Numéro supprimé)) pour toute question sur le bien. Maisons de l’Avenir Quimper vous accompagne dans toutes vos démarches et à toutes les étapes de votre projet.
Bénodet
TERRAINVENTE d’un terrain de 510 m² à BénodetIDÉALEMENT SITUÉ – A 800 M DES PLAGESSur la côte atlantique et à quelques kilomètres de Quimper à Bénodet (29950), grand terrain. Ce terrain est proposé à l’achat pour 185 000 €. Prenez contact avec Mathieu DEROUET ((Numéro supprimé)) pour plus d’informations sur le terrain.
L’actualité immobilière à Pleuven
27/11/2023
02/11/2023
30/10/2023
20/10/2023
16/10/2023
16/10/2023