Maison à construire à Plobannalec-Lesconil (29740)
Images
Description
VENTE d'une maison T5 (105 m²) à Plobannalec-Lesconil
CENTRE-VILLE - MAISON 5 PIÈCES NEUVE
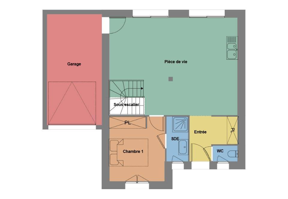
À 2 km de la côte atlantique et à deux pas de Quimper, Maisons de l'Avenir Quimper vous propose cette maison de 5 pièces de 105 m² en vente dans le centre-ville de Plobannalec-Lesconil (29740). Son intérieur est composé de quatre chambres, d'une cuisine et de deux salles de bains.
Le terrain de cette maison est de 480 m².
Cette maison comporte 2 niveaux.
Son prix de vente est de 301 000 €.
Contactez notre agence (DEROUET Mathieu : (Numéro supprimé)) pour plus d'informations sur la maison, sur les modalités de vente ou sur les démarches à suivre. Maisons de l'Avenir Quimper vous accompagne dans tous vos projets immobiliers et dans toutes vos démarches.
Logement susceptibles de vous intéresser
Nous vous proposons de découvrir aussi cette sélection de logements situés à moins de 10km de Plobannalec-Lesconil et qui seraient susceptibles de vous intéresser.
Plobannalec-Lesconil
TERRAIN ET MAISONPlobannalec-Lesconil : maison F4 (95 m²) à vendreCENTRE-VILLE – MAISON 4 PIÈCES NEUVEEn vente : située sur le littoral atlantique et à quelques kilomètres de Quimper, venez découvrir cette maison de 4 pièces de 95 m² dans le centre de Plobannalec-Lesconil (29740).Cette maison comporte 2 niveaux. Son intérieur comporte trois chambres, une cuisine et deux salles de bains.Elle est à vendre pour la somme de 264 000 €.Prenez contact avec Mathieu DEROUET ((Numéro supprimé)) pour toute information sur la maison. Concrétisez vos projets immobiliers avec Maisons de l’Avenir Quimper.
Plobannalec-Lesconil
TERRAINTerrain de 480 m² en vente à Plobannalec-LesconilCENTRE-VILLE – PROCHE DE QUIMPERTerrain de 480 m² sur la côte atlantique et à quelques kilomètres de Quimper. Ce terrain se situe en plein coeur de Plobannalec-Lesconil (29740).Ce terrain est proposé à l’achat pour 45 000 €. Contactez notre agence (DEROUET Mathieu : (Numéro supprimé)) pour toute information sur ce terrain.
Plobannalec-Lesconil
TERRAIN ET MAISONMaison de 5 pièces (100 m²) à vendre à Plobannalec-LesconilCENTRE-VILLE – MAISON 5 PIÈCES NEUVEÀ vendre sur la côte atlantique et à 22 km de Quimper, Maisons de l’Avenir Quimper vous présente cette maison de 5 pièces de plain-pied de 100 m² et de 480 m² de terrain en plein coeur de Plobannalec-Lesconil (29740). Conçue de plain-pied, elle offre quatre chambres, une cuisine et deux salles de bains.Son prix de vente est de 275 000 €.Contactez notre agence (DEROUET Mathieu : (Numéro supprimé)) pour toute information sur la maison. Concrétisez vos projets immobiliers avec Maisons de l’Avenir Quimper.
Plobannalec-Lesconil
TERRAIN ET MAISONVENTE d’une maison de 5 pièces (120 m²) à Plobannalec-LesconilCENTRE-VILLE – MAISON 5 PIÈCES OSSATURE BOISÀ vendre : localisée sur la côte atlantique et à deux pas de Quimper, dans le centre-ville de Plobannalec-Lesconil (29740), ayez le coup de coeur pour cette maison de 5 pièces de 120 m². Son intérieur se divise en quatre chambres, une cuisine et une salle de bains.Son prix de vente est de 334 950 €.Contactez Mathieu DEROUET ((Numéro supprimé)) pour obtenir de plus amples renseignements sur la maison, sur les démarches à suivre ou sur les modalités de vente. Maisons de l’Avenir Quimper vous accompagne à toutes les étapes de votre projet et dans tous vos projets immobiliers.
Plobannalec-Lesconil
TERRAIN ET MAISONPlobannalec-Lesconil : maison T3 (60 m²) à vendreCENTRE-VILLE – MAISON 3 PIÈCES NEUVEÀ 2 km de la côte atlantique et à quelques kilomètres de Quimper, nous sommes heureux de vous proposer cette maison de 3 pièces de plain-pied de 60 m² et de 480 m² de terrain à vendre, à Plobannalec-Lesconil (29740), en centre-ville. Son intérieur propose deux chambres, une cuisine et une salle de bains.Elle est à vendre pour la somme de 181 000 €.N’hésitez pas à prendre contact avec Mathieu DEROUET (tél : (Numéro supprimé)) pour plus d’informations sur la maison, sur les démarches à suivre ou sur les modalités de vente.
Plobannalec-Lesconil
TERRAIN ET MAISONPlobannalec-Lesconil : maison de 5 pièces (155 m²) à vendreCENTRE-VILLE – MAISON 5 PIÈCES NEUVEÀ vendre sur le littoral atlantique et à deux pas de Quimper, laissez vous charmer par, dans le centre de Plobannalec-Lesconil (29740), cette maison de 5 pièces de 155 m². Son intérieur comporte quatre chambres, une cuisine et deux salles de bains.Le terrain du bien s’étend sur 480 m².Cette maison compte 2 niveaux. Elle est proposée à l’achat pour 396 000 €.Prenez contact avec Mathieu DEROUET ((Numéro supprimé)) pour toute question sur le bien ou sur les modalités de vente. Maisons de l’Avenir Quimper vous accompagne dans tous vos projets immobiliers et dans toutes vos démarches.
Guilvinec
TERRAIN ET MAISONVENTE d’une maison de 4 pièces (75 m²) à GuilvinecCENTRE-VILLE – MAISON 4 PIÈCES NEUVEÀ 2 km de la côte atlantique et à 26 km de Quimper, venez découvrir cette maison de 4 pièces de 75 m² et de 450 m² de terrain en vente au coeur de Guilvinec (29730).Il s’agit d’une maison de 2 niveaux. Son intérieur se divise en trois chambres, une cuisine et une salle de bains. Il est proposé à l’achat pour 232 500 €.Contactez notre agence (Mathieu DEROUET : (Numéro supprimé)) pour plus de renseignements sur la maison ou sur les modalités de vente. Maisons de l’Avenir Pont-l’Abbé est là pour vous accompagner à toutes les étapes de votre projet.
Guilvinec
TERRAIN ET MAISONVENTE d’une maison T4 (95 m²) à GuilvinecCENTRE-VILLE – MAISON 4 PIÈCES NEUVESur la côte atlantique et à 26 km de Quimper, nous vous présentons cette maison de 4 pièces de 95 m² et de 450 m² de terrain à vendre en plein coeur de Guilvinec (29730). Elle comporte trois chambres, une cuisine et deux salles de bains.Cette maison possède 2 niveaux. Son prix de vente est de 299 000 €.N’hésitez pas à prendre contact avec notre agence (Mathieu DEROUET : (Numéro supprimé)) pour toute information sur la maison, sur les modalités de vente ou sur les démarches à suivre.
Guilvinec
TERRAIN ET MAISONGuilvinec : maison F4 (115 m²) à vendreCENTRE-VILLE – MAISON 4 PIÈCES NEUVEÀ 2 km de la côte atlantique et à quelques kilomètres de Quimper, Maisons de l’Avenir Pont-l’Abbé vous propose à vendre, à Guilvinec (29730), en centre-ville, cette maison de 4 pièces de 115 m² et de 450 m² de terrain. Elle est composée de quatre chambres, d’une cuisine et de deux salles de bains.Il s’agit d’une maison de 2 niveaux. Son prix de vente est de 343 000 €.Contactez Mathieu DEROUET ((Numéro supprimé)) pour toute question sur la maison. Maisons de l’Avenir Pont-l’Abbé est là pour vous accompagner dans toutes vos démarches.
L’actualité immobilière à Plobannalec-Lesconil
27/11/2023
02/11/2023
30/10/2023
20/10/2023
16/10/2023
16/10/2023