Maison à construire à Plomelin (29700)
Images
Description
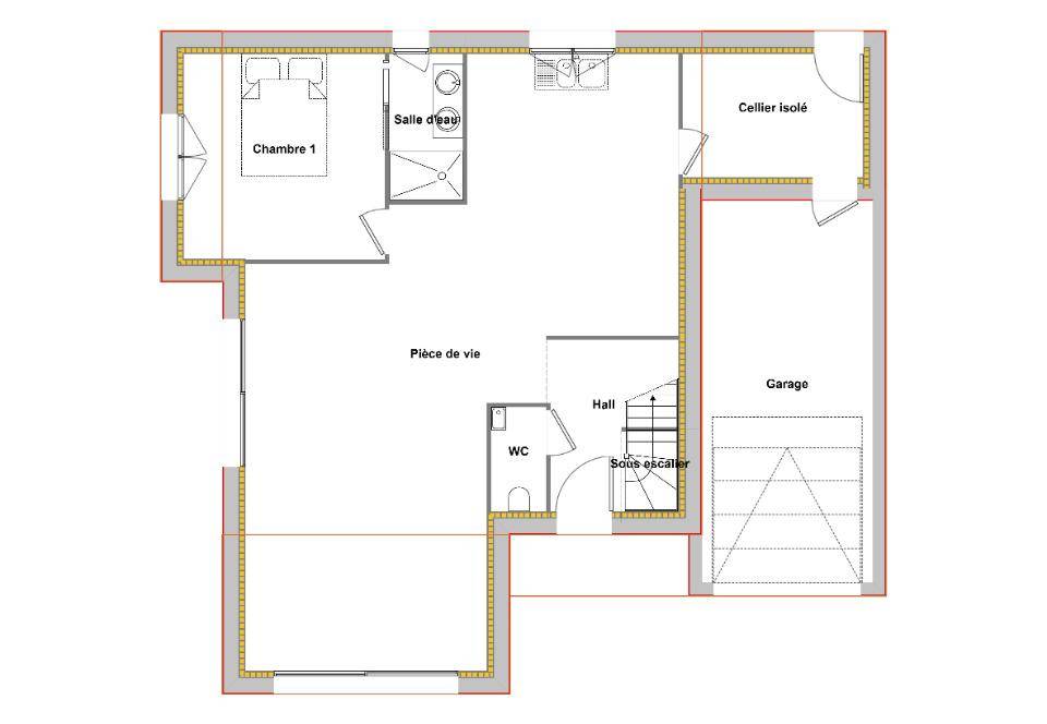
VENTE : maison T4 (100 m²) à Plomelin
PROCHE CENTRE-VILLE - MAISON 4 PIÈCES NEUVE
En vente : localisée à 9 km de la côte atlantique et à quelques kilomètres de Quimper, venez découvrir, proche du centre-ville de Plomelin (29700), cette maison de 4 pièces de 100 m². Son intérieur propose quatre chambres, une cuisine et deux salles de bains.
Le terrain de cette maison est de 830 m².
C'est une maison de 2 niveaux. Elle est neuve.
L'École Primaire Privée Notre-Dame de l'Assomption et l'École Primaire Publique Lucie Aubrac sont implantées à moins de 10 minutes à pied. Niveau transports, on trouve la gare Quimper à moins de 10 minutes en voiture. Il y a un accès à la nationale N165 à 11 km. Il y a un tennis, deux boulangeries, trois commerces, deux supermarchés, une épicerie et une boucherie-charcuterie à proximité du bien.
Elle est proposée à l'achat pour 397 221 €.
Prenez contact avec Sami ALKIS pour toute information sur la maison. Maisons de l'Avenir Guipavas vous accompagne dans tous vos projets immobiliers et dans toutes vos démarches.
Logement susceptibles de vous intéresser
Nous vous proposons de découvrir aussi cette sélection de logements situés à moins de 10km de Plomelin et qui seraient susceptibles de vous intéresser.
Plomelin
TERRAIN ET MAISONVENTE : maison de 4 pièces (120 m²) à PlomelinPROCHE CENTRE-VILLE – MAISON 4 PIÈCES NEUVEÀ vendre à 9 km de l’océan Atlantique et à 8 km de Quimper, proche du centre-ville de Plomelin (29700), nous vous présentons cette maison de 4 pièces de plain-pied de 120 m². Elle se divise en trois chambres, une cuisine et deux salles de bains.Le terrain de cette maison est de 452 m².La maison est neuve.L’École Primaire Privée Notre-Dame de l’Assomption et l’École Primaire Publique Lucie Aubrac sont implantées à moins de 10 minutes à pied. Côté transports en commun, on trouve la gare Quimper à moins de 10 minutes en voiture. Il y a un accès à la nationale N165 à 11 km. Il y a un tennis, deux boulangeries, trois commerces, deux supermarchés, une boucherie-charcuterie et une épicerie dans les environs.Son prix de vente est de 377 843 €.N’hésitez pas à prendre contact avec notre agence (ALKIS Sami) pour toute information sur la maison, sur les modalités de vente et sur les démarches à suivre. Concrétisez vos projets immobiliers avec Maisons de l’Avenir Guipavas.
Pleuven
TERRAIN ET MAISONMaison de 4 pièces (75 m²) à vendre à PleuvenPROCHE CENTRE-VILLE – MAISON 4 PIÈCES NEUVEEn vente à 7 km de l’océan Atlantique et à 10 km de Quimper, notre agence Maisons de l’Avenir Pont-l’Abbé est ravie de vous proposer cette maison de 4 pièces de 75 m² et de 379 m² de terrain proche du centre-ville de Pleuven (29170).Cette maison comporte 2 niveaux. Son intérieur compte trois chambres, une cuisine et une salle de bains.Elle est proposée à l’achat pour 282 500 €.N’hésitez pas à prendre contact avec notre agence (DEROUET Mathieu : (Numéro supprimé)) pour toute information sur le bien, sur les démarches à suivre ou sur les modalités de vente. Maisons de l’Avenir Pont-l’Abbé est là pour vous accompagner à toutes les étapes de l’achat.
Pleuven
TERRAINPleuven : terrain de 450 m² en ventePROCHE CENTRE-VILLE – PROCHE DE QUIMPERÀ Pleuven (29170) à 7 km de l’océan Atlantique et à 10 km de Quimper, imaginez la maison de vos rêves sur ce terrain de 450 m². Il se trouve non loin du centre-ville. Il est proposé à l’achat pour 113 000 €. N’hésitez pas à prendre contact avec notre agence (DEROUET Mathieu : (Numéro supprimé)) pour plus de renseignements sur ce terrain ou sur les démarches à suivre. Faites de vos projets immobiliers une réalité avec Maisons de l’Avenir Pont-l’Abbé.
Quimper
TERRAIN ET MAISONMaison T4 (90 m²) à vendre à QuimperPROCHE CENTRE-VILLE – MAISON 4 PIÈCES NEUVEEn vente à 14 km de l’océan Atlantique, notre agence Maisons de l’Avenir Quimper est ravie de vous proposer cette maison de 4 pièces de 90 m² et de 545 m² de terrain proche du centre-ville de Quimper (29000). Elle inclut trois chambres, une cuisine et deux salles de bains.Il s’agit d’une maison de 2 niveaux. Elle est proposée à l’achat pour 267 000 €.Prenez contact avec notre agence (Mathieu DEROUET : (Numéro supprimé)) pour tout renseignement sur la maison. Donnez vie à vos projets immobiliers avec Maisons de l’Avenir Quimper.
Pleuven
TERRAIN ET MAISONMaison de 4 pièces (95 m²) à vendre à PleuvenPROCHE CENTRE-VILLE – MAISON 4 PIÈCES NEUVEEn vente : à 7 km de l’océan Atlantique et à 10 km de Quimper, découvrez cette maison de 4 pièces de 95 m² et de 450 m² de terrain proche du centre-ville de Pleuven (29170). Son intérieur comporte trois chambres, une cuisine et deux salles de bains.Cette maison possède 2 niveaux. Elle est à vendre pour la somme de 352 000 €.N’hésitez pas à prendre contact avec Mathieu DEROUET ((Numéro supprimé)) pour toute information sur la maison, sur les modalités de vente ou sur les démarches à suivre.
Quimper
TERRAIN ET MAISONVENTE : maison T4 (95 m²) à QuimperPROCHE CENTRE-VILLE – MAISON 4 PIÈCES NEUVEEn vente : située à 14 km de l’océan Atlantique, proche du centre-ville de Quimper (29000), notre agence Maisons de l’Avenir Quimper est ravie de vous présenter cette maison de 4 pièces de 95 m².Cette maison possède 2 niveaux. Son intérieur inclut trois chambres, une cuisine et deux salles de bains. Il est proposé à l’achat pour 293 000 €.Contactez Mathieu DEROUET (tél : (Numéro supprimé)) pour tout renseignement sur la maison, sur les démarches à suivre et sur les modalités de vente. Donnez vie à vos projets immobiliers avec Maisons de l’Avenir Quimper.
Plomelin
TERRAIN ET MAISONVENTE : maison T4 (100 m²) à PlomelinPROCHE CENTRE-VILLE – MAISON 4 PIÈCES NEUVEEn vente : localisée à 9 km de la côte atlantique et à quelques kilomètres de Quimper, venez découvrir, proche du centre-ville de Plomelin (29700), cette maison de 4 pièces de 100 m². Son intérieur propose quatre chambres, une cuisine et deux salles de bains.Le terrain de cette maison est de 830 m².C’est une maison de 2 niveaux. Elle est neuve.L’École Primaire Privée Notre-Dame de l’Assomption et l’École Primaire Publique Lucie Aubrac sont implantées à moins de 10 minutes à pied. Niveau transports, on trouve la gare Quimper à moins de 10 minutes en voiture. Il y a un accès à la nationale N165 à 11 km. Il y a un tennis, deux boulangeries, trois commerces, deux supermarchés, une épicerie et une boucherie-charcuterie à proximité du bien.Elle est proposée à l’achat pour 397 221 €.Prenez contact avec Sami ALKIS pour toute information sur la maison. Maisons de l’Avenir Guipavas vous accompagne dans tous vos projets immobiliers et dans toutes vos démarches.
Quimper
TERRAINVENTE : terrain de 545 m² à QuimperPROCHE CENTRE-VILLEÀ Quimper (29000) à vendre à 14 km de l’océan Atlantique, donnez vie à la maison de vos rêves sur ce terrain de 545 m². Il se situe non loin du centre-ville. Des écoles du primaire et du secondaire sont implantées à moins de 10 minutes. La nationale N165 est accessible à 3 km. Il y a une bibliothèque, des commerces, des boulangeries, un supermarché, des poissonneries et quatre supérettes dans les environs. Il est à vendre pour la somme de 54 000 €. Contactez notre agence (DEROUET Mathieu : (Numéro supprimé)) pour toute question sur ce terrain. Maisons de l’Avenir Quimper vous accompagne à toutes les étapes de votre projet et dans tous vos projets immobiliers.
Pleuven
TERRAIN ET MAISONMaison de 4 pièces (85 m²) à vendre à PleuvenPROCHE CENTRE-VILLE – MAISON 4 PIÈCES NEUVEEn vente à 7 km de la côte atlantique et à quelques kilomètres de Quimper, découvrez cette maison de 4 pièces de plain-pied de 85 m² proche du centre-ville de Pleuven (29170).Elle compte trois chambres, une cuisine et une salle de bains. Elle est proposée à l’achat pour 330 000 €.N’hésitez pas à prendre contact avec notre agence (Mathieu DEROUET : (Numéro supprimé)) pour tout renseignement sur la maison, sur les démarches à suivre et sur les modalités de vente.
L’actualité immobilière à Plomelin
27/11/2023
02/11/2023
30/10/2023
20/10/2023
16/10/2023
16/10/2023