Maison à construire à Plomeur (29120)
Images
Description
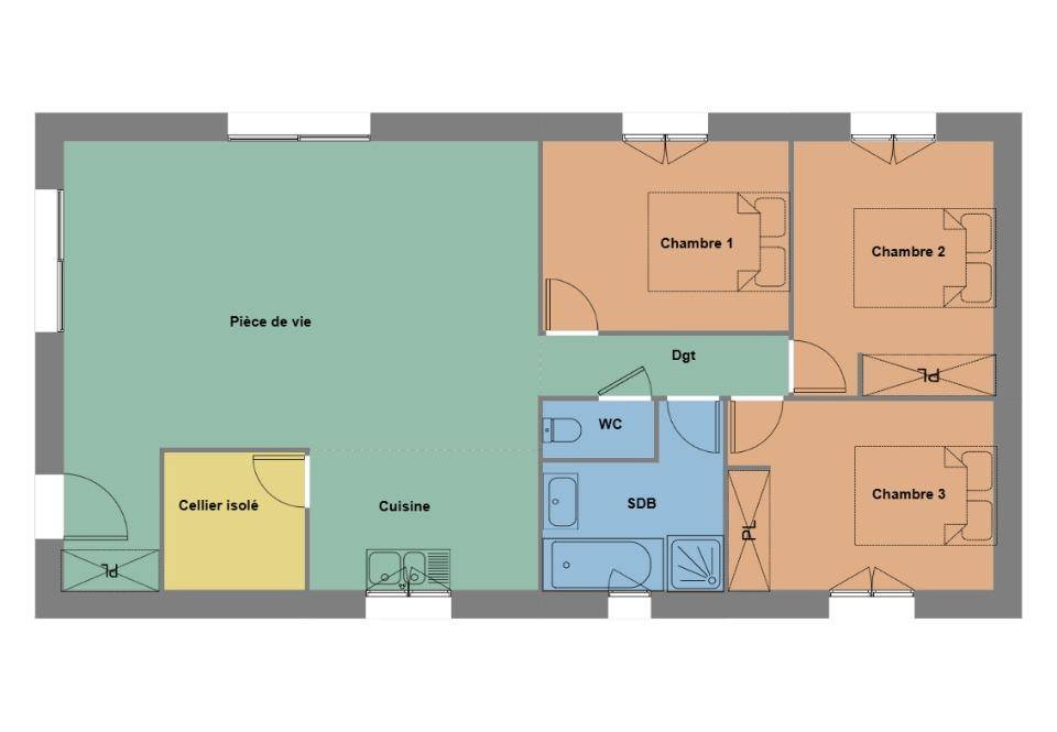
VENTE : maison F4 (85 m²) à Plomeur
MAISON 4 PIÈCES NEUVE - PROCHE DE QUIMPER
En vente : située sur le littoral atlantique et à 23 km de Quimper, nous sommes ravis de vous proposer cette maison de 4 pièces de plain-pied de 85 m² à Plomeur (29120). Elle offre trois chambres, une cuisine et une salle de bains.
Le terrain du bien s'étend sur 535 m².
Elle est proposée à l'achat pour 277 000 €.
N'hésitez pas à prendre contact avec Mathieu DEROUET ((Numéro supprimé)) pour plus de renseignements sur la maison ou sur les démarches à suivre.
Logement susceptibles de vous intéresser
Nous vous proposons de découvrir aussi cette sélection de logements situés à moins de 10km de Plomeur et qui seraient susceptibles de vous intéresser.
Pont-l'Abbé
TERRAINVENTE : terrain de 520 m² à Pont-l’AbbéPROCHE CENTRE VILLEÀ vendre à 8 km de l’océan Atlantique et à quelques kilomètres de Quimper à Pont-l’Abbé (29120), grand terrain. Il est prêt à accueillir votre projet immobilier pour toute la famille.Il est à vendre pour la somme de 92 000 €. Contactez Mathieu DEROUET ((Numéro supprimé)) pour plus d’informations sur ce terrain. Maisons de l’Avenir Quimper est là pour vous accompagner à toutes les étapes de votre projet.
Pont-l'Abbé
TERRAIN ET MAISONVENTE d’une maison T5 (155 m²) à Pont-l’AbbéPROCHE DE QUIMPER – MAISON 5 PIÈCES NEUVEEn vente : située à 8 km de l’océan Atlantique et à deux pas de Quimper, venez découvrir à Pont-l’Abbé (29120), cette maison de 5 pièces de 155 m². Son intérieur compte quatre chambres, une cuisine et deux salles de bains.Le terrain de la maison s’étend sur 520 m².Cette maison comporte 2 niveaux. Elle est à vendre pour la somme de 463 000 €.N’hésitez pas à prendre contact avec notre agence (DEROUET Mathieu : (Numéro supprimé)) pour obtenir de plus amples renseignements sur cette maison. Maisons de l’Avenir Quimper est là pour vous accompagner dans toutes vos démarches.
Pont-l'Abbé
TERRAIN ET MAISONMaison de 5 pièces (125 m²) en vente à Pont-l’AbbéMAISON 5 PIÈCES NEUVE – PROCHE DE QUIMPERÀ vendre : localisée à 8 km de l’océan Atlantique et à 17 km de Quimper, Maisons de l’Avenir Quimper vous présente cette maison de 5 pièces de 125 m² et de 520 m² de terrain à Pont-l’Abbé (29120). Elle comporte quatre chambres, une cuisine et deux salles de bains.C’est une maison de 2 niveaux. Elle est proposée à l’achat pour 397 000 €.Contactez notre agence (Mathieu DEROUET : (Numéro supprimé)) pour tout renseignement sur la maison, sur les démarches à suivre ou sur les modalités de vente.
Pont-l'Abbé
TERRAIN ET MAISONVENTE : maison de 3 pièces (65 m²) à Pont-l’AbbéMAISON 3 PIÈCES NEUVE – PROCHE DE QUIMPEREn vente : localisée à 8 km de la côte atlantique et à 17 km de Quimper, Maisons de l’Avenir Quimper vous présente cette maison de 3 pièces de plain-pied de 65 m² à Pont-l’Abbé (29120). Elle compte deux chambres, une cuisine et une salle de bains.Le terrain de cette maison s’étend sur 520 m².Son prix de vente est de 258 500 €.Contactez Mathieu DEROUET ((Numéro supprimé)) pour plus de renseignements sur le bien, sur les démarches à suivre et sur les modalités de vente. Maisons de l’Avenir Quimper est là pour vous accompagner dans tous vos projets immobiliers.
Pont-l'Abbé
TERRAIN ET MAISONVENTE d’une maison de 5 pièces (100 m²) à Pont-l’AbbéMAISON 5 PIÈCES NEUVE – PROCHE DE QUIMPEREn vente : située à 8 km de la côte atlantique et à quelques kilomètres de Quimper, découvrez cette maison de 5 pièces de 100 m² et de 520 m² de terrain à Pont-l’Abbé (29120).C’est une maison de 2 niveaux. Son intérieur compte quatre chambres, une cuisine et deux salles de bains.Elle est proposée à l’achat pour 342 000 €.Contactez notre agence (Mathieu DEROUET : (Numéro supprimé)) pour tout renseignement sur cette maison. Donnez vie à vos projets immobiliers avec Maisons de l’Avenir Quimper.
Pont-l'Abbé
TERRAIN ET MAISONVENTE : maison T6 (115 m²) à Pont-l’AbbéPROCHE DE QUIMPER – MAISON 6 PIÈCES OSSATURE BOISÀ vendre : sur le littoral atlantique et à 17 km de Quimper, découvrez cette maison de 6 pièces de 115 m² à Pont-l’Abbé (29120).Cette maison compte 2 niveaux. Son intérieur propose cinq chambres, une cuisine et deux salles de bains. Son prix de vente est de 393 750 €.N’hésitez pas à prendre contact avec Mathieu DEROUET ((Numéro supprimé)) pour obtenir de plus amples informations sur cette maison. Faites de vos projets immobiliers une réalité avec Maisons de l’Avenir Quimper.
Plomeur
TERRAINVENTE : terrain de 535 m² à PlomeurPROCHE CENTREGrand terrain en vente à 5 km de la côte atlantique et à deux pas de Quimper. De 535 m², ce terrain se situe dans Plomeur (29120).Il est à vendre pour la somme de 75 000 €. Contactez notre agence (Mathieu DEROUET : (Numéro supprimé)) pour tout renseignement sur ce terrain ou sur les démarches à suivre.
Plomeur
TERRAIN ET MAISONVENTE : maison F4 (85 m²) à PlomeurMAISON 4 PIÈCES NEUVE – PROCHE DE QUIMPEREn vente : située sur le littoral atlantique et à 23 km de Quimper, nous sommes ravis de vous proposer cette maison de 4 pièces de plain-pied de 85 m² à Plomeur (29120). Elle offre trois chambres, une cuisine et une salle de bains.Le terrain du bien s’étend sur 535 m².Elle est proposée à l’achat pour 277 000 €.N’hésitez pas à prendre contact avec Mathieu DEROUET ((Numéro supprimé)) pour plus de renseignements sur la maison ou sur les démarches à suivre.
Plomeur
TERRAIN ET MAISONPlomeur : maison T4 (120 m²) à vendrePROCHE DE QUIMPER – MAISON 4 PIÈCES NEUVEÀ vendre : à 5 km de la côte atlantique et à 23 km de Quimper, nous vous proposons à Plomeur (29120), cette maison de 4 pièces de plain-pied de 120 m² et de 535 m² de terrain. Elle propose trois chambres, une cuisine et une salle de bains.Elle est à vendre pour la somme de 369 000 €.Contactez Mathieu DEROUET (tél : (Numéro supprimé)) pour plus de renseignements sur cette maison ou sur les modalités de vente. Donnez vie à vos projets immobiliers avec Maisons de l’Avenir Quimper.
L’actualité immobilière à Plomeur
27/11/2023
02/11/2023
30/10/2023
20/10/2023
16/10/2023
16/10/2023