Maison à construire à Plonéour-Lanvern (29720)
Images
Description
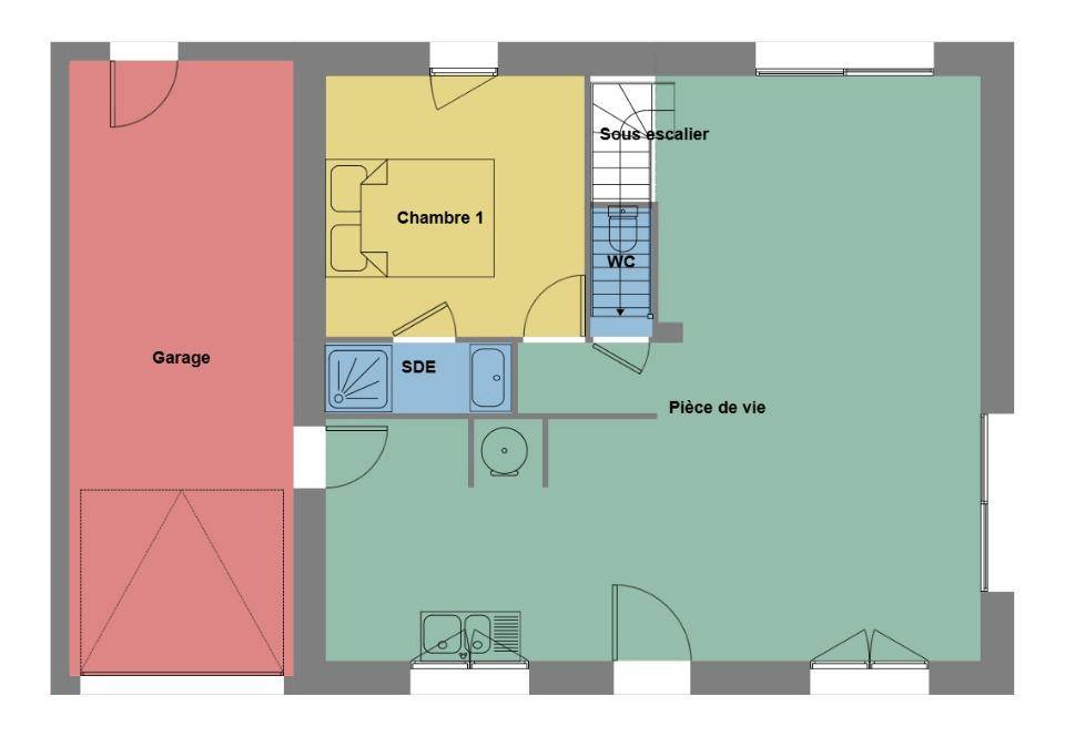
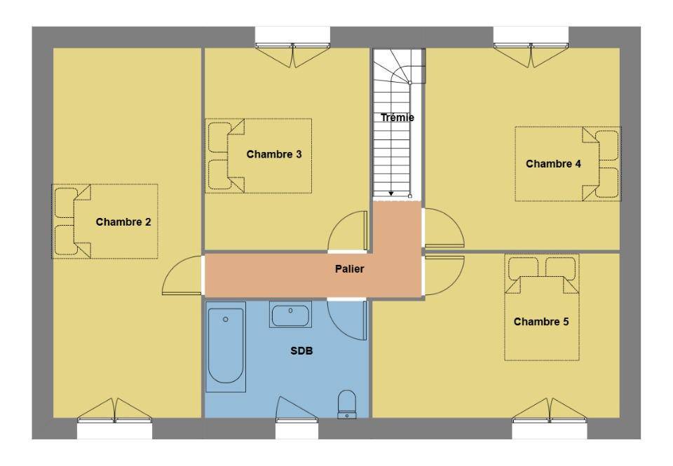
Plonéour-Lanvern : maison F6 (135 m²) en vente
PROCHE DE QUIMPER - MAISON 6 PIÈCES NEUVE
En vente à 8 km de la côte atlantique et à deux pas de Quimper, Maisons de l'Avenir Quimper vous présente cette maison de 6 pièces de 135 m² à Plonéour-Lanvern (29720).
Cette maison possède 2 niveaux. Son intérieur compte cinq chambres, une cuisine et deux salles de bains.
Le terrain du bien est de 744 m².
Elle est à vendre pour la somme de 414 000 €.
Contactez notre agence (DEROUET Mathieu : (Numéro supprimé)) pour plus d'informations sur la maison. Concrétisez vos projets immobiliers avec Maisons de l'Avenir Quimper.
Logement susceptibles de vous intéresser
Nous vous proposons de découvrir aussi cette sélection de logements situés à moins de 10km de Plonéour-Lanvern et qui seraient susceptibles de vous intéresser.
Plomelin
TERRAINDEVENEZ PROPRIÉTAIRE D’UN TERRAIN À PLOMELIN !Vivez dans un cadre de vie privilégié à Plomelin, charmante commune du sud Finistère, à proximité des commerces, écoles et services, et à quelques minutes de Quimper et des plages de Bénodet.Profitez du calme de la campagne tout en restant proche des commodités – un environnement idéal pour construire la maison de vos rêves ! Votre terrain comprendo Surface de 450 m², bien orientéeo Possibilité de construire la maison de vos rêves selon vos envies Les atouts du projeto Terrain viabilisé ou proche des réseauxo Cadre de vie paisible, à proximité de Quimper et du littoral sudo Liberté de construction, plan personnalisable selon vos besoins Prix indiqué hors frais Photos non contractuelles – à titre d’illustration Accession possible avec ou sans apportNe manquez pas cette opportunité unique de devenir propriétaire d’un terrain à Plomelin et de concrétiser votre projet sur-mesure ! Contactez-nous dès maintenant pour plus d’informations et étudier votre projet personnalisé.
Plomelin
TERRAIN ET MAISONDEVENEZ PROPRIÉTAIRE À PLOMELIN – MAISON NEUVE RE2020 SUR-MESUREVivez dans un cadre privilégié à Plomelin, commune prisée du sud Finistère, située à seulement quelques minutes de Quimper et des plages de Bénodet.Profitez d’un environnement calme et verdoyant, idéal pour une vie de famille, tout en bénéficiant de la proximité des commerces, écoles et services. Votre future maison comprendo 3 chambres spacieuses et lumineuseso Un grand salon-séjour traversant, ouvert sur le jardino Une cuisine moderne et fonctionnelleo Salle de bain et WC séparéso Le tout sur un terrain de 450 m², bien orienté et facile à entretenir Les atouts du projeto Maison neuve RE2020, économe en énergieo Plan personnalisable selon vos envies et votre mode de vieo Environnement paisible, à proximité immédiate de Quimper et du littoral sudo Prestations de qualité et finitions soignéeso Accès rapide à la voie express et à toutes les commodités Prix indiqué hors frais Photos non contractuelles à titre d’illustration Accession à la propriété possible avec ou sans apportNe manquez pas cette belle opportunité de devenir propriétaire d’une maison neuve, moderne et économique à Plomelin ! Contactez-nous dès maintenant pour découvrir les plans et étudier votre projet personnalisé.
Plomeur
TERRAINDEVENEZ PROPRIÉTAIRE D’UN TERRAIN À PLOMEUR !Vivez dans un cadre de vie privilégié à Plomeur, charmante commune du Sud-Finistère, idéalement située entre Quimper et la côte sud, à proximité des plages.Profitez du calme de la campagne et de la proximité du littoral, tout en restant proche des commerces, écoles et services – un environnement idéal pour votre futur projet ! Votre terrain comprend 😮 Une surface de 476 m², bien orientéeo Possibilité de construire la maison de vos rêves selon vos envies Les atouts du projet 😮 Terrain viabiliséo Cadre de vie paisible et proche des plageso Liberté de construction, avec plan personnalisable selon vos besoins Prix indiqué hors frais Photos non contractuelles à titre d’illustration Accession possible avec ou sans apportNe manquez pas cette opportunité unique de devenir propriétaire d’un terrain à Plomeur et de réaliser votre projet sur-mesure ! Contactez-nous dès maintenant pour plus d’informations et étudier votre projet.
Plogastel-Saint-Germain
TERRAIN ET MAISONDEVENEZ PROPRIÉTAIRE À PLOGASTEL-SAINT-GERMAIN – MAISON NEUVE RE2020 SUR-MESURE !Vivez dans un cadre de vie privilégié à Plogastel-Saint-Germain, charmante commune dynamique du Pays Bigouden, idéalement située entre Quimper et les plages d’Audierne et de Penmarch.Profitez du calme de la campagne, tout en restant proche des commerces, écoles et services – un environnement idéal pour votre famille ! Votre future maison comprend 😮 2 chambres spacieuses et lumineuseso Un grand salon-séjour traversant, ouvert sur le jardino Une cuisine moderne et fonctionnelleo Salle de bain et WC séparéso Le tout sur un terrain de 470 m², bien orienté Les atouts du projet 😮 Maison neuve RE2020, à faible consommation d’énergieo Plan personnalisable selon vos besoinso Cadre de vie paisible, à proximité de Quimper et du littoral bigoudeno Prestations de qualité, finitions soignées Prix indiqué hors frais Photos non contractuelles à titre d’illustration Accession à la propriété possible avec ou sans apportNe manquez pas cette belle opportunité de devenir propriétaire d’une maison neuve moderne et économique à Plogastel-Saint-Germain ! Contactez nous dès maintenant pour découvrir les plans et étudier votre projet personnalisé
Plonéour-Lanvern
TERRAIN ET MAISONVous rêvez d’une maison neuve, moderne et adaptée à vos besoins ? Nous vous proposons un projet de construction comprenant :- Une maison individuelle comprenant : 3 chambres spacieuses, un grand salon lumineux, une cuisine fonctionnelle, WC , salle(s) de bain/d’eau sur un terrain de 554m², idéalement situé à PLONEOUR LANVERN.Profitez d’une maison sur-mesure, conçue pour votre confort et votre bien-être ! Maison RE2020 à faible consommation d’énergies. Prix hors frais. Photos non contractuelles et illustratives. Possibilité d’accession à la propriété avec un CDI (hors CAF, RSA et Pôle Emploi). Pour tout renseignement supplémentaire, contactez nous au (Numéro supprimé).
Pluguffan
TERRAINJoli terrain sur PLUGUFFAN, plat et idéalement situé, parfait pour réaliser votre projet de construction avec notre entreprise.- Superficie : 480m²- Terrain : Plat et facile à aménager- Emplacement : Idéalement situé dans un cadre agréable- Prix Hors fraisNe manquez pas cette opportunité !Pour plus d’informations, contactez nous au (Numéro supprimé).
Pont-l'Abbé
TERRAINVENTE : terrain de 520 m² à Pont-l’AbbéPROCHE CENTRE VILLEÀ vendre à 8 km de l’océan Atlantique et à quelques kilomètres de Quimper à Pont-l’Abbé (29120), grand terrain. Il est prêt à accueillir votre projet immobilier pour toute la famille.Il est à vendre pour la somme de 92 000 €. Contactez Mathieu DEROUET ((Numéro supprimé)) pour plus d’informations sur ce terrain. Maisons de l’Avenir Quimper est là pour vous accompagner à toutes les étapes de votre projet.
Pont-l'Abbé
TERRAIN ET MAISONVENTE d’une maison T5 (155 m²) à Pont-l’AbbéPROCHE DE QUIMPER – MAISON 5 PIÈCES NEUVEEn vente : située à 8 km de l’océan Atlantique et à deux pas de Quimper, venez découvrir à Pont-l’Abbé (29120), cette maison de 5 pièces de 155 m². Son intérieur compte quatre chambres, une cuisine et deux salles de bains.Le terrain de la maison s’étend sur 520 m².Cette maison comporte 2 niveaux. Elle est à vendre pour la somme de 463 000 €.N’hésitez pas à prendre contact avec notre agence (DEROUET Mathieu : (Numéro supprimé)) pour obtenir de plus amples renseignements sur cette maison. Maisons de l’Avenir Quimper est là pour vous accompagner dans toutes vos démarches.
Pont-l'Abbé
TERRAIN ET MAISONMaison de 5 pièces (125 m²) en vente à Pont-l’AbbéMAISON 5 PIÈCES NEUVE – PROCHE DE QUIMPERÀ vendre : localisée à 8 km de l’océan Atlantique et à 17 km de Quimper, Maisons de l’Avenir Quimper vous présente cette maison de 5 pièces de 125 m² et de 520 m² de terrain à Pont-l’Abbé (29120). Elle comporte quatre chambres, une cuisine et deux salles de bains.C’est une maison de 2 niveaux. Elle est proposée à l’achat pour 397 000 €.Contactez notre agence (Mathieu DEROUET : (Numéro supprimé)) pour tout renseignement sur la maison, sur les démarches à suivre ou sur les modalités de vente.
L’actualité immobilière à Plonéour-Lanvern
27/11/2023
02/11/2023
30/10/2023
20/10/2023
16/10/2023
16/10/2023