Maison à construire à Plouédern (29800)
Images
Description
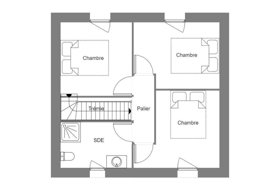
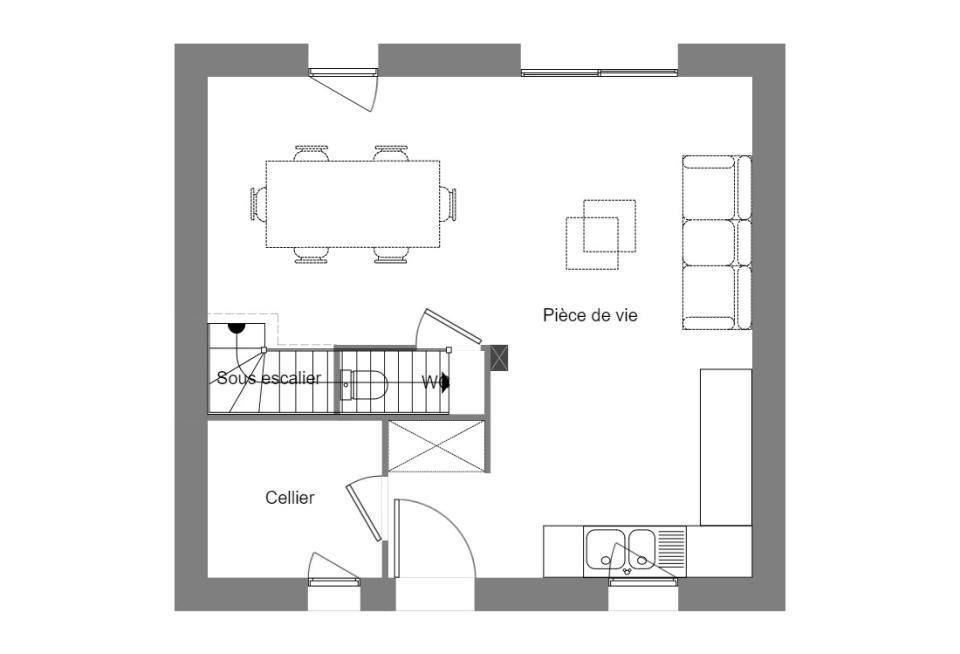
VENTE : maison F4 (67 m²) à Plouédern
MAISON 4 PIÈCES NEUVE - PROCHE DE BREST
Cette belle maison traditionnelle aux lignes traditionnelles offre 67m² habitable .
Elle est évolutive.
Au rez-de-chaussée, elle dispose d'une belle pièce de vie offrant un maximum de lumière, d'un wc, d'un cellier.
A l'étage on retrouve 3 chambres, une salle de bains, et un WC. L'orientation de cette maison vous permettra de bénéficier d'un maximum de lumière et de chaleur naturelle pour davantage d'économies et de douceur de vivre.
Son prix de vente est de 239 700 €.
Contactez notre agence (Aurélie CAGNARD : (Numéro supprimé)) pour plus d'informations sur la propriété ou sur les modalités de vente. Maisons de l'Avenir Guipavas est là pour vous accompagner dans tous vos projets immobiliers.
Logement susceptibles de vous intéresser
Nous vous proposons de découvrir aussi cette sélection de logements situés à moins de 10km de Plouédern et qui seraient susceptibles de vous intéresser.
Pencran
TERRAINPencran : terrain de 389 m² en venteNOUVEAUTE, très bien situé tout proche de Landerneau et des EcolesÀ deux pas de Landerneau à Pencran (29800), terrain de 389 m². Réalisez-y votre résidence principale ou secondaire. Il est proposé à l’achat pour 48 000 €. Prenez contact avec Jean ROPERS (tél : (Numéro supprimé)) pour toute question sur ce terrain, sur les modalités de vente ou sur les démarches à suivre. Donnez vie à vos projets immobiliers avec Maisons de l’Avenir Guipavas.
Pencran
TERRAIN ET MAISONVENTE : maison de 3 pièces (60 m²) à PencranPROCHE DE BREST – MAISON 3 PIÈCES NEUVEÀ vendre sur le littoral et à 21 km de Brest, votre agence Maisons de l’Avenir Guipavas est heureuse de vous présenter à Pencran (29800), cette maison de 3 pièces de plain-pied de 60 m². Conçue de plain-pied, elle compte deux chambres, une cuisine et une salle de bains.Le terrain de la propriété est de 389 m².Elle est à vendre pour la somme de 199 100 €.N’hésitez pas à prendre contact avec Jean ROPERS ((Numéro supprimé)) pour obtenir de plus amples informations sur cette maison ou sur les modalités de vente. Maisons de l’Avenir Guipavas est là pour vous accompagner à toutes les étapes de l’achat.
Pencran
TERRAIN ET MAISONVENTE d’une maison F4 (95 m²) à PencranPROCHE DE BREST – MAISON 4 PIÈCES NEUVEEn vente : située sur le littoral et à deux pas de Brest, à Pencran (29800), nous sommes ravis de vous présenter cette maison de 4 pièces de plain-pied de 95 m².Conçue de plain-pied, elle comporte trois chambres, une cuisine et une salle de bains. Le terrain de la propriété est de 389 m².Elle est à vendre pour la somme de 267 000 €.Contactez notre agence (Jean ROPERS : (Numéro supprimé)) pour toute information sur cette maison. Maisons de l’Avenir Guipavas est là pour vous accompagner dans tous vos projets immobiliers.
Pencran
TERRAIN ET MAISONVENTE : maison de 6 pièces (125 m²) à PencranMAISON 6 PIÈCES NEUVE – PROCHE DE BRESTÀ quelques kilomètres de la mer et à quelques kilomètres de Brest, en vente à Pencran (29800), Maisons de l’Avenir Guipavas vous présente cette maison de 6 pièces de 125 m² et de 389 m² de terrain.C’est une maison de 2 niveaux. Son intérieur est composé de cinq chambres, d’une cuisine et de deux salles de bains. Elle est à vendre pour la somme de 348 000 €.Contactez notre agence (ROPERS Jean : (Numéro supprimé)) pour tout renseignement sur le bien ou sur les démarches à suivre. Maisons de l’Avenir Guipavas vous accompagne à toutes les étapes de l’achat et dans tous vos projets immobiliers.
Pencran
TERRAIN ET MAISONVENTE : maison F5 (115 m²) à PencranMAISON 5 PIÈCES NEUVE – PROCHE DE BRESTÀ vendre : située sur le littoral et à deux pas de Brest, nous vous présentons cette maison de 5 pièces de 115 m² et de 389 m² de terrain à Pencran (29800). Elle inclut quatre chambres, une cuisine et deux salles de bains.Cette maison compte 2 niveaux.Son prix de vente est de 326 000 €.Prenez contact avec notre agence (Jean ROPERS : (Numéro supprimé)) pour plus d’informations sur la maison ou sur les démarches à suivre. Concrétisez vos projets immobiliers avec Maisons de l’Avenir Guipavas.
Pencran
TERRAIN ET MAISONPencran : maison de 5 pièces (115 m²) en ventePROCHE DE BREST – MAISON 5 PIÈCES OSSATURE BOIS En vente : située sur le littoral et à 21 km de Brest, laissez vous charmer par à Pencran (29800), cette maison de 5 pièces de 115 m². Elle comporte quatre chambres, une cuisine et une salle de bains.Le terrain de cette maison s’étend sur 389 m².Il s’agit d’une maison de 2 niveaux.Elle est à vendre pour la somme de 326 550 €.Contactez notre agence (ROPERS Jean : (Numéro supprimé)) pour obtenir de plus amples renseignements sur la maison, sur les modalités de vente ou sur les démarches à suivre. Concrétisez vos projets immobiliers avec Maisons de l’Avenir Guipavas.
Saint-Urbain
TERRAINJoli terrain sur SAINT URBAIN, plat et idéalement situé, parfait pour réaliser votre projet de construction avec notre entreprise.- Superficie : 600 m²- Terrain : Plat et facile à aménager- Emplacement : Idéalement situé dans un cadre agréable- Prix Hors fraisNe manquez pas cette opportunité !Pour plus d’informations, contactez nous au (Numéro supprimé).
Landerneau
TERRAINVENTE : terrain de 855 m² à LanderneauPROCHE CENTRE-VILLE – PROCHE DE BRESTÀ Landerneau (29800) à vendre sur le littoral et à quelques kilomètres de Brest, venez découvrir ce terrain de 855 m². Il bénéficie d’une exposition sud-ouest. Il se situe non loin du centre-ville. Tous les types d’écoles (de la maternelle au lycée) se trouvent à moins de 10 minutes à pied, tout comme une crèche. Côté transports, il y a la gare Landerneau à quelques pas du bien. Les nationales N12 et N165 sont accessibles à moins de 9 km. On trouve un tennis, des commerces, des boulangeries, un supermarché, deux épiceries et une poissonnerie à quelques minutes à peine. Le marché Place de Gaulle anime les environs.Ce terrain est à vendre pour la somme de 160 000 €. Contactez notre agence (Sami ALKIS) pour toute question sur le terrain ou sur les modalités de vente.
Landerneau
TERRAIN ET MAISONVENTE d’une maison T5 (150 m²) à LanderneauPROCHE CENTRE-VILLE – MAISON 5 PIÈCES NEUVEÀ vendre : située à quelques kilomètres de la mer et à deux pas de Brest, proche du centre-ville de Landerneau (29800), nous sommes heureux de vous proposer cette maison de 5 pièces de 150 m². Elle est composée de quatre chambres, d’une cuisine et de deux salles de bains.Le terrain du bien est de 855 m².Cette maison compte 2 niveaux. Elle est neuve.Des établissements scolaires (de la maternelle au lycée) sont implantés à moins de 10 minutes à pied, tout comme une crèche. Côté transports, on trouve la gare Landerneau juste à côté. Les nationales N12 et N165 sont accessibles à moins de 9 km. Il y a un tennis, des commerces, des boulangeries, un supermarché, un bureau de poste et deux épiceries à proximité du logement. Le marché Place de Gaulle anime le quartier.Elle est proposée à l’achat pour 532 833 €.Contactez Sami ALKIS pour tout renseignement sur la maison, sur les démarches à suivre ou sur les modalités de vente. Maisons de l’Avenir Guipavas est là pour vous accompagner à toutes les étapes de votre projet.
L’actualité immobilière à Plouédern
27/11/2023
02/11/2023
30/10/2023
20/10/2023
16/10/2023
16/10/2023