Maison à construire à Plouédern (29800)
Images
Description
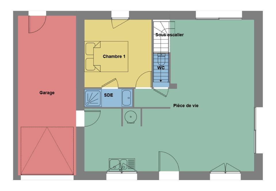
Plouédern : maison F6 (119 m²) à vendre
MAISON 6 PIÈCES NEUVE - PROCHE DE BREST
En vente : située à deux pas de Brest, nous sommes heureux de vous présenter à Plouédern (29800), cette maison de 6 pièces de 119 m² et de 450 m² de terrain.
C'est une maison de 2 niveaux. Elle inclut cinq chambres, une cuisine et deux salles de bains.
Elle est proposée à l'achat pour 338 000 €.
Contactez Aurélie CAGNARD pour toute question sur la maison ou sur les démarches à suivre. Maisons de l'Avenir Guipavas vous accompagne dans tous vos projets immobiliers et à toutes les étapes de l'achat.
Logement susceptibles de vous intéresser
Nous vous proposons de découvrir aussi cette sélection de logements situés à moins de 10km de Plouédern et qui seraient susceptibles de vous intéresser.
Plouédern
TERRAIN ET MAISONMaison de 5 pièces (105 m²) en vente à PlouédernMAISON 5 PIÈCES NEUVE – PROCHE DE BRESTEn vente à quelques kilomètres de la mer et à quelques kilomètres de Brest, nous vous proposons cette maison de 5 pièces de 105 m² à Plouédern (29800).Cette maison compte 2 niveaux. Son intérieur compte quatre chambres, une cuisine et deux salles de bains.Elle est proposée à l’achat pour 356 000 €.N’hésitez pas à prendre contact avec notre agence (ROPERS Jean : (Numéro supprimé)) pour tout renseignement sur cette maison ou sur les démarches à suivre. Concrétisez vos projets immobiliers avec Maisons de l’Avenir Guipavas.
Kersaint-Plabennec
TERRAIN ET MAISON📍 Terrain + Maison à vendre – Kersaint-PlabennecDécouvrez ce beau terrain viabilisé, idéalement situé dans un lotissement calme et arboré, sur la commune de Kersaint-Plabennec.✅ Retour à la vente suite à un désistement – une belle opportunité à saisir rapidement !✅ Proximité immédiate des voies express, alliant accessibilité et tranquillité✅ Environnement agréable et verdoyant💡 Nous vous proposons sur ce terrain un projet de maison de plein pied 115 m², au style contemporain. comprenant :3 chambres dont une suite parentale 🛏️2 salles de bains 🚿Un vaste espace de vie de plus de 45 m² lumineux ☀️Un grand garage 🚗Une conception intégrée dans notre concept Maisons Bâti Activ, favorisant l’ensoleillement naturel et réduisant vos coûts énergétiques 🌿⚡💰 Prix de l’opération Terrain + Maison : 325 000 €Ce terrain et ce projet de maison n’attendent plus que vous pour devenir réalité 🏡.📞 Contactez dès aujourd’hui Erwan TILLY – Conseiller Maisons de l’Avenir, afin d’organiser une visite et commencer à concevoir votre projet sur-mesure.
Saint-Urbain
TERRAIN ET MAISONMaison F4 (85 m²) en vente à Saint-UrbainPROCHE DE BREST – MAISON 4 PIÈCES NEUVEÀ vendre : à quelques kilomètres de la mer et à deux pas de Brest, Maisons de l’Avenir Guipavas vous propose cette maison de 4 pièces de plain-pied de 85 m² à Saint-Urbain (29800). Son intérieur dispose de trois chambres, d’une cuisine et d’une salle de bains.Le terrain du bien s’étend sur 589 m².Elle est proposée à l’achat pour 270 900 €.Prenez contact avec notre agence (ROPERS Jean : (Numéro supprimé)) pour tout renseignement sur cette maison, sur les démarches à suivre ou sur les modalités de vente. Maisons de l’Avenir Guipavas est là pour vous accompagner à toutes les étapes de l’achat.
Saint-Urbain
TERRAINTerrain de 589 m² à vendre à Saint-UrbainA 20 Minutes de Brest et à 10 minutes de la RN 165. Petit lotissement, terrain bien exposé en vente de 589 m² à Saint-Urbain (29800). Il est proposé à l’achat pour 66 900 €. N’hésitez pas à prendre contact avec notre agence (ROPERS Jean : (Numéro supprimé)) pour plus d’informations sur ce terrain ou sur les modalités de vente.
Plouédern
TERRAIN ET MAISONVENTE : maison de 4 pièces (90 m²) à PlouédernPROCHE DE BREST – MAISON 4 PIÈCES NEUVEEn vente sur le littoral et à 20 km de Brest, nous sommes ravis de vous présenter cette maison de 4 pièces de plain-pied de 90 m² à Plouédern (29800).Son intérieur compte trois chambres, une cuisine et une salle de bains. La maison est neuve.Le terrain de la propriété s’étend sur 577 m².Son prix de vente est de 323 000 €.Contactez Jean ROPERS ((Numéro supprimé)) pour obtenir de plus amples renseignements sur cette maison ou sur les modalités de vente.
Saint-Urbain
TERRAIN ET MAISONVENTE d’une maison F4 (75 m²) à Saint-UrbainPROCHE DE BREST – MAISON 4 PIÈCES NEUVEÀ vendre : à quelques kilomètres de la mer et à deux pas de Brest, votre agence Maisons de l’Avenir Guipavas est heureuse de vous présenter à Saint-Urbain (29800), cette maison de 4 pièces de 75 m². Son intérieur dispose de trois chambres, d’une cuisine et d’une salle de bains.Le terrain du bien s’étend sur 589 m².C’est une maison de 2 niveaux. Elle est à vendre pour la somme de 248 900 €.Contactez Jean ROPERS (tél : (Numéro supprimé)) pour toute question sur la maison. Maisons de l’Avenir Guipavas est là pour vous accompagner dans toutes vos démarches.
Saint-Urbain
TERRAIN ET MAISONMaison de 4 pièces (90 m²) en vente à Saint-UrbainMAISON 4 PIÈCES NEUVE – PROCHE DE BRESTSur le littoral et à 21 km de Brest, nous sommes heureux de vous présenter en vente à Saint-Urbain (29800), cette maison de 4 pièces de 90 m². Elle se divise en trois chambres, une cuisine et deux salles de bains.Le terrain de la propriété est de 589 m².Il s’agit d’une maison de 2 niveaux. Elle est proposée à l’achat pour 281 900 €.Contactez notre agence (Jean ROPERS : (Numéro supprimé)) pour tout renseignement sur cette maison. Maisons de l’Avenir Guipavas vous accompagne dans tous vos projets immobiliers et dans toutes vos démarches.
Kersaint-Plabennec
TERRAIN ET MAISON📍 Terrain + Maison à vendre – Kersaint-PlabennecDécouvrez ce beau terrain viabilisé, idéalement situé dans un lotissement calme et arboré, sur la commune de Kersaint-Plabennec.✅ Retour à la vente suite à un désistement – une belle opportunité à saisir rapidement !✅ Proximité immédiate des voies express, alliant accessibilité et tranquillité✅ Environnement agréable et verdoyant💡 Nous vous proposons sur ce terrain un projet de maison de plein pied 80 m², au style traditionnel. comprenant :3 chambres dont une suite parentale 🛏️2 salles de bains 🚿Un vaste espace de vie de plus de 35 m² lumineux ☀️Un grand garage 🚗Une conception intégrée dans notre concept Maisons Bâti Activ, favorisant l’ensoleillement naturel et réduisant vos coûts énergétiques 🌿⚡💰 Prix de l’opération Terrain + Maison : 285 000 €Ce terrain et ce projet de maison n’attendent plus que vous pour devenir réalité 🏡.📞 Contactez dès aujourd’hui Erwan TILLY – Conseiller Maisons de l’Avenir, afin d’organiser une visite et commencer à concevoir votre projet sur-mesure.
Kersaint-Plabennec
TERRAIN📍 Terrain à vendre – Kersaint-PlabennecDécouvrez ce beau terrain viabilisé, idéalement situé dans un lotissement calme et arboré, sur la commune de Kersaint-Plabennec.✅ Retour à la vente suite à un désistement – une belle opportunité à saisir rapidement !✅ Proximité immédiate des voies express, alliant accessibilité et tranquillité✅ Environnement agréable et verdoyant💰 Prix : 90 000 €Ce terrain n’attend plus que votre projet de construction 🏡.Si ce bien vous intéresse, contactez dès aujourd’hui Erwan TILLY – Conseiller Maisons de l’Avenir, pour organiser une visite et commencer à concevoir vos futurs plans de maison.
L’actualité immobilière à Plouédern
27/11/2023
02/11/2023
30/10/2023
20/10/2023
16/10/2023
16/10/2023