Maison à construire à Plougar (29440)
Images
Description
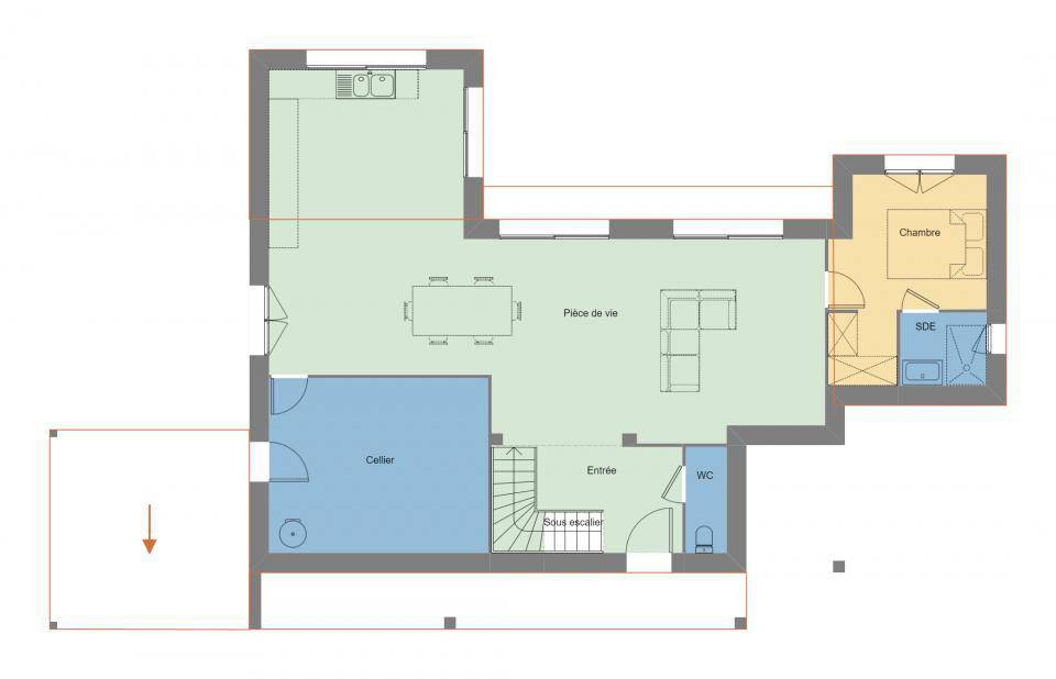
Plougar : maison de 5 pièces (140 m²) à vendre
Le terrain de la propriété est de 788 m².
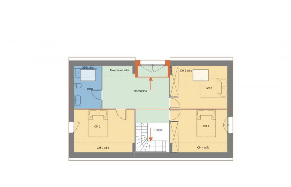
Cette belle maison traditionnelle aux lignes contemporaines offre 140 m² habitable . Au rez-de-chaussée, elle dispose d'une belle pièce de vie offrant un maximum de lumière, d'une grande suite parentale avec sa salle d'eau, d'un wc et d'un très grand cellier. A l'étage on retrouve 3 chambres, une salle de bains, et un WC. L'orientation de cette maison vous permettra de bénéficier d'un maximum de lumière et de chaleur naturelle pour davantage d'économies et de douceur de vivre.
Son prix de vente est de 391 441 €.
Prenez contact avec notre agence (CAGNARD Aurélie : (Numéro supprimé)) pour toute question sur la maison. Concrétisez vos projets immobiliers avec Maisons de l'Avenir Guipavas.
Logement susceptibles de vous intéresser
Nous vous proposons de découvrir aussi cette sélection de logements situés à moins de 10km de Plougar et qui seraient susceptibles de vous intéresser.
Plougar
TERRAIN ET MAISONDEVENEZ PROPRIÉTAIRE À PLOUGAR – MAISON NEUVE RE2020 SUR-MESUREVivez dans un cadre agréable à Plougar, charmante commune du Finistère, à proximité des commerces, écoles et services, tout en profitant du calme de la campagne.Un emplacement idéal pour une vie familiale confortable, à seulement quelques minutes des grands axes et du littoral. Votre future maison comprendo 3 chambres spacieuses et lumineuseso Un grand salon-séjour traversant, ouvert sur le jardino Une cuisine moderne et fonctionnelleo Salle de bain et WC séparéso Le tout sur un terrain de 788 m², bien exposé et facile à aménagero Possibilité de garage ou dépendance selon plan Les atouts du projeto Maison neuve RE2020, à faible consommation d’énergieo Plan personnalisable selon vos besoins et vos envieso Environnement paisible, proche des commodités et du littoralo Prestations de qualité et finitions soignéeso Idéal pour une famille ou un premier achat Prix indiqué hors frais Photos non contractuelles à titre d’illustration Accession à la propriété possible avec ou sans apportNe manquez pas cette belle opportunité de devenir propriétaire d’une maison neuve, moderne et économique à Plougar ! Contactez-nous dès maintenant pour découvrir les plans et étudier votre projet personnalisé.
Landivisiau
TERRAIN ET MAISONVous rêvez d’une maison neuve, moderne et adaptée à vos besoins ? Nous vous proposons un projet de construction comprenant :- Une maison individuelle comprenant : 4 chambres spacieuses, un grand salon lumineux, une cuisine fonctionnelle, WC , salle(s) de bain/d’eau sur un terrain de 600m², idéalement situé à LANDIVISIAU .Profitez d’une maison sur-mesure, conçue pour votre confort et votre bien-être ! Maison RE2020 à faible consommation d’énergies. Prix hors frais. Photos non contractuelles et illustratives. Possibilité d’accession à la propriété avec un CDI (hors CAF, RSA et Pôle Emploi). Pour tout renseignement supplémentaire, contactez nous au (Numéro supprimé).
Plougar
TERRAINDEVENEZ PROPRIÉTAIRE D’UN TERRAIN À PLOUGAR !Vivez dans un cadre de vie privilégié à Plougar, charmante commune du Nord-Finistère, idéalement située entre Morlaix et Landivisiau.Profitez du calme de la campagne, tout en restant proche des commerces, écoles et services – un environnement idéal pour votre futur projet ! Votre terrain comprend 😮 Une surface de 617 m², bien orientéeo Possibilité de construire la maison de vos rêves selon vos envies Les atouts du projet 😮 Terrain viabilisé ou proche des réseauxo Cadre de vie paisible, proche des commoditéso Liberté de construction, avec plan personnalisable selon vos besoins Prix indiqué hors frais Photos non contractuelles à titre d’illustration Accession possible avec ou sans apportNe manquez pas cette opportunité unique de devenir propriétaire d’un terrain à Plougar et de réaliser votre projet sur-mesure ! Contactez-nous dès maintenant pour plus d’informations et étudier votre projet.
Lanhouarneau
TERRAIN ET MAISONDEVENEZ PROPRIÉTAIRE À LANHOUARNEAU – MAISON NEUVE RE2020 SUR-MESURE !Vivez dans un cadre de vie privilégié à Lanhouarneau, charmante commune dynamique du Nord-Finistère, idéalement située entre Landivisiau et Saint-Pol-de-Léon.Profitez du calme de la campagne, tout en restant proche des commerces, écoles et services – un environnement idéal pour votre famille ! Votre future maison comprend 😮 3 chambres spacieuses et lumineuseso Un grand salon-séjour traversant, ouvert sur le jardino Une cuisine moderne et fonctionnelleo Salle de bain et WC séparéso Le tout sur un terrain de 511 m², bien orienté Les atouts du projet 😮 Maison neuve RE2020, à faible consommation d’énergieo Plan personnalisable selon vos envies et vos besoinso Cadre de vie paisible, à proximité de Landivisiau, Saint-Pol-de-Léon et du littoral nordo Prestations de qualité, finitions soignées Prix indiqué hors frais Photos non contractuelles à titre d’illustration Accession à la propriété possible avec ou sans apportNe manquez pas cette belle opportunité de devenir propriétaire d’une maison neuve moderne et économique à Lanhouarneau ! Contactez-nous dès maintenant pour découvrir les plans et étudier votre projet personnalisé.
Plouvorn
TERRAIN ET MAISONDEVENEZ PROPRIÉTAIRE À PLOUVORN – MAISON NEUVE RE2020 SUR-MESURE !Vivez dans un cadre de vie privilégié à Plouvorn, charmante commune dynamique du Nord-Finistère, idéalement située entre Landivisiau et Saint-Pol-de-Léon.Profitez du calme de la campagne, tout en restant proche des commerces, écoles et services – un environnement idéal pour votre famille ! Votre future maison comprend 😮 3 chambres spacieuses et lumineuseso Un grand salon-séjour traversant, ouvert sur le jardino Une cuisine moderne et fonctionnelleo Salle de bain et WC séparéso Le tout sur un terrain de 468 m², bien orienté Les atouts du projet 😮 Maison neuve RE2020, à faible consommation d’énergieo Plan personnalisable selon vos envies et vos besoinso Cadre de vie paisible, à proximité de Morlaix, Landivisiau et du littoral nordo Prestations de qualité, finitions soignées Prix indiqué hors frais Photos non contractuelles à titre d’illustration Accession à la propriété possible avec ou sans apportNe manquez pas cette belle opportunité de devenir propriétaire d’une maison neuve moderne et économique à Plouvorn ! Contactez-nous dès maintenant pour découvrir les plans et étudier votre projet personnalisé.
Landivisiau
TERRAINTerrain de 735 m² à vendre à LandivisiauIDÉALEMENT SITUÉÀ Landivisiau (29400) sur le littoral, donnez vie à la maison de vos rêves sur ce terrain de 735 m². Il bénéficie d’une exposition sud-ouest. Dans un quartier prisé, ce terrain idéalement situé est proche des écoles et des commerces. Des écoles de tous niveaux (de la maternelle au lycée) sont implantées à moins de 10 minutes à pied. Côté transports, il y a trois gares (Landivisiau, Guimiliau et Saint-Thégonnec) à moins de 10 minutes en voiture. La nationale N12 est accessible à 2 km. On trouve un bassin de natation, un tennis, des commerces, des boulangeries, un supermarché, une épicerie et une supérette dans les environs.Ce terrain est à vendre pour la somme de 72 000 €. Contactez Erwan TILLY pour toute question sur le terrain, sur les démarches à suivre ou sur les modalités de vente.
Landivisiau
TERRAIN ET MAISONVENTE d’une maison T5 (115 m²) à LandivisiauIDÉALEMENT SITUÉE – MAISON 5 PIÈCES NEUVEEn vente : située sur le littoral, nous sommes heureux de vous proposer cette maison de 5 pièces de plain-pied de 115 m², idéalement située dans Landivisiau (29400). Conçue de plain-pied, elle propose quatre chambres, une cuisine et deux salles de bains.Le terrain de la maison s’étend sur 735 m².Cette maison est neuve.Cette maison se trouve dans un quartier attractif. Il y a des établissements scolaires de tous types (de la maternelle au lycée) à moins de 10 minutes à pied. Côté transports, on trouve les gares Landivisiau, Guimiliau et Saint-Thégonnec à moins de 10 minutes en voiture. La nationale N12 est accessible à 2 km. Il y a un bassin de natation, un tennis, des commerces, des boulangeries, un supermarché, un bureau de poste et une supérette à quelques minutes.Son prix de vente est de 352 000 €.Contactez notre agence (Erwan TILLY) pour tout renseignement sur la maison, sur les modalités de vente ou sur les démarches à suivre. Maisons de l’Avenir Guipavas vous accompagne à toutes les étapes de votre projet et dans tous vos projets immobiliers.
Landivisiau
TERRAIN ET MAISONVENTE : maison de 5 pièces (130 m²) à LandivisiauIDÉALEMENT SITUÉE – MAISON 5 PIÈCES NEUVEEn vente : localisée à quelques kilomètres de la mer, Maisons de l’Avenir Guipavas vous propose cette maison de 5 pièces de 130 m² et de 735 m² de terrain idéalement située dans Landivisiau (29400). Son intérieur inclut quatre chambres, une cuisine et deux salles de bains.Il s’agit d’une maison de 2 niveaux. Elle est neuve.Cette maison est située dans un quartier recherché. Il y a des établissements scolaires de tous types (de la maternelle au lycée) à moins de 10 minutes à pied. Niveau transports en commun, on trouve les gares Landivisiau, Guimiliau et Saint-Thégonnec à moins de 10 minutes en voiture. Il y a un accès à la nationale N12 à 2 km. Il y a un bassin de natation, un tennis, des commerces, des boulangeries, un supermarché, une épicerie et une boucherie-charcuterie à proximité.Elle est proposée à l’achat pour 405 000 €.Contactez notre agence (Erwan TILLY ) pour plus d’informations sur la maison ou sur les démarches à suivre. Maisons de l’Avenir Guipavas vous accompagne à toutes les étapes de l’achat et dans tous vos projets immobiliers.
Landivisiau
TERRAIN ET MAISONVENTE : maison F4 (73 m²) à LandivisiauIDÉALEMENT SITUÉE – MAISON 4 PIÈCES NEUVEEn vente : localisée sur le littoral, idéalement située dans Landivisiau (29400), laissez vous charmer par cette maison de 4 pièces de 73 m² et de 735 m² de terrain. Elle inclut trois chambres, une cuisine et une salle de bains.Cette maison comporte 2 niveaux. Elle est neuve.La maison se situe dans un secteur attractif. Il y a des établissements scolaires du primaire et du secondaire à moins de 10 minutes à pied. Côté transports en commun, on trouve trois gares (Landivisiau, Guimiliau et Saint-Thégonnec) à moins de 10 minutes en voiture. La nationale N12 est accessible à 2 km. Il y a un bassin de natation, un tennis, des commerces, des boulangeries, un supermarché, une supérette et une boucherie-charcuterie à proximité.Son prix de vente est de 252 000 €.N’hésitez pas à prendre contact avec Erwan TILLY pour obtenir de plus amples renseignements sur la maison. Maisons de l’Avenir Guipavas vous accompagne dans toutes vos démarches et dans tous vos projets immobiliers.
L’actualité immobilière à Plougar
27/11/2023
02/11/2023
30/10/2023
20/10/2023
16/10/2023
16/10/2023