Maison à construire à Plougastel-Daoulas (29470)
Images
Description
🏡 Terrain à vendre - Plougastel-Daoulas - 336 m²
📍 À deux pas du bourg et des transports en commun, ce terrain de 336 m², issu d'une division de parcelle, est une opportunité rare sur un secteur très recherché.
Situé dans un environnement calme et agréable, il est idéal pour construire votre petit nid dans un cadre de vie privilégié, au coeur de la commune.
✅ Emplacement de qualité
✅ Proximité immédiate des commerces, écoles et services
✅ Environnement résidentiel
✅ Terrain plat, borné, hors lotissement
🏠 Projet de construction proposé avec Maisons de l'Avenir :
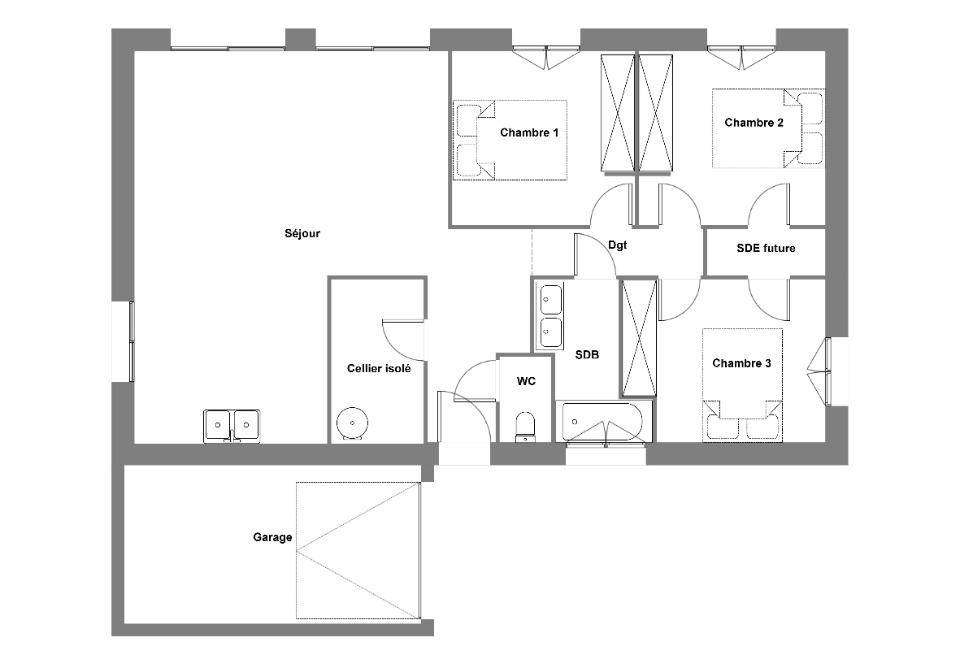
Nous vous proposons les plans d'une maison de plain-pied au style traditionnel, pensée pour allier confort et performance énergétique.
✅ Surface habitable : 80 m² (entièrement adaptable selon vos besoins)
✅ 3 chambres, dont une suite parentale avec salle d'eau et dressing
✅ 2 salles d'eau
✅ Espace de vie lumineux d'environ 35 m²
✅ Cuisine ouverte avec cellier attenant
✅ Garage pour véhicule et espace de stockage
TERRAIN + MAISON = 295000€
🌿 Cette maison s'inscrit dans notre concept Bâti Activ, des maisons passives et intelligentes conçues pour :
Maximiser l'ensoleillement naturel ☀️
Réduire les consommations d'énergie
Offrir un confort thermique été comme hiver
🔨 Ce bien est proposé à la vente par Maisons de l'Avenir, constructeur reconnu pour ses projets sur mesure.
Vous avez un projet de construction ? Nous vous accompagnons de A à Z !
📩 Ce terrain vous intéresse ? Contactez vite :
📞 Erwan TILLY - Maisons de l'Avenir
➡️ Visite possible sur rendez-vous - Une occasion à ne pas manquer !
Logement susceptibles de vous intéresser
Nous vous proposons de découvrir aussi cette sélection de logements situés à moins de 10km de Plougastel-Daoulas et qui seraient susceptibles de vous intéresser.
La Forest-Landerneau
TERRAINDEVENEZ PROPRIÉTAIRE D’UN TERRAIN À LA FOREST-LANDERNEAU !Vivez dans un cadre de vie privilégié à La Forest-Landerneau, charmante commune du Nord-Finistère, idéalement située à proximité de Landerneau et Brest.Profitez du calme de la campagne, tout en restant proche des commerces, écoles et services – un environnement idéal pour votre futur projet ! Votre terrain comprend 😮 Une surface de 413 m², bien orientéeo Possibilité de construire la maison de vos rêves selon vos envies Les atouts du projet 😮 Terrain viabilisé ou proche des réseauxo Cadre de vie paisible, à proximité de Landerneau, Brest et des axes principauxo Liberté de construction, avec plan personnalisable selon vos besoins Prix indiqué hors frais Photos non contractuelles à titre d’illustration Accession possible avec ou sans apportNe manquez pas cette opportunité unique de devenir propriétaire d’un terrain à La Forest-Landerneau et de réaliser votre projet sur-mesure ! Contactez-nous dès maintenant pour plus d’informations et étudier votre projet.
Guipavas
TERRAINDEVENEZ PROPRIÉTAIRE D’UN TERRAIN À GUIPAVAS !Vivez dans un cadre de vie privilégié à Guipavas, commune dynamique de la métropole brestoise, idéalement située à proximité immédiate de Brest.Profitez d’un environnement agréable, tout en restant proche des commerces, écoles, services et axes de transport – un cadre idéal pour votre futur projet ! Votre terrain comprend 😮 Une surface de 275 m², bien orientéeo Possibilité de construire la maison de vos rêves selon vos envies Les atouts du projet 😮 Terrain viabilisé ou proche des réseauxo Cadre de vie recherché, à proximité de Brest et des commoditéso Liberté de construction, avec plan personnalisable selon vos besoins Prix indiqué hors frais Photos non contractuelles à titre d’illustration Accession possible avec ou sans apportNe manquez pas cette opportunité unique de devenir propriétaire d’un terrain à Guipavas et de réaliser votre projet sur-mesure ! Contactez-nous dès maintenant pour plus d’informations et étudier votre projet.
Brest
TERRAIN ET MAISONDEVENEZ PROPRIÉTAIRE À LAMBÉZELLEC – MAISON NEUVE conforme à la norme RE-2020 !Vivez dans un cadre de vie privilégié à Lambézellec, commune recherchée du Finistère, offrant un environnement calme et verdoyant tout en restant proche des commerces, des écoles et de toutes les commodités – un lieu idéal pour votre famille !Votre future maison comprend :3 chambres spacieuses et lumineusesGrand salon-séjour traversant, ouvert sur le jardinCuisine moderne et fonctionnelleSalle de bain et WC séparésTerrain de 350 m², bien orientéLes atouts du projet :Maison neuve RE2020, à faible consommation d’énergiePlan personnalisable selon vos besoinsEnvironnement paisible et familialPrestations de qualité, finitions soignéesAccession à la propriété possible avec ou sans apport, étude de financement gratuite.Photos à titre d’illustration : photos d’une réalisation similaire (non contractuelles).Nous trouvons l’adresse idéale parmi plus de 200 terrains disponibles pour votre future demeure.Ne manquez pas cette belle opportunité de devenir propriétaire d’une maison moderne et économique à Lambézellec !Contactez-nous dès maintenant pour découvrir les plans et étudier votre projet personnalisé.Armorique Immos, franchise d’un constructeur national de maisons individuelles depuis plus de 40 ans, propose, en collaboration avec ses partenaires fonciers, une sélection de terrains constructibles selon disponibilité, pour la construction de maisons neuves définies par le constructeur, avec un contrat de construction de maison individuelle (loi du 19/12/1990).Prix net, hors frais notariés, d’enregistrement et de publicité foncière.Étude financière réalisée par nos partenaires en courtage (IOSB inscrit à l’Orias).
Guipavas
TERRAIN ET MAISONVENTE d’une maison de 4 pièces (70 m²) à GuipavasCENTRE-VILLE – MAISON 4 PIÈCES NEUVEÀ quelques kilomètres de la mer et à quelques kilomètres de Brest, Maisons de l’Avenir Guipavas vous présente cette maison de 4 pièces de 70 m² et de 385 m² de terrain en centre-ville de Guipavas (29490).Il s’agit d’une maison de 2 niveaux. Son intérieur propose trois chambres, une cuisine et une salle de bains.Son prix de vente est de 269 000 €.Contactez notre agence (Jean ROPERS : (Numéro supprimé)) pour toute question sur la maison, sur les modalités de vente ou sur les démarches à suivre. Faites de vos projets immobiliers une réalité avec Maisons de l’Avenir Guipavas.
Plougastel-Daoulas
TERRAIN ET MAISONVENTE d’une maison de 5 pièces (125 m²) à Plougastel-DaoulasMAISON 5 PIÈCES NEUVE – PROCHE DE BRESTÀ vendre : localisée sur le littoral et à deux pas de Brest, venez découvrir cette maison de 5 pièces de plain-pied de 125 m² et de 755 m² de terrain à Plougastel-Daoulas (29470).Elle comporte quatre chambres, une cuisine et deux salles de bains. La maison est neuve.Son prix de vente est de 487 600 €.Prenez contact avec notre agence (ROPERS Jean : (Numéro supprimé)) pour toute information sur cette maison ou sur les démarches à suivre. Maisons de l’Avenir Guipavas est là pour vous accompagner dans tous vos projets immobiliers.
Guipavas
TERRAIN ET MAISON📍 À vendre – Terrain constructible 758 m² – Secteur très prisé de Coataudon (Guipavas)Prix : 180 000 €Situé au coeur du recherché quartier de Coataudon à Guipavas, ce superbe terrain de 758 m², issu d’une division parcellaire, offre une belle exposition dans un cadre verdoyant. Un bien rare sur le marché, idéal pour concrétiser un projet de construction dans un environnement calme et prisé.👉 Nous vous proposons également un exemple de projet style architectural :Une maison de 143 m², pensée dans le cadre de notre concept Bâti Activ, optimisée pour favoriser l’apport solaire naturel et réduire les coûts énergétiques.Elle comprend :4 chambres, dont une suite au rez-de-chaussée,Un grand espace de vie lumineux de plus de 50 m²,2 salles de bains,Un grand garage,Une conception pensée pour le bien-être, la performance énergétique et le confort au quotidien.OPERATION T + M : 540000€📞 Intéressé ?Contactez Erwan TILLY – Maisons de l’Avenir, pour découvrir ce projet et commencer à concevoir vos propres plans personnalisés.
Plougastel-Daoulas
TERRAINPlougastel-Daoulas : terrain de 755 m² en venteRARE VUE MER, NOUVEAUTE à saisir rapidement ! KERALIOU, plages à 600 m, bus à 700 mÀ Plougastel-Daoulas (29470) à vendre sur le littoral et à quelques kilomètres de Brest, venez découvrir ce terrain de 755 m². Il est proposé à l’achat pour 192 600 €. N’hésitez pas à prendre contact avec notre agence (ROPERS Jean : (Numéro supprimé)) pour toute information sur ce terrain et sur les démarches à suivre.
Plougastel-Daoulas
TERRAIN ET MAISONPlougastel-Daoulas : maison de 4 pièces (190 m²) à vendrePROCHE DE BREST – MAISON 4 PIÈCES NEUVEÀ vendre sur le littoral et à 10 km de Brest, laissez vous charmer par à Plougastel-Daoulas (29470), cette maison de 4 pièces de 190 m² et de 755 m² de terrain.Il s’agit d’une maison de 2 niveaux. Son intérieur dispose de quatre chambres, d’une cuisine et de deux salles de bains. Elle est à vendre pour la somme de 645 600 €.Contactez Jean ROPERS (tél : (Numéro supprimé)) pour obtenir de plus amples informations sur ce bien ou sur les modalités de vente. Maisons de l’Avenir Guipavas est là pour vous accompagner dans tous vos projets immobiliers.
Guipavas
TERRAIN📍 À vendre – Terrain constructible 758 m² – Secteur très prisé de Coataudon (Guipavas)Prix : 180 000 €Situé au coeur du recherché quartier de Coataudon à Guipavas, venez découvrir ce superbe terrain de 758 m², issu d’une division parcellaire. Très rare sur le marché, il bénéficie d’une exposition idéale et s’inscrit dans un environnement verdoyant, offrant calme et qualité de vie.Ce terrain constitue une opportunité unique pour concrétiser votre projet de construction sur mesure dans un secteur recherché et dynamique.📞 Intéressé ?Contactez Erwan TILLY – Maisons de l’Avenir, pour être accompagné dès aujourd’hui dans l’étude et la conception de vos plans de maison.
L’actualité immobilière à Plougastel-Daoulas
27/11/2023
02/11/2023
30/10/2023
20/10/2023
16/10/2023
16/10/2023