Maison à construire à Plougastel-Daoulas (29470)
Images
Description
📍 Terrain exceptionnel avec vue mer - Plougastel-Daoulas
Ce terrain rare de 1 012 m² vous offre une opportunité unique de construire votre future maison avec vue sur la mer, dans un cadre privilégié à proximité immédiate du bourg de Plougastel-Daoulas.
✨ Les atouts du terrain :
Superficie généreuse de 1 012 m² pour accueillir votre projet de vie
Potentiel pour une maison avec vue imprenable sur la mer 🌊
Localisation idéale : à deux pas du bourg, des écoles et des commodités 🏫🛍️
Environnement calme et agréable, parfait pour une vie familiale 👨👩👧👦
Viabilisation accessible à proximité ⚡💧
Alliant praticité et cadre enchanteur, ce terrain est une opportunité rare dans l'un des secteurs les plus recherchés de la région.
💰 Prix de vente : 169 999 €
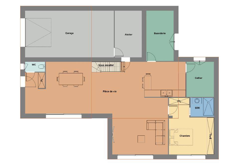
💡 Nous vous proposons sur ce terrain un projet de maison de 155 m², au style architectural contemporaines comprenant :
5 chambres dont une suite parentale et un bureau🛏️
2 salles de bains 🚿
Un vaste espace de vie de plus de 60 m² lumineux ☀️
Un grand garage 🚗
Une conception intégrée dans notre concept Maisons Bâti Activ, favorisant l'ensoleillement naturel et réduisant vos coûts énergétiques 🌿⚡
💰 Prix de l'opération Terrain + Maison : 560 000 €
📞 Pour plus d'informations et organiser une visite, contactez Erwan TILLY - Maisons de l'Avenir.
Logement susceptibles de vous intéresser
Nous vous proposons de découvrir aussi cette sélection de logements situés à moins de 10km de Plougastel-Daoulas et qui seraient susceptibles de vous intéresser.
Guipavas
TERRAIN ET MAISONVENTE d’une maison de 4 pièces (70 m²) à GuipavasCENTRE-VILLE – MAISON 4 PIÈCES NEUVEÀ quelques kilomètres de la mer et à quelques kilomètres de Brest, Maisons de l’Avenir Guipavas vous présente cette maison de 4 pièces de 70 m² et de 385 m² de terrain en centre-ville de Guipavas (29490).Il s’agit d’une maison de 2 niveaux. Son intérieur propose trois chambres, une cuisine et une salle de bains.Son prix de vente est de 269 000 €.Contactez notre agence (Jean ROPERS : (Numéro supprimé)) pour toute question sur la maison, sur les modalités de vente ou sur les démarches à suivre. Faites de vos projets immobiliers une réalité avec Maisons de l’Avenir Guipavas.
Plougastel-Daoulas
TERRAIN ET MAISONVENTE d’une maison de 5 pièces (125 m²) à Plougastel-DaoulasMAISON 5 PIÈCES NEUVE – PROCHE DE BRESTÀ vendre : localisée sur le littoral et à deux pas de Brest, venez découvrir cette maison de 5 pièces de plain-pied de 125 m² et de 755 m² de terrain à Plougastel-Daoulas (29470).Elle comporte quatre chambres, une cuisine et deux salles de bains. La maison est neuve.Son prix de vente est de 487 600 €.Prenez contact avec notre agence (ROPERS Jean : (Numéro supprimé)) pour toute information sur cette maison ou sur les démarches à suivre. Maisons de l’Avenir Guipavas est là pour vous accompagner dans tous vos projets immobiliers.
Guipavas
TERRAIN ET MAISON📍 À vendre – Terrain constructible 758 m² – Secteur très prisé de Coataudon (Guipavas)Prix : 180 000 €Situé au coeur du recherché quartier de Coataudon à Guipavas, ce superbe terrain de 758 m², issu d’une division parcellaire, offre une belle exposition dans un cadre verdoyant. Un bien rare sur le marché, idéal pour concrétiser un projet de construction dans un environnement calme et prisé.👉 Nous vous proposons également un exemple de projet style architectural :Une maison de 143 m², pensée dans le cadre de notre concept Bâti Activ, optimisée pour favoriser l’apport solaire naturel et réduire les coûts énergétiques.Elle comprend :4 chambres, dont une suite au rez-de-chaussée,Un grand espace de vie lumineux de plus de 50 m²,2 salles de bains,Un grand garage,Une conception pensée pour le bien-être, la performance énergétique et le confort au quotidien.OPERATION T + M : 540000€📞 Intéressé ?Contactez Erwan TILLY – Maisons de l’Avenir, pour découvrir ce projet et commencer à concevoir vos propres plans personnalisés.
Plougastel-Daoulas
TERRAINPlougastel-Daoulas : terrain de 755 m² en venteRARE VUE MER, NOUVEAUTE à saisir rapidement ! KERALIOU, plages à 600 m, bus à 700 mÀ Plougastel-Daoulas (29470) à vendre sur le littoral et à quelques kilomètres de Brest, venez découvrir ce terrain de 755 m². Il est proposé à l’achat pour 192 600 €. N’hésitez pas à prendre contact avec notre agence (ROPERS Jean : (Numéro supprimé)) pour toute information sur ce terrain et sur les démarches à suivre.
Plougastel-Daoulas
TERRAIN ET MAISONPlougastel-Daoulas : maison de 4 pièces (190 m²) à vendrePROCHE DE BREST – MAISON 4 PIÈCES NEUVEÀ vendre sur le littoral et à 10 km de Brest, laissez vous charmer par à Plougastel-Daoulas (29470), cette maison de 4 pièces de 190 m² et de 755 m² de terrain.Il s’agit d’une maison de 2 niveaux. Son intérieur dispose de quatre chambres, d’une cuisine et de deux salles de bains. Elle est à vendre pour la somme de 645 600 €.Contactez Jean ROPERS (tél : (Numéro supprimé)) pour obtenir de plus amples informations sur ce bien ou sur les modalités de vente. Maisons de l’Avenir Guipavas est là pour vous accompagner dans tous vos projets immobiliers.
Guipavas
TERRAIN📍 À vendre – Terrain constructible 758 m² – Secteur très prisé de Coataudon (Guipavas)Prix : 180 000 €Situé au coeur du recherché quartier de Coataudon à Guipavas, venez découvrir ce superbe terrain de 758 m², issu d’une division parcellaire. Très rare sur le marché, il bénéficie d’une exposition idéale et s’inscrit dans un environnement verdoyant, offrant calme et qualité de vie.Ce terrain constitue une opportunité unique pour concrétiser votre projet de construction sur mesure dans un secteur recherché et dynamique.📞 Intéressé ?Contactez Erwan TILLY – Maisons de l’Avenir, pour être accompagné dès aujourd’hui dans l’étude et la conception de vos plans de maison.
Plougastel-Daoulas
TERRAIN ET MAISON📍 À VENDRE – Terrain constructible de 867 m² à Plougastel-DaoulasDécouvrez ce magnifique terrain de 867 m², idéalement situé dans un secteur très recherché de Plougastel-Daoulas.Entièrement constructible, il représente une belle opportunité pour concrétiser vos projets de construction, qu’il s’agisse d’une maison familiale ou d’un investissement immobilier.🌿 Les atouts du terrain :Superficie généreuse de 867 m²Environnement calme et verdoyant 🌳Proximité des commerces, écoles et axes routiers 🛍️🏫Viabilisation à proximité ⚡💧Cet emplacement privilégié allie cadre de vie agréable et praticité au quotidien.💰 Prix de vente : 128 500 €💡 Nous vous proposons sur ce terrain un projet de maison de 100 m², au style contemporain comprenant :3 chambres dont une suite parentale 🛏️2 salles de bains 🚿Un vaste espace de vie de plus de 50 m² lumineux ☀️Un grand garage 🚗Une conception intégrée dans notre concept Maisons Bâti Activ, favorisant l’ensoleillement naturel et réduisant vos coûts énergétiques 🌿⚡💰 Prix de l’opération Terrain + Maison : 380 000 €Ce terrain et ce projet de maison n’attendent plus que vous pour devenir réalité 🏡.📞 Ne manquez pas cette occasion unique de devenir propriétaire à Plougastel-Daoulas !Contactez dès maintenant Erwan TILLY – Maisons de l’Avenir, pour plus d’informations ou organiser une visite.
Plougastel-Daoulas
TERRAIN ET MAISON📍 À VENDRE – Terrain constructible de 867 m² à Plougastel-DaoulasDécouvrez ce magnifique terrain de 867 m², idéalement situé dans un secteur très recherché de Plougastel-Daoulas.Entièrement constructible, il représente une belle opportunité pour concrétiser vos projets de construction, qu’il s’agisse d’une maison familiale ou d’un investissement immobilier.🌿 Les atouts du terrain :Superficie généreuse de 867 m²Environnement calme et verdoyant 🌳Proximité des commerces, écoles et axes routiers 🛍️🏫Viabilisation à proximité ⚡💧Cet emplacement privilégié allie cadre de vie agréable et praticité au quotidien.💰 Prix de vente : 128 500 €💡 Nous vous proposons sur ce terrain un projet de maison de 130 m², au style traditionnel avec des touches contemporaines comprenant :4 chambres dont une suite parentale 🛏️2 salles de bains 🚿Un vaste espace de vie de plus de 50 m² lumineux ☀️Un grand garage 🚗Une conception intégrée dans notre concept Maisons Bâti Activ, favorisant l’ensoleillement naturel et réduisant vos coûts énergétiques 🌿⚡💰 Prix de l’opération Terrain + Maison : 436 000 €Ce terrain et ce projet de maison n’attendent plus que vous pour devenir réalité 🏡.📞 Ne manquez pas cette occasion unique de devenir propriétaire à Plougastel-Daoulas !Contactez dès maintenant Erwan TILLY – Maisons de l’Avenir, pour plus d’informations ou organiser une visite.
Guipavas
TERRAIN ET MAISON📍 Terrain à vendre – GuipvasDécouvrez ce beau terrain, idéalement situé, issu d’une division, sur la commune de Guipavas.- une belle opportunité à saisir rapidement !✅ Proximité immédiate des voies express, alliant accessibilité et coté urbain.✅ Environnement agréable et verdoyant💰 Prix : 86 900 €Ce terrain n’attend plus que votre projet de construction 🏡.💡 Nous vous proposons sur ce terrain un projet de maison de 121 m², au style contemporain et traditionnel comprenant :4 chambres dont une suite parentale 🛏️2 salles de bains 🚿Un vaste espace de vie de plus de 45 m² lumineux ☀️Un grand garage 🚗Une conception intégrée dans notre concept Maisons Bâti Activ, favorisant l’ensoleillement naturel et réduisant vos coûts énergétiques 🌿⚡💰 Prix de l’opération Terrain + Maison : 375 000 €Ce terrain et ce projet de maison n’attendent plus que vous pour devenir réalité 🏡.Si ce bien vous intéresse, contactez dès aujourd’hui Erwan TILLY – Conseiller Maisons de l’Avenir, pour organiser une visite et commencer à concevoir vos futurs plans de maison.
L’actualité immobilière à Plougastel-Daoulas
27/11/2023
02/11/2023
30/10/2023
20/10/2023
16/10/2023
16/10/2023