Maison à construire à Plougonvelin (29217)
Images
Description
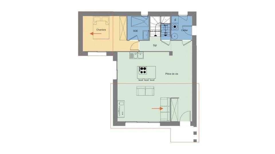
Plougonvelin : maison F4 (94 m²) à vendre
PROCHE CENTRE-VILLE - MAISON 4 PIÈCES NEUVE
À quelques kilomètres de la mer et à 17 km de Brest, laissez vous charmer par cette maison de 4 pièces de 94 m² proche du centre-ville de Plougonvelin (29217). Elle compte trois chambres, une cuisine et deux salles de bains.
Le terrain du bien est de 343 m².
Cette maison comporte 2 niveaux. Elle est neuve.
Il y a l'École Élémentaire Publique Roz Avel et l'École Primaire Privée Sacré-Coeur à moins de 10 minutes à pied et deux crèches. On trouve deux boulangeries, deux commerces et un supermarché à quelques minutes.
Elle est à vendre pour la somme de 337 822 €.
Contactez notre agence (ALKIS Sami) pour toute information sur la maison ou sur les démarches à suivre. Faites de vos projets immobiliers une réalité avec Maisons de l'Avenir Guipavas.
Logement susceptibles de vous intéresser
Nous vous proposons de découvrir aussi cette sélection de logements situés à moins de 10km de Plougonvelin et qui seraient susceptibles de vous intéresser.
Plougonvelin
TERRAIN ET MAISON🏡 À Vendre : Terrain de 480m² a Plougonvelin – 122 000€ 🌊Découvrez ce magnifique terrain de 480m², idéalement situé dans un petit lotissement paisible sur la commune de Plougonvelin, à deux pas de la mer. 🌅 Ce terrain offre un cadre exceptionnel pour construire la maison de vos rêves, alliant tranquillité et proximité avec les plages. 🏖️Maisons de l’Avenir vous propose un modèle sur plan de 130m², comprenant 4 chambres dont une suite parentale, un vaste espace de vie de 48m², deux salles de bains, et un grand garage. 🛏️🍽️🚿Les plans sont entièrement modifiables, permettant ainsi une maison sur mesure dans tous les aspects, conçue dans le cadre de notre gamme de maisons passives Bâti Activ. 🏠🌿 Cette maison a été pensée pour maximiser les apports de lumière naturelle, favorisant ainsi les gains énergétiques. 🌞⚡L’opération globale terrain + maison est de 469 000€. 💰Ce bien rare et recherché est une opportunité à ne pas manquer. ⭐Pour plus d’informations ou pour organiser une visite, contactez Erwan TILLY 📞. Ne tardez pas, ce terrain risque de partir rapidement ! ⏳
Plougonvelin
TERRAIN ET MAISON🏡 À Vendre : Terrain de 480m² a Plougonvelin- 122 000€ 🌊Découvrez ce magnifique terrain de 480m², idéalement situé dans un petit lotissement paisible sur la commune de Plougonvelin, à deux pas de la mer. 🌅 Ce terrain offre un cadre exceptionnel pour construire la maison de vos rêves, alliant tranquillité et proximité avec les plages. 🏖️Maisons de l’Avenir vous propose un modèle sur plan plein pied de 120m², comprenant 3 chambres dont une suite parentale, un vaste espace de vie de 52m², deux salles de bains, et un grand garage. 🛏️🍽️🚿Les plans sont entièrement modifiables, permettant ainsi une maison sur mesure dans tous les aspects, conçue dans le cadre de notre gamme de maisons passives Bâti Activ. 🏠🌿 Cette maison a été pensée pour maximiser les apports de lumière naturelle, favorisant ainsi les gains énergétiques. 🌞⚡L’opération globale terrain + maison est de 428 000€. 💰Ce bien rare et recherché est une opportunité à ne pas manquer. ⭐Pour plus d’informations ou pour organiser une visite, contactez Erwan TILLY 📞. Ne tardez pas, ce terrain risque de partir rapidement ! ⏳
Plougonvelin
TERRAIN ET MAISON🏡 À Vendre : Terrain de 480m² a Plougonvelin- 122 000€ 🌊Découvrez ce magnifique terrain de 480m², idéalement situé dans un petit lotissement paisible sur la commune de Plougonvelin, à deux pas de la mer. 🌅 Ce terrain offre un cadre exceptionnel pour construire la maison de vos rêves, alliant tranquillité et proximité avec les plages. 🏖️Maisons de l’Avenir vous propose un modèle sur plan de 110m², comprenant 4 chambres dont une suite parentale, un vaste espace de vie de 42m², deux salles de bains, et un grand garage. 🛏️🍽️🚿Les plans sont entièrement modifiables, permettant ainsi une maison sur mesure dans tous les aspects, conçue dans le cadre de notre gamme de maisons passives Bâti Activ. 🏠🌿 Cette maison a été pensée pour maximiser les apports de lumière naturelle, favorisant ainsi les gains énergétiques. 🌞⚡L’opération globale terrain + maison est de 399 000€. 💰Ce bien rare et recherché est une opportunité à ne pas manquer. ⭐Pour plus d’informations ou pour organiser une visite, contactez Erwan TILLY 📞. Ne tardez pas, ce terrain risque de partir rapidement ! ⏳
Plougonvelin
TERRAIN ET MAISON🏡 À Vendre : Terrain de 480m² a Plougonvelin- 122 000€ 🌊Découvrez ce magnifique terrain de 480m², idéalement situé dans un petit lotissement paisible sur la commune de Plougonvelin, à deux pas de la mer. 🌅 Ce terrain offre un cadre exceptionnel pour construire la maison de vos rêves, alliant tranquillité et proximité avec les plages. 🏖️Maisons de l’Avenir vous propose un modèle sur plan de 121m², comprenant 4 chambres dont une suite parentale, un vaste espace de vie de 49m², deux salles de bains, et un grand garage. 🛏️🍽️🚿Les plans sont entièrement modifiables, permettant ainsi une maison sur mesure dans tous les aspects, conçue dans le cadre de notre gamme de maisons passives Bâti Activ. 🏠🌿 Cette maison a été pensée pour maximiser les apports de lumière naturelle, favorisant ainsi les gains énergétiques. 🌞⚡L’opération globale terrain + maison est de 443 500€. 💰Ce bien rare et recherché est une opportunité à ne pas manquer. ⭐Pour plus d’informations ou pour organiser une visite, contactez Erwan TILLY 📞. Ne tardez pas, ce terrain risque de partir rapidement ! ⏳
Plougonvelin
TERRAIN ET MAISON🏡 À Vendre : Terrain de 480m² a Plougonvelin- 122 000€ 🌊Découvrez ce magnifique terrain de 480m², idéalement situé dans un petit lotissement paisible sur la commune de Plougonvelin, à deux pas de la mer. 🌅 Ce terrain offre un cadre exceptionnel pour construire la maison de vos rêves, alliant tranquillité et proximité avec les plages. 🏖️Maisons de l’Avenir vous propose un modèle sur plan de 150m², comprenant 4 chambres dont une suite parentale, un vaste espace de vie de 60m², deux salles de bains, et un grand garage. 🛏️🍽️🚿Les plans sont entièrement modifiables, permettant ainsi une maison sur mesure dans tous les aspects, conçue dans le cadre de notre gamme de maisons passives Bâti Activ. 🏠🌿 Cette maison a été pensée pour maximiser les apports de lumière naturelle, favorisant ainsi les gains énergétiques. 🌞⚡L’opération globale terrain + maison est de 529 000€. 💰Ce bien rare et recherché est une opportunité à ne pas manquer. ⭐Pour plus d’informations ou pour organiser une visite, contactez Erwan TILLY 📞. Ne tardez pas, ce terrain risque de partir rapidement ! ⏳
Plougonvelin
TERRAIN ET MAISON🏡 À Vendre : Terrain de 480m² a Plougonvelin- 122 000€ 🌊Découvrez ce magnifique terrain de 480m², idéalement situé dans un petit lotissement paisible sur la commune de Plougonvelin, à deux pas de la mer. 🌅 Ce terrain offre un cadre exceptionnel pour construire la maison de vos rêves, alliant tranquillité et proximité avec les plages. 🏖️Maisons de l’Avenir vous propose un modèle sur plan de 75m², comprenant 3 chambres, un vaste espace de vie de 35m², deux salles de bains, et un grand garage. 🛏️🍽️🚿Les plans sont entièrement modifiables, permettant ainsi une maison sur mesure dans tous les aspects, conçue dans le cadre de notre gamme de maisons passives Bâti Activ. 🏠🌿 Cette maison a été pensée pour maximiser les apports de lumière naturelle, favorisant ainsi les gains énergétiques. 🌞⚡L’opération globale terrain + maison est de 265 000€. 💰Ce bien rare et recherché est une opportunité à ne pas manquer. ⭐Pour plus d’informations ou pour organiser une visite, contactez Erwan TILLY 📞. Ne tardez pas, ce terrain risque de partir rapidement ! ⏳
Locmaria-Plouzané
TERRAINAnnonce de Vente : Terrain Rare à Locmaria-Plouzané 🏡Découvrez ce magnifique terrain de 1705m2 dont 790m² de zone constructible, idéalement situé sur la commune de Locmaria-Plouzané, issu d’un petit lotissement exclusif de seulement 11 lots.Avec sa superbe exposition sud-ouest 🌞, ce terrain vous offrira un cadre de vie lumineux et agréable tout au long de l’année. Sa proximité à pied du bourg 🚶♂️🛍 facilite votre quotidien, en vous offrant un accès rapide aux commerces, écoles et services de la commune.💰 Prix : 165 000 €Ce bien rare sur le marché 🏆 ne restera pas disponible longtemps !Pour plus d’informations ou organiser une visite, contactez Erwan TILLY des Maisons de l’Avenir 📞 dès aujourd’hui.Une opportunité à ne pas manquer pour concrétiser votre projet de vie ! 🌟✨
Locmaria-Plouzané
TERRAIN ET MAISONAnnonce de Vente : Terrain Rare à Locmaria-Plouzané 🏡Découvrez ce magnifique terrain de 1705m2 dont 790 m² constructible, idéalement situé sur la commune de Locmaria-Plouzané, issu d’un petit lotissement exclusif de seulement 11 lots.Avec sa superbe exposition sud-ouest 🌞, ce terrain vous offrira un cadre de vie lumineux et agréable tout au long de l’année. Sa proximité à pied du bourg 🚶♂️🛍 facilite votre quotidien, en vous offrant un accès rapide aux commerces, écoles et services de la commune.💰 Prix du terrain seul : 165 000 €Nous vous proposons également sur ce terrain la réalisation d’un projet de construction sur mesure 🏠 :Une maison contemporaine de style architectural moderne, de 150 m².Comprenant :5 chambres, dont une suite parentale2 salles de bains,Un vaste espace de vie lumineux de plus de 55 m²,Un garage 🚗.Conçue dans le cadre de nos maisons passives Bâti Activ, qui favorisent l’entrée de lumière naturelle et maximisent les gains énergétiques 🌞⚡.💰 Prix du projet terrain + maison : 517 000 €Ce bien rare sur le marché 🏆 ne restera pas disponible longtemps !Pour plus d’informations ou organiser une visite, contactez Erwan TILLY des Maisons de l’Avenir 📞 dès aujourd’hui.Une opportunité unique pour réaliser votre projet de vie ! 🌟✨
Locmaria-Plouzané
TERRAIN ET MAISONAnnonce de Vente : Terrain Rare à Locmaria-Plouzané 🏡Découvrez ce magnifique terrain de 1705m2 dont 790 m² constructible, idéalement situé sur la commune de Locmaria-Plouzané, issu d’un petit lotissement exclusif de seulement 11 lots.Avec sa superbe exposition sud-ouest 🌞, ce terrain vous offrira un cadre de vie lumineux et agréable tout au long de l’année. Sa proximité à pied du bourg 🚶♂️🛍 facilite votre quotidien, en vous offrant un accès rapide aux commerces, écoles et services de la commune.💰 Prix du terrain seul : 165 000 €Nous vous proposons également sur ce terrain la réalisation d’un projet de construction sur mesure 🏠 :Une maison traditionnel de style architectural moderne, de 121 m².Comprenant :4 chambres, dont une suite parentale2 salles de bains,Un vaste espace de vie lumineux de plus de 45 m²,Un garage 🚗.Conçue dans le cadre de nos maisons passives Bâti Activ, qui favorisent l’entrée de lumière naturelle et maximisent les gains énergétiques 🌞⚡.💰 Prix du projet terrain + maison : 450 000 €Ce bien rare sur le marché 🏆 ne restera pas disponible longtemps !Pour plus d’informations ou organiser une visite, contactez Erwan TILLY des Maisons de l’Avenir 📞 dès aujourd’hui.Une opportunité unique pour réaliser votre projet de vie ! 🌟✨
L’actualité immobilière à Plougonvelin
27/11/2023
02/11/2023
30/10/2023
20/10/2023
16/10/2023
16/10/2023