Maison à construire à Plougonvelin (29217)
Images
Description
🌿 À VENDRE - Terrain constructible de 329 m² à Plougonvelin
Découvrez ce joli terrain de 329 m², idéalement situé sur la commune recherchée de Plougonvelin, à proximité immédiate des plages et des commodités.
Issu d'un petit lotissement intimiste, ce terrain bénéficie d'un cadre calme et arboré, parfait pour accueillir votre futur projet de vie.
🏡 Notre proposition de maison sur ce terrain :
Maisons de l'Avenir vous propose une maison sur mesure, entièrement modifiable selon vos besoins et vos envies.
Cette maison séduit par son esthétique contemporaine et sa performance énergétique exemplaire.
Pensée dans le cadre du concept Bâti Activ, elle profite d'un ensoleillement naturel optimal, favorisant ainsi les économies d'énergie et le confort intérieur.
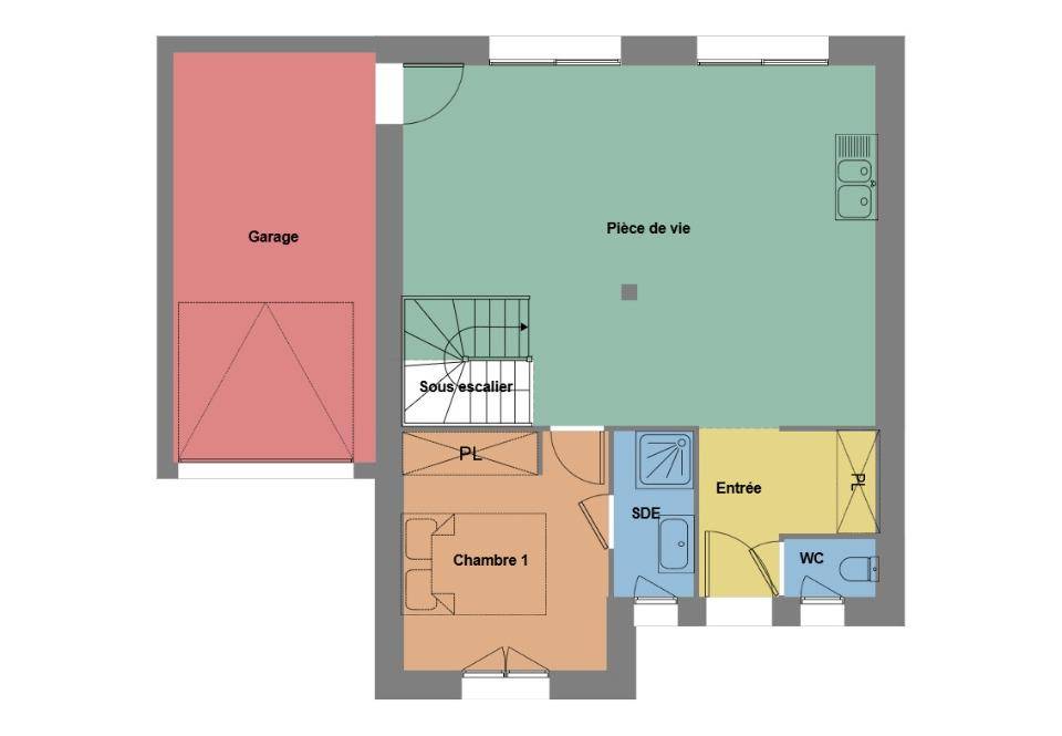
Cette maison de plain-pied comprend :
3 chambres,
2 salles de bains,
un vaste espace de vie de plus de 40 m²,
un cellier/buanderie,
ainsi qu'un garage accolé.
Selon vos goûts, la maison peut être réalisée avec une façade bois moderne ou une finition enduite plus traditionnelle.
💰 Prix de l'ensemble Terrain + Maison : 358 000 €
📞 Intéressé ?
Contactez Erwan TILLY - Maisons de l'Avenir pour organiser une visite du terrain et concevoir ensemble votre projet sur mesure.
Logement susceptibles de vous intéresser
Nous vous proposons de découvrir aussi cette sélection de logements situés à moins de 10km de Plougonvelin et qui seraient susceptibles de vous intéresser.
Locmaria-Plouzané
TERRAINAnnonce de Vente : Terrain Rare à Locmaria-Plouzané 🏡Découvrez ce magnifique terrain de 1705m2 dont 790m² de zone constructible, idéalement situé sur la commune de Locmaria-Plouzané, issu d’un petit lotissement exclusif de seulement 11 lots.Avec sa superbe exposition sud-ouest 🌞, ce terrain vous offrira un cadre de vie lumineux et agréable tout au long de l’année. Sa proximité à pied du bourg 🚶♂️🛍 facilite votre quotidien, en vous offrant un accès rapide aux commerces, écoles et services de la commune.💰 Prix : 165 000 €Ce bien rare sur le marché 🏆 ne restera pas disponible longtemps !Pour plus d’informations ou organiser une visite, contactez Erwan TILLY des Maisons de l’Avenir 📞 dès aujourd’hui.Une opportunité à ne pas manquer pour concrétiser votre projet de vie ! 🌟✨
Locmaria-Plouzané
TERRAIN ET MAISONAnnonce de Vente : Terrain Rare à Locmaria-Plouzané 🏡Découvrez ce magnifique terrain de 1705m2 dont 790 m² constructible, idéalement situé sur la commune de Locmaria-Plouzané, issu d’un petit lotissement exclusif de seulement 11 lots.Avec sa superbe exposition sud-ouest 🌞, ce terrain vous offrira un cadre de vie lumineux et agréable tout au long de l’année. Sa proximité à pied du bourg 🚶♂️🛍 facilite votre quotidien, en vous offrant un accès rapide aux commerces, écoles et services de la commune.💰 Prix du terrain seul : 165 000 €Nous vous proposons également sur ce terrain la réalisation d’un projet de construction sur mesure 🏠 :Une maison traditionnel de style architectural moderne, de 121 m².Comprenant :4 chambres, dont une suite parentale2 salles de bains,Un vaste espace de vie lumineux de plus de 45 m²,Un garage 🚗.Conçue dans le cadre de nos maisons passives Bâti Activ, qui favorisent l’entrée de lumière naturelle et maximisent les gains énergétiques 🌞⚡.💰 Prix du projet terrain + maison : 450 000 €Ce bien rare sur le marché 🏆 ne restera pas disponible longtemps !Pour plus d’informations ou organiser une visite, contactez Erwan TILLY des Maisons de l’Avenir 📞 dès aujourd’hui.Une opportunité unique pour réaliser votre projet de vie ! 🌟✨
Locmaria-Plouzané
TERRAIN ET MAISONAnnonce de Vente : Terrain Rare à Locmaria-Plouzané 🏡Découvrez ce magnifique terrain de 1705m2 dont 790 m² constructible, idéalement situé sur la commune de Locmaria-Plouzané, issu d’un petit lotissement exclusif de seulement 11 lots.Avec sa superbe exposition sud-ouest 🌞, ce terrain vous offrira un cadre de vie lumineux et agréable tout au long de l’année. Sa proximité à pied du bourg 🚶♂️🛍 facilite votre quotidien, en vous offrant un accès rapide aux commerces, écoles et services de la commune.💰 Prix du terrain seul : 165 000 €Nous vous proposons également sur ce terrain la réalisation d’un projet de construction sur mesure 🏠 :Une maison de style moderne, de 115 m².Comprenant :4 chambres, dont une suite parentale2 salles de bains,Un vaste espace de vie lumineux de plus de 40 m²,Un garage 🚗.Conçue dans le cadre de nos maisons passives Bâti Activ, qui favorisent l’entrée de lumière naturelle et maximisent les gains énergétiques 🌞⚡.💰 Prix du projet terrain + maison : 434 000 €Ce bien rare sur le marché 🏆 ne restera pas disponible longtemps !Pour plus d’informations ou organiser une visite, contactez Erwan TILLY des Maisons de l’Avenir 📞 dès aujourd’hui.Une opportunité unique pour réaliser votre projet de vie ! 🌟✨
Locmaria-Plouzané
TERRAIN ET MAISONAnnonce de Vente : Terrain Rare à Locmaria-Plouzané 🏡Découvrez ce magnifique terrain de 1705m2 dont 790 m² constructible, idéalement situé sur la commune de Locmaria-Plouzané, issu d’un petit lotissement exclusif de seulement 11 lots.Avec sa superbe exposition sud-ouest 🌞, ce terrain vous offrira un cadre de vie lumineux et agréable tout au long de l’année. Sa proximité à pied du bourg 🚶♂️🛍 facilite votre quotidien, en vous offrant un accès rapide aux commerces, écoles et services de la commune.💰 Prix du terrain seul : 165 000 €Nous vous proposons également sur ce terrain la réalisation d’un projet de construction sur mesure 🏠 :Une maison contemporaine de style architectural moderne, de 150 m².Comprenant :5 chambres, dont une suite parentale2 salles de bains,Un vaste espace de vie lumineux de plus de 55 m²,Un garage 🚗.Conçue dans le cadre de nos maisons passives Bâti Activ, qui favorisent l’entrée de lumière naturelle et maximisent les gains énergétiques 🌞⚡.💰 Prix du projet terrain + maison : 517 000 €Ce bien rare sur le marché 🏆 ne restera pas disponible longtemps !Pour plus d’informations ou organiser une visite, contactez Erwan TILLY des Maisons de l’Avenir 📞 dès aujourd’hui.Une opportunité unique pour réaliser votre projet de vie ! 🌟✨
Plougonvelin
TERRAIN ET MAISONVENTE : maison de 4 pièces (80 m²) à PlougonvelinPROCHE CENTRE-VILLE – MAISON 4 PIÈCES NEUVEEn vente : située à quelques kilomètres de la mer et à quelques kilomètres de Brest, nous vous présentons, proche du centre-ville de Plougonvelin (29217), cette maison de 4 pièces de plain-pied de 80 m².Conçue de plain-pied, elle compte trois chambres, une cuisine et une salle de bains. La maison est neuve.Le terrain du bien s’étend sur 390 m².L’École Élémentaire Publique Roz Avel et l’École Primaire Privée Sacré-Coeur sont implantées à moins de 10 minutes à pied, tout comme deux structures d’accueil pour la petite enfance. On trouve deux boulangeries, deux commerces et un supermarché à quelques minutes à peine.Son prix de vente est de 391 323 €.Prenez contact avec notre agence (Sami ALKIS) pour tout renseignement sur la maison, sur les modalités de vente et sur les démarches à suivre. Maisons de l’Avenir Guipavas est là pour vous accompagner à toutes les étapes de l’achat.
Plougonvelin
TERRAIN ET MAISONMaison F4 (94 m²) en vente à PlougonvelinPROCHE CENTRE-VILLE – MAISON 4 PIÈCES NEUVEÀ vendre à quelques kilomètres de la mer et à 17 km de Brest, découvrez cette maison de 4 pièces de 94 m² proche du centre-ville de Plougonvelin (29217). Son intérieur inclut trois chambres, une cuisine et deux salles de bains.Le terrain du bien est de 283 m².C’est une maison de 2 niveaux. Elle est neuve.On trouve l’École Élémentaire Publique Roz Avel et l’École Primaire Privée Sacré-Coeur à moins de 10 minutes à pied et deux crèches. Il y a deux boulangeries, deux commerces et un supermarché à quelques minutes à peine.Son prix de vente est de 323 834 €.Contactez notre agence (Sami ALKIS) pour toute information sur la maison, sur les démarches à suivre ou sur les modalités de vente.
Plougonvelin
TERRAIN ET MAISONPlougonvelin : maison F5 (104 m²) en ventePROCHE CENTRE-VILLE – MAISON 5 PIÈCES NEUVEÀ vendre sur le littoral et à quelques kilomètres de Brest, Maisons de l’Avenir Guipavas vous propose, proche du centre-ville de Plougonvelin (29217), cette maison de 5 pièces de plain-pied de 104 m² et de 390 m² de terrain. Elle inclut quatre chambres, une cuisine et deux salles de bains.La maison est neuve.Il y a l’École Élémentaire Publique Roz Avel et l’École Primaire Privée Sacré-Coeur à moins de 10 minutes à pied et deux structures d’accueil pour les tout-petits. On trouve deux boulangeries, deux commerces et un supermarché à proximité.Son prix de vente est de 369 812 €.Contactez Sami ALKIS pour toute question sur la maison. Concrétisez vos projets immobiliers avec Maisons de l’Avenir Guipavas.
Plougonvelin
TERRAINTerrain de 390 m² en vente à PlougonvelinPROCHE CENTRE-VILLE – PROCHE DE BRESTÀ Plougonvelin (29217) à vendre sur le littoral et à deux pas de Brest, venez découvrir ce terrain de 390 m². Il bénéficie d’une exposition sud-ouest. Il se trouve non loin du centre-ville. Il y a l’École Élémentaire Publique Roz Avel et l’École Primaire Privée Sacré-Coeur à moins de 10 minutes à pied et deux structures d’accueil pour la petite enfance. On trouve deux boulangeries, deux commerces et un supermarché dans les environs.Ce terrain est à vendre pour la somme de 116 365 €. Contactez Sami ALKIS pour toute question sur ce terrain, sur les modalités de vente ou sur les démarches à suivre.
Plougonvelin
TERRAIN ET MAISONPlougonvelin : maison T5 (168 m²) à vendrePROCHE CENTRE-VILLE – MAISON 5 PIÈCES NEUVEEn vente : à quelques kilomètres de la mer et à 17 km de Brest, nous vous proposons cette maison de 5 pièces de 168 m² proche du centre-ville de Plougonvelin (29217). Son intérieur propose quatre chambres, une cuisine et deux salles de bains.Le terrain de la propriété s’étend sur 390 m².C’est une maison de 2 niveaux. Elle est neuve.L’École Élémentaire Publique Roz Avel et l’École Primaire Privée Sacré-Coeur sont implantées à moins de 10 minutes à pied, tout comme deux structures d’accueil pour les enfants en bas âge. Il y a deux boulangeries, deux commerces et un supermarché dans les environs.Elle est proposée à l’achat pour 527 883 €.Prenez contact avec notre agence (ALKIS Sami) pour tout renseignement sur la maison et sur les modalités de vente. Concrétisez vos projets immobiliers avec Maisons de l’Avenir Guipavas.
L’actualité immobilière à Plougonvelin
27/11/2023
02/11/2023
30/10/2023
20/10/2023
16/10/2023
16/10/2023