Maison à construire à Plougonvelin (29217)
Images
Description
🏡 À Vendre : Terrain de 480m² au Conquet - 122 000€ 🌊
Découvrez ce magnifique terrain de 480m², idéalement situé dans un petit lotissement paisible sur la commune du Conquet, à deux pas de la mer. 🌅 Ce terrain offre un cadre exceptionnel pour construire la maison de vos rêves, alliant tranquillité et proximité avec les plages. 🏖️
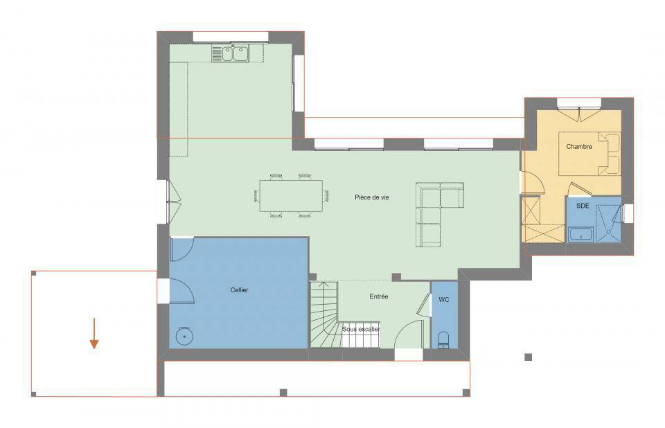
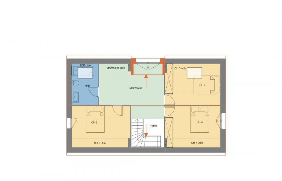
Maisons de l'Avenir vous propose un modèle sur plan de 150m², comprenant 4 chambres dont une suite parentale, un vaste espace de vie de 63m², deux salles de bains, et un grand garage. 🛏️🍽️🚿
Les plans sont entièrement modifiables, permettant ainsi une maison sur mesure dans tous les aspects, conçue dans le cadre de notre gamme de maisons passives Bâti Activ. 🏠🌿 Cette maison a été pensée pour maximiser les apports de lumière naturelle, favorisant ainsi les gains énergétiques. 🌞⚡
L'opération globale terrain + maison est de 512 000€. 💰
Ce bien rare et recherché est une opportunité à ne pas manquer. ⭐
Pour plus d'informations ou pour organiser une visite, contactez Erwan TILLY 📞. Ne tardez pas, ce terrain risque de partir rapidement ! ⏳
Logement susceptibles de vous intéresser
Nous vous proposons de découvrir aussi cette sélection de logements situés à moins de 10km de Plougonvelin et qui seraient susceptibles de vous intéresser.
Locmaria-Plouzané
TERRAINAnnonce de Vente : Terrain Rare à Locmaria-Plouzané 🏡Découvrez ce magnifique terrain de 1705m2 dont 790m² de zone constructible, idéalement situé sur la commune de Locmaria-Plouzané, issu d’un petit lotissement exclusif de seulement 11 lots.Avec sa superbe exposition sud-ouest 🌞, ce terrain vous offrira un cadre de vie lumineux et agréable tout au long de l’année. Sa proximité à pied du bourg 🚶♂️🛍 facilite votre quotidien, en vous offrant un accès rapide aux commerces, écoles et services de la commune.💰 Prix : 165 000 €Ce bien rare sur le marché 🏆 ne restera pas disponible longtemps !Pour plus d’informations ou organiser une visite, contactez Erwan TILLY des Maisons de l’Avenir 📞 dès aujourd’hui.Une opportunité à ne pas manquer pour concrétiser votre projet de vie ! 🌟✨
Locmaria-Plouzané
TERRAIN ET MAISONAnnonce de Vente : Terrain Rare à Locmaria-Plouzané 🏡Découvrez ce magnifique terrain de 1705m2 dont 790 m² constructible, idéalement situé sur la commune de Locmaria-Plouzané, issu d’un petit lotissement exclusif de seulement 11 lots.Avec sa superbe exposition sud-ouest 🌞, ce terrain vous offrira un cadre de vie lumineux et agréable tout au long de l’année. Sa proximité à pied du bourg 🚶♂️🛍 facilite votre quotidien, en vous offrant un accès rapide aux commerces, écoles et services de la commune.💰 Prix du terrain seul : 165 000 €Nous vous proposons également sur ce terrain la réalisation d’un projet de construction sur mesure 🏠 :Une maison traditionnel de style architectural moderne, de 121 m².Comprenant :4 chambres, dont une suite parentale2 salles de bains,Un vaste espace de vie lumineux de plus de 45 m²,Un garage 🚗.Conçue dans le cadre de nos maisons passives Bâti Activ, qui favorisent l’entrée de lumière naturelle et maximisent les gains énergétiques 🌞⚡.💰 Prix du projet terrain + maison : 450 000 €Ce bien rare sur le marché 🏆 ne restera pas disponible longtemps !Pour plus d’informations ou organiser une visite, contactez Erwan TILLY des Maisons de l’Avenir 📞 dès aujourd’hui.Une opportunité unique pour réaliser votre projet de vie ! 🌟✨
Locmaria-Plouzané
TERRAIN ET MAISONAnnonce de Vente : Terrain Rare à Locmaria-Plouzané 🏡Découvrez ce magnifique terrain de 1705m2 dont 790 m² constructible, idéalement situé sur la commune de Locmaria-Plouzané, issu d’un petit lotissement exclusif de seulement 11 lots.Avec sa superbe exposition sud-ouest 🌞, ce terrain vous offrira un cadre de vie lumineux et agréable tout au long de l’année. Sa proximité à pied du bourg 🚶♂️🛍 facilite votre quotidien, en vous offrant un accès rapide aux commerces, écoles et services de la commune.💰 Prix du terrain seul : 165 000 €Nous vous proposons également sur ce terrain la réalisation d’un projet de construction sur mesure 🏠 :Une maison de style moderne, de 115 m².Comprenant :4 chambres, dont une suite parentale2 salles de bains,Un vaste espace de vie lumineux de plus de 40 m²,Un garage 🚗.Conçue dans le cadre de nos maisons passives Bâti Activ, qui favorisent l’entrée de lumière naturelle et maximisent les gains énergétiques 🌞⚡.💰 Prix du projet terrain + maison : 434 000 €Ce bien rare sur le marché 🏆 ne restera pas disponible longtemps !Pour plus d’informations ou organiser une visite, contactez Erwan TILLY des Maisons de l’Avenir 📞 dès aujourd’hui.Une opportunité unique pour réaliser votre projet de vie ! 🌟✨
Locmaria-Plouzané
TERRAIN ET MAISONAnnonce de Vente : Terrain Rare à Locmaria-Plouzané 🏡Découvrez ce magnifique terrain de 1705m2 dont 790 m² constructible, idéalement situé sur la commune de Locmaria-Plouzané, issu d’un petit lotissement exclusif de seulement 11 lots.Avec sa superbe exposition sud-ouest 🌞, ce terrain vous offrira un cadre de vie lumineux et agréable tout au long de l’année. Sa proximité à pied du bourg 🚶♂️🛍 facilite votre quotidien, en vous offrant un accès rapide aux commerces, écoles et services de la commune.💰 Prix du terrain seul : 165 000 €Nous vous proposons également sur ce terrain la réalisation d’un projet de construction sur mesure 🏠 :Une maison contemporaine de style architectural moderne, de 150 m².Comprenant :5 chambres, dont une suite parentale2 salles de bains,Un vaste espace de vie lumineux de plus de 55 m²,Un garage 🚗.Conçue dans le cadre de nos maisons passives Bâti Activ, qui favorisent l’entrée de lumière naturelle et maximisent les gains énergétiques 🌞⚡.💰 Prix du projet terrain + maison : 517 000 €Ce bien rare sur le marché 🏆 ne restera pas disponible longtemps !Pour plus d’informations ou organiser une visite, contactez Erwan TILLY des Maisons de l’Avenir 📞 dès aujourd’hui.Une opportunité unique pour réaliser votre projet de vie ! 🌟✨
Plougonvelin
TERRAIN ET MAISONVENTE : maison de 4 pièces (80 m²) à PlougonvelinPROCHE CENTRE-VILLE – MAISON 4 PIÈCES NEUVEEn vente : située à quelques kilomètres de la mer et à quelques kilomètres de Brest, nous vous présentons, proche du centre-ville de Plougonvelin (29217), cette maison de 4 pièces de plain-pied de 80 m².Conçue de plain-pied, elle compte trois chambres, une cuisine et une salle de bains. La maison est neuve.Le terrain du bien s’étend sur 390 m².L’École Élémentaire Publique Roz Avel et l’École Primaire Privée Sacré-Coeur sont implantées à moins de 10 minutes à pied, tout comme deux structures d’accueil pour la petite enfance. On trouve deux boulangeries, deux commerces et un supermarché à quelques minutes à peine.Son prix de vente est de 391 323 €.Prenez contact avec notre agence (Sami ALKIS) pour tout renseignement sur la maison, sur les modalités de vente et sur les démarches à suivre. Maisons de l’Avenir Guipavas est là pour vous accompagner à toutes les étapes de l’achat.
Plougonvelin
TERRAIN ET MAISONMaison F4 (94 m²) en vente à PlougonvelinPROCHE CENTRE-VILLE – MAISON 4 PIÈCES NEUVEÀ vendre à quelques kilomètres de la mer et à 17 km de Brest, découvrez cette maison de 4 pièces de 94 m² proche du centre-ville de Plougonvelin (29217). Son intérieur inclut trois chambres, une cuisine et deux salles de bains.Le terrain du bien est de 283 m².C’est une maison de 2 niveaux. Elle est neuve.On trouve l’École Élémentaire Publique Roz Avel et l’École Primaire Privée Sacré-Coeur à moins de 10 minutes à pied et deux crèches. Il y a deux boulangeries, deux commerces et un supermarché à quelques minutes à peine.Son prix de vente est de 323 834 €.Contactez notre agence (Sami ALKIS) pour toute information sur la maison, sur les démarches à suivre ou sur les modalités de vente.
Plougonvelin
TERRAIN ET MAISONPlougonvelin : maison F5 (104 m²) en ventePROCHE CENTRE-VILLE – MAISON 5 PIÈCES NEUVEÀ vendre sur le littoral et à quelques kilomètres de Brest, Maisons de l’Avenir Guipavas vous propose, proche du centre-ville de Plougonvelin (29217), cette maison de 5 pièces de plain-pied de 104 m² et de 390 m² de terrain. Elle inclut quatre chambres, une cuisine et deux salles de bains.La maison est neuve.Il y a l’École Élémentaire Publique Roz Avel et l’École Primaire Privée Sacré-Coeur à moins de 10 minutes à pied et deux structures d’accueil pour les tout-petits. On trouve deux boulangeries, deux commerces et un supermarché à proximité.Son prix de vente est de 369 812 €.Contactez Sami ALKIS pour toute question sur la maison. Concrétisez vos projets immobiliers avec Maisons de l’Avenir Guipavas.
Plougonvelin
TERRAINTerrain de 390 m² en vente à PlougonvelinPROCHE CENTRE-VILLE – PROCHE DE BRESTÀ Plougonvelin (29217) à vendre sur le littoral et à deux pas de Brest, venez découvrir ce terrain de 390 m². Il bénéficie d’une exposition sud-ouest. Il se trouve non loin du centre-ville. Il y a l’École Élémentaire Publique Roz Avel et l’École Primaire Privée Sacré-Coeur à moins de 10 minutes à pied et deux structures d’accueil pour la petite enfance. On trouve deux boulangeries, deux commerces et un supermarché dans les environs.Ce terrain est à vendre pour la somme de 116 365 €. Contactez Sami ALKIS pour toute question sur ce terrain, sur les modalités de vente ou sur les démarches à suivre.
Plougonvelin
TERRAIN ET MAISONPlougonvelin : maison T5 (168 m²) à vendrePROCHE CENTRE-VILLE – MAISON 5 PIÈCES NEUVEEn vente : à quelques kilomètres de la mer et à 17 km de Brest, nous vous proposons cette maison de 5 pièces de 168 m² proche du centre-ville de Plougonvelin (29217). Son intérieur propose quatre chambres, une cuisine et deux salles de bains.Le terrain de la propriété s’étend sur 390 m².C’est une maison de 2 niveaux. Elle est neuve.L’École Élémentaire Publique Roz Avel et l’École Primaire Privée Sacré-Coeur sont implantées à moins de 10 minutes à pied, tout comme deux structures d’accueil pour les enfants en bas âge. Il y a deux boulangeries, deux commerces et un supermarché dans les environs.Elle est proposée à l’achat pour 527 883 €.Prenez contact avec notre agence (ALKIS Sami) pour tout renseignement sur la maison et sur les modalités de vente. Concrétisez vos projets immobiliers avec Maisons de l’Avenir Guipavas.
L’actualité immobilière à Plougonvelin
27/11/2023
02/11/2023
30/10/2023
20/10/2023
16/10/2023
16/10/2023