Maison à construire à Plougoulm (29250)
Images
Description
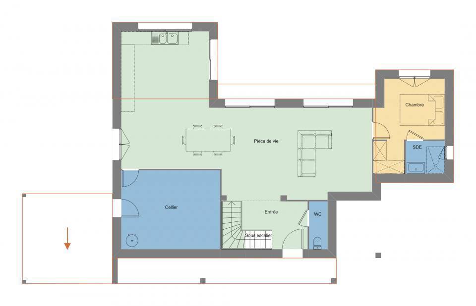
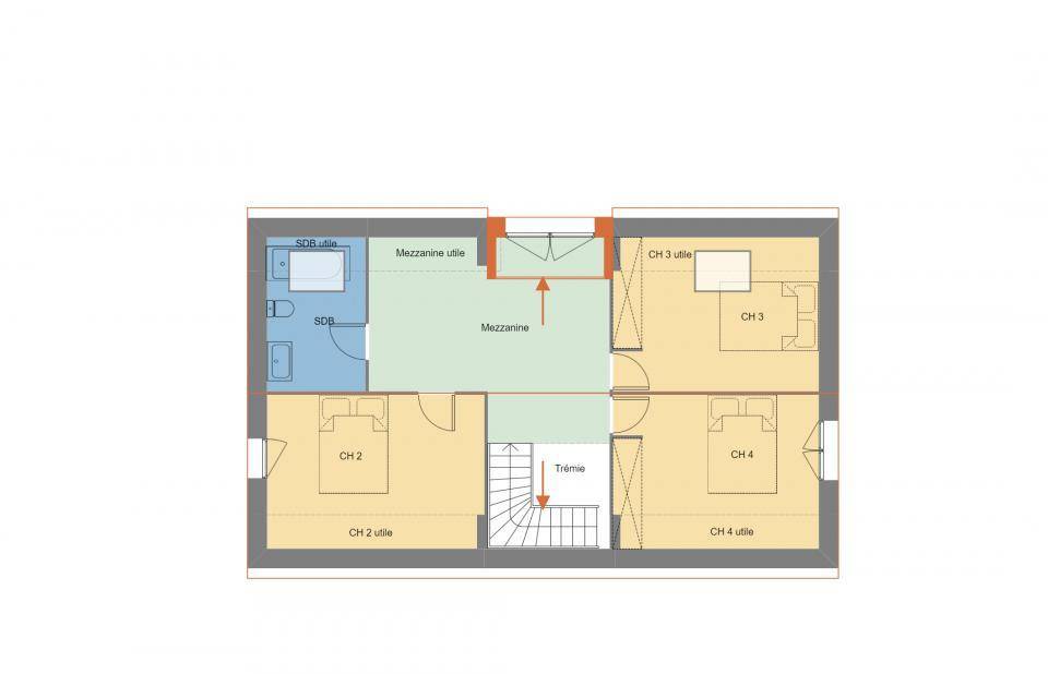
Plougoulm : maison F4 (90 m²) en vente
MAISON 4 PIÈCES
En vente sur le littoral, à Plougoulm (29250), Maisons de l'Avenir Guipavas vous propose cette maison de 4 pièces de 90 m².
Cette maison possède 2 niveaux. Elle se divise en trois chambres, une cuisine et deux salles de bains.
Le terrain de la propriété s'étend sur 660 m².
Elle est proposée à l'achat pour 250 900 €.
Contactez Aurélie CAGNARD pour toute information sur cette maison et sur les modalités de vente.
Logement susceptibles de vous intéresser
Nous vous proposons de découvrir aussi cette sélection de logements situés à moins de 10km de Plougoulm et qui seraient susceptibles de vous intéresser.
Plouvorn
TERRAIN ET MAISONDEVENEZ PROPRIÉTAIRE À PLOUVORN – MAISON NEUVE conforme à la norme RE-2020 !Vivez dans un cadre de vie privilégié à Plouvorn, commune recherchée du Finistère, offrant un environnement calme et verdoyant tout en restant proche des commerces, des écoles et de toutes les commodités – un lieu idéal pour votre famille !Votre future maison comprend :3 chambres spacieuses et lumineusesGrand salon-séjour traversant, ouvert sur le jardinCuisine moderne et fonctionnelleSalle de bain et WC séparésTerrain de 468 m², bien orientéLes atouts du projet :Maison neuve RE2020, à faible consommation d’énergiePlan personnalisable selon vos besoinsEnvironnement paisible et familialPrestations de qualité, finitions soignéesAccession à la propriété possible avec ou sans apport, étude de financement gratuite.Photos à titre d’illustration : photos d’une réalisation similaire (non contractuelles).Nous trouvons l’adresse idéale parmi plus de 200 terrains disponibles pour votre future demeure.Ne manquez pas cette belle opportunité de devenir propriétaire d’une maison moderne et économique à Plouvorn !Contactez-nous dès maintenant pour découvrir les plans et étudier votre projet personnalisé.Armorique Immos, franchise d’un constructeur national de maisons individuelles depuis plus de 40 ans, propose, en collaboration avec ses partenaires fonciers, une sélection de terrains constructibles selon disponibilité, pour la construction de maisons neuves définies par le constructeur, avec un contrat de construction de maison individuelle (loi du 19/12/1990).Prix net, hors frais notariés, d’enregistrement et de publicité foncière.Étude financière réalisée par nos partenaires en courtage (IOSB inscrit à l’Orias).
Santec
TERRAIN ET MAISONVENTE d’une maison F3 (86 m²) à SantecMAISON 3 PIÈCES NEUVEEn vente : à quelques kilomètres de la mer, notre agence Maisons de l’Avenir Guipavas est heureuse de vous présenter cette maison de 3 pièces de plain-pied de 86 m² à Santec (29250). Elle se divise en trois chambres, une cuisine et une salle de bains.Le terrain de cette maison s’étend sur 526 m².La maison est neuve.L’École Primaire Privée Notre-Dame de Lourdes et l’École Primaire Publique Tanguy Prigent se trouvent à moins de 10 minutes à pied. La nationale N12 est accessible à 19 km. On trouve un tennis, une bibliothèque, une boulangerie, un supermarché, un commerce et une supérette à quelques minutes.Son prix de vente est de 283 750 €.N’hésitez pas à prendre contact avec Aurélie CAGNARD pour toute question sur cette maison, sur les démarches à suivre ou sur les modalités de vente. Maisons de l’Avenir Guipavas est là pour vous accompagner à toutes les étapes de l’achat.
Saint-Pol-de-Léon
TERRAIN ET MAISONSaint-Pol-de-Léon : maison de 5 pièces (92 m²) en venteMAISON 5 PIÈCES NEUVEÀ quelques kilomètres de la mer, venez découvrir en vente à Saint-Pol-de-Léon (29250), cette maison de 5 pièces de 92 m² et de 461 m² de terrain. Son intérieur offre quatre chambres, une cuisine et deux salles de bains.C’est une maison de 2 niveaux. Elle est neuve.Des écoles (de la maternelle au lycée) sont implantées à moins de 10 minutes à pied, tout comme deux structures d’accueil pour les enfants en bas âge. La nationale N12 est accessible à 16 km. Il y a un bassin de natation, un tennis, des commerces, des boulangeries, un supermarché, un bureau de poste et une épicerie à proximité de la maison. Ne manquez pas le marché Place de l’évêché chaque mardi.Elle est proposée à l’achat pour 260 065 €.Prenez contact avec notre agence (Aurélie CAGNARD) pour toute question sur la maison ou sur les démarches à suivre. Concrétisez vos projets immobiliers avec Maisons de l’Avenir Guipavas.
Santec
TERRAIN ET MAISONSantec : maison de 3 pièces (59 m²) en venteMAISON 3 PIÈCES NEUVEÀ vendre : située sur le littoral, nous vous présentons cette maison de 3 pièces de plain-pied de 59 m² et de 526 m² de terrain à Santec (29250).Son intérieur comporte deux chambres, une cuisine et une salle de bains. La maison est neuve.Il y a l’École Primaire Privée Notre-Dame de Lourdes et l’École Primaire Publique Tanguy Prigent à moins de 10 minutes à pied. La nationale N12 est accessible à 19 km. Il y a un tennis, une bibliothèque, une boulangerie, un supermarché, un commerce et une supérette dans les environs.Elle est proposée à l’achat pour 231 750 €.Contactez notre agence (Aurélie CAGNARD) pour toute question sur cette maison. Concrétisez vos projets immobiliers avec Maisons de l’Avenir Guipavas.
Santec
TERRAINVENTE : terrain de 526 m² à SantecÀ Santec (29250) à vendre sur le littoral, imaginez la maison de vos rêves sur ce terrain de 526 m². On trouve l’École Primaire Privée Notre-Dame de Lourdes et l’École Primaire Publique Tanguy Prigent à moins de 10 minutes à pied. Il y a un accès à la nationale N12 à 19 km. On trouve un tennis, une bibliothèque, une boulangerie, un supermarché, un commerce et une supérette dans les environs.Il est à vendre pour la somme de 96 750 €. Contactez Aurélie CAGNARD pour tout renseignement sur ce terrain ou sur les modalités de vente.
Saint-Pol-de-Léon
TERRAIN ET MAISONSaint-Pol-de-Léon : maison F5 (121 m²) en venteMAISON 5 PIÈCES NEUVEÀ vendre : à quelques kilomètres de la mer, à Saint-Pol-de-Léon (29250), nous vous proposons cette maison de 5 pièces de 121 m² et de 461 m² de terrain. Elle se divise en quatre chambres, une cuisine et deux salles de bains.Cette maison compte 2 niveaux. Elle est neuve.Des écoles (de la maternelle au lycée) sont implantées à moins de 10 minutes à pied, tout comme deux structures d’accueil pour les enfants en bas âge. La nationale N12 est accessible à 16 km. Il y a un bassin de natation, un tennis, des commerces, des boulangeries, un supermarché, un bureau de poste et une épicerie à proximité du bien. Enfin, le marché Place de l’évêché a lieu tous les mardis.Elle est proposée à l’achat pour 333 065 €.Contactez Aurélie CAGNARD pour obtenir de plus amples renseignements sur cette maison ou sur les modalités de vente. Concrétisez vos projets immobiliers avec Maisons de l’Avenir Guipavas.
Santec
TERRAIN ET MAISONMaison T4 (70 m²) en vente à SantecMAISON 4 PIÈCES NEUVEÀ quelques kilomètres de la mer, nous sommes heureux de vous proposer cette maison de 4 pièces de plain-pied de 70 m² et de 526 m² de terrain à vendre à Santec (29250).Elle offre trois chambres, une cuisine et une salle de bains. Cette maison est neuve.L’École Primaire Privée Notre-Dame de Lourdes et l’École Primaire Publique Tanguy Prigent sont implantées à moins de 10 minutes à pied. On trouve un accès à la nationale N12 à 19 km. Il y a un tennis, une bibliothèque, une boulangerie, un supermarché, un commerce et une supérette dans les environs.Elle est proposée à l’achat pour 251 750 €.Prenez contact avec notre agence (Aurélie CAGNARD) pour tout renseignement sur la maison ou sur les démarches à suivre. Maisons de l’Avenir Guipavas est là pour vous accompagner à toutes les étapes de l’achat.
Saint-Pol-de-Léon
TERRAIN ET MAISONVENTE : maison F6 (118 m²) à Saint-Pol-de-LéonMAISON 6 PIÈCES NEUVEEn vente : localisée à quelques kilomètres de la mer, nous sommes heureux de vous présenter cette maison de 6 pièces de 118 m² et de 461 m² de terrain à Saint-Pol-de-Léon (29250).Il s’agit d’une maison de 2 niveaux. Son intérieur propose cinq chambres, une cuisine et deux salles de bains. La maison est neuve.On trouve des écoles du primaire et du secondaire à moins de 10 minutes à pied, tout comme deux structures d’accueil pour les tout-petits. La nationale N12 est accessible à 16 km. On trouve un bassin de natation, un tennis, des commerces, des boulangeries, un supermarché, une boucheries-charcuteries et un bureau de poste dans les environs. Le marché Place de l’évêché anime le quartier chaque mardi.Elle est à vendre pour la somme de 327 065 €.Prenez contact avec notre agence (CAGNARD Aurélie) pour toute question sur cette maison, sur les modalités de vente ou sur les démarches à suivre.
Saint-Pol-de-Léon
TERRAIN ET MAISONSaint-Pol-de-Léon : maison T5 (87 m²) en venteMAISON 5 PIÈCES NEUVEÀ vendre : située sur le littoral, notre agence Maisons de l’Avenir Guipavas est heureuse de vous présenter cette maison de 5 pièces de 87 m² et de 461 m² de terrain à Saint-Pol-de-Léon (29250). Son intérieur offre quatre chambres, une cuisine et une salle de bains.Cette maison comporte 2 niveaux. Elle est neuve.Des établissements scolaires de tous types (de la maternelle au lycée) sont implantés à moins de 10 minutes à pied, tout comme deux structures d’accueil pour les enfants en bas âge. Il y a un accès à la nationale N12 à 16 km. Il y a un bassin de natation, un tennis, des commerces, des boulangeries, un supermarché, un bureau de poste et une épicerie dans les environs. Enfin, le marché Place de l’évêché anime les environs tous les mardis.Elle est proposée à l’achat pour 265 065 €.N’hésitez pas à prendre contact avec notre agence (Aurélie CAGNARD) pour toute question sur cette maison. Maisons de l’Avenir Guipavas vous accompagne dans toutes vos démarches et dans tous vos projets immobiliers.
L’actualité immobilière à Plougoulm
27/11/2023
02/11/2023
30/10/2023
20/10/2023
16/10/2023
16/10/2023