Maison à construire à Plougourvest (29400)
Images
Description
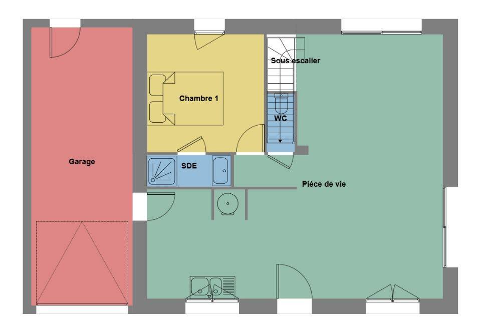
Maison de 6 pièces (119 m²) en vente à Plougourvest
Cette belle maison traditionnelle aux lignes contemporaines offre 119m² habitable .
Au rez-de-chaussée, elle dispose d'une belle pièce de vie offrant un maximum de lumière, d'une suite parentale avec sa salle d'eau, d'un wc et son garage.
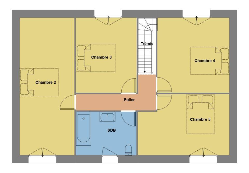
A l'étage on retrouve 4 chambres, une salle de bains, et un WC. L'orientation de cette maison vous permettra de bénéficier d'un maximum de luminosité.
Elle est à vendre pour la somme de 390 650 €.
Contactez Aurélie CAGNARD ((Numéro supprimé)) pour tout renseignement sur la maison ou sur les démarches à suivre. Maisons de l'Avenir Guipavas vous accompagne à toutes les étapes de votre projet et dans tous vos projets immobiliers.
Logement susceptibles de vous intéresser
Nous vous proposons de découvrir aussi cette sélection de logements situés à moins de 10km de Plougourvest et qui seraient susceptibles de vous intéresser.
Plouvorn
TERRAINJoli terrain sur PLOUVORN, plat et idéalement situé, parfait pour réaliser votre projet de construction avec notre entreprise.- Superficie : 367m²- Terrain : Plat et facile à aménager- Emplacement : Idéalement situé dans un cadre agréable- Prix Hors fraisNe manquez pas cette opportunité !Pour plus d’informations, contactez nous au (Numéro supprimé).
Guiclan
TERRAIN ET MAISONVous rêvez d’une maison neuve, moderne et adaptée à vos besoins ? Nous vous proposons un projet de construction comprenant :- Une maison individuelle comprenant : 3 chambres spacieuses, un grand salon lumineux, une cuisine fonctionnelle, WC , salle(s) de bain/d’eau sur un terrain de 551 m², idéalement situé à GUICLAN.Profitez d’une maison sur-mesure, conçue pour votre confort et votre bien-être ! Maison RE2020 à faible consommation d’énergies. Prix hors frais. Photos non contractuelles et illustratives. Possibilité d’accession à la propriété avec un CDI (hors CAF, RSA et Pôle Emploi). Pour tout renseignement supplémentaire, contactez nous au (Numéro supprimé).
Guiclan
TERRAINJoli terrain sur GUICLAN, plat et idéalement situé, parfait pour réaliser votre projet de construction avec notre entreprise.- Superficie : 520 m²- Terrain : Plat et facile à aménager- Emplacement : Idéalement situé dans un cadre agréable- Prix Hors fraisNe manquez pas cette opportunité !Pour plus d’informations, contactez nous au (Numéro supprimé).
Lampaul-Guimiliau
TERRAINJoli terrain sur LAMPAUL GUIMILIAU, plat et idéalement situé, parfait pour réaliser votre projet de construction avec notre entreprise.- Superficie : 417 m²- Terrain : Plat et facile à aménager- Emplacement : Idéalement situé dans un cadre agréable- Prix Hors fraisNe manquez pas cette opportunité !Pour plus d’informations, contactez nous au (Numéro supprimé).
Plouzévédé
TERRAINJoli terrain sur PLOUZEVEDE, plat et idéalement situé, parfait pour réaliser votre projet de construction avec notre entreprise.- Superficie : 544 m²- Terrain : Plat et facile à aménager- Emplacement : Idéalement situé dans un cadre agréable- Prix Hors fraisNe manquez pas cette opportunité !Pour plus d’informations, contactez nous au (Numéro supprimé).
Plougourvest
TERRAINVENTE : terrain de 2 443 m² à PlougourvestÀ quelques kilomètres de Landivisiau, à Plougourvest (29400), grand terrain. Réalisez votre résidence principale ou secondaire.Il est à vendre pour la somme de 96 000 €. Contactez Aurélie CAGNARD (tél : (Numéro supprimé)) pour plus d’informations sur ce terrain ou sur les démarches à suivre. Maisons de l’Avenir Guipavas vous accompagne à toutes les étapes de l’achat et dans tous vos projets immobiliers.
Plougourvest
TERRAIN ET MAISONMaison de 5 pièces (140 m²) à vendre à PlougourvestLe terrain du bien s’étend sur 2 443 m².Cette belle maison traditionnelle aux lignes contemporaines offre 140 m² habitable . Au rez-de-chaussée, elle dispose d’une belle pièce de vie offrant un maximum de lumière, d’une grande suite parentale avec sa salle d’eau, d’un wc et d’un très grand cellier. A l’étage on retrouve 3 chambres, une salle de bains, et un WC. L’orientation de cette maison vous permettra de bénéficier d’un maximum de lumière et de chaleur naturelle pour davantage d’économies et de douceur de vivre.Elle est proposée à l’achat pour 456 000 €.Contactez Aurélie CAGNARD ((Numéro supprimé)) pour obtenir de plus amples renseignements sur la maison, sur les démarches à suivre ou sur les modalités de vente. Maisons de l’Avenir Guipavas est là pour vous accompagner dans tous vos projets immobiliers.
Plougourvest
TERRAIN ET MAISONPlougourvest : maison T3 (57 m²) à vendreTrès beau plain-pied aux lignes traditionnelles, agencé astucieusement pour un maximum de luminosité, pièce de vie ouverte et volumineuse, un cellier, 2 chambres, une salle d’eau et wc.Aux normes RE2020, peu énergivore, elle vous ravira par son confort de vie.Elle est proposée à l’achat pour 210 000 €.Contactez notre agence (Aurélie CAGNARD : (Numéro supprimé)) pour toute information sur ce bien.
Plougourvest
TERRAIN ET MAISONMaison de 6 pièces (119 m²) en vente à PlougourvestCette belle maison traditionnelle aux lignes contemporaines offre 119m² habitable .Au rez-de-chaussée, elle dispose d’une belle pièce de vie offrant un maximum de lumière, d’une suite parentale avec sa salle d’eau, d’un wc et son garage. A l’étage on retrouve 4 chambres, une salle de bains, et un WC. L’orientation de cette maison vous permettra de bénéficier d’un maximum de luminosité.Elle est à vendre pour la somme de 390 650 €.Contactez Aurélie CAGNARD ((Numéro supprimé)) pour tout renseignement sur la maison ou sur les démarches à suivre. Maisons de l’Avenir Guipavas vous accompagne à toutes les étapes de votre projet et dans tous vos projets immobiliers.
L’actualité immobilière à Plougourvest
27/11/2023
02/11/2023
30/10/2023
20/10/2023
16/10/2023
16/10/2023