Maison à construire à Plouigneau (29610)
Images
Description
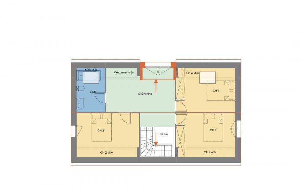
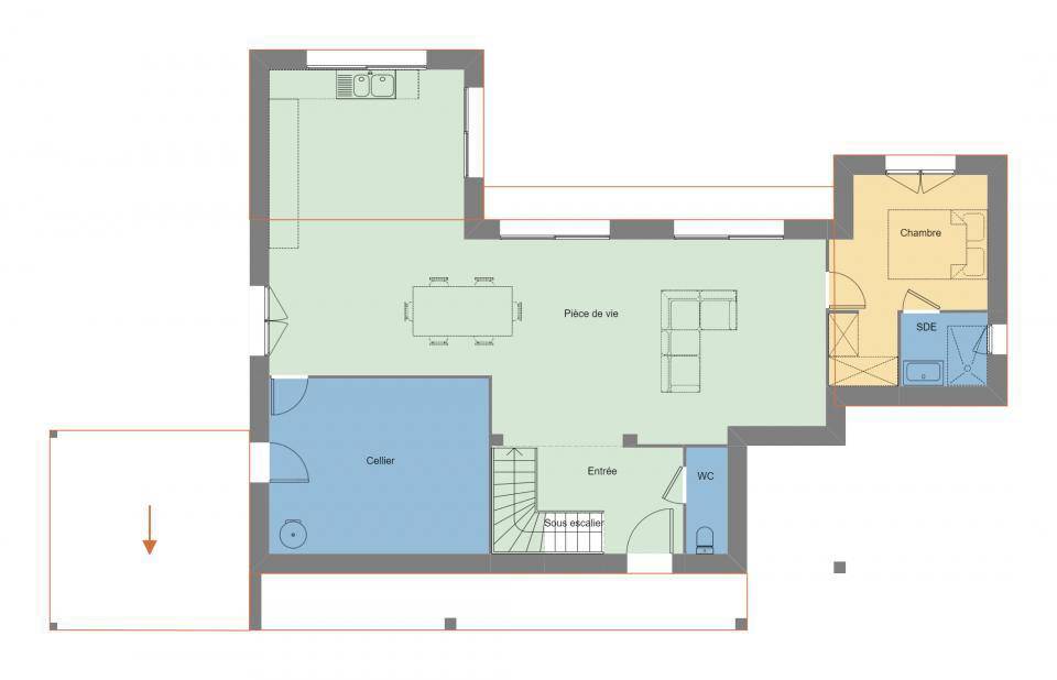
VENTE d'une maison F5 (140 m²) à Plouigneau
MAISON 5 PIÈCES NEUVE
À vendre : à 14 km des plages, à Plouigneau (29610), nous sommes heureux de vous présenter cette maison de 5 pièces de 140 m².
Cette maison comporte 2 niveaux. Elle se divise en quatre chambres, une cuisine et deux salles de bains. Cette maison est neuve.
Le terrain de la propriété s'étend sur 680 m².
Des écoles (de la maternelle au lycée) se trouvent à moins de 10 minutes en voiture. Niveau transports, il y a la gare de morlaix à moins de 10 minutes en voiture. La nationale N12 est accessible à 4 km. On trouve un bassin de natation, des bibliothèques, des tennis, des commerces, des boulangeries, des supermarchés, quatre bureaux de poste et trois boucheries-charcuteries dans les environs.
Elle est à vendre pour la somme de 396 000 €.
Contactez notre agence (CAGNARD Aurélie : (Numéro supprimé)) pour tout renseignement sur cette maison.
Logement susceptibles de vous intéresser
Nous vous proposons de découvrir aussi cette sélection de logements situés à moins de 10km de Plouigneau et qui seraient susceptibles de vous intéresser.
Lanmeur
TERRAINOpportunité de développement immobilier au cœur du Finistère NordSitué sur la commune de LANMEUR, à proximité immédiate du centre-bourg et à moins de 10 minutes de Loquirec, ce terrain d’une superficie d’environ 5 000 m² est intégré dans une Orientation d’Aménagement et de Programmation (OAP) à vocation résidentielle.Hauteur autorisée : R+2 + comblesCapacité indicative : à partir d’une dizaine de logements minimum (logements collectifs intermédiaires, petits collectifs, ou habitat groupé)Situé en secteur résidentiel, proche des commerces, écoles et servicesLe territoire est attractif, bien desservi et dynamiqueLe terrain offre un cadre de vie recherché, à proximité du littoral et de la RN12Terrain plat avec plusieurs accès possibleCe terrain s’adresse à des promoteurs, lotisseurs ou investisseurs souhaitant implanter un projet résidentiel sur une commune à proche moins de 10mn des plages.N’hésitez pas à me contacter pour tout complément d’information. Les honoraires sont à la charge du vendeur.Les informations sur les risques auxquels ce bien est exposé sont disponibles sur le site Géorisques : www. georisques. gouv. fr.Réseau Immobilier CAPIFRANCE – Votre agent commercial (RSAC N(Numéro supprimé) – Greffe de VANNES) Valérie MAQUAIRE Entrepreneur Individuel (Numéro supprimé) – Réf.926433
Plouégat-Moysan
TERRAINJoli terrain sur PLOUEGAT MOYSAN, plat et idéalement situé, parfait pour réaliser votre projet de construction avec notre entreprise.- Superficie : 800m²- Terrain : Plat et facile à aménager- Emplacement : Idéalement situé dans un cadre agréable- Prix Hors fraisNe manquez pas cette opportunité !Pour plus d’informations, contactez nous au (Numéro supprimé).
Plouégat-Moysan
TERRAIN ET MAISONVous rêvez d’une maison neuve, moderne et adaptée à vos besoins ? Nous vous proposons un projet de construction comprenant :- Une maison individuelle comprenant : 3 chambres spacieuses, un grand salon lumineux, une cuisine fonctionnelle, WC , salle(s) de bain/d’eau sur un terrain de 5 m², idéalement situé à PLOUEGAT MOYSAN.Profitez d’une maison sur-mesure, conçue pour votre confort et votre bien-être ! Maison RE2020 à faible consommation d’énergies. Prix hors frais. Photos non contractuelles et illustratives. Possibilité d’accession à la propriété avec un CDI (hors CAF, RSA et Pôle Emploi). Pour tout renseignement supplémentaire, contactez nous au (Numéro supprimé).
Plouigneau
TERRAINJoli terrain sur PLOUIGNEAU , plat et idéalement situé, parfait pour réaliser votre projet de construction de maison individuelle avec notre entreprise.- Superficie : 445 m²- Emplacement : Bien placé dans un cadre agréable- Prix : Hors fraisNe manquez pas cette opportunité !Pour plus d’informations, contactez nous au (Numéro supprimé).
Plouigneau
TERRAIN ET MAISONVous rêvez d’une maison neuve, moderne et adaptée à vos besoins ? Nous vous proposons un projet de construction comprenant :- Une maison individuelle comprenant : 3 chambres spacieuses, un grand salon lumineux, une cuisine fonctionnelle, WC , salle(s) de bain/d’eau sur un terrain de 537 m², idéalement situé à PLOUIGNEAU.Profitez d’une maison sur-mesure, conçue pour votre confort et votre bien-être ! Maison RE2020 à faible consommation d’énergies. Prix hors frais. Photos non contractuelles et illustratives. Possibilité d’accession à la propriété avec un CDI (hors CAF, RSA et Pôle Emploi). Pour tout renseignement supplémentaire, contactez nous au (Numéro supprimé).
Plouigneau
TERRAINTerrain de 680 m² à vendre à PlouigneauÀ Plouigneau (29610) en vente à 14 km des plages, projetez la maison de vos rêves sur ce terrain de 680 m². Des établissements scolaires (de la maternelle au lycée) sont implantés à moins de 10 minutes en voiture. Niveau transports en commun, on trouve la gare de Morlaix à moins de 10 minutes en voiture. Il y a un accès à la nationale N12 à 4 km. Il y a un bassin de natation, des bibliothèques, des tennis, des commerces, des boulangeries, des supermarchés, quatre bureaux de poste et trois boucheries-charcuteries à proximité de la propriété.Il est proposé à l’achat pour 50 000 €. Contactez Aurélie CAGNARD (tél : (Numéro supprimé)) pour toute information sur le terrain, sur les modalités de vente ou sur les démarches à suivre. Maisons de l’Avenir Guipavas vous accompagne à toutes les étapes de l’achat et dans tous vos projets immobiliers.
Plouigneau
TERRAIN ET MAISONVENTE d’une maison F5 (140 m²) à PlouigneauMAISON 5 PIÈCES NEUVEÀ vendre : à 14 km des plages, à Plouigneau (29610), nous sommes heureux de vous présenter cette maison de 5 pièces de 140 m².Cette maison comporte 2 niveaux. Elle se divise en quatre chambres, une cuisine et deux salles de bains. Cette maison est neuve.Le terrain de la propriété s’étend sur 680 m².Des écoles (de la maternelle au lycée) se trouvent à moins de 10 minutes en voiture. Niveau transports, il y a la gare de morlaix à moins de 10 minutes en voiture. La nationale N12 est accessible à 4 km. On trouve un bassin de natation, des bibliothèques, des tennis, des commerces, des boulangeries, des supermarchés, quatre bureaux de poste et trois boucheries-charcuteries dans les environs.Elle est à vendre pour la somme de 396 000 €.Contactez notre agence (CAGNARD Aurélie : (Numéro supprimé)) pour tout renseignement sur cette maison.
Plouigneau
TERRAIN ET MAISONVENTE : maison de 4 pièces (100 m²) à PlouigneauMAISON 4 PIÈCES NEUVEEn vente : située à 14 km des plages, nous sommes heureux de vous présenter à Plouigneau (29610), cette maison de 4 pièces de 100 m² et de 680 m² de terrain. Elle compte trois chambres, une cuisine et deux salles de bains.Cette maison possède 2 niveaux. Elle est neuve.Il y a des écoles du primaire et du secondaire à moins de 10 minutes en voiture. Côté transports en commun, on trouve la gare de morlaix à moins de 10 minutes en voiture. La nationale N12 est accessible à 4 km. Il y a un bassin de natation, des bibliothèques, des tennis, des commerces, des boulangeries, des supermarchés, quatre bureaux de poste et trois boucheries-charcuteries à quelques minutes du logement.Son prix de vente est de 290 000 €.Contactez Aurélie CAGNARD (tél : (Numéro supprimé)) pour toute question sur cette maison.
Plouigneau
TERRAIN ET MAISONVENTE : maison de 4 pièces (82 m²) à PlouigneauMAISON 4 PIÈCES NEUVEEn vente : à 14 km des plages, laissez vous charmer par cette maison de 4 pièces de plain-pied de 82 m² à Plouigneau (29610).Son intérieur offre trois chambres, une cuisine et une salle de bains. La maison est neuve.Le terrain du bien est de 680 m².Des écoles (de la maternelle au lycée) sont implantées à moins de 10 minutes en voiture. Côté transports en commun, on trouve la gare de morlaix à moins de 10 minutes en voiture. On trouve un accès à la nationale N12 à 4 km. Il y a un bassin de natation, des bibliothèques, des tennis, des commerces, des boulangeries, des supermarchés, trois épiceries et quatre bureaux de poste dans les environs.Elle est proposée à l’achat pour 249 200 €.Contactez notre agence (Aurélie CAGNARD : (Numéro supprimé)) pour toute information sur la maison, sur les démarches à suivre ou sur les modalités de vente. Maisons de l’Avenir Guipavas vous accompagne à toutes les étapes de l’achat et dans tous vos projets immobiliers.
L’actualité immobilière à Plouigneau
27/11/2023
02/11/2023
30/10/2023
20/10/2023
16/10/2023
16/10/2023