Maison à construire à Plouzévédé (29440)
Images
Description
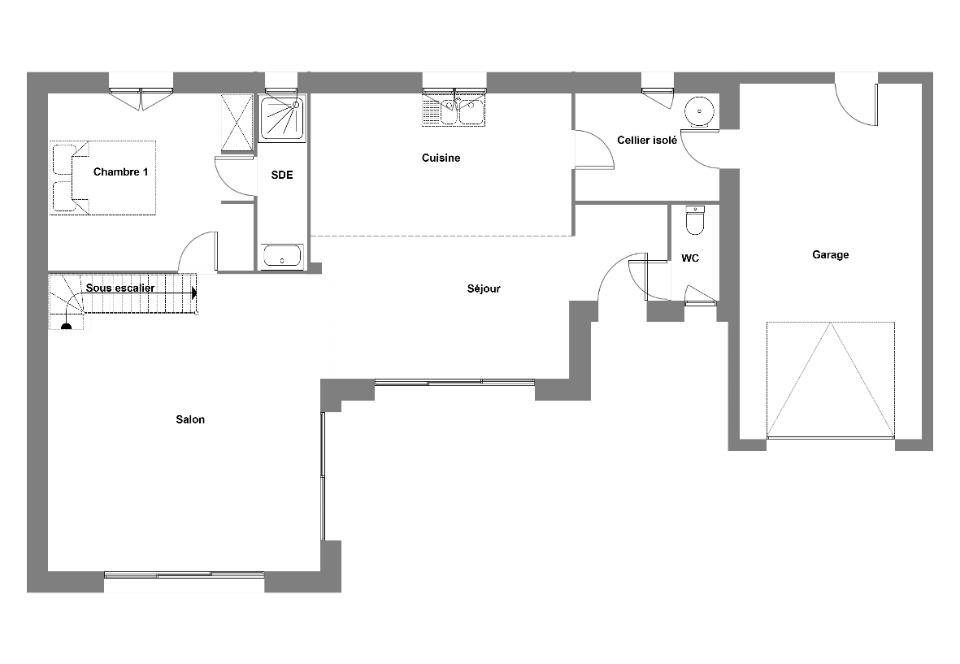
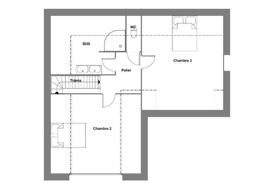
Plouzévédé : maison de 4 pièces (117 m²) en vente
MAISON 4 PIÈCES NEUVE
En vente : à quelques kilomètres de la mer, notre agence Maisons de l'Avenir Guipavas est heureuse de vous présenter cette maison de 4 pièces de 117 m² et de 817 m² de terrain à Plouzévédé (29440). Son intérieur comporte trois chambres, une cuisine et deux salles de bains.
Cette maison compte 2 niveaux. Elle est neuve.
L'École Primaire Privée Sainte Thérèse et l'École Élémentaire Publique Henri Matisse sont implantées à moins de 10 minutes à pied. Il y a un accès à la nationale N12 à 10 km. On trouve une boulangerie à quelques minutes.
Elle est à vendre pour la somme de 336 548 €.
N'hésitez pas à prendre contact avec Aurélie CAGNARD ((Numéro supprimé)) pour tout renseignement sur la maison, sur les démarches à suivre ou sur les modalités de vente.
Logement susceptibles de vous intéresser
Nous vous proposons de découvrir aussi cette sélection de logements situés à moins de 10km de Plouzévédé et qui seraient susceptibles de vous intéresser.
 
  
 
 Lanhouarneau
TERRAIN ET MAISONDEVENEZ PROPRIÉTAIRE À LANHOUARNEAU – MAISON NEUVE RE2020 SUR-MESURE !Vivez dans un cadre de vie privilégié à Lanhouarneau, charmante commune dynamique du Nord-Finistère, idéalement située entre Landivisiau et Saint-Pol-de-Léon.Profitez du calme de la campagne, tout en restant proche des commerces, écoles et services – un environnement idéal pour votre famille ! Votre future maison comprend 😮 3 chambres spacieuses et lumineuseso Un grand salon-séjour traversant, ouvert sur le jardino Une cuisine moderne et fonctionnelleo Salle de bain et WC séparéso Le tout sur un terrain de 511 m², bien orienté Les atouts du projet 😮 Maison neuve RE2020, à faible consommation d’énergieo Plan personnalisable selon vos envies et vos besoinso Cadre de vie paisible, à proximité de Landivisiau, Saint-Pol-de-Léon et du littoral nordo Prestations de qualité, finitions soignées Prix indiqué hors frais Photos non contractuelles à titre d’illustration Accession à la propriété possible avec ou sans apportNe manquez pas cette belle opportunité de devenir propriétaire d’une maison neuve moderne et économique à Lanhouarneau ! Contactez-nous dès maintenant pour découvrir les plans et étudier votre projet personnalisé.
 
  
 
 Plouvorn
TERRAIN ET MAISONDEVENEZ PROPRIÉTAIRE À PLOUVORN – MAISON NEUVE RE2020 SUR-MESURE !Vivez dans un cadre de vie privilégié à Plouvorn, charmante commune dynamique du Nord-Finistère, idéalement située entre Landivisiau et Saint-Pol-de-Léon.Profitez du calme de la campagne, tout en restant proche des commerces, écoles et services – un environnement idéal pour votre famille ! Votre future maison comprend 😮 3 chambres spacieuses et lumineuseso Un grand salon-séjour traversant, ouvert sur le jardino Une cuisine moderne et fonctionnelleo Salle de bain et WC séparéso Le tout sur un terrain de 468 m², bien orienté Les atouts du projet 😮 Maison neuve RE2020, à faible consommation d’énergieo Plan personnalisable selon vos envies et vos besoinso Cadre de vie paisible, à proximité de Morlaix, Landivisiau et du littoral nordo Prestations de qualité, finitions soignées Prix indiqué hors frais Photos non contractuelles à titre d’illustration Accession à la propriété possible avec ou sans apportNe manquez pas cette belle opportunité de devenir propriétaire d’une maison neuve moderne et économique à Plouvorn ! Contactez-nous dès maintenant pour découvrir les plans et étudier votre projet personnalisé.
 
  
 
 Landivisiau
TERRAINTerrain de 735 m² à vendre à LandivisiauIDÉALEMENT SITUÉÀ Landivisiau (29400) sur le littoral, donnez vie à la maison de vos rêves sur ce terrain de 735 m². Il bénéficie d’une exposition sud-ouest. Dans un quartier prisé, ce terrain idéalement situé est proche des écoles et des commerces. Des écoles de tous niveaux (de la maternelle au lycée) sont implantées à moins de 10 minutes à pied. Côté transports, il y a trois gares (Landivisiau, Guimiliau et Saint-Thégonnec) à moins de 10 minutes en voiture. La nationale N12 est accessible à 2 km. On trouve un bassin de natation, un tennis, des commerces, des boulangeries, un supermarché, une épicerie et une supérette dans les environs.Ce terrain est à vendre pour la somme de 72 000 €. Contactez Erwan TILLY pour toute question sur le terrain, sur les démarches à suivre ou sur les modalités de vente.
 
  
 
 Landivisiau
TERRAIN ET MAISONVENTE d’une maison T5 (115 m²) à LandivisiauIDÉALEMENT SITUÉE – MAISON 5 PIÈCES NEUVEEn vente : située sur le littoral, nous sommes heureux de vous proposer cette maison de 5 pièces de plain-pied de 115 m², idéalement située dans Landivisiau (29400). Conçue de plain-pied, elle propose quatre chambres, une cuisine et deux salles de bains.Le terrain de la maison s’étend sur 735 m².Cette maison est neuve.Cette maison se trouve dans un quartier attractif. Il y a des établissements scolaires de tous types (de la maternelle au lycée) à moins de 10 minutes à pied. Côté transports, on trouve les gares Landivisiau, Guimiliau et Saint-Thégonnec à moins de 10 minutes en voiture. La nationale N12 est accessible à 2 km. Il y a un bassin de natation, un tennis, des commerces, des boulangeries, un supermarché, un bureau de poste et une supérette à quelques minutes.Son prix de vente est de 352 000 €.Contactez notre agence (Erwan TILLY) pour tout renseignement sur la maison, sur les modalités de vente ou sur les démarches à suivre. Maisons de l’Avenir Guipavas vous accompagne à toutes les étapes de votre projet et dans tous vos projets immobiliers.
 
  
 
 Landivisiau
TERRAIN ET MAISONVENTE : maison de 5 pièces (130 m²) à LandivisiauIDÉALEMENT SITUÉE – MAISON 5 PIÈCES NEUVEEn vente : localisée à quelques kilomètres de la mer, Maisons de l’Avenir Guipavas vous propose cette maison de 5 pièces de 130 m² et de 735 m² de terrain idéalement située dans Landivisiau (29400). Son intérieur inclut quatre chambres, une cuisine et deux salles de bains.Il s’agit d’une maison de 2 niveaux. Elle est neuve.Cette maison est située dans un quartier recherché. Il y a des établissements scolaires de tous types (de la maternelle au lycée) à moins de 10 minutes à pied. Niveau transports en commun, on trouve les gares Landivisiau, Guimiliau et Saint-Thégonnec à moins de 10 minutes en voiture. Il y a un accès à la nationale N12 à 2 km. Il y a un bassin de natation, un tennis, des commerces, des boulangeries, un supermarché, une épicerie et une boucherie-charcuterie à proximité.Elle est proposée à l’achat pour 405 000 €.Contactez notre agence (Erwan TILLY ) pour plus d’informations sur la maison ou sur les démarches à suivre. Maisons de l’Avenir Guipavas vous accompagne à toutes les étapes de l’achat et dans tous vos projets immobiliers.
 
  
 
 Landivisiau
TERRAIN ET MAISONVENTE : maison F4 (73 m²) à LandivisiauIDÉALEMENT SITUÉE – MAISON 4 PIÈCES NEUVEEn vente : localisée sur le littoral, idéalement située dans Landivisiau (29400), laissez vous charmer par cette maison de 4 pièces de 73 m² et de 735 m² de terrain. Elle inclut trois chambres, une cuisine et une salle de bains.Cette maison comporte 2 niveaux. Elle est neuve.La maison se situe dans un secteur attractif. Il y a des établissements scolaires du primaire et du secondaire à moins de 10 minutes à pied. Côté transports en commun, on trouve trois gares (Landivisiau, Guimiliau et Saint-Thégonnec) à moins de 10 minutes en voiture. La nationale N12 est accessible à 2 km. Il y a un bassin de natation, un tennis, des commerces, des boulangeries, un supermarché, une supérette et une boucherie-charcuterie à proximité.Son prix de vente est de 252 000 €.N’hésitez pas à prendre contact avec Erwan TILLY pour obtenir de plus amples renseignements sur la maison. Maisons de l’Avenir Guipavas vous accompagne dans toutes vos démarches et dans tous vos projets immobiliers.
 
  
 
 Landivisiau
TERRAINDans la charmante commune de Landivisiau, un terrain de 685m² est sur le marché. Ce terrain, idéalement situé, offre une opportunité rare d’investissement et de construction dans une zone recherchée.Ce terrain se distingue par son emplacement de choix.L’atout majeur de ce terrain est sans aucun doute sa superficie généreuse de 685m². Cet espace offre une grande liberté pour la construction de votre future maison. Que vous envisagiez une maison familiale spacieuse, une habitation à l’architecture moderne ou une demeure au charme traditionnel, ce terrain est idéal pour réaliser vos projets.De plus, il bénéficie d’une excellente exposition. Il promet une luminosité optimale tout au long de la journée, un atout de taille pour profiter au maximum de votre future maison.N’attendez plus pour découvrir ce terrain, une opportunité à ne pas manquer pour concrétiser vos projets immobiliers.Il est proposé à l’achat pour 61 500 €. Contactez notre agence (Aurélie CAGNARD : (Numéro supprimé)) pour toute information sur ce terrain.
 
  
 
 Landivisiau
TERRAIN ET MAISONLandivisiau : maison F5 (164 m²) à vendreCette belle maison traditionnelle aux lignes contemporaines offre 164m² habitable . Au rez-de-chaussée, elle dispose d’une belle pièce de vie offrant un maximum de lumière, d’une grande suite parentale avec sa salle d’eau, d’un wc, d’un très grand cellier et d’un garage avec carport.A l’étage on retrouve 3 chambres, une salle de bains, et un WC. L’orientation de cette maison vous permettra de bénéficier d’un maximum de lumière et de chaleur naturelle pour davantage d’économies et de douceur de vivre.Elle est proposée à l’achat pour 491 500 €.Contactez Aurélie CAGNARD (tél : (Numéro supprimé)) pour toute information sur cette maison ou sur les modalités de vente. Maisons de l’Avenir Guipavas vous accompagne dans tous vos projets immobiliers et à toutes les étapes de votre projet.
 
  
 
 Landivisiau
TERRAIN ET MAISONLandivisiau : maison F5 (124 m²) en venteNous sommes ravis de vous présenter à Plougar (29440)Ce très beau plain-pied aux lignes contemporaine, de 124 m² agencé astucieusement pour un maximum de luminosité, pièce de vie ouverte et volumineuse, 4 chambres dont 1 suite parentale et son grand cellier. Aux normes RE2020, peu énergivore, elle vous ravira par son confort de vie Elle est proposée à l’achat pour 359 100 €.N’hésitez pas à prendre contact avec Aurélie CAGNARD ((Numéro supprimé)) pour obtenir de plus amples renseignements sur cette propriété, sur les modalités de vente ou sur les démarches à suivre. Maisons de l’Avenir Guipavas est là pour vous accompagner à toutes les étapes de votre projet.
L’actualité immobilière à Plouzévédé
 27/11/2023
 
 27/11/2023
 
  02/11/2023
 
 02/11/2023
 
  30/10/2023
 
 30/10/2023
 
  20/10/2023
 
 20/10/2023
 
  16/10/2023
 
 16/10/2023
 
  16/10/2023
 
 16/10/2023
 
  
 
 
 
 
 
  
  
  
  
  
  
  
  
 