Maison à construire à Plouzévédé (29440)
Images
Description
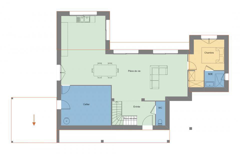
VENTE : maison de 5 pièces (140 m²) à Plouzévédé
Le terrain de la propriété est de 817 m².
Cette belle maison traditionnelle aux lignes contemporaines offre 140 m² habitable . Au rez-de-chaussée, elle dispose d'une belle pièce de vie offrant un maximum de lumière, d'une grande suite parentale avec sa salle d'eau, d'un wc et d'un très grand cellier. A l'étage on retrouve 3 chambres, une salle de bains, et un WC. L'orientation de cette maison vous permettra de bénéficier d'un maximum de lumière et de chaleur naturelle pour davantage d'économies et de douceur de vivre.
Elle est à vendre pour la somme de 385 500 €.
Prenez contact avec Aurélie CAGNARD ((Numéro supprimé)) pour obtenir de plus amples renseignements sur cette maison. Faites de vos projets immobiliers une réalité avec Maisons de l'Avenir Guipavas.
Logement susceptibles de vous intéresser
Nous vous proposons de découvrir aussi cette sélection de logements situés à moins de 10km de Plouzévédé et qui seraient susceptibles de vous intéresser.
Landivisiau
TERRAINLANDIVISIAU : terrain de 457 m² à vendreÀ vendre, magnifique terrain de 457m² idéalement situé à Landivisiau, une charmante ville qui allie parfaitement le calme de la campagne et la proximité des commodités urbaines.Ce terrain, offrant une surface généreuse, présente une opportunité unique de construire la maison de vos rêves. L’emplacement est un véritable atout. En effet, le terrain se trouve dans la paisible et dynamique commune de Landivisiau offrant un cadre de vie agréable. Vous serez à proximité de toutes les commodités nécessaires au quotidien : écoles, commerces, services de santé.Vous pourrez profiter de nombreuses activités de plein air et de belles balades dans la nature environnante.Enfin, la parcelle bénéficie d’une belle exposition, garantissant une luminosité optimale tout au long de la journée.Ce terrain est une véritable opportunité à saisir pour ceux qui souhaitent concrétiser un projet de construction dans un cadre de vie privilégié. Il est proposé à l’achat pour 41 500 €. Contactez notre agence (CAGNARD Aurélie : (Numéro supprimé)) pour toute question sur le terrain.
Landivisiau
TERRAIN ET MAISONMaison de 3 pièces (86 m²) à vendre à LandivisiauCe très beau plain-pied aux lignes traditionnelles, de 86m² agencé astucieusement pour un maximum de luminosité, pièce de vie ouverte et volumineuse, 3 chambres et son garage. Aux normes RE2020, peu énergivore, elle vous ravira par son confort de vie.Le terrain du bien s’étend sur 457 m².Elle est à vendre pour la somme de 245 700 €.Contactez notre agence (CAGNARD Aurélie : (Numéro supprimé)) pour obtenir de plus amples informations sur la maison. Maisons de l’Avenir Guipavas vous accompagne à toutes les étapes de votre projet et dans tous vos projets immobiliers.
Landivisiau
TERRAIN ET MAISONVENTE d’une maison de 5 pièces (110 m²) à LandivisiauCette belle maison traditionnelle aux lignes contemporaines offre 110m² habitable . Au rez-de-chaussée, elle dispose d’une belle pièce de vie de offrant un maximum de lumière, d’une grande suite parentale avec sa salle d’eau, d’un wc et d’un très grand cellier et de son garage. A l’étage on retrouve 2 chambres, une salle de bains, et un WC. L’orientation de cette maison vous permettra de bénéficier d’un maximum de lumière et de chaleur naturelle pour davantage d’économies et de douceur de vivre.Elle est à vendre pour la somme de 309 500 €.N’hésitez pas à prendre contact avec Aurélie CAGNARD ((Numéro supprimé)) pour plus de renseignements sur la maison.
Landivisiau
TERRAIN ET MAISONVENTE d’une maison de 3 pièces (57 m²) à LandivisiauTrès beau plain-pied aux lignes traditionnelles, agencé astucieusement pour un maximum de luminosité, pièce de vie ouverte et volumineuse, un cellier, 2 chambres et une salle d’eau. Aux normes RE2020, peu énergivore, elle vous ravira par son confort de vie Son prix de vente est de 155 500 €.N’hésitez pas à prendre contact avec Aurélie CAGNARD ((Numéro supprimé)) pour plus de renseignements sur cette maison. Donnez vie à vos projets immobiliers avec Maisons de l’Avenir Guipavas.
Landivisiau
TERRAIN ET MAISONLandivisiau : maison de 4 pièces (120 m²) en venteNouveau Murs Ossature BoisTrès beau plain-pied aux lignes traditionnelles, agencé astucieusement pour un maximum de luminosité, pièce de vie ouverte et volumineuse, 3 chambres dont une suite parentale, un cellier et son garage.Aux normes RE2020, peu énergivore, elle vous ravira par son confort de vie Son prix de vente est de 356 500 €.N’hésitez pas à prendre contact avec notre agence (CAGNARD Aurélie : (Numéro supprimé)) pour obtenir de plus amples informations sur la maison, sur les démarches à suivre ou sur les modalités de vente.
Plouzévédé
TERRAINTerrain de 817 m² en vente à PlouzévédéÀ vendre, magnifique terrain de 817m² idéalement situé à Plouzévédé, une charmante ville qui allie parfaitement le calme de la campagne et la proximité des commodités urbaines.Ce terrain, offrant une surface généreuse, présente une opportunité unique de construire la maison de vos rêves. L’emplacement est un véritable atout. En effet, le terrain se trouve dans la paisible et dynamique commune de Plouzévédé offrant un cadre de vie agréable. Vous serez à proximité de toutes les commodités nécessaires au quotidien : écoles, commerces, services de santé.Vous pourrez profiter de nombreuses activités de plein air et de belles balades dans la nature environnante.Enfin, la parcelle bénéficie d’une belle exposition, garantissant une luminosité optimale tout au long de la journée.Ce terrain est une véritable opportunité à saisir pour ceux qui souhaitent concrétiser un projet de construction dans un cadre de vie privilégié. Il est à vendre pour la somme de 39 500 €. N’hésitez pas à prendre contact avec notre agence (CAGNARD Aurélie : (Numéro supprimé)) pour plus de renseignements sur le terrain, sur les démarches à suivre ou sur les modalités de vente. Maisons de l’Avenir Guipavas est là pour vous accompagner dans tous vos projets immobiliers.
Plouzévédé
TERRAIN ET MAISONVENTE d’une maison de 5 pièces (85 m²) à PlouzévédéCette belle maison traditionnelle aux lignes contemporaines offre 85m² habitable .elle dispose d’une belle pièce de vie offrant un maximum de lumière, de 4 chambres, une salle d’eau, d’un wc, un cellier et d’un garage.L’orientation de cette maison vous permettra de bénéficier d’un maximum de lumière et de chaleur naturelle pour davantage d’économies et de douceur de vivre.Son prix de vente est de 241 500 €.N’hésitez pas à prendre contact avec notre agence (CAGNARD Aurélie : (Numéro supprimé)) pour tout renseignement sur cette maison et sur les démarches à suivre. Maisons de l’Avenir Guipavas est là pour vous accompagner dans tous vos projets immobiliers.
Plouzévédé
TERRAIN ET MAISONVENTE : maison de 5 pièces (140 m²) à PlouzévédéLe terrain de la propriété est de 817 m².Cette belle maison traditionnelle aux lignes contemporaines offre 140 m² habitable . Au rez-de-chaussée, elle dispose d’une belle pièce de vie offrant un maximum de lumière, d’une grande suite parentale avec sa salle d’eau, d’un wc et d’un très grand cellier. A l’étage on retrouve 3 chambres, une salle de bains, et un WC. L’orientation de cette maison vous permettra de bénéficier d’un maximum de lumière et de chaleur naturelle pour davantage d’économies et de douceur de vivre.Elle est à vendre pour la somme de 385 500 €.Prenez contact avec Aurélie CAGNARD ((Numéro supprimé)) pour obtenir de plus amples renseignements sur cette maison. Faites de vos projets immobiliers une réalité avec Maisons de l’Avenir Guipavas.
Plouzévédé
TERRAIN ET MAISONMaison F5 (99 m²) en vente à PlouzévédéCette belle maison traditionnelle aux lignes contemporaines offre 99m² habitable .Au rez-de-chaussée, elle dispose d’une belle pièce de vie offrant un maximum de lumière, d’une grande suite parentale avec sa salle d’eau, d’un wc et d’un garage.A l’étage on retrouve 2 chambres, une salle de bains, et un WC. L’orientation de cette maison vous permettra de bénéficier d’un maximum de lumière et de chaleur naturelle pour davantage d’économies et de douceur de vivre.Elle est à vendre pour la somme de 272 300 €.Prenez contact avec Aurélie CAGNARD ((Numéro supprimé)) pour tout renseignement sur cette maison ou sur les modalités de vente. Maisons de l’Avenir Guipavas est là pour vous accompagner à toutes les étapes de l’achat.
L’actualité immobilière à Plouzévédé
27/11/2023
02/11/2023
30/10/2023
20/10/2023
16/10/2023
16/10/2023