Maison à construire à Pont-Aven (29930)
Images
Description
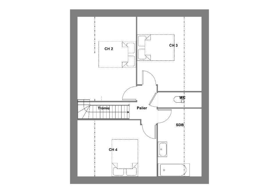
Pont-Aven : maison F4 (89 m²) en vente
IDÉALEMENT SITUÉE - MAISON 4 PIÈCES NEUVE
À vendre : sur le littoral atlantique et à quelques kilomètres de Quimper, idéalement située dans Pont-Aven (29930), venez découvrir cette maison de 4 pièces de 89 m². Son intérieur est composé de trois chambres, d'une cuisine et de deux salles de bains.
Le terrain de cette maison s'étend sur 479 m².
Cette maison comporte 2 niveaux. Elle est neuve.
La maison est située dans un secteur convoité. Quatre établissements scolaires y sont implantés. Niveau transports en commun, il y a la gare Bannalec à moins de 10 minutes en voiture. Il y a un accès à la nationale N165 à 3 km. On trouve une bibliothèque et une boulangerie à quelques minutes.
Elle est proposée à l'achat pour 328 000 €.
Prenez contact avec notre agence (COLLOCH Christophe : (Numéro supprimé)) pour plus de renseignements sur la propriété.
Logement susceptibles de vous intéresser
Nous vous proposons de découvrir aussi cette sélection de logements situés à moins de 10km de Pont-Aven et qui seraient susceptibles de vous intéresser.
Melgven
TERRAIN ET MAISONDEVENEZ PROPRIÉTAIRE À MELGVEN – MAISON NEUVE RE2020 SUR-MESUREOffrez-vous un cadre de vie idéal à Melgven, charmante commune du sud Finistère, située entre Concarneau et Rosporden, à seulement quelques minutes des plages et du littoral.Profitez d’un environnement calme et verdoyant, tout en restant proche des commerces, écoles et services — un lieu de vie parfait pour votre famille ou votre premier achat. Votre future maison comprendo 3 chambres spacieuses et lumineuseso Un grand salon-séjour traversant, ouvert sur le jardino Une cuisine moderne et fonctionnelleo Salle de bain et WC séparéso Le tout sur un terrain de 471 m², bien exposé et facile à aménager Les atouts du projeto Maison neuve RE2020, à faible consommation d’énergieo Plan personnalisable selon vos besoins et vos envieso Emplacement idéal entre campagne et littoral, proche de Concarneauo Prestations de qualité et finitions soignéeso Accès rapide à la voie express et aux commodités locales Prix indiqué hors frais Photos non contractuelles à titre d’illustration Accession à la propriété possible avec ou sans apportNe manquez pas cette belle opportunité de devenir propriétaire d’une maison neuve, moderne et économique à Melgven ! Contactez-nous dès maintenant pour découvrir les plans et étudier votre projet personnalisé.
Pont-Aven
TERRAIN ET MAISONDEVENEZ PROPRIÉTAIRE À PONT-AVEN – MAISON NEUVE RE2020 SUR-MESURE !Vivez dans un cadre de vie privilégié à Pont-Aven, charmante commune dynamique du Sud-Finistère, idéalement située entre Concarneau et Quimper.Profitez du calme de la campagne, tout en restant proche des commerces, écoles et services – un environnement idéal pour votre famille ! Votre future maison comprend 😮 3 chambres spacieuses et lumineuseso Un grand salon-séjour traversant, ouvert sur le jardino Une cuisine moderne et fonctionnelleo Salle de bain et WC séparéso Le tout sur un terrain de 481 m², bien orienté Les atouts du projet 😮 Maison neuve RE2020, à faible consommation d’énergieo Plan personnalisable selon vos envies et vos besoinso Cadre de vie paisible, à proximité de Concarneau, Quimper et du littoral sudo Prestations de qualité, finitions soignées Prix indiqué hors frais Photos non contractuelles à titre d’illustration Accession à la propriété possible avec ou sans apportNe manquez pas cette belle opportunité de devenir propriétaire d’une maison neuve moderne et économique à Pont-Aven ! Contactez nous dès maintenant pour découvrir les plans et étudier votre projet personnalisé.
Rosporden
TERRAIN ET MAISONDEVENEZ PROPRIÉTAIRE À ROSPORDEN – MAISON NEUVE RE2020 SUR-MESURE !Vivez dans un cadre de vie privilégié à Rosporden, charmante commune dynamique du Sud-Finistère, à seulement quelques minutes de Concarneau et de Quimper.Profitez du calme de la campagne, tout en restant proche des commerces, écoles et services – un environnement idéal pour votre famille ! Votre future maison comprend 😮 3 chambres spacieuses et lumineuseso Un grand salon-séjour traversant, ouvert sur le jardino Une cuisine moderne et fonctionnelleo Salle de bain et WC séparéso Le tout sur un terrain de 484 m², bien orienté Les atouts du projet 😮 Maison neuve RE2020, à faible consommation d’énergieo Plan personnalisable selon vos besoinso Cadre de vie paisible, à proximité de Concarneau, Quimper et du littoralo Prestations de qualité, finitions soignées Prix indiqué hors frais Photos non contractuelles à titre d’illustration Accession à la propriété possible avec ou sans apportNe manquez pas cette belle opportunité de devenir propriétaire d’une maison neuve moderne et économique à Rosporden ! Contactez nous dès maintenant pour découvrir les plans et étudier votre projet personnalisé.
Pont-Aven
TERRAINTerrain de 479 m² en vente à Pont-AvenIDÉALEMENT SITUÉ – PROCHE DE QUIMPERÀ vendre sur le littoral atlantique et à quelques kilomètres de Quimper à Pont-Aven (29930), terrain de 479 m². Il est prêt à accueillir votre résidence principale ou secondaire pour toute la famille. Dans un secteur attractif, ce terrain idéalement situé est proche des écoles et des commerces. Il y a quatre établissements scolaires dans la commune. Niveau transports en commun, on trouve la gare Bannalec à moins de 10 minutes en voiture. La nationale N165 est accessible à 3 km. Il y a une bibliothèque et une boulangerie à proximité de la propriété.Son prix de vente est de 90 000 €. N’hésitez pas à prendre contact avec notre agence (COLLOCH Christophe : (Numéro supprimé)) pour plus de renseignements sur le terrain ou sur les modalités de vente. Concrétisez vos projets immobiliers avec Maisons de l’Avenir Lorient.
Pont-Aven
TERRAIN ET MAISONMaison de 5 pièces (127 m²) à vendre à Pont-AvenIDÉALEMENT SITUÉE – MAISON 5 PIÈCES NEUVEEn vente : à 9 km de la côte atlantique et à deux pas de Quimper, Maisons de l’Avenir Lorient vous présente, idéalement située dans Pont-Aven (29930), cette maison de 5 pièces de 127 m² et de 479 m² de terrain.Cette maison possède 2 niveaux. Elle offre quatre chambres, une cuisine et deux salles de bains. La maison est neuve.La maison est située dans un secteur recherché. On y trouve quatre établissements scolaires. Niveau transports, il y a la gare Bannalec à moins de 10 minutes en voiture. Il y a un accès à la nationale N165 à 3 km. On trouve une bibliothèque et une boulangerie à quelques minutes à peine.Elle est proposée à l’achat pour 419 000 €.Prenez contact avec notre agence (Christophe COLLOCH : (Numéro supprimé)) pour tout renseignement sur la maison ou sur les démarches à suivre. Faites de vos projets immobiliers une réalité avec Maisons de l’Avenir Lorient.
Pont-Aven
TERRAIN ET MAISONPont-Aven : maison F4 (89 m²) en venteIDÉALEMENT SITUÉE – MAISON 4 PIÈCES NEUVEÀ vendre : sur le littoral atlantique et à quelques kilomètres de Quimper, idéalement située dans Pont-Aven (29930), venez découvrir cette maison de 4 pièces de 89 m². Son intérieur est composé de trois chambres, d’une cuisine et de deux salles de bains.Le terrain de cette maison s’étend sur 479 m².Cette maison comporte 2 niveaux. Elle est neuve.La maison est située dans un secteur convoité. Quatre établissements scolaires y sont implantés. Niveau transports en commun, il y a la gare Bannalec à moins de 10 minutes en voiture. Il y a un accès à la nationale N165 à 3 km. On trouve une bibliothèque et une boulangerie à quelques minutes.Elle est proposée à l’achat pour 328 000 €.Prenez contact avec notre agence (COLLOCH Christophe : (Numéro supprimé)) pour plus de renseignements sur la propriété.
Pont-Aven
TERRAIN ET MAISONMaison de 5 pièces (140 m²) à vendre à Pont-AvenIDÉALEMENT SITUÉE – MAISON 5 PIÈCES NEUVEÀ vendre : sur le littoral atlantique et à deux pas de Quimper, venez découvrir, idéalement située dans Pont-Aven (29930), cette maison de 5 pièces de 140 m² et de 479 m² de terrain.Il s’agit d’une maison de 2 niveaux. Son intérieur offre quatre chambres, une cuisine et deux salles de bains. La maison est neuve.Cette maison se situe dans un quartier convoité. On y trouve quatre établissements scolaires. Niveau transports, il y a la gare Bannalec à moins de 10 minutes en voiture. Il y a un accès à la nationale N165 à 3 km. On trouve une bibliothèque et une boulangerie dans les environs.Elle est à vendre pour la somme de 428 000 €.Prenez contact avec Christophe COLLOCH (tél : (Numéro supprimé)) pour obtenir de plus amples informations sur la maison. Donnez vie à vos projets immobiliers avec Maisons de l’Avenir Lorient.
Pont-Aven
TERRAINJoli terrain sur PONT AVEN, plat et idéalement situé, parfait pour réaliser votre projet de construction avec notre entreprise.- Superficie : 481m²- Terrain : Plat et facile à aménager- Emplacement : Idéalement situé dans un cadre agréable- Prix Hors fraisNe manquez pas cette opportunité !Pour plus d’informations, contactez nous au (Numéro supprimé).
Rosporden
TERRAINJoli terrain sur ROSPORDEN, plat et idéalement situé, parfait pour réaliser votre projet de construction avec notre entreprise.- Superficie : 320m²- Terrain : Plat et facile à aménager- Emplacement : Idéalement situé dans un cadre agréable- Prix Hors fraisNe manquez pas cette opportunité !Pour plus d’informations, contactez nous au (Numéro supprimé).
L’actualité immobilière à Pont-Aven
27/11/2023
02/11/2023
30/10/2023
20/10/2023
16/10/2023
16/10/2023