Maison à construire à Quimper (29000)
Images
Description
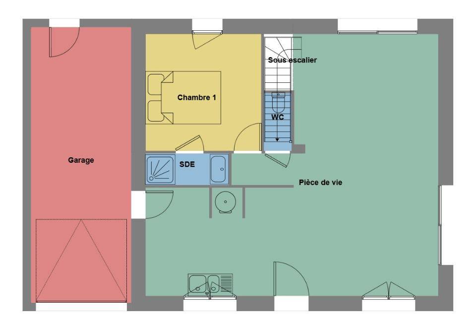
VENTE d'une maison T6 (155 m²) à Quimper
MAISON 6 PIÈCES NEUVE
En vente à 14 km de la côte atlantique, notre agence Maisons de l'Avenir Quimper est heureuse de vous proposer cette maison de 6 pièces de 155 m² et de 405 m² de terrain à Quimper (29000). Elle dispose de cinq chambres, d'une cuisine et de deux salles de bains.
Cette maison possède 2 niveaux.
Elle est proposée à l'achat pour 456 000 €.
Prenez contact avec notre agence (Mathieu DEROUET : (Numéro supprimé)) pour tout renseignement sur la maison ou sur les modalités de vente.
Logement susceptibles de vous intéresser
Nous vous proposons de découvrir aussi cette sélection de logements situés à moins de 10km de Quimper et qui seraient susceptibles de vous intéresser.
Plomelin
TERRAINDEVENEZ PROPRIÉTAIRE D’UN TERRAIN À PLOMELIN !Vivez dans un cadre de vie privilégié à Plomelin, charmante commune du sud Finistère, à proximité des commerces, écoles et services, et à quelques minutes de Quimper et des plages de Bénodet.Profitez du calme de la campagne tout en restant proche des commodités – un environnement idéal pour construire la maison de vos rêves ! Votre terrain comprendo Surface de 450 m², bien orientéeo Possibilité de construire la maison de vos rêves selon vos envies Les atouts du projeto Terrain viabilisé ou proche des réseauxo Cadre de vie paisible, à proximité de Quimper et du littoral sudo Liberté de construction, plan personnalisable selon vos besoins Prix indiqué hors frais Photos non contractuelles – à titre d’illustration Accession possible avec ou sans apportNe manquez pas cette opportunité unique de devenir propriétaire d’un terrain à Plomelin et de concrétiser votre projet sur-mesure ! Contactez-nous dès maintenant pour plus d’informations et étudier votre projet personnalisé.
Ergué-Gabéric
TERRAINDEVENEZ PROPRIÉTAIRE D’UN TERRAIN À ERGUÉ-GABÉRIC !Vivez dans un cadre de vie privilégié à Ergué-Gabéric, charmante commune du Finistère, à proximité immédiate de Quimper, des commerces, écoles et services.Profitez du calme de la campagne tout en restant proche de toutes les commodités – un environnement idéal pour votre futur projet immobilier ! Votre terrain comprendo Surface de 390 m², bien orientéeo Possibilité de construire la maison de vos rêves selon vos envies Les atouts du projeto Terrain viabilisé ou proche des réseauxo Cadre de vie paisible, proche de Quimper et du littoral sudo Liberté de construction, plan personnalisable selon vos besoins Prix indiqué hors frais Photos non contractuelles – à titre d’illustration Accession possible avec ou sans apportNe manquez pas cette opportunité unique de devenir propriétaire d’un terrain à Ergué-Gabéric et de concrétiser votre projet sur-mesure ! Contactez-nous dès maintenant pour plus d’informations et étudier votre projet personnalisé.
Plomelin
TERRAIN ET MAISONDEVENEZ PROPRIÉTAIRE À PLOMELIN – MAISON NEUVE RE2020 SUR-MESUREVivez dans un cadre privilégié à Plomelin, commune prisée du sud Finistère, située à seulement quelques minutes de Quimper et des plages de Bénodet.Profitez d’un environnement calme et verdoyant, idéal pour une vie de famille, tout en bénéficiant de la proximité des commerces, écoles et services. Votre future maison comprendo 3 chambres spacieuses et lumineuseso Un grand salon-séjour traversant, ouvert sur le jardino Une cuisine moderne et fonctionnelleo Salle de bain et WC séparéso Le tout sur un terrain de 450 m², bien orienté et facile à entretenir Les atouts du projeto Maison neuve RE2020, économe en énergieo Plan personnalisable selon vos envies et votre mode de vieo Environnement paisible, à proximité immédiate de Quimper et du littoral sudo Prestations de qualité et finitions soignéeso Accès rapide à la voie express et à toutes les commodités Prix indiqué hors frais Photos non contractuelles à titre d’illustration Accession à la propriété possible avec ou sans apportNe manquez pas cette belle opportunité de devenir propriétaire d’une maison neuve, moderne et économique à Plomelin ! Contactez-nous dès maintenant pour découvrir les plans et étudier votre projet personnalisé.
Saint-Évarzec
TERRAINDEVENEZ PROPRIÉTAIRE D’UN TERRAIN À SAINT-EVARZEC !Vivez dans un cadre de vie privilégié à Saint-Evarzec, charmante commune du Sud-Finistère, idéalement située entre Quimper et le littoral sud.Profitez du calme de la campagne, tout en restant proche des commerces, écoles et services – un environnement idéal pour votre futur projet ! Votre terrain comprend 😮 Une surface de 390 m², bien orientéeo Possibilité de construire la maison de vos rêves selon vos envies Les atouts du projet 😮 Terrain viabilisé ou proche des réseaux (à préciser selon le lot)o Cadre de vie paisible, proche des commodités et du littoralo Liberté de construction, avec plan personnalisable selon vos besoins Prix indiqué hors frais Photos non contractuelles à titre d’illustration Accession possible avec ou sans apportNe manquez pas cette opportunité unique de devenir propriétaire d’un terrain à Saint-Evarzec et de réaliser votre projet sur-mesure ! Contactez-nous dès maintenant pour plus d’informations et étudier votre projet.
Ergué-Gabéric
TERRAIN ET MAISONVous rêvez d’une maison neuve, moderne et adaptée à vos besoins ? Nous vous proposons un projet de construction comprenant :- Une maison individuelle comprenant : 3 chambres spacieuses, un grand salon lumineux, une cuisine fonctionnelle, WC , salle(s) de bain/d’eau sur un terrain de 424m², idéalement situé à ERGUE GABERIC .Profitez d’une maison sur-mesure, conçue pour votre confort et votre bien-être ! Maison RE2020 à faible consommation d’énergies. Prix hors frais. Photos non contractuelles et illustratives. Possibilité d’accession à la propriété avec un CDI (hors CAF, RSA et Pôle Emploi). Pour tout renseignement supplémentaire, contactez nous au (Numéro supprimé).
Plogonnec
TERRAINJoli terrain sur PLOGONNEC, plat et idéalement situé, parfait pour réaliser votre projet de construction avec notre entreprise.- Superficie : 589m²- Terrain : Plat et facile à aménager- Emplacement : Idéalement situé dans un cadre agréable- Prix Hors fraisNe manquez pas cette opportunité !Pour plus d’informations, contactez nous au (Numéro supprimé).
Pluguffan
TERRAINJoli terrain sur PLUGUFFAN, plat et idéalement situé, parfait pour réaliser votre projet de construction avec notre entreprise.- Superficie : 480m²- Terrain : Plat et facile à aménager- Emplacement : Idéalement situé dans un cadre agréable- Prix Hors fraisNe manquez pas cette opportunité !Pour plus d’informations, contactez nous au (Numéro supprimé).
Pleuven
TERRAINTerrain de 379 m² à vendre à PleuvenPROCHE DE QUIMPERTerrain de 379 m² à 7 km de l’océan Atlantique et à deux pas de Quimper. Ce terrain se situe dans Pleuven (29170). Il est proposé à l’achat pour 95 000 €. Contactez Mathieu DEROUET ((Numéro supprimé)) pour toute question sur ce terrain ou sur les modalités de vente.
Pleuven
TERRAIN ET MAISONPleuven : maison de 4 pièces (75 m²) à vendrePROCHE DE QUIMPER – MAISON 4 PIÈCES NEUVEEn vente sur le littoral atlantique et à deux pas de Quimper, notre agence Maisons de l’Avenir Quimper est heureuse de vous proposer cette maison de 4 pièces de 75 m² et de 379 m² de terrain à Pleuven (29170). Son intérieur est composé de trois chambres, d’une cuisine et d’une salle de bains.Il s’agit d’une maison de 2 niveaux. Elle est proposée à l’achat pour 267 500 €.Prenez contact avec Mathieu DEROUET ((Numéro supprimé)) pour tout renseignement sur la maison. Maisons de l’Avenir Quimper est là pour vous accompagner à toutes les étapes de votre projet.
L’actualité immobilière à Quimper
27/11/2023
02/11/2023
30/10/2023
20/10/2023
16/10/2023
16/10/2023