Maison à construire à Rosporden (29140)
Images
Description
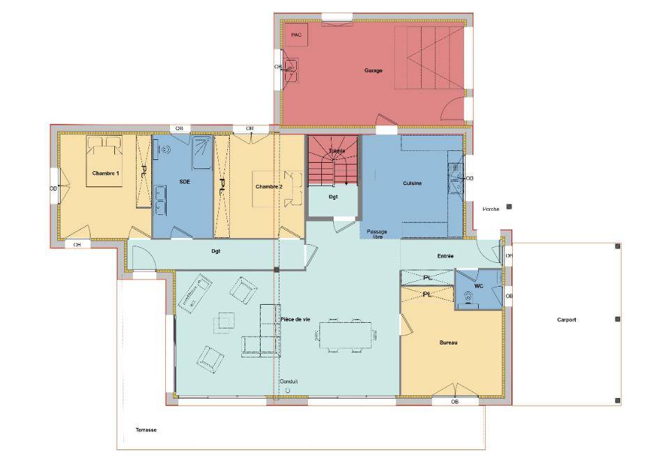
VENTE : maison T4 (110 m²) à Rosporden
PROCHE CENTRE-VILLE - MAISON 4 PIÈCES NEUVE
À vendre : à 14 km de la côte atlantique et à deux pas de Quimper, nous vous présentons cette maison de 4 pièces de plain-pied de 110 m² et de 480 m² de terrain proche du centre-ville de Rosporden (29140).
Conçue de plain-pied, elle se divise en trois chambres, une cuisine et une salle de bains.
Son prix de vente est de 345 000 €.
Contactez notre agence (Mathieu DEROUET : (Numéro supprimé)) pour obtenir de plus amples renseignements sur le bien, sur les démarches à suivre ou sur les modalités de vente.
Logement susceptibles de vous intéresser
Nous vous proposons de découvrir aussi cette sélection de logements situés à moins de 10km de Rosporden et qui seraient susceptibles de vous intéresser.
Bannalec
TERRAINVENTE : terrain de 370 m² à BannalecCENTRE-VILLEÀ 19 km de la côte atlantique à Bannalec (29380), terrain de 370 m². Il se situe en centre-ville. Il y a cinq établissements scolaires à moins de 10 minutes à pied, tout comme une structure d’accueil pour les enfants en bas âge. Niveau transports, on trouve la gare Bannalec dans un rayon de 1 km. On trouve un accès à la nationale N165 à 5 km. Son prix de vente est de 52 000 €. Contactez notre agence (Mathieu DEROUET : (Numéro supprimé)) pour tout renseignement sur ce terrain ou sur les démarches à suivre. Concrétisez vos projets immobiliers avec Maisons de l’Avenir Quimper.
Elliant
TERRAIN ET MAISONDEVENEZ PROPRIÉTAIRE À ELLIANT – MAISON NEUVE conforme à la dernière norme basse consommation RE-2020 !Vivez dans un cadre de vie privilégié à Elliant, commune appréciée du Finistère pour son calme, son environnement naturel et sa proximité avec les commerces, les services et les écoles. Un lieu idéal pour accueillir votre famille dans un cadre serein et agréable !Votre future maison comprend 😮 3 chambres spacieuses et lumineuseso Un grand salon-séjour traversant ouvert sur le jardino Une cuisine moderne et fonctionnelleo Salle de bain et WC séparésLes atouts du projet 😮 Maison neuve RE2020, à faible consommation d’énergieo Plan personnalisable selon vos besoinso Environnement calme et familialo Prestations de qualité, finitions soignéesCe projet s’implante sur un terrain idéalement situé à Elliant, d’environ 438 m² (surface selon disponibilité des partenaires fonciers).Accession à la propriété possible avec ou sans apport, étude de financement gratuite.Photos à titre d’illustration (photos d’une de nos réalisations – non contractuelles).Nous trouvons l’adresse idéale parmi un large choix de terrains disponibles pour votre future demeure.Ne manquez pas cette belle opportunité de devenir propriétaire d’une maison neuve moderne et économique à Elliant !Contactez-nous dès maintenant pour découvrir les plans et étudier votre projet personnalisé.Armorique Immos, franchise d’un constructeur national de maisons individuelles depuis plus de 40 ans, propose en collaboration avec ses partenaires fonciers une sélection de terrains constructibles, selon disponibilité, pour la construction de maisons neuves définies par le constructeur, avec un contrat de construction de maison individuelle, dans le cadre de la loi du 19/12/1990.Prix net, hors frais notariés, d’enregistrement et de publicité foncière.Étude financière réalisée par nos partenaires en courtage (IOSB inscrit à l’Orias).
Bannalec
TERRAIN ET MAISONBannalec : maison F4 (95 m²) en venteCENTRE-VILLE – MAISON 4 PIÈCES NEUVEEn vente : située à 19 km de l’océan Atlantique, Maisons de l’Avenir Quimper vous propose cette maison de 4 pièces de 95 m² et de 370 m² de terrain en plein coeur de Bannalec (29380).C’est une maison de 2 niveaux. Elle propose trois chambres, une cuisine et deux salles de bains. Son prix de vente est de 301 000 €.N’hésitez pas à prendre contact avec Mathieu DEROUET (tél : (Numéro supprimé)) pour toute question sur la maison ou sur les démarches à suivre. Faites de vos projets immobiliers une réalité avec Maisons de l’Avenir Quimper.
Bannalec
TERRAIN ET MAISONMaison T4 (105 m²) à vendre à BannalecCENTRE-VILLE – MAISON 4 PIÈCES NEUVEÀ vendre : située à 19 km de l’océan Atlantique, votre agence Maisons de l’Avenir Quimper est ravie de vous présenter, en plein coeur de Bannalec (29380), cette maison de 4 pièces de 105 m². Elle comporte quatre chambres, une cuisine et deux salles de bains.Le terrain de la propriété est de 370 m².Cette maison compte 2 niveaux.Son prix de vente est de 323 000 €.Prenez contact avec Mathieu DEROUET (tél : (Numéro supprimé)) pour toute question sur le bien. Maisons de l’Avenir Quimper vous accompagne à toutes les étapes de l’achat et dans tous vos projets immobiliers.
Bannalec
TERRAIN ET MAISONBannalec : maison T4 (75 m²) à vendreCENTRE-VILLE – MAISON 4 PIÈCES NEUVEÀ 19 km de la côte atlantique, votre agence Maisons de l’Avenir Quimper est ravie de vous proposer cette maison de 4 pièces de 75 m² en vente au coeur de Bannalec (29380).Cette maison comporte 2 niveaux. Elle inclut trois chambres, une cuisine et une salle de bains.Son prix de vente est de 242 000 €.N’hésitez pas à prendre contact avec Mathieu DEROUET ((Numéro supprimé)) pour obtenir de plus amples informations sur la propriété, sur les modalités de vente ou sur les démarches à suivre. Maisons de l’Avenir Quimper est là pour vous accompagner à toutes les étapes de votre projet.
Bannalec
TERRAIN ET MAISONVENTE : maison T4 (80 m²) à BannalecCENTRE-VILLE – MAISON 4 PIÈCES NEUVEÀ vendre : à 19 km de la côte atlantique, nous sommes ravis de vous proposer cette maison de 4 pièces de plain-pied de 80 m², dans le centre de Bannalec (29380).Son intérieur comporte trois chambres, une cuisine et une salle de bains. Elle est proposée à l’achat pour 268 000 €.N’hésitez pas à prendre contact avec notre agence (DEROUET Mathieu : (Numéro supprimé)) pour toute question sur la maison.
Pont-Aven
TERRAIN ET MAISONVENTE d’une maison de 5 pièces (140 m²) à Pont-AvenMAISON 5 PIÈCES NEUVE – PROCHE DE QUIMPEREn vente à 9 km de la côte atlantique et à 28 km de Quimper, nous sommes ravis de vous proposer à Pont-Aven (29930), cette maison de 5 pièces de 140 m² et de 480 m² de terrain. Elle inclut quatre chambres, une cuisine et deux salles de bains.Il s’agit d’une maison de 2 niveaux. Elle est neuve.Quatre établissements scolaires sont implantés dans la commune. Côté transports en commun, il y a la gare Bannalec à moins de 10 minutes en voiture. On trouve un accès à la nationale N165 à 3 km. On trouve une bibliothèque et une boulangerie à proximité.Son prix de vente est de 427 500 €.Prenez contact avec notre agence (COLLOCH Christophe : (Numéro supprimé)) pour toute information sur la maison. Maisons de l’Avenir Lorient est là pour vous accompagner dans toutes vos démarches.
Pont-Aven
TERRAIN ET MAISONVENTE : maison de 5 pièces (127 m²) à Pont-AvenPROCHE DE QUIMPER – MAISON 5 PIÈCES NEUVEÀ vendre : située sur le littoral atlantique et à 28 km de Quimper, à Pont-Aven (29930), votre agence Maisons de l’Avenir Lorient est ravie de vous présenter cette maison de 5 pièces de 127 m² et de 480 m² de terrain.Il s’agit d’une maison de 2 niveaux. Son intérieur est composé de quatre chambres, d’une cuisine et de deux salles de bains. La maison est neuve.Quatre établissements scolaires sont implantés dans la commune. Niveau transports, on trouve la gare Bannalec à moins de 10 minutes en voiture. La nationale N165 est accessible à 3 km. Il y a une bibliothèque et une boulangerie à proximité.Elle est à vendre pour la somme de 418 900 €.Contactez notre agence (Christophe COLLOCH : (Numéro supprimé)) pour toute information sur cette maison. Maisons de l’Avenir Lorient vous accompagne dans tous vos projets immobiliers et à toutes les étapes de votre projet.
Rosporden
TERRAIN ET MAISONVENTE : maison T4 (110 m²) à RospordenPROCHE CENTRE-VILLE – MAISON 4 PIÈCES NEUVEÀ vendre : à 14 km de la côte atlantique et à deux pas de Quimper, nous vous présentons cette maison de 4 pièces de plain-pied de 110 m² et de 480 m² de terrain proche du centre-ville de Rosporden (29140).Conçue de plain-pied, elle se divise en trois chambres, une cuisine et une salle de bains. Son prix de vente est de 345 000 €.Contactez notre agence (Mathieu DEROUET : (Numéro supprimé)) pour obtenir de plus amples renseignements sur le bien, sur les démarches à suivre ou sur les modalités de vente.
L’actualité immobilière à Rosporden
27/11/2023
02/11/2023
30/10/2023
20/10/2023
16/10/2023
16/10/2023