Maison à construire à Saint-Divy (29800)
Images
Description
Saint-Divy : maison de 5 pièces (105 m²) à vendre
IDÉALEMENT SITUÉE - MAISON 5 PIÈCES NEUVE
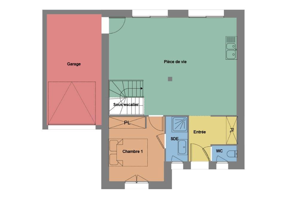
En vente : à quelques kilomètres de la mer et à quelques kilomètres de Brest, votre agence Maisons de l'Avenir Guipavas est ravie de vous présenter cette maison de 5 pièces de 105 m² et de 501 m² de terrain idéalement située dans Saint-Divy (29800).
Cette maison compte 2 niveaux. Elle propose trois chambres, une cuisine et deux salles de bains. La maison est neuve.
La maison se situe dans un quartier prisé. Il y a l'École Primaire Publique Jean de la Fontaine et l'École Primaire Privée Sainte Marie à moins de 10 minutes à pied et une crèche. Niveau transports en commun, on trouve cinq gares à moins de 10 minutes en voiture. Les nationales N12, N165 et N265 sont accessibles à moins de 8 km. Il y a une bibliothèque et deux boulangeries dans les environs.
Son prix de vente est de 320 750 €.
N'hésitez pas à prendre contact avec notre constructeur (Erwan TILLY) pour toute information sur la propriété ou sur les modalités de vente.
Logement susceptibles de vous intéresser
Nous vous proposons de découvrir aussi cette sélection de logements situés à moins de 10km de Saint-Divy et qui seraient susceptibles de vous intéresser.
Gouesnou
TERRAIN ET MAISONDEVENEZ PROPRIÉTAIRE À GOUESNOU – MAISON NEUVE RE2020 SUR-MESURE !Vivez dans un cadre de vie privilégié à Gouesnou, commune dynamique du Finistère, tout en restant proche des commerces, écoles et services – idéal pour votre famille ! Votre future maison comprend 😮 3 chambres spacieuses et lumineuseso Un grand salon-séjour traversant, ouvert sur le jardino Une cuisine moderne et fonctionnelleo Salle de bain et WC séparéso Le tout sur un terrain de 228 m², bien orienté Les atouts du projet 😮 Maison neuve RE2020, à faible consommation d’énergieo Plan personnalisable selon vos besoinso Cadre de vie paisible, proche des commodités et du littoralo Prestations de qualité, finitions soignées Prix indiqué hors frais Photos non contractuelles à titre d’illustration Accession à la propriété possible avec ou sans apportNe manquez pas cette belle opportunité de devenir propriétaire d’une maison neuve moderne et économique à Gouesnou ! Contactez-nous dès maintenant pour découvrir les plans et étudier votre projet personnalisé.
Saint-Thonan
TERRAIN ET MAISONDEVENEZ PROPRIÉTAIRE À SAINT-THONAN – MAISON NEUVE RE2020 SUR-MESURE !Vivez dans un cadre de vie privilégié à Saint-Thonan, charmante commune du Finistère, tout en restant proche des commerces, écoles et services – idéal pour votre famille ! Votre future maison comprend 😮 3 chambres spacieuses et lumineuseso Un grand salon-séjour traversant, ouvert sur le jardino Une cuisine moderne et fonctionnelleo Salle de bain et WC séparéso Le tout sur un terrain bien orienté Les atouts du projet 😮 Maison neuve RE2020, à faible consommation d’énergieo Plan personnalisable selon vos besoinso Cadre de vie paisible, proche des commodités et du littoralo Prestations de qualité, finitions soignées Prix indiqué hors frais Photos non contractuelles à titre d’illustration Accession à la propriété possible avec ou sans apportNe manquez pas cette belle opportunité de devenir propriétaire d’une maison neuve moderne et économique à Saint-Thonan ! Contactez-nous dès maintenant pour découvrir les plans et étudier votre projet personnalisé.
Le Drennec
TERRAINDEVENEZ PROPRIÉTAIRE D’UN TERRAIN AU DRENNEC !Installez-vous dans un cadre de vie calme et verdoyant au Drennec, charmante commune du Nord-Finistère, idéalement située à proximité de Brest et du littoral.Profitez d’un environnement paisible et résidentiel, tout en restant proche des commerces, écoles et services – le lieu parfait pour concrétiser votre projet de construction ! Votre terrain comprend 😮 Une surface de 418 m², bien orientéeo Libre de constructeur, pour bâtir la maison de vos rêves Les atouts du projet 😮 Terrain viabilisé ou proche des réseauxo Cadre de vie agréable, proche de Brest et du littoral nordo Plan de maison personnalisable selon vos besoins et vos envies Prix indiqué hors frais Photos non contractuelles, à titre d’illustration Accession possible avec ou sans apportNe manquez pas cette opportunité rare de devenir propriétaire d’un terrain au Drennec, et de réaliser votre maison sur mesure dans un cadre de vie agréable et recherché ! Contactez-nous dès maintenant pour plus d’informations et pour étudier ensemble votre projet.
Ploudaniel
TERRAINDEVENEZ PROPRIÉTAIRE D’UN TERRAIN À PLOUDANIEL !Vivez dans un cadre de vie paisible et convivial à Ploudaniel, charmante commune du Nord-Finistère, idéalement située entre Landerneau et Lesneven.Profitez d’un environnement verdoyant et calme, tout en restant proche des commerces, écoles et services – l’endroit parfait pour réaliser votre projet de construction ! Votre terrain comprend 😮 Une surface de 860 m², bien orientée et agréable à aménagero Libre de constructeur, pour concevoir la maison qui vous ressemble Les atouts du projet 😮 Terrain viabilisé ou à proximité des réseauxo Cadre de vie tranquille, à seulement quelques minutes de Landerneau et de la voie expresso Plan personnalisable, selon vos envies et vos besoins Prix indiqué hors frais Photos non contractuelles, à titre d’illustration Accession possible avec ou sans apportNe manquez pas cette belle opportunité de devenir propriétaire d’un terrain à Ploudaniel, et de construire votre maison sur mesure dans un environnement agréable et bien situé ! Contactez-nous dès maintenant pour plus d’informations et pour étudier ensemble votre projet.
Gouesnou
TERRAINDEVENEZ PROPRIÉTAIRE D’UN TERRAIN À GOUESNOU !Installez-vous dans un cadre de vie recherché à Gouesnou, commune dynamique du Finistère, située aux portes de Brest.Profitez d’un environnement calme et résidentiel, tout en restant proche des commerces, écoles, transports et services – l’endroit idéal pour votre futur projet de vie ! Votre terrain comprend 😮 Une surface de 227 m², bien orientéeo Libre de constructeur, pour concevoir la maison qui vous ressemble Les atouts du projet 😮 Terrain viabilisé ou à proximité immédiate des réseauxo Emplacement privilégié, à seulement quelques minutes de Brest et de ses commoditéso Plan de maison personnalisable selon vos envies et vos besoins Prix indiqué hors frais Photos non contractuelles, à titre d’illustration Accession possible avec ou sans apportNe manquez pas cette opportunité rare de devenir propriétaire d’un terrain à Gouesnou, et de bâtir votre maison sur mesure dans un secteur très recherché du Finistère ! Contactez-nous dès maintenant pour plus d’informations et pour étudier ensemble votre projet.
Saint-Thonan
TERRAINDEVENEZ PROPRIÉTAIRE D’UN TERRAIN À SAINT-THONAN !Vivez dans un cadre de vie agréable et dynamique à Saint-Thonan, charmante commune du Nord-Finistère, idéalement située entre Landerneau et Brest.Profitez d’un environnement calme et verdoyant, tout en restant proche des commerces, écoles et services – un lieu idéal pour concrétiser votre projet de construction ! Votre terrain comprend 😮 Une surface de 400 m², bien orientéeo Libre de constructeur, pour bâtir la maison qui vous correspond Les atouts du projet 😮 Terrain viabilisé ou à proximité immédiate des réseauxo Emplacement stratégique, à quelques minutes de Brest et de Landerneauo Plan personnalisable selon vos besoins et votre mode de vie Prix indiqué hors frais Photos non contractuelles, à titre d’illustration Accession possible avec ou sans apportNe manquez pas cette opportunité rare de devenir propriétaire d’un terrain à Saint-Thonan, et de réaliser votre maison sur mesure dans un environnement paisible et bien situé ! Contactez-nous dès maintenant pour plus d’informations et pour étudier ensemble votre projet.
Loperhet
TERRAIN ET MAISONLoperhet : maison de 4 pièces (94 m²) en ventePROCHE CENTRE-VILLE – MAISON 4 PIÈCES NEUVEÀ vendre : sur le littoral et à 15 km de Brest, venez découvrir, proche du centre-ville de Loperhet (29470), cette maison de 4 pièces de 94 m². Elle dispose de trois chambres, d’une cuisine et de deux salles de bains.Le terrain du bien est de 537 m².Il s’agit d’une maison de 2 niveaux. Elle est neuve.L’École Primaire Publique Eric Tabarly et l’École Primaire Privée Sainte Brigide se trouvent à moins de 10 minutes à pied, tout comme deux crèches. Côté transports, il y a quatre gares à moins de 10 minutes en voiture. On trouve un accès à la nationale N165 à 1 km. On trouve deux boulangeries, une boucherie-charcuterie et un bureau de poste dans les environs.Elle est proposée à l’achat pour 327 851 €.N’hésitez pas à prendre contact avec Sami ALKIS pour toute question sur la maison, sur les modalités de vente ou sur les démarches à suivre. Concrétisez vos projets immobiliers avec Maisons de l’Avenir Guipavas.
Loperhet
TERRAINVENTE : terrain de 537 m² à LoperhetPROCHE CENTRE-VILLE – PROCHE DE BRESTSur le littoral et à deux pas de Brest à Loperhet (29470), grand terrain. Il bénéficie d’une exposition sud-ouest. Il se trouve non loin du centre-ville. L’École Primaire Publique Eric Tabarly et l’École Primaire Privée Sainte Brigide sont implantées à moins de 10 minutes à pied, tout comme deux crèches. Niveau transports, on trouve quatre gares à moins de 10 minutes en voiture. La nationale N165 est accessible à 1 km. Il y a deux boulangeries, une boucherie-charcuterie et un bureau de poste à proximité.Son prix de vente est de 93 975 €. N’hésitez pas à prendre contact avec Sami ALKIS pour toute information sur ce terrain.
Loperhet
TERRAIN ET MAISONVENTE d’une maison F4 (95 m²) à LoperhetPROCHE CENTRE-VILLE – MAISON 4 PIÈCES NEUVEÀ vendre à quelques kilomètres de la mer et à quelques kilomètres de Brest, votre agence Maisons de l’Avenir Guipavas est heureuse de vous proposer cette maison de 4 pièces de 95 m² proche du centre-ville de Loperhet (29470). Elle inclut trois chambres, une cuisine et deux salles de bains.Le terrain du bien s’étend sur 537 m².Cette maison compte 2 niveaux. Elle est neuve.On trouve l’École Primaire Publique Eric Tabarly et l’École Primaire Privée Sainte Brigide à moins de 10 minutes à pied et deux structures d’accueil pour les tout-petits. Niveau transports, il y a quatre gares à moins de 10 minutes en voiture. La nationale N165 est accessible à 1 km. On trouve deux boulangeries, une boucherie-charcuterie et un bureau de poste à quelques minutes du logement.Elle est à vendre pour la somme de 392 854 €.Contactez Sami ALKIS pour tout renseignement sur la maison.
L’actualité immobilière à Saint-Divy
27/11/2023
02/11/2023
30/10/2023
20/10/2023
16/10/2023
16/10/2023