Maison à construire à Saint-Jean-du-Doigt (29630)
Images
Description
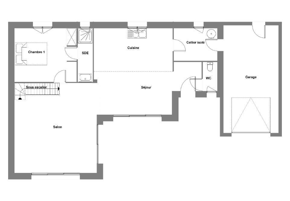
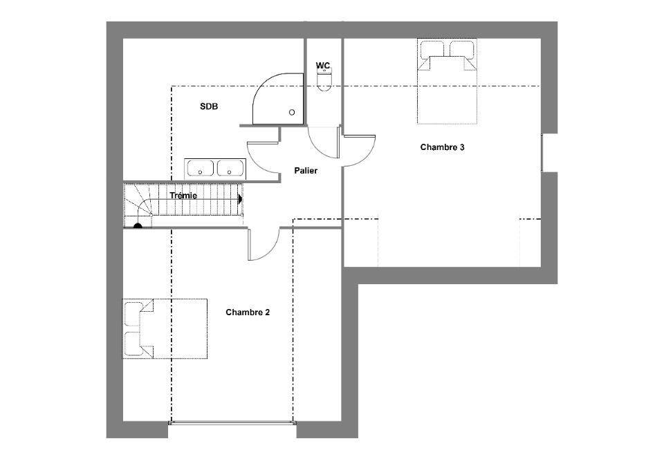
VENTE : maison de 4 pièces (117 m²) à Saint-Jean-du-Doigt
MAISON 4 PIÈCES NEUVE
À vendre : à 5 km de la Manche, notre agence Maisons de l'Avenir Guipavas est heureuse de vous proposer cette maison de 4 pièces de 117 m² et de 1 150 m² de terrain à Saint-Jean-du-Doigt (29630).
Cette maison comporte 2 niveaux. Elle offre trois chambres, une cuisine et deux salles de bains. La maison est neuve.
Son prix de vente est de 406 800 €.
N'hésitez pas à prendre contact avec Aurélie CAGNARD ((Numéro supprimé)) pour obtenir de plus amples informations sur la maison.
Logement susceptibles de vous intéresser
Nous vous proposons de découvrir aussi cette sélection de logements situés à moins de 10km de Saint-Jean-du-Doigt et qui seraient susceptibles de vous intéresser.
 
  
 
 Morlaix
TERRAINMorlaix : terrain de 864 m² à vendreGrand terrain, offrant une surface généreuse, présente une opportunité unique de construire la maison de vos rêves. Il est parfaitement située proche de la nationale 12, et vous permet d’envisager tous types de projets.Vous serez à proximité de toutes les commodités nécessaires au quotidienSon prix de vente est de 66 000 €. N’hésitez pas à prendre contact avec Aurélie CAGNARD (tél : (Numéro supprimé)) pour plus d’informations sur ce terrain et sur les démarches à suivre. Maisons de l’Avenir Guipavas vous accompagne à toutes les étapes de votre projet et dans tous vos projets immobiliers.
 
  
 
 Morlaix
TERRAIN ET MAISONMorlaix : maison de 4 pièces (80 m²) en venteTrès beau plain-pied aux lignes traditionnelles, agencé astucieusement pour un maximum de luminosité, pièce de vie ouverte et volumineuse, grand cellier, 3 chambres.Aux normes RE2020, peu énergivore, elle vous ravira par son confort de vie.864 m² de terrain à Morlaix (29600).Son prix de vente est de 242 700 €.Contactez notre agence (Aurélie CAGNARD : (Numéro supprimé)) pour toute question sur la maison, sur les modalités de vente ou sur les démarches à suivre. Concrétisez vos projets immobiliers avec Maisons de l’Avenir Guipavas.
 
  
 
 Morlaix
TERRAIN ET MAISONMaison de 5 pièces (127 m²) en vente à MorlaixLe terrain du bien s’étend sur 864 m².Très beau plain-pied aux lignes traditionnelles, agencé astucieusement pour un maximum de luminosité, pièce de vie ouverte et volumineuse, grand cellier, 3 chambres dont une suite parentale, un bureau, un cellier.Aux normes RE2020, peu énergivore, elle vous ravira par son confort de vie Elle est proposée à l’achat pour 385 000 €.Contactez notre agence (CAGNARD Aurélie : (Numéro supprimé)) pour tout renseignement sur la maison et sur les démarches à suivre. Donnez vie à vos projets immobiliers avec Maisons de l’Avenir Guipavas.
 
  
 
 Morlaix
TERRAIN ET MAISONVENTE : maison F3 (55 m²) à MorlaixÀ vendre : située à 7 km des plages, nous vous présentons cette maison de 3 pièces de plain-pied de 55 m² et de 864 m² de terrain.Conçue de plain-pied, elle compte deux chambres, une cuisine et une salle de bains, cette maison vous permettra de bénéficier d’un maximum de lumière et de chaleur naturelle pour davantage d’économies et de douceur de vivre.Elle est à vendre pour la somme de 193 000 €.Contactez Aurélie CAGNARD (tél : (Numéro supprimé)) pour obtenir de plus amples informations sur cette propriété, sur les démarches à suivre ou sur les modalités de vente.
 
  
 
 Morlaix
TERRAIN ET MAISONVENTE d’une maison de 4 pièces (94 m²) à MorlaixNouveau Murs Ossature BoisCette belle maison traditionnelle aux lignes contemporaines offre 94m² habitable . Elle dispose d’une suite parentale avec sa salle d’eau, d’une belle pièce de vie offrant un maximum de lumière, 2 chambres, une salle de bains, un WC et son garage. L’orientation de cette maison vous permettra de bénéficier d’un maximum de lumière et de chaleur naturelle pour davantage d’économies et de douceur de vivre.Aux normes RE2020, peu énergivore, elle vous ravira par son confort de vie.Elle est proposée à l’achat pour 278 400 €.Prenez contact avec notre agence (Aurélie CAGNARD : (Numéro supprimé)) pour tout renseignement sur la maison. Maisons de l’Avenir Guipavas est là pour vous accompagner dans tous vos projets immobiliers.
 
  
 
 Lanmeur
TERRAINOpportunité de développement immobilier au cœur du Finistère NordSitué sur la commune de LANMEUR, à proximité immédiate du centre-bourg et à moins de 10 minutes de Loquirec, ce terrain d’une superficie d’environ 5 000 m² est intégré dans une Orientation d’Aménagement et de Programmation (OAP) à vocation résidentielle.Hauteur autorisée : R+2 + comblesCapacité indicative : à partir d’une dizaine de logements minimum (logements collectifs intermédiaires, petits collectifs, ou habitat groupé)Situé en secteur résidentiel, proche des commerces, écoles et servicesLe territoire est attractif, bien desservi et dynamiqueLe terrain offre un cadre de vie recherché, à proximité du littoral et de la RN12Terrain plat avec plusieurs accès possibleCe terrain s’adresse à des promoteurs, lotisseurs ou investisseurs souhaitant implanter un projet résidentiel sur une commune à proche moins de 10mn des plages.N’hésitez pas à me contacter pour tout complément d’information. Les honoraires sont à la charge du vendeur.Les informations sur les risques auxquels ce bien est exposé sont disponibles sur le site Géorisques : www. georisques. gouv. fr.Réseau Immobilier CAPIFRANCE – Votre agent commercial (RSAC N(Numéro supprimé) – Greffe de VANNES) Valérie MAQUAIRE Entrepreneur Individuel (Numéro supprimé) – Réf.926433
 
  
 
 Plougasnou
TERRAIN ET MAISONVous rêvez d’une maison neuve, moderne et adaptée à vos besoins ? Nous vous proposons un projet de construction comprenant :- Une maison individuelle comprenant : 3 chambres spacieuses, un grand salon lumineux, une cuisine fonctionnelle, WC , salle(s) de bain/d’eau sur un terrain de 324 m², idéalement situé à PLOUGASNOU.Profitez d’une maison sur-mesure, conçue pour votre confort et votre bien-être ! Maison RE2020 à faible consommation d’énergies. Prix hors frais. Photos non contractuelles et illustratives. Possibilité d’accession à la propriété avec un CDI (hors CAF, RSA et Pôle Emploi). Pour tout renseignement supplémentaire, contactez nous au (Numéro supprimé).
 
  
 
 Saint-Jean-du-Doigt
TERRAINSaint-Jean-du-Doigt : terrain de 1 465 m² en venteEn exclusivité, nous vous présentons une opportunité immobilière exceptionnelle dans la charmante ville de Saint jean du doigt.Ce terrain, qui se distingue par son emplacement de choix, offre un cadre de vie idyllique. Niché sur les hauteurs, une ville réputée pour son charme pittoresque et son atmosphère paisible, ce terrain représente une opportunité rare sur le marché immobilier actuel.L’un des points forts majeurs de ce terrain est sans aucun doute son environnement. Saint jean du doigt, située aux portes des plages, offre un panorama exceptionnel, alliant verdure luxuriante et air marin vivifiant. Ce terrain se trouve à proximité des commodités essentielles, garantissant un confort de vie optimal.De plus, ce terrain offre un potentiel d’aménagement considérable. Avec ses 1465m², les possibilités sont nombreuses pour réaliser le projet de vos rêves, que ce soit la construction d’une résidence principale spacieuse, d’une maison de vacances confortable.Investir dans ce terrain, c’est faire le choix d’un investissement sûr et rentable.Ne manquez pas cette occasion unique de devenir propriétaire d’un terrain d’exception à St jean du doigt. Pour plus d’informations, n’hésitez pas à nous contacter.Il est proposé à l’achat pour 140 000 €. N’hésitez pas à prendre contact avec notre agence (CAGNARD Aurélie : (Numéro supprimé)) pour tout renseignement sur le terrain. Faites de vos projets immobiliers une réalité avec Maisons de l’Avenir Guipavas.
 
  
 
 Saint-Jean-du-Doigt
TERRAIN ET MAISONVENTE d’une maison F4 (100 m²) à Saint-Jean-du-DoigtCette belle maison traditionnelle aux lignes contemporaines offre 100m² habitable . Au rez-de-chaussée, elle dispose d’une belle pièce de vie de offrant un maximum de lumière, d’une grande suite parentale avec sa salle d’eau, d’un wc et d’un très grand cellier. A l’étage on retrouve 2 chambres, un bureau, une salle de bains, et un WC. L’orientation de cette maison vous permettra de bénéficier d’un maximum de lumière et de chaleur naturelle pour davantage d’économies et de douceur de vivre..Son prix de vente est de 375 000 €.Contactez notre agence (CAGNARD Aurélie : (Numéro supprimé)) pour toute information sur cette maison, sur les modalités de vente ou sur les démarches à suivre. Maisons de l’Avenir Guipavas est là pour vous accompagner à toutes les étapes de l’achat.
L’actualité immobilière à Saint-Jean-du-Doigt
 27/11/2023
 
 27/11/2023
 
  02/11/2023
 
 02/11/2023
 
  30/10/2023
 
 30/10/2023
 
  20/10/2023
 
 20/10/2023
 
  16/10/2023
 
 16/10/2023
 
  16/10/2023
 
 16/10/2023
 
  
 
 
 
 
 
  
  
  
  
  
  
  
  
 