Maison à construire à Saint-Jean-Trolimon (29120)
Images
Description
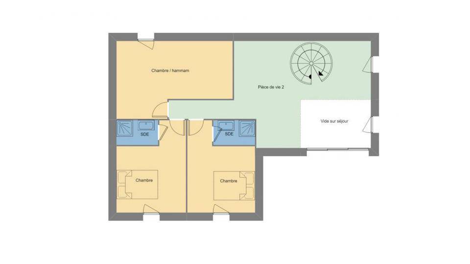
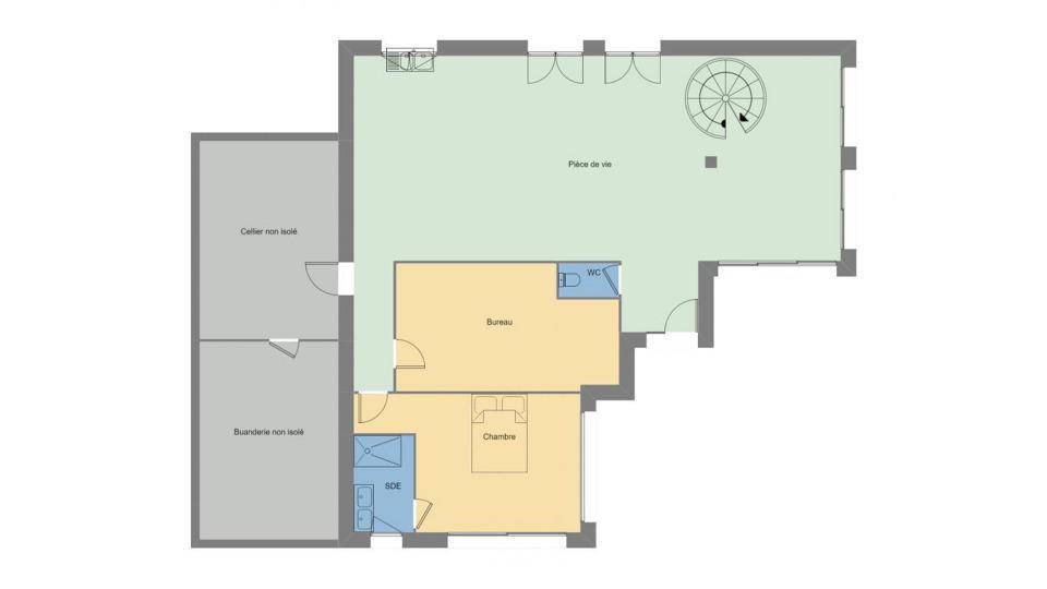
VENTE : maison de 6 pièces (150 m²) à Saint-Jean-Trolimon
MAISON 6 PIÈCES NEUVE - PROCHE DE QUIMPER
À 7 km de l'océan Atlantique et à deux pas de Quimper, ayez le coup de coeur pour cette maison de 6 pièces de 150 m² et de 540 m² de terrain en vente à Saint-Jean-Trolimon (29120).
Il s'agit d'une maison de 2 niveaux. Son intérieur se divise en cinq chambres, une cuisine et quatre salles de bains.
Elle est à vendre pour la somme de 435 000 €.
N'hésitez pas à prendre contact avec notre agence (DEROUET Mathieu : (Numéro supprimé)) pour toute question sur la maison, sur les modalités de vente ou sur les démarches à suivre.
Logement susceptibles de vous intéresser
Nous vous proposons de découvrir aussi cette sélection de logements situés à moins de 10km de Saint-Jean-Trolimon et qui seraient susceptibles de vous intéresser.
Tréogat
TERRAINVENTE : terrain de 727 m² à TréogatPROCHE DE QUIMPERSur le littoral atlantique et à deux pas de Quimper à Tréogat (29720), grand terrain. Réalisez-y votre projet immobilier. Il bénéficie d’une exposition sud-ouest. L’École Primaire Publique les Hirondelles se trouve à proximité.Son prix de vente est de 52 000 €. N’hésitez pas à prendre contact avec notre agence (LAURENT Marie : (Numéro supprimé)) pour plus d’informations sur ce terrain, sur les démarches à suivre ou sur les modalités de vente. Donnez vie à vos projets immobiliers avec Maisons de l’Avenir Quimper.
Plobannalec-Lesconil
TERRAIN ET MAISONPlobannalec-Lesconil : maison F4 (95 m²) à vendreCENTRE-VILLE – MAISON 4 PIÈCES NEUVEEn vente : située sur le littoral atlantique et à quelques kilomètres de Quimper, venez découvrir cette maison de 4 pièces de 95 m² dans le centre de Plobannalec-Lesconil (29740).Cette maison comporte 2 niveaux. Son intérieur comporte trois chambres, une cuisine et deux salles de bains.Elle est à vendre pour la somme de 264 000 €.Prenez contact avec Mathieu DEROUET ((Numéro supprimé)) pour toute information sur la maison. Concrétisez vos projets immobiliers avec Maisons de l’Avenir Quimper.
Tréogat
TERRAIN ET MAISONTréogat : maison F4 (125 m²) en venteMAISON 4 PIÈCES NEUVE – PROCHE DE QUIMPERÀ 5 km de l’océan Atlantique et à quelques kilomètres de Quimper, nous vous présentons cette maison de 4 pièces de plain-pied de 125 m² en vente à Tréogat (29720). Conçue de plain-pied, elle offre trois chambres, une cuisine et deux salles de bains.Le terrain de la maison s’étend sur 727 m².Cette maison est neuve.L’École Primaire Publique les Hirondelles est implantée à moins de 10 minutes à pied.Elle est proposée à l’achat pour 331 500 €.Contactez Marie LAURENT ((Numéro supprimé)) pour toute information sur cette maison, sur les démarches à suivre et sur les modalités de vente. Donnez vie à vos projets immobiliers avec Maisons de l’Avenir Quimper.
Tréogat
TERRAIN ET MAISONTréogat : maison T3 (57 m²) à vendrePROCHE DE QUIMPER – MAISON 3 PIÈCES NEUVESur la côte atlantique et à deux pas de Quimper, en vente à Tréogat (29720), nous sommes ravis de vous proposer cette maison de 3 pièces de plain-pied de 57 m² et de 727 m² de terrain.Elle offre deux chambres, une cuisine et une salle de bains. La maison est neuve.Il y a l’École Primaire Publique les Hirondelles à proximité.Elle est à vendre pour la somme de 188 990 €.Contactez Marie LAURENT (tél : (Numéro supprimé)) pour toute information sur la maison ou sur les modalités de vente. Faites de vos projets immobiliers une réalité avec Maisons de l’Avenir Quimper.
Plobannalec-Lesconil
TERRAINTerrain de 480 m² en vente à Plobannalec-LesconilCENTRE-VILLE – PROCHE DE QUIMPERTerrain de 480 m² sur la côte atlantique et à quelques kilomètres de Quimper. Ce terrain se situe en plein coeur de Plobannalec-Lesconil (29740).Ce terrain est proposé à l’achat pour 45 000 €. Contactez notre agence (DEROUET Mathieu : (Numéro supprimé)) pour toute information sur ce terrain.
Plobannalec-Lesconil
TERRAIN ET MAISONMaison de 5 pièces (100 m²) à vendre à Plobannalec-LesconilCENTRE-VILLE – MAISON 5 PIÈCES NEUVEÀ vendre sur la côte atlantique et à 22 km de Quimper, Maisons de l’Avenir Quimper vous présente cette maison de 5 pièces de plain-pied de 100 m² et de 480 m² de terrain en plein coeur de Plobannalec-Lesconil (29740). Conçue de plain-pied, elle offre quatre chambres, une cuisine et deux salles de bains.Son prix de vente est de 275 000 €.Contactez notre agence (DEROUET Mathieu : (Numéro supprimé)) pour toute information sur la maison. Concrétisez vos projets immobiliers avec Maisons de l’Avenir Quimper.
Plobannalec-Lesconil
TERRAIN ET MAISONVENTE d’une maison de 5 pièces (120 m²) à Plobannalec-LesconilCENTRE-VILLE – MAISON 5 PIÈCES OSSATURE BOISÀ vendre : localisée sur la côte atlantique et à deux pas de Quimper, dans le centre-ville de Plobannalec-Lesconil (29740), ayez le coup de coeur pour cette maison de 5 pièces de 120 m². Son intérieur se divise en quatre chambres, une cuisine et une salle de bains.Son prix de vente est de 334 950 €.Contactez Mathieu DEROUET ((Numéro supprimé)) pour obtenir de plus amples renseignements sur la maison, sur les démarches à suivre ou sur les modalités de vente. Maisons de l’Avenir Quimper vous accompagne à toutes les étapes de votre projet et dans tous vos projets immobiliers.
Plobannalec-Lesconil
TERRAIN ET MAISONPlobannalec-Lesconil : maison T3 (60 m²) à vendreCENTRE-VILLE – MAISON 3 PIÈCES NEUVEÀ 2 km de la côte atlantique et à quelques kilomètres de Quimper, nous sommes heureux de vous proposer cette maison de 3 pièces de plain-pied de 60 m² et de 480 m² de terrain à vendre, à Plobannalec-Lesconil (29740), en centre-ville. Son intérieur propose deux chambres, une cuisine et une salle de bains.Elle est à vendre pour la somme de 181 000 €.N’hésitez pas à prendre contact avec Mathieu DEROUET (tél : (Numéro supprimé)) pour plus d’informations sur la maison, sur les démarches à suivre ou sur les modalités de vente.
Plobannalec-Lesconil
TERRAIN ET MAISONPlobannalec-Lesconil : maison de 5 pièces (155 m²) à vendreCENTRE-VILLE – MAISON 5 PIÈCES NEUVEÀ vendre sur le littoral atlantique et à deux pas de Quimper, laissez vous charmer par, dans le centre de Plobannalec-Lesconil (29740), cette maison de 5 pièces de 155 m². Son intérieur comporte quatre chambres, une cuisine et deux salles de bains.Le terrain du bien s’étend sur 480 m².Cette maison compte 2 niveaux. Elle est proposée à l’achat pour 396 000 €.Prenez contact avec Mathieu DEROUET ((Numéro supprimé)) pour toute question sur le bien ou sur les modalités de vente. Maisons de l’Avenir Quimper vous accompagne dans tous vos projets immobiliers et dans toutes vos démarches.
L’actualité immobilière à Saint-Jean-Trolimon
27/11/2023
02/11/2023
30/10/2023
20/10/2023
16/10/2023
16/10/2023