Maison à construire à Saint-Pabu (29830)
Images
Description
🏡 À Vendre : Terrain de 652m² a Saint-Pabu - 78 500€ 🌊
Découvrez ce terrain rare de 652m², idéalement situé dans un lotissement prisé de St-Pabu, à proximité de la mer. 🌅
Ce terrain bénéficie d'un emplacement privilégié, avec peu de vis à vis 🛤️, tout en restant proche de Brest.
Saint-Pabu est une commune dynamique et recherchée, ce qui fait de ce bien une opportunité à ne pas manquer !
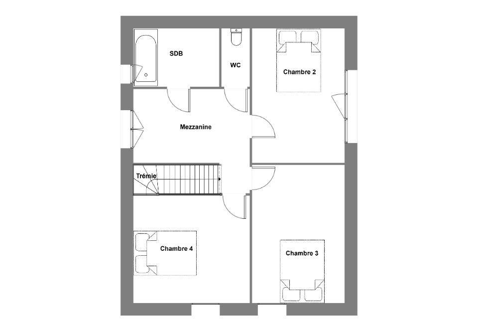
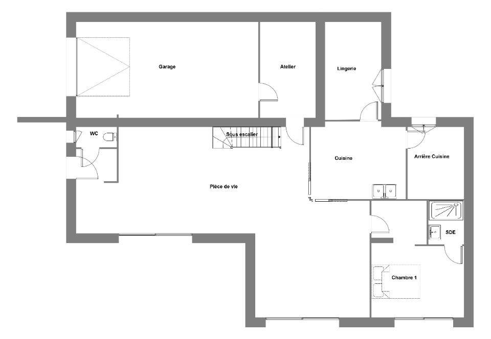
Nous vous proposons également les plans d'une maison de 145m², comprenant 5 chambres dont une suite parentale, ainsi que deux salles de bains. Profitez d'un vaste espace de vie de plus de 50m², pensé avec un maximum d'ouvertures pour favoriser la luminosité et les gains énergétiques, selon notre label Bâti Activ Maisons Passives. 🌞🏡
Les plans sont entièrement modifiables pour répondre à tous vos besoins et envies. Le projet global terrain + maison est proposé à 463 500€. ✨
Si ce terrain vous intéresse, ne tardez pas, contactez Erwan TILLY des Maisons de l'Avenir pour plus d'informations et organiser une visite. 📞
Faites vite, une telle opportunité partira rapidement ! 🚀
Logement susceptibles de vous intéresser
Nous vous proposons de découvrir aussi cette sélection de logements situés à moins de 10km de Saint-Pabu et qui seraient susceptibles de vous intéresser.
Lannilis
TERRAIN ET MAISONVENTE d’une maison de 5 pièces (102 m²) à LannilisPROCHE CENTRE-VILLE – MAISON 5 PIÈCES NEUVEÀ vendre : localisée à quelques kilomètres de la mer et à quelques kilomètres de Brest, Maisons de l’Avenir Guipavas vous propose, proche du centre-ville de Lannilis (29870), cette maison de 5 pièces de 102 m² et de 403 m² de terrain.Il s’agit d’une maison de 2 niveaux. Son intérieur compte quatre chambres, une cuisine et deux salles de bains. Cette maison est neuve.Quatre établissements scolaires sont implantés à moins de 10 minutes à pied, tout comme une crèche. Les nationales N12 et N265 sont accessibles à moins de 19 km. Il y a une bibliothèque, un tennis, des commerces, quatre boulangeries, deux supermarchés, deux boucheries-charcuteries et un bureau de poste dans les environs. Enfin, le marché Place Leclerc anime le quartier tous les mercredis.Elle est proposée à l’achat pour 256 891 €.N’hésitez pas à prendre contact avec notre agence (ALKIS Sami) pour plus de renseignements sur la maison, sur les modalités de vente ou sur les démarches à suivre. Maisons de l’Avenir Guipavas vous accompagne à toutes les étapes de votre projet et dans tous vos projets immobiliers.
Lannilis
TERRAINVENTE : terrain de 403 m² à LannilisPROCHE CENTRE-VILLE – PROCHE DE BRESTTerrain de 403 m² sur le littoral et à quelques kilomètres de Brest. Ce terrain se situe proche du centre-ville de Lannilis (29870). Il est exposé au sud-ouest. On trouve quatre établissements scolaires à moins de 10 minutes à pied et une crèche. Les nationales N12 et N265 sont accessibles à moins de 19 km. Il y a une bibliothèque, un tennis, des commerces, quatre boulangeries, deux supermarchés, un bureau de poste et une épicerie à quelques minutes à peine. Ne manquez pas le marché Place Leclerc tous les mercredis.Il est proposé à l’achat pour 64 000 €. Contactez Sami ALKIS pour tout renseignement sur le terrain, sur les modalités de vente ou sur les démarches à suivre. Maisons de l’Avenir Guipavas vous accompagne dans tous vos projets immobiliers et dans toutes vos démarches.
Lannilis
TERRAIN ET MAISONVENTE d’une maison de 5 pièces (89 m²) à LannilisPROCHE CENTRE-VILLE – MAISON 5 PIÈCES NEUVEEn vente : localisée sur le littoral et à deux pas de Brest, ayez le coup de coeur pour, proche du centre-ville de Lannilis (29870), cette maison de 5 pièces de 89 m² et de 403 m² de terrain.Cette maison compte 2 niveaux. Son intérieur dispose de quatre chambres, d’une cuisine et de deux salles de bains. La maison est neuve.Quatre établissements scolaires sont implantés à moins de 10 minutes à pied, tout comme une crèche. Les nationales N12 et N265 sont accessibles à moins de 19 km. Il y a une bibliothèque, un tennis, des commerces, quatre boulangeries, deux supermarchés, deux boucheries-charcuteries et un bureau de poste à quelques minutes du bien. Enfin, le marché Place Leclerc a lieu tous les mercredis.Elle est proposée à l’achat pour 275 946 €.N’hésitez pas à prendre contact avec Sami ALKIS pour toute question sur la maison ou sur les démarches à suivre. Maisons de l’Avenir Guipavas est là pour vous accompagner à toutes les étapes de votre projet.
Lannilis
TERRAIN ET MAISONVENTE : maison F4 (69 m²) à LannilisPROCHE CENTRE-VILLE – MAISON 4 PIÈCES NEUVEÀ vendre : à quelques kilomètres de la mer et à deux pas de Brest, nous sommes heureux de vous proposer cette maison de 4 pièces de plain-pied de 69 m², proche du centre-ville de Lannilis (29870).Son intérieur comporte trois chambres, une cuisine et une salle de bains. La maison est neuve.Le terrain de la propriété est de 403 m².Il y a quatre établissements scolaires à moins de 10 minutes à pied et une structure d’accueil pour les tout-petits. Les nationales N12 et N265 sont accessibles à moins de 19 km. On trouve une bibliothèque, un tennis, des commerces, quatre boulangeries, deux supermarchés, deux boucheries-charcuteries et un bureau de poste à quelques minutes de la maison. Ne manquez pas le marché Place Leclerc chaque mercredi.Son prix de vente est de 232 818 €.N’hésitez pas à prendre contact avec Sami ALKIS pour toute question sur la maison. Maisons de l’Avenir Guipavas est là pour vous accompagner dans tous vos projets immobiliers.
Lannilis
TERRAINTerrain de 446 m² en vente à LannilisIDÉALEMENT SITUÉ – PROCHE DE BRESTSur le littoral et à deux pas de Brest à Lannilis (29870), terrain de 446 m². Il est prêt à accueillir votre projet de construction pour toute la famille. Il est orienté au sud. Dans un secteur attractif, ce terrain idéalement situé est proche des écoles et des commerces. Quatre établissements scolaires sont implantés à moins de 10 minutes à pied, tout comme une structure d’accueil pour la petite enfance. Les nationales N12 et N265 sont accessibles à moins de 19 km. On trouve une bibliothèque, un tennis, des commerces, quatre boulangeries, deux supermarchés, deux boucheries-charcuteries et un bureau de poste à quelques minutes. Enfin, le marché Place Leclerc a lieu chaque mercredi.Il est à vendre pour la somme de 72 000 €. N’hésitez pas à prendre contact avec notre agence (TILLY Erwan) pour toute question sur ce terrain. Maisons de l’Avenir Guipavas vous accompagne dans toutes vos démarches et à toutes les étapes de votre projet.
Lannilis
TERRAIN ET MAISON🏡 À Vendre : Terrain de 446m² a Lannilis – 72 000€ 🌊Découvrez ce terrain rare de 446m², idéalement situé dans un lotissement prisé de Lannilis, à proximité de la mer. 🌅Nous vous proposons également les plans d’une maison de plain-pied de 129m², comprenant 4 chambres dont une suite parentale, ainsi que deux salles de bains. Profitez d’un vaste espace de vie de plus de 45m², pensé avec un maximum d’ouvertures pour favoriser la luminosité et les gains énergétiques, selon notre label Bâti Activ Maisons Passives. 🌞🏡Les plans sont entièrement modifiables pour répondre à tous vos besoins et envies. Le projet global terrain + maison est proposé à 392 000€. ✨Ce terrain bénéficie d’un emplacement privilégié, avec peu de vis à vis 🛤️, tout en restant proche de Brest.Lannilis est une commune dynamique et recherchée, ce qui fait de ce bien une opportunité à ne pas manquer !Si ce terrain vous intéresse, ne tardez pas, contactez Erwan TILLY des Maisons de l’Avenir pour plus d’informations et organiser une visite. 📞Faites vite, une telle opportunité partira rapidement ! 🚀
Lannilis
TERRAIN ET MAISON🏡 À Vendre : Terrain de 446m² a Lannilis – 72 000€ 🌊Découvrez ce terrain rare de 446m², idéalement situé dans un lotissement prisé de Lannilis, à proximité de la mer. 🌅Nous vous proposons également les plans d’une maison de 80m², comprenant 3 chambres dont une suite parentale, ainsi que deux salles de bains. Profitez d’un vaste espace de vie de plus de 35m², pensé avec un maximum d’ouvertures pour favoriser la luminosité et les gains énergétiques, selon notre label Bâti Activ Maisons Passives. 🌞🏡Les plans sont entièrement modifiables pour répondre à tous vos besoins et envies. Le projet global terrain + maison est proposé à 285 000€. ✨Ce terrain bénéficie d’un emplacement privilégié, avec peu de vis à vis 🛤️, tout en restant proche de Brest.Lannilis est une commune dynamique et recherchée, ce qui fait de ce bien une opportunité à ne pas manquer !Si ce terrain vous intéresse, ne tardez pas, contactez Erwan TILLY des Maisons de l’Avenir pour plus d’informations et organiser une visite. 📞Faites vite, une telle opportunité partira rapidement ! 🚀
Lannilis
TERRAIN ET MAISON🏡 À Vendre : Terrain de 446m² a Lannilis – 72 000€ 🌊Découvrez ce terrain rare de 446m², idéalement situé dans un lotissement prisé de Lannilis, à proximité de la mer. 🌅Nous vous proposons également les plans d’une maison de 70m², comprenant 3 chambres dont une suite parentale, ainsi que deux salles de bains. Profitez d’un vaste espace de vie de plus de 30m², pensé avec un maximum d’ouvertures pour favoriser la luminosité et les gains énergétiques, selon notre label Bâti Activ Maisons Passives. 🌞🏡Les plans sont entièrement modifiables pour répondre à tous vos besoins et envies. Le projet global terrain + maison est proposé à 265 000€. ✨Ce terrain bénéficie d’un emplacement privilégié, avec peu de vis à vis 🛤️, tout en restant proche de Brest.Lannilis est une commune dynamique et recherchée, ce qui fait de ce bien une opportunité à ne pas manquer !Si ce terrain vous intéresse, ne tardez pas, contactez Erwan TILLY des Maisons de l’Avenir pour plus d’informations et organiser une visite. 📞Faites vite, une telle opportunité partira rapidement ! 🚀
Tréglonou
TERRAIN📢 À vendre : Dernier terrain disponible à Tréglonou ! 🌿🏡Saisissez cette opportunité rare sur la commune de Tréglonou ! Ce magnifique terrain de 403 m², situé dans un petit lotissement, bénéficie d’une belle exposition et d’un cadre idéal pour votre futur projet de construction.Il s’agit de l’un des derniers terrains disponibles sur la commune, une occasion à ne pas manquer !Contactez vite Erwan TILLY des Maisons de l’Avenir pour organiser une visite et commencer à concevoir les plans sur mesure de votre future maison.📞 Erwan TILLY – Maisons de l’Avenir⚠️ Faites vite, ce terrain partira très rapidement ! 🚀
L’actualité immobilière à Saint-Pabu
27/11/2023
02/11/2023
30/10/2023
20/10/2023
16/10/2023
16/10/2023